NEU - Gut angebundenes Büro beim Schottentor

Immobilie zur Miete in 1090 Wien / Objektnummer: 26187
Ausstattung: Klimaanlage Fernwärme

Preisinformationen

Gesamtmiete (exkl. USt.):
5.754,13 € / Monat
Betriebskosten netto:
470,02 € / Monat
Miete/m² netto:
17,00 €
Kaution:
6 Bruttomonatsmieten
Vermittlungsprovision:
Ja
Provision:
3 Bruttomonatsmieten zzgl. 20% USt.

Fakten

Objektnummer:
26187
Nutzfläche:
310,83 m²
Zimmer:
9
Toilette:
2
Stockwerk:
2
Verfügbarkeit:
Verfügbar

Beschreibung

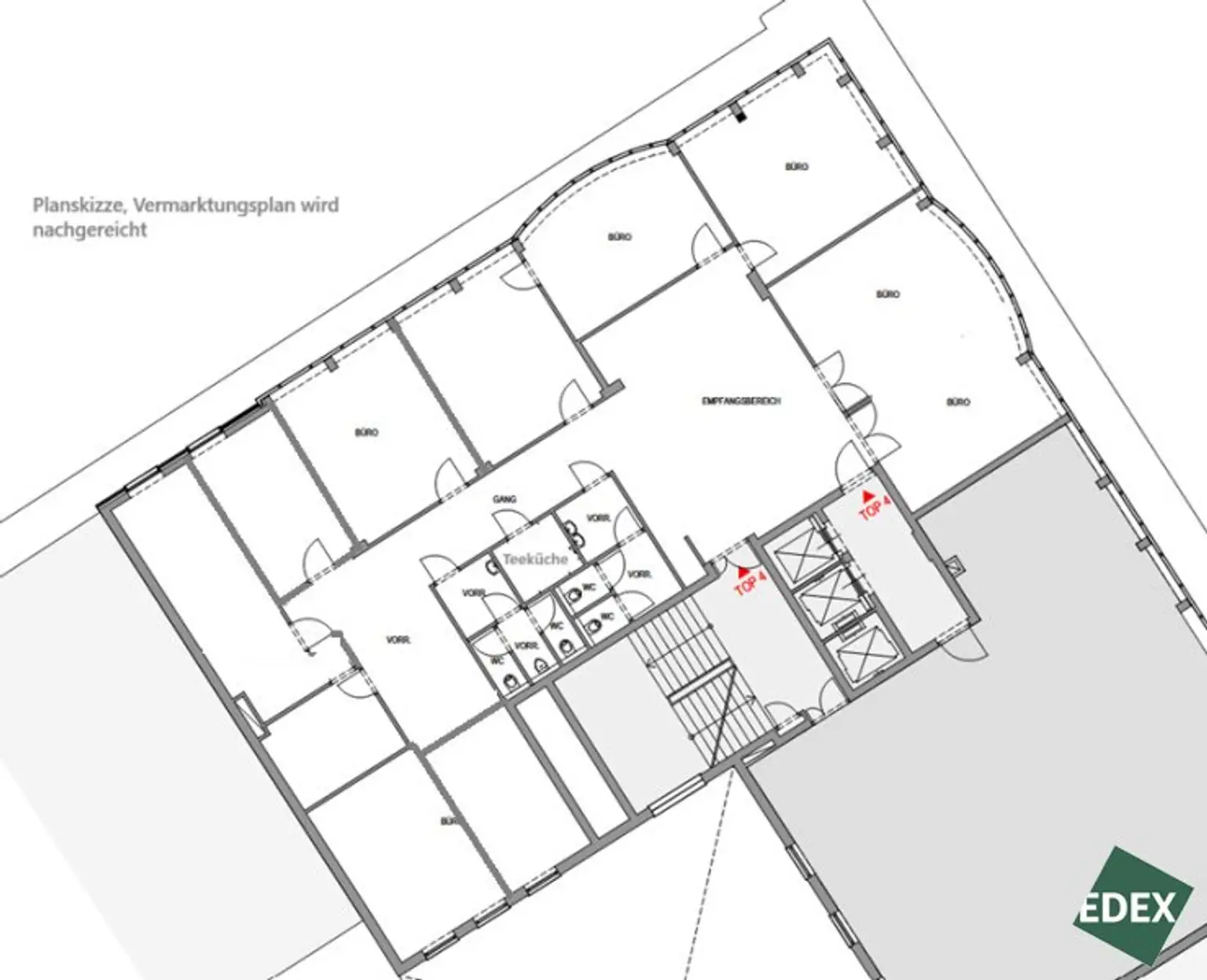
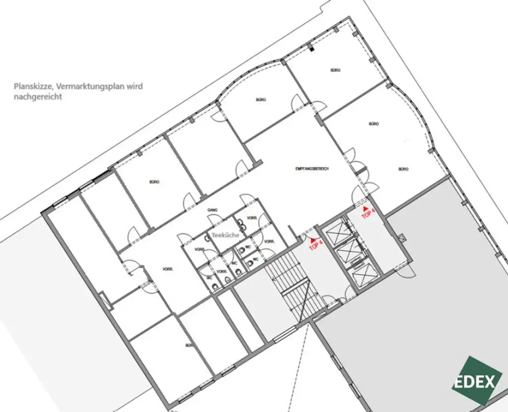
Das Büro

Unweit des Schottentors gelangt dieses attraktive Büro in der ab sofort zur Vermietung.

Die effizient und durchdacht konzipierte Bürofläche umfasst derzeit neun Büroräume, von denen sich einer ideal als Besprechungsraum eignet, einen Empfangsbereich, zwei getrennte Sanitärbereiche sowie eine Teeküche. Die Raumaufteilung kann bei Bedarf an die individuellen Anforderungen und das Nutzungskonzept des zukünftigen Mieters angepasst werden.

Die hervorragende Lage nahe dem Schottentor ermöglicht eine rasche Anbindung an den ersten Bezirk. Zahlreiche Restaurants, Cafés und Einkaufsmöglichkeiten befinden sich in unmittelbarer Umgebung, ebenso wie mehrere öffentliche Verkehrsmittel, die bequem fußläufig erreichbar sind.

Ein gekühlter Serverraum (CAT 5e) ist vorhanden - die Verkabelung erfolgt über Bodendosen. Die Fläche wird mittels Fan-Coils gekühlt.

Zusätzlich zu den o.a. Betriebskosten werden aktuell noch EUR 317,54 (netto) für Heizkosten vorgeschrieben.

Aufteilung

* 9 Büroräume
* Empfangsbereich
* 2 getrennte WC Einheiten
* Teeküche
* gekühlter Serverraum (CAT 5e)

Verkehrsanbindung & Infrastruktur

U-Bahn:           U2
Straßenbahn:   37,38,39,40,41,2,43,44,1, 2, D

Buslinien:         1A, 2A, 3A, Flughafenbus VAL 2

Disclaimer

Die in diesem Exposé enthaltenen Bilder dienen der Veranschaulichung und können teilweise computergenerierte Visualisierungen (Renderings) beinhalten. Diese Darstellungen sollen einen Eindruck von der möglichen Gestaltung der Immobilie vermitteln, stellen jedoch keine verbindliche Beschaffenheitsangabe dar. 

 

Alle Preise verstehen sich zuzüglich der gesetzlichen Umsatzsteuer.

 

Infrastruktur / Entfernungen

Gesundheit
Arzt <500m
Apotheke <500m
Klinik <500m
Krankenhaus <1.500m

Kinder & Schulen
Schule <500m
Kindergarten <1.000m
Universität <500m
Höhere Schule <1.000m

Nahversorgung
Supermarkt <500m
Bäckerei <500m
Einkaufszentrum <2.000m

Sonstige
Geldautomat <500m
Bank <500m
Post <500m
Polizei <500m

Verkehr
Bus <500m
U-Bahn <500m
Straßenbahn <500m
Bahnhof <500m
Autobahnanschluss <3.000m

Angaben Entfernung Luftlinie / Quelle: OpenStreetMap
Beschreibung weiterlesen

Lage und Verkehrsanbindung

Schottentor

Energieeffizienz

HWB:
89,1 kWh/(m²*a)
HWB Klasse:
C
fGEE:
1,59
fGEE Klasse:
C
Energieausweisart:
Energiebedarfs-ausweis
Gültig bis:
19.07.2032

Grundriss

Lageplan

1090 Wien | Wien 9., Alsergrund

Lade...
Harald Anderlik

Harald Anderlik
Leitung Büroimmobilien

EDEX Immobilien GmbH

Lade...

Fotomix

Bild 1 Bild 2 Bild 3 Bild 4 Bild 5 Bild 6 Bild 7 Bild 8 Bild 9 Bild 10 Bild 11 Bild 12 Bild 13