NEU - Gut erhaltenes Einfamilienhaus in Ötvöskónyi, Süd-Transdanubien zum Verkauf

Haus zum Kauf in 7511 Ötvöskónyi - Kaufpreis: 110.000 € / Objektnummer: 1423
Ausstattung: Zentralheizung
1_Fassade
2_Fassade
3_Fassade
4_Tor
6_Fassade
7_Fassade
8_Fassade
9_Innenhof
10_Garage
12_überdachte Sitzplätze
13_Küche, Esszimmer
14_Küche, Esszimmer
15_Küche, Esszimmer
16_Hausflur
17_Haushaltsraum
18_Wohnzimmer
19_Wohnzimmer
21_Zimmer
20_Zimmer
23_Badezimmer
25_Zimmer
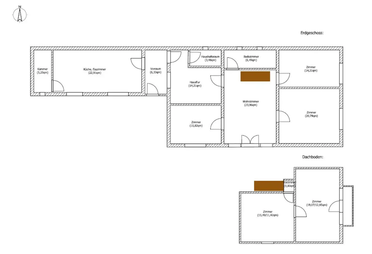
Grundriss

Preisinformationen

Kaufpreis:
110.000 €
Preisinfos:
Fixpreis
Provision:
4.00 %

Fakten

Objektnummer:
1423
Objekttyp:
Haus
Wohnfläche:
155 m²
Grundstücksfläche:
1.103 m²
Zimmer:
6
Badezimmer:
1
Toilette:
1
Baujahr:
ca. 1980
Zustand:
Gepflegt
Verfügbarkeit:
Verfügbar

Beschreibung

In der Nähe von Nagyatád befindet sich dieses gut erhaltene Einfamilienhaus in 7511 Ötvöskónyi. Das Wohngebäude wurde im Jahr 1984 in Ziegelbauweise mit teilweisem Untergeschoss, Erdgeschoss und Dachgeschoss errichtet.

Der Wohnbereich im Erdgeschoss umfasst 3 Zimmer (20,79 m2, 14,21 m2, 11,82 m2) und ein Wohnzimmer mit 23,96 m2, während sich im Dachgeschoss 2 Zimmer mit 15,49 m2, 19,07 m2) befinden. Das Erdgeschoss verfügt über eine geräumige Küche mit Essbereich (22,91 m2) und Abstellkammer (5,25 m2), ein Badezimmer (6,49 m2), einen Haushaltsraum (3,48 m2), einen Vorraum (6,33 m2) und der Hausflur mit 14,21 m2.

Vor etwa 10 Jahren wurde das Gebäude modernisiert und erhielt eine Fassadendämmung, eine Badsanierung und wurde ausgemalt. Geheizt wird mit einem Mischbrennstoffkessel.

Hinter dem Wohngebäude befinden sich zusätzliche Gebäude, die sich zur Lagerung und Tierhaltung eignen. Eine separate Garage befindet sich auf dem Grundstück. Das Anwesen verfügt über ein geräumiges und gepflegtes Grundstück mit einer Größe von 1103 m2.
Die Immobilie ist an das öffentliche Versorgungsnetz der Gemeinde angeschlossen.

Ötvöskónyi ist ein gut organisiertes Dorf mit 924 Einwohnern und liegt 6 Kilometer nördlich von Nagyatád, entlang der Straße 68, 55 km vom Balaton und 42 km von der Autobahn M7 entfernt.
Der nördliche Teil des Dorfzentrums zweigt von der Straße 68 auf die Straße 6622 in Richtung Beleg und Kutas ab. Die Bahnstrecke Dombóvár–Gyékényes verläuft ebenfalls durch das Gebiet, mit einer Haltestelle am Bahnhof Ötvöskónyi.
Das Dorf verfügt über eine gut erreichbare Infrastruktur, und weitere Versorgungen können in der nahegelegenen Stadt Nagyatád in Anspruch genommen werden.

Der derzeitige Verkaufspreis beträgt Euro 110 000 + 4% Provision + Anwaltskosten + staatliche Steuern.
Beschreibung weiterlesen

Lageplan

7511 Ötvöskónyi

Lade...
Robert Hauer

Robert Hauer

ImmoTrading GmbH

Lade...

Fotomix

1_Fassade 2_Fassade 3_Fassade 4_Tor 6_Fassade 7_Fassade 8_Fassade 9_Innenhof 10_Garage 12_überdachte Sitzplätze 13_Küche, Esszimmer 14_Küche, Esszimmer 15_Küche, Esszimmer 16_Hausflur 17_Haushaltsraum 18_Wohnzimmer 19_Wohnzimmer 21_Zimmer 20_Zimmer 23_Badezimmer 25_Zimmer Grundriss