NEU - Helle 3-Zi-Wohnung in 1100 Wien, 85m², Balkon, Lift, Einbauküche, Top Preis!

Wohnung zum Kauf in 1100 Wien - Kaufpreis: 329.000 € / Objektnummer: 7191/239
Ausstattung: Boden Fahrstuhl Bad Möbliert Abstellraum Zentralheizung

Preisinformationen

Kaufpreis:
329.000 €
Kaufpreis/m²
3.888,89 €
Betriebskosten netto:
195,98 € / Monat
Vermittlungsprovision:
Ja
Provision:
3% des Kaufpreises zzgl. 20% USt.

Fakten

Objektnummer:
7191/239
Objekttyp:
Wohnung
Keller Fläche:
6,29 m²
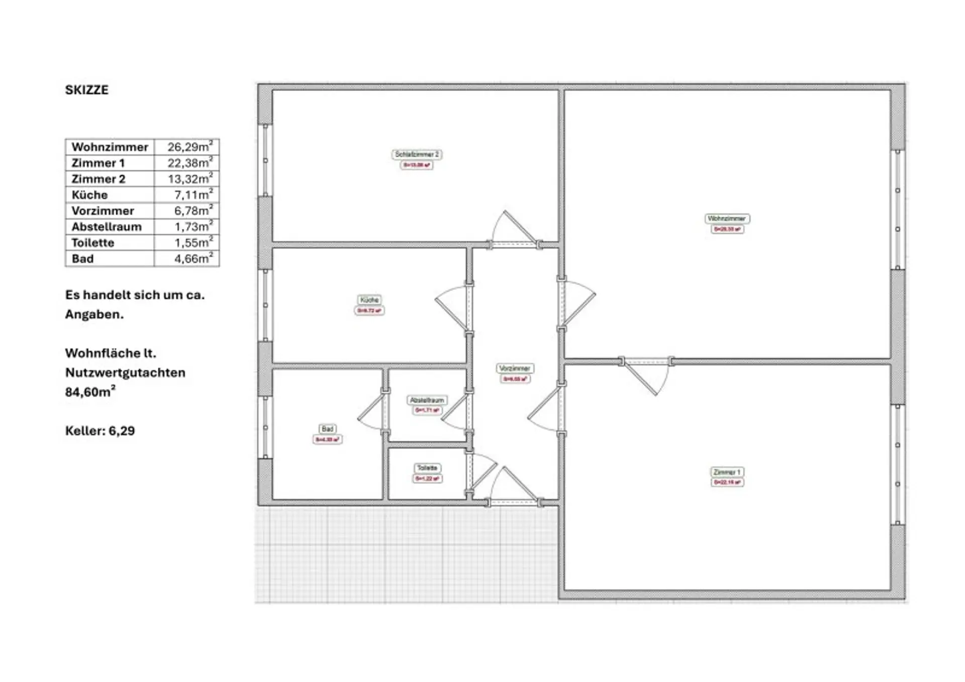
Wohnfläche:
84,6 m²
Zimmer:
3
Badezimmer:
1
Toilette:
1
Stockwerk:
5
Baujahr:
1958
Neubau:
Ja
Zustand:
Gepflegt
Verfügbarkeit:
Verfügbar

Beschreibung

HERZLICH WILLKOMMEN IN IHREM NEUEN ZUHAUSE IM 10. WIENER GEMEINDEBEZIRK!

Diese attraktive Wohnung in der 5. Etage bietet Ihnen auf großzügigen 84,6 m² Wohnfläche viel Platz zum Wohlfühlen und Entspannen. Mit insgesamt 3 Zimmern und separater Küche ist die Wohnung ideal für Paare, kleine Familien oder auch als stilvolle Single-Wohnung mit großzügigem Raumangebot geeignet.

Den Halbstock oberhalb der 5 Etage sowie auch das Kellergeschoß erreicht man bequem mit dem Aufzug. So sind Getränke und der Einkauf schnell in der Wohnung und die Ski oder das Fahrrad schnell im großzügigen Keller verstaut.

Die gepflegte Immobilie besticht durch eine gute Raumaufteilung und zentral begehbare Zimmer. Parkettböden verleihen den Wohnräumen ein behagliches Ambiente. Die zentrale Gas-Zentralheizung sorgt für wohlige Wärme auch an kalten Tagen. Der im Wohnzimmer platzierte Ofen dient nur noch dekorativen Zwecken, wäre aber voraussichtlich auch zu reaktivieren. 

Die Einbauküche lädt dazu ein, kulinarische Köstlichkeiten zu zaubern und durch die separate Lage den Gästen den Blick auf Teller und Co zu ersparen .

Das Tageslichtbad mit Fenster in den weitläufigen Innenhof bietet Ihnen täglich einen hellen und freundlichen Ort der Erholung. 

Ein weiterer Pluspunkt sind die hervorragenden Verkehrsanbindungen: Bus, U-Bahn und Straßenbahn befinden sich in unmittelbarer Nähe, sodass Sie schnell und unkompliziert in ganz Wien unterwegs sind. Auch der Bahnhof und der Autobahnanschluss sind gut erreichbar, was die Mobilität zusätzlich erhöht. Die U-Bahn erreichen sie in 3 Gehminuten! 

 

NUTZEN SIE DIE DERZEIT NOCH GÜLTIGE GEBÜHRENBEFREIUNG BEI HAUPTWOHNSITZBEGRÜNDUNG UND SPAREN SIE SICH DIE EINTRAGUNGSGEBÜHREN SOWIE DIE PFANDRECHTSEINTRAGUNG BEI FINANZIERUNG. 

Der Kaufpreis von 329.000,00 € bietet Ihnen eine hervorragende Gelegenheit, in eine gut gelegene und gepflegte Wohnung in einem dynamischen und lebendigen Stadtteil Wiens zu investieren. Lassen Sie sich diese Chance nicht entgehen und vereinbaren Sie noch heute einen Besichtigungstermin. Ihr neues Zuhause in 1100 Wien wartet auf Sie!

 

HIGHLIGHTS

* Personenlift vorhanden
* Zentral begehbare Zimmer
* 2 Schlafzimmer
* Separate Küche
* Querlüften möglich (1 Seite Innenhof, eine Seite Straßenseitig)
* Große Distanzflächen zu den Nachbarhäusern
* Tageslichtbad
* Bad und Wc getrennt
* Großes Kellerabteil von Rd. 6,3m²
* Top Verkehrsanbindung
* FÜR INVESTOREN: Freier Mietzins!

 

Mehr Fotos finden Sie im Expose, einfach anfragen wir senden Ihnen umgehend alle Informationen.

Der Vermittler ist als Doppelmakler tätig.

Infrastruktur / Entfernungen

Gesundheit
Arzt <500m
Apotheke <500m
Klinik <1.000m
Krankenhaus <2.500m

Kinder & Schulen
Schule <500m
Kindergarten <500m
Universität <1.000m
Höhere Schule <3.000m

Nahversorgung
Supermarkt <500m
Bäckerei <500m
Einkaufszentrum <1.500m

Sonstige
Geldautomat <500m
Bank <500m
Post <500m
Polizei <1.000m

Verkehr
Bus <500m
U-Bahn <500m
Straßenbahn <500m
Bahnhof <500m
Autobahnanschluss <1.000m

Angaben Entfernung Luftlinie / Quelle: OpenStreetMap
Beschreibung weiterlesen

Lage und Verkehrsanbindung

Direkt auf der Favoritenstraße gelegen, bietet diese Lage alles was das Herz begehrt, Gastronomie, Lebensmittelhandel, Banken, Apotheken, Ärzte und natürlich die öffentliche Anbindung. Man erreicht alles was man zum Leben braucht in 2-3 Minuten zu Fuß! Mit dem Auto ist man in 5 Minuten auf der A23, am Gürtel oder bei sonstiger wichtiger Anbindung des Individualverkehrs.

Kirche St. Anton und U1

Energieeffizienz

HWB:
176 kWh/(m²*a)
HWB Klasse:
E
fGEE:
3,39
fGEE Klasse:
F
Energieausweisart:
Energiebedarfs-ausweis
Gültig bis:
27.07.2029

Grundriss

Lageplan

1100 Wien | Wien 10., Favoriten

Lade...
Robert Holzmann

Robert Holzmann
Konzess. Immobilienmakler

Hillinger Immobilien GmbH

Lade...

Fotomix

Bild 1 Bild 2 Bild 3 Bild 4 Bild 5 Bild 6 Bild 7 Bild 8 Bild 9 Bild 10 Bild 11 Bild 12 Bild 13 Bild 14 Bild 15 Bild 16 Bild 17