NEU - Helle 3-Zimmer-Wohnung im 2. Liftstock | Ideal für Paare, Familien oder Anleger

Wohnung zum Kauf in 1170 Wien - Kaufpreis: 220.000 € / Objektnummer: 3121
Ausstattung: Fahrstuhl Etagenheizung WG geeignet
Wohnzimmer2_ki bearbeitet
Wohnzimmer_ki bearbeitet
Vorzimmer_ki bearbeitet
Schlafzimmer1_ki bearbeitet
Schlafzimmer2_ki bearbeitet
Küche_ki bearbeitet
Kabinett2_ki bearbeitet
Kabinett_ki bearbeitet
Abstellraum_ki bearbeitet
Badezimmer_ki bearbeitet
WC_ki bearbeitet
IMG_5143
IMG_5133
IMG_5134
IMG_5135
IMG_4892
IMG_4893
Gutschein
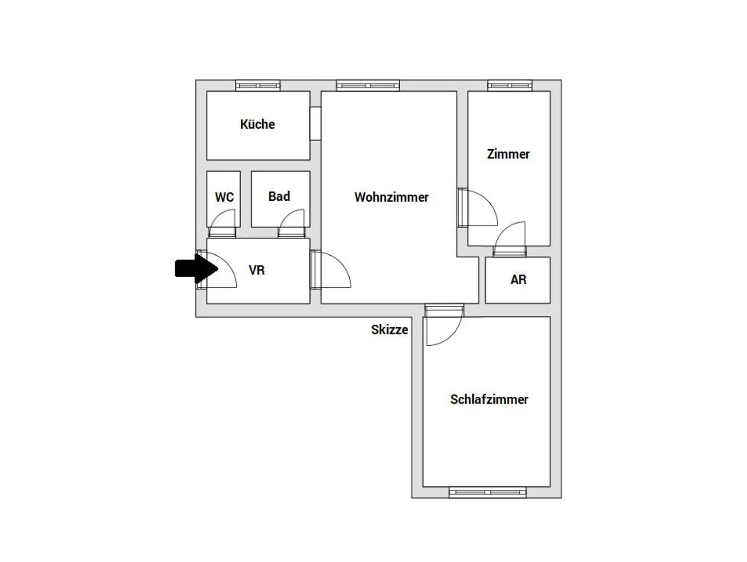
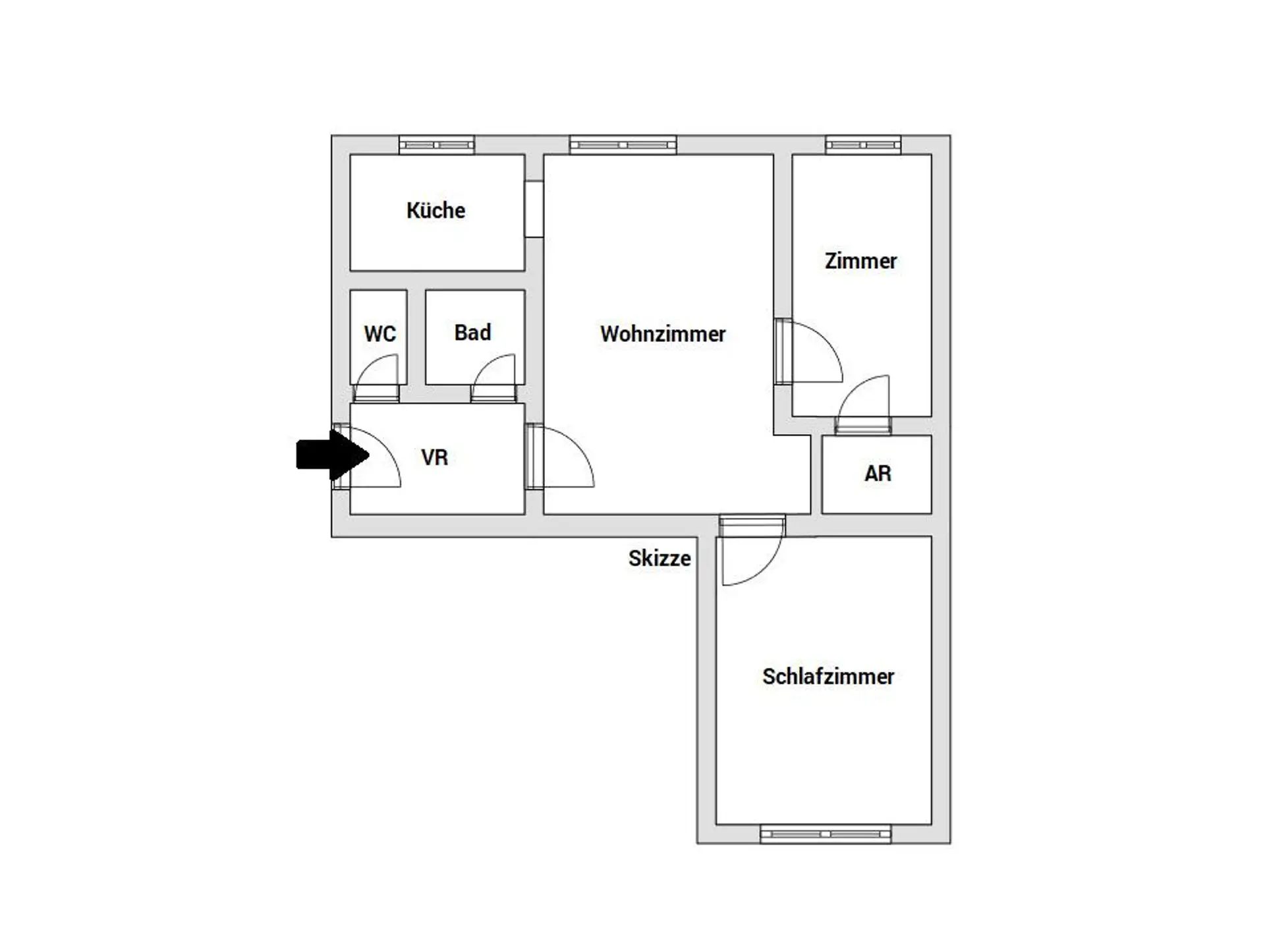
Skizze_1170_Steinergasse_SC

Preisinformationen

Kaufpreis:
220.000 €
Betriebskosten netto:
259,21 € / Monat
Preisinfos:
Fixpreis
Provision:
3.00 %

Fakten

Objektnummer:
3121
Objekttyp:
Wohnung
Wohnfläche:
63,43 m²
Zimmer:
3
Badezimmer:
1
Toilette:
1
Stockwerk:
2
Baujahr:
1965
Neubau:
Ja
Zustand:
Gepflegt
Verfügbarkeit:
Verfügbar

Beschreibung

Zum Verkauf steht eine hervorragend geschnittene 3-Zimmer-Wohnung mit 63,43 m² im 2. Liftstock eines gepflegten, thermisch sanierten Mehrparteienhauses (Baujahr ca. 1965). Die Wohnung überzeugt durch ihre hellen Räume, eine durchdachte Grundrissgestaltung sowie vielseitige Nutzungsmöglichkeiten.

Highlights auf einen Blick

* 63,43 m² -  3 Zimmer: Wohnzimmer ca. 19 m², Schlafzimmer ca. 18 m², Kabinett ca. 10 m²
* Separate Küche (hofseitig)
* Badezimmer mit Badewanne & Duschvorrichtung
* Separates WC
* Praktischer Abstellraum
* Ost-West-Ausrichtung
* 2. Liftstock
* Kellerabteil
* Thermisch saniertes Gebäude
* Fahrradraum, Waschküche, Innenhof zum Be- und Entladen von Autos
* KFZ-Stellplätze im gegenüberliegenden Haus anmietbar

Raumaufteilung

Man betritt die Wohnung und befindet sich im Vorraum mit Garderobenbereich, der ausreichend Platz für Stauraum bietet. Direkt links befindet sich das separate WC, daneben das Badezimmer mit Badewanne und integrierter Duschvorrichtung.

Das großzügige Wohnzimmer (ca. 19 m²) bildet das Zentrum der Wohnung. Von hier aus sind sämtliche Räume getrennt begehbar – ein klarer Vorteil für Familien oder Wohngemeinschaften.

Vom Wohnzimmer aus erreichen Sie:

* die separate Küche (hofseitig, ruhig gelegen, voll funktionstüchtig)
* das Kabinett (ca. 10 m²) mit zusätzlichem Abstellraum – ideal als Kinderzimmer oder Homeoffice
* das Schlafzimmer (ca. 18 m²), angenehm zur ruhigen Gasse orientiert

Wohnzimmer, Kabinett und Küche sind hofseitig gelegen und dadurch besonders ruhig.

Die Ost-West-Ausrichtung sorgt für gute Lichtverhältnisse zu unterschiedlichen Tageszeiten.

Gebäude & Allgemeinflächen

Das Wohnhaus wurde ca. 1965 errichtet und verfügt über insgesamt 35 Wohneinheiten auf zwei Stiegen. Eine thermische Sanierung (Tewosan; Darlehen 2023 abbezahlt) wurde bereits durchgeführt, was sich positiv auf Energieeffizienz und Wohnkomfort auswirkt. Auch Elektro-Steigleitungen wurden erneuert. Das zugehörige Darlehen läuft bis Ende 2029 und wird monatlich mit einem Betrag von 15,40 Euro über die Betriebskosten abgerechnet. Die Hausgemeinschaft gilt als freundlich und ruhig.

Lage & Infrastruktur

Die Wohnung befindet sich im 17. Bezirk/Hernals in zentraler Lage in einer Seitengasse zur Ottakringer Straße. Die Umgebung bietet: sehr gute öffentliche Verkehrsanbindung, Einkaufsmöglichkeiten in fußläufiger Distanz, Gastronomie und Nahversorgung, ruhige Wohnlage mit urbaner Infrastruktur.

In unmittelbarer Nähe finden Sie alles, was Sie für den täglichen Bedarf benötigen. Ob Arzt, Apotheke, Klinik oder Krankenhaus AKH – Ihre Gesundheit ist bestens versorgt. Familien profitieren von der Nähe zu Schulen, Kindergärten. Für den Einkauf stehen Supermärkte, Bäckereien und der Brunnen/Yppenmarkt, die fußläufig erreichbar sind.

Verkehrsanbindung

* Straßenbahnlinien 43 & 44 – ca. 5 Gehminuten
* U6 Alser Straße – unter 10 Gehminuten
* Flughafen Wien – ca. 30 Minuten (A4)
* Westautobahn A1 – ca. 15 Minuten
* Südautobahn A2 – ca. 25 Minuten

Nutzungspotenzial: 

Diese Wohnung eignet sich ideal als:

* Starterwohnung für Paare
* Zuhause für eine Kleinfamilie
* WG-taugliche Einheit
* Attraktives Anlageobjekt

Durch die getrennt begehbaren Räume, das separate WC und die separate Küche ist eine nachhaltige Vermietbarkeit sehr gut gegeben.

Fazit

Eine helle, funktional geschnittene 3-Zimmer-Wohnung mit Lift, guter Infrastruktur und solider Gebäudesubstanz – sowohl für Eigennutzer als auch für Anleger eine attraktive Gelegenheit.

Besichtigung

Gerne zeigen wir Ihnen die Wohnung im Rahmen eines persönlichen Besichtigungstermins. Wir freuen uns auf Ihre Kontaktaufnahme.

Finanzierung

In Kooperation mit erfahrenen Finanzierungspartnern unterstützen wir Sie gerne bei der Strukturierung Ihrer individuellen Finanzierungslösung.

 

Wir weisen darauf hin, dass wir bei diesem Objekt als Doppelmakler tätig sind (§ 5 Abs. 3 MaklerG).
Auf ein wirtschaftliches oder familiäres Naheverhältnis im Sinne des § 6 Abs. 4 MaklerG wird hingewiesen.

Hinweis: Bilder wurden mittels KI bearbeitet.

Wir weisen darauf hin, dass zwischen dem Vermittler und dem zu vermittelnden Dritten ein familiäres oder wirtschaftliches Naheverhältnis besteht.

Der Vermittler ist als Doppelmakler tätig.
Beschreibung weiterlesen

Energieeffizienz

HWB:
43,9 kWh/(m²*a)
HWB Klasse:
B
fGEE:
1,17
fGEE Klasse:
C
Energieausweisart:
Energiebedarfs-ausweis

Lageplan

1170 Wien | Wien 17., Hernals

Lade...
Sophie Cogorno

Sophie Cogorno

RE/MAX 4You in Wien-Hernals

Lade...

Fotomix

Wohnzimmer2_ki bearbeitet Wohnzimmer_ki bearbeitet Vorzimmer_ki bearbeitet Schlafzimmer1_ki bearbeitet Schlafzimmer2_ki bearbeitet Küche_ki bearbeitet Kabinett2_ki bearbeitet Kabinett_ki bearbeitet Abstellraum_ki bearbeitet Badezimmer_ki bearbeitet WC_ki bearbeitet IMG_5143 IMG_5133 IMG_5134 IMG_5135 IMG_4892 IMG_4893 Gutschein Skizze_1170_Steinergasse_SC