NEU - Helle 3-Zimmer-Wohnung im 2. Liftstock nahe Türkenschanzpark/Gersthofer Platz

Wohnung zum Kauf in 1180 Wien - Kaufpreis: 425.000 € / Objektnummer: 1619/100046
Ausstattung: Fahrstuhl Zentralheizung
Küche
Küche
Küche
Bad
Bad
Bad
Vorraum
Stiegenhaus
Stiegenhaus
Stiegenhaus
Stiegenhaus
Hausansicht
Plan 4 Zimmer
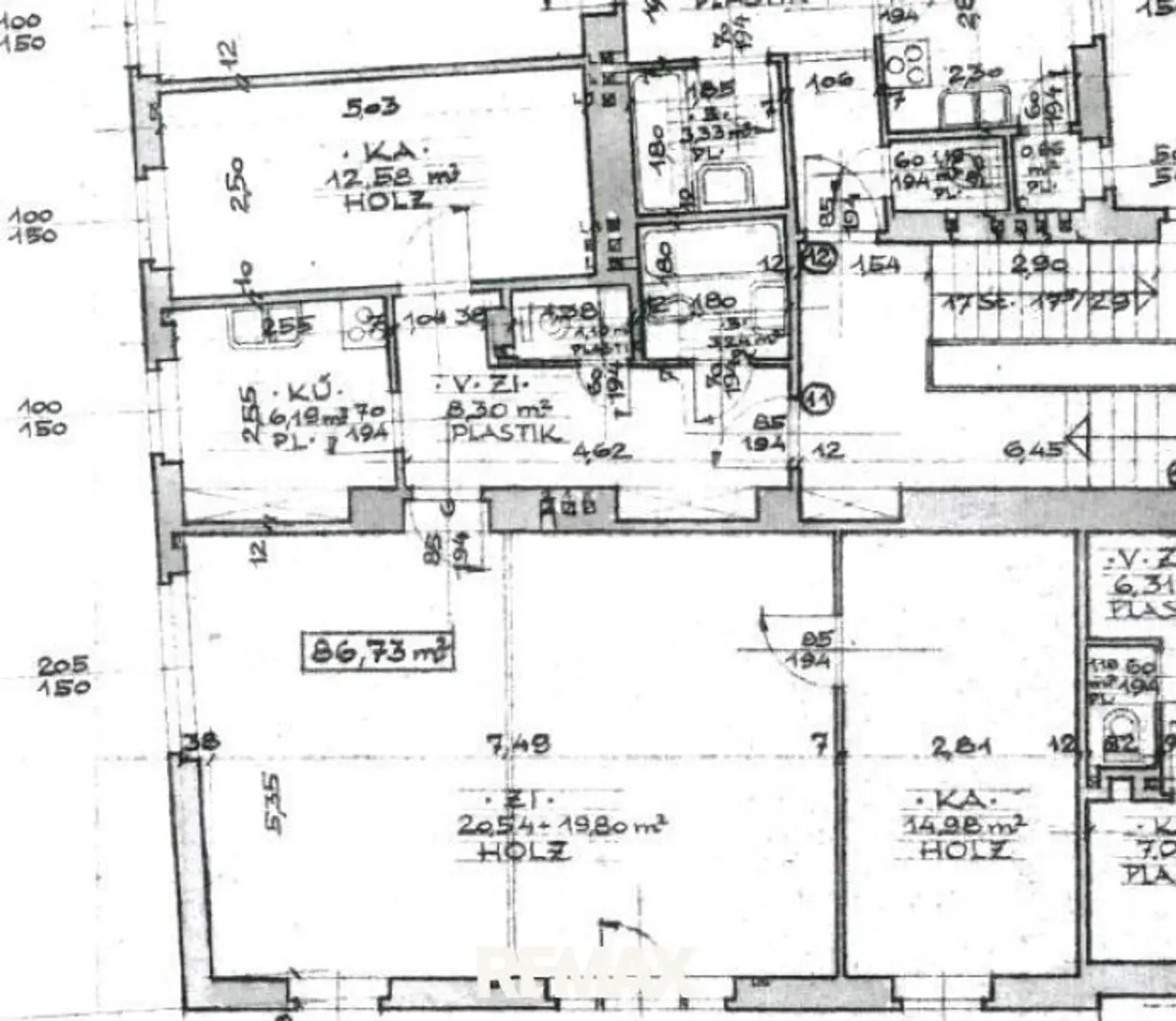
Plan 3 Zimmer (aktuell)
Wohnungsplan

Preisinformationen

Kaufpreis:
425.000 €
Vermittlungsprovision:
Ja
Provision:
3% des Kaufpreises zzgl. 20% USt.

Fakten

Objektnummer:
1619/100046
Objekttyp:
Wohnung
Wohnfläche:
87 m²
Zimmer:
3
Badezimmer:
1
Toilette:
1
Baujahr:
1959
Zustand:
Sanierungsbedürftig
Verfügbarkeit:
Verfügbar

Beschreibung

Zum Verkauf gelangt diese süd-westseitige Eckwohnung im 2. Stock nahe Gersthofer Platz, S-Bahn Gersthof und Türkenschanzpark

Raumaufteilung

Aus dem Vorraum gelangen Sie in das ca. 40m² große Eckzimmer (welches ursprünglich zwei ca. 20m² große Zimmer waren und durch Aufstellen einer Wand einfach wieder getrennt werden könnte)
sowie das zweite, ca. 12,5m² große Zimmer, die separate Küche, das Bad mit Dusche und das separate WC.
Das ca. 15 m² große Zimmer können Sie über eines der Zimmer betreten.
Zur Wohnung gehören auch zwei Kellerabteile.

Die Highlights auf einen Blick:
- süd-west-seitiges, helles Eckzimmer
- separate Küche mit Fenster
- ruhige Gersthofer Lage
- beste Infrastruktur mit allen Einkaufsmöglichkeiten auf der Gersthofer Straße und der Währinger Einkaufsstraße

Umgebung:
gute öffentliche Anbindung durch S-Bahn Gersthof, Straßenbahnlinien 40, 41 sowie 10A, 42A
Gersthofer Straße und Währinger Einkaufsstraße - sämtliche Geschäfte des täglichen Bedarfs sowie div. Lokale und Restaurants vorhanden
Türkenschanzpark

Monatsvorschreibung:
Betriebskosten inkl. USt.: EUR 197,57
Rep.-Fonds inkl. Darlehensrückzahlung: EUR 203,13
Liftkosten inkl. USt.: EUR 42,43
die Hausverwaltung schreibt auch ein Heizkostenakonto vor
 

Der Vermittler ist als Doppelmakler tätig.

Infrastruktur / Entfernungen

Gesundheit
Arzt <500m
Apotheke <500m
Klinik <1.000m
Krankenhaus <2.000m

Kinder & Schulen
Schule <500m
Kindergarten <500m
Universität <1.000m
Höhere Schule <500m

Nahversorgung
Supermarkt <500m
Bäckerei <500m
Einkaufszentrum <2.000m

Sonstige
Geldautomat <500m
Bank <500m
Post <500m
Polizei <1.000m

Verkehr
Bus <500m
U-Bahn <1.500m
Straßenbahn <500m
Bahnhof <500m
Autobahnanschluss <3.000m

Angaben Entfernung Luftlinie / Quelle: OpenStreetMap
Beschreibung weiterlesen

Lage und Verkehrsanbindung

Ferrogasse, Gersthofer Platz, S-Bahn Gersthof, Türkenschanzpark

Gersthofer Platz, Türkenschanzpark, S-Bahn

Energieeffizienz

HWB:
114 kWh/(m²*a)
HWB Klasse:
D
Energieausweisart:
Energiebedarfs-ausweis

Grundrisse

Lageplan

1180 Wien | Wien 18., Währing

Lade...
Alice Prat (Team Hubert Koller)

Alice Prat (Team Hubert Koller)

RE/MAX Real Experts Immobilien lifetime GmbH

Lade...

Fotomix

Bild 1 Bild 2 Bild 3 Bild 4 Bild 5 Bild 6 Bild 7 Küche Küche Küche Bad Bad Bad Vorraum Stiegenhaus Stiegenhaus Stiegenhaus Stiegenhaus Hausansicht