NEU - Helle 4-Zimmer-Wohnung mit tollem Ausblick im 8. Bezirk - geeignet für eine WG!

Wohnung zur Miete in 1080 Wien - Gesamtmiete: 1.599,00 € / Objektnummer: 247/21442
Ausstattung: Boden Fahrstuhl Abstellraum Etagenheizung
Wohnküche I
Wohnküche
Zimmer 3
Zimmer 1
Küche
Zimmer 2
Zimmer 2 I
Zimmer 1 I
Bad
Ausblick Straße
Wohnküche II
Zimmer 2 AR
Zimmer 3 I
Flur
Hausansicht
Lageplan
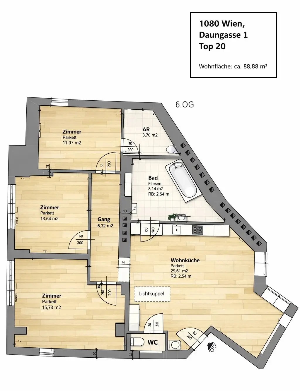
Plan

Preisinformationen

Gesamtmiete:
1.599,00 € / Monat
Nettomiete:
1.067,01 € / Monat
Betriebskosten netto:
386,63 € / Monat
Umsatzsteuer:
145,36 €
Preisinfos:
Abwicklung und Durchführung Mietvertrag: € 200,-
Kaution:
4.800,00 €

Fakten

Objektnummer:
247/21442
Objekttyp:
Wohnung
Wohnfläche:
88,88 m²
Zimmer:
4
Badezimmer:
1
Toilette:
1
Baujahr:
-/Altbau
Altbau:
Ja
Verfügbarkeit:
Verfügbar

Beschreibung

Diese perfekt aufgeteilte 4-Zimmer-Wohnung in der Daungasse im begehrten 8. Bezirk überzeugt mit einem herrlichen Ausblick über die Dächer Wiens und steht nach Absprache zum Bezug bereit. Bitte beachten: Die Fotos aus dem Archiv wurden aus Rücksicht auf die derzeitigen Mieter verwendet. Besichtigungstermine sind nur nach Freigabe durch den aktuellen Mieter möglich – wir bitten um etwas Geduld. Die Wohnung befindet sich im 6. Obergeschoss eines sanierten Altbaus und gliedert sich in einen Eingangsbereich, eine geräumige Wohnküche mit Einbauküche sowie drei Schlafzimmer. Das kleinste der Zimmer verfügt über einen großzügigen Abstellraum/Schrankraum. Komplettiert wird das Raumangebot durch ein Badezimmer sowie eine separate Toilette. Dank der guten Raumaufteilung ist diese Wohnung auch ideal für Wohngemeinschaften geeignet. Einige Highlights: - hervorragender Grundriss - Küche komplett ausgestattet - Badezimmer mit Badewanne und Waschmaschinenanschluss - optimale öffentliche Anbindungen (Buslinie 13A, Straßenbahnlinien 5, 33, 43 und 44) - Restaurants, Cafés und Einkaufsmöglichkeiten in unmittelbarer Nähe Selbstverständlich stehen sowohl Fernseh- als auch Internetanschluss sowie Lift und ein Kellerabteil zur Verfügung. Der monatliche Gesamtmietzins dieser Wohnung beläuft sich auf Euro 1.599,- inklusive Betriebskosten, Lift und USt. Die Heiz- und Warmwasserversorgung erfolgt per Gasetagenheizung und ist im Mietpreis nicht inkludiert. Wir möchten darauf hinweisen, dass unsere Antwort möglicherweise in Ihrem Spamordner landen könnte. Per Telefon werden keine Termine vergeben! Wir bitten Sie, ausschließlich das Kontaktformular der Immobilienplattformen für Anfragen zu nutzen. Nach Erhalt unserer E-Mail antworten Sie bitte auf dieses E-Mail mit Ihrem Besichtigungswunsch. Wir freuen uns auf Ihre Anfrage und einen gemeinsamen Besichtigungstermin!
Beschreibung weiterlesen

Lage und Verkehrsanbindung

Laudongasse

Energieeffizienz

HWB:
150,7 kWh/(m²*a)
HWB Klasse:
E
fGEE:
1,95
fGEE Klasse:
D

Grundrisse

Vivienne Spicak

Vivienne Spicak

IMV Immobilienmakler

Lade...

Fotomix

Wohnküche I Wohnküche Zimmer 3 Zimmer 1 Küche Zimmer 2 Zimmer 2 I Zimmer 1 I Bad Ausblick Straße Wohnküche II Zimmer 2 AR Zimmer 3 I Flur Hausansicht