NEU - Helle und top ausgestattete Neubauwohnung mit Loggia inklusive Garagenplatz - Nähe Alte Donau

Wohnung zur Miete in 1210 Wien - Gesamtmiete: 1.177,11 € / Objektnummer: 14516
Ausstattung: Barrierefrei Boden Fahrstuhl Bad Kabel/Satelliten-TV Garage Parkplatz Fahrradraum Fernwärme Fußbodenheizung Loggia

Preisinformationen

Gesamtmiete:
1.177,11 € / Monat
Betriebskosten netto:
110,88 € / Monat
Umsatzsteuer:
116,37 €
Garage Kosten brutto:
102,83 €
Kaution:
3.531,33 €
Provision:
Gemäß Erstauftraggeberprinzip bezahlt der Abgeber die Provision.

Fakten

Objektnummer:
14516
Objekttyp:
Wohnung
Loggia:
1
Keller Fläche:
4,35 m²
Wohnfläche:
63,94 m²
Loggia Fläche:
3,36 m²
Nutzfläche:
63,94 m²
Zimmer:
2
Badezimmer:
1
Toilette:
1
Stockwerk:
3
Baujahr:
2013
Neubau:
Ja
Zustand:
Neuwertig
Verfügbarkeit:
Verfügbar

Beschreibung

engelreal.at

Ihr Ansprechpartner für dieses Objekt:
Mag. Mira Krauliz
Bitte kontaktieren Sie mich unter Ihrer gewählten Plattform, oder unter mk@engelreal.at

_NACHMIETERSUCHE- Top Neubauwohnung mit Loggia und Garagenplatz!_

_Bitte beachten Sie: 
Gesucht wird eine Nachmieter per 15.4., oder per 1.5._

_Die Besichtigung findet am Dienstag, 24.3. um 17.30 statt, bitte melden Sie sich schriftlich zu diesem Termin an!_

 

In unmittelbarer Nähe des Naherholungsgebietes der alten Donau und des Vorstadtzentrums Bahnhof Wien Floridsdorf  gelangt diese moderne, toll ausgestattete Neubauwohnung mit Loggia in einem in Niedrigenergiebauweise errichteten Neubau (2013) zur  Vermietung.

Wohnung:
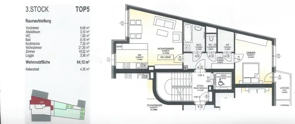
Die Wohnung befindet sich im dritten Stockwerk und verfügt über ein modernes Raumkonzept. Wohnen, Kochen, Essen findet in einem großen Raum mit integrierter Küche (Leiner) statt. Der Bereich Schlafen mit der angegliederten Loggia in Grünruhelage ist gut vom Wohnraum abgegrenzt. Die Nebenräume sind folgende:

Badezimmer mit Badewanne, Waschmaschinenanschluss, Waschbecken, Handtuchtrockner; das WC ist extra, sowie ein Abstellraum;

- die Küche wurde mit allen Geräten voll ausgestattet
- das Objekt verfügt über Außenjalousien, die mittels Kurbel bedient werden können
- in den Wohnräumen wurde ein Eichenparkett verlegt, die Nebenräume und der Vorraum wurden neutral verfliest
- das Haus verfügt über eine SAT- Anlage, Magenta ist ebenfalls vorhanden
- die Wohnung ist mit einer Sicherheitstüre ausgestattet
- geheizt wird mittels Fußbodenheizung, die monatlichen Kosten (Akontozahlungen) für Heizung und Warmwasser betragen EUR 107,62 brutto zuzüglich zur Monatsmiete.
  Gesamt betragen die Kosten daher EUR 1.284,73.
 

Gebäude:

Das gesamte Projekt wurde in Niedrigenergiebauweise errichtet, in Bedachtnahme auf ökologische Aspekte.
Den Wohnungen sind geräumige Keller zugeordnet. Der Personenlift wurde behindertengerecht ausgeführt. Eine Garage ist ausgeführt. Ein Fahrradabstellraum ist auch Bestandteil dieses Angebotes.

Lage:
Das Objekt befindet sich in ca. 10 Minuten Gehentfernung des Naherholungsgebietes der alten Donau, der idyllischen Freizeitoase. Auch das Vorstadtzentrum Bahnhof Floridsdorf mit seinen Verbindungen U6, S- Bahn, Regionalbussen und zahlreichen Einkaufsmöglichkeiten ist in ca. 12 Gehminuten erreicht. Die U- Bahnstation Kagran erreicht man mittels Straßenbahn in ca. 16 -19 Minuten.
Geschäfte des täglichen Bedarfs; Schulen und ein Kindergarten befinden sich in der unmittelbaren Umgebung.

Für weitere Informationen oder für die Vereinbarung eines Besichtigungstermines kontaktieren Sie bitte
Mag. Mira Krauliz unter der gewählten Immobilienplattform, oder unter mk@ngelreal.at.
Bitte besuchen Sie engelreal.at um sich einen Überblick über uns und unsere Angebote zu verschaffen.

engelreal.at

Wir weisen darauf hin, dass zwischen dem Vermittler und dem zu vermittelnden Dritten ein familiäres oder wirtschaftliches Naheverhältnis besteht.

Der Immobilienmakler erklärt, dass er – entgegen dem in der Immobilienwirtschaft üblichen Geschäftsgebrauch des Doppelmaklers – einseitig nur für den Vermieter tätig ist.

Infrastruktur / Entfernungen

Gesundheit
Arzt <500m
Apotheke <500m
Klinik <1.000m
Krankenhaus <1.500m

Kinder & Schulen
Schule <500m
Kindergarten <500m
Universität <1.000m
Höhere Schule <1.000m

Nahversorgung
Supermarkt <500m
Bäckerei <500m
Einkaufszentrum <1.000m

Sonstige
Geldautomat <500m
Bank <500m
Post <500m
Polizei <1.000m

Verkehr
Bus <500m
U-Bahn <1.000m
Straßenbahn <500m
Bahnhof <1.000m
Autobahnanschluss <1.500m

Angaben Entfernung Luftlinie / Quelle: OpenStreetMap
Beschreibung weiterlesen

Lage und Verkehrsanbindung

Nähe Alte Donau - Hoßplatz - Donaufelderstraße

U6 Floridsdorf - Naherholungsgebiet Alte Donau

Energieeffizienz

HWB Klasse:
B
fGEE Klasse:
B

Grundriss

Lageplan

1210 Wien | Wien 21., Floridsdorf

Lade...
Mira Krauliz

Mira Krauliz

engelreal immobilien gmbh

Lade...

Fotomix

Bild 1 Bild 2 Bild 3 Bild 4 Bild 5 Bild 6 Bild 7 Bild 8 Bild 9 Bild 10 Bild 11 Bild 12 Bild 13 Bild 14 Bild 15 Bild 16 Bild 17 Bild 18