NEU - Heller 4-Zimmer Erstbezug mit Balkon, Nähe Kutschkermarkt

Wohnung zum Kauf in 1180 Wien - Kaufpreis: 926.000 € / Objektnummer: 5154
Ausstattung: Boden Fahrstuhl Wohnküche / offene Küche Bad Gäste-WC Fahrradraum Abstellraum Fußbodenheizung Balkon

Preisinformationen

Kaufpreis:
926.000 €
Vermittlungsprovision:
Ja
Provision:
3% des Kaufpreises zzgl. 20% USt.

Fakten

Objektnummer:
5154
Objekttyp:
Wohnung
Balkon:
1
Balkonfläche:
9,92 m²
Wohnfläche:
105,99 m²
Zimmer:
4
Badezimmer:
1
Toilette:
2
Stockwerk:
2
Baujahr:
1900
Altbau:
Ja
Zustand:
Erstbezug
Verfügbarkeit:
Verfügbar

Beschreibung

_Im Falle der Notwendigkeit einer Fremdfinanzierung Ihrer Wunschimmobilie ermittelt unser Wohnbau-Finanzierungsexperte gerne die optimale Finanzierungslösung und findet das passende Zins- und Konditionsangebot für Sie. Er vergleicht die aktuellen Angebote aller relevanten Banken und Bausparkassen. Der Angebotsvergleich kann aus einem Portfolio von über 120 Banken erfolgen. Das Erstgespräch ist für Sie kostenfrei und unverbindlich, gerne auch bei Ihnen vor Ort. So sparen Sie Ihre wertvolle Zeit und erhalten eine professionelle und unabhängige Finanzierungslösung vom Spezialisten. Sprechen Sie uns wegen eines Termins gerne an!_

 

Zu Verkauf gelangt eine helle 4-Zimmer Wohnung im 18. Wiener Gemeindebezirk.

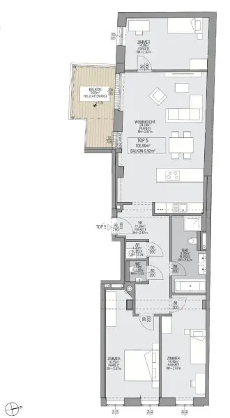
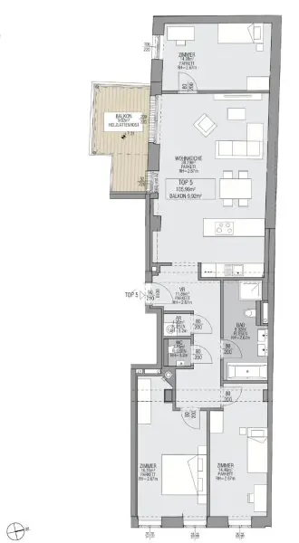
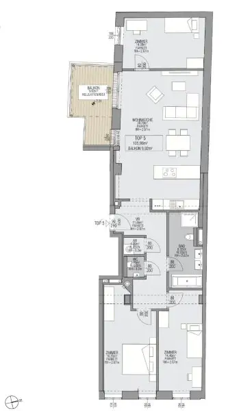
Diese helle 4-Zimmer Wohnung mit ca. 106 m² befindet sich im 2. Liftstock, eines charmanten modernisierten Gründerzeithauses, in welchem 9 Wohnungen mit Wohnflächen zwischen 95 m² und 130 m² mit hochwertiger Ausstattung zum Verkauf gelangen. Die Wohnfläche gliedert sich in einen Vorraum, eine Wohnküche, drei Zimmer, ein Badezimmer, einen Abstellraum und eine separate Toilette. Zusätzlich dazu bietet Ihnen das Objekt einen ca. 10 m² großen Balkon. Alle Wohnräume sind mit hochwertigem Eichenparkett ausgestattet, während das Badezimmer mit zeitlos eleganten Fliesen versehen ist. In der gesamten Wohnung sorgt eine Fußbodenheizung für angenehmen Komfort. 

Sie betreten die Wohnung und befinden sich im Vorraum. Links gelangen Sie in eine großzügige Wohnküche mit Anschlüssen für eine offene Küche von hier haben Sie Zugang zum schönen Balkon. Gleich neben der Wohnküche befindet sich eines der Zimmer. Beim Eingang rechts gelangen Sie zu den zwei anderen Schlafzimmern. Der Abstellraum mit Waschmaschinenanschluss und das Badezimmer welches mit einer Badewanne, einer Dusche, einem Doppelwaschbecken und einem WC ausgestattet ist, sowie ein separates WC befinden sich im Vorraum. 

Jede Wohnung verfügt über Freiflächen (Balkone, Terrassen bzw. Grünflächen). Alle Wohnräume sind mit hochwertigem Eichenparkett ausgestattet, während das Badezimmer mit zeitlos eleganten Fliesen versehen ist. In der gesamten Wohnung sorgt eine Fußbodenheizung für angenehmen Komfort. Zusätzlichen Stauraum bietet ein großzügiges Kellerabteil. Im Haus stehen zudem ein Kinderwagen- sowie ein Fahrradabstellraum zur Verfügung. Weiters gibt es eine Garage mit 7 KFZ-Stellplätzen. 

Die Liegenschaft befindet nur wenige Minuten vom Aumannplatz und dem Kutschkermarkt entfernt. In unmittelbarer Gehweite befinden sich diverse Einkaufsmöglichkeiten wie Supermärkte etc. sowie eine optimale öffentliche Verkehrsanbindung durch die Straßenbahnen (9, 40 und 41), der Buslinie (10A) und der S-Bahn (S45) sowie die U-Bahn Linie 6. Die Parks wie der Marie Ebner-Eschenbach-Park, der Türkenschanzpark, der Schubertpark oder der Postsportplatz bieten vielfältige Freizeitmöglichkeiten. Kindergärten und Schulen befinden sich in unmittelbarer Nähe.

Die Vertragserrichtung und Treuhandabwicklung ist an die Kanzlei ENGINDENIZ Rechtsanwälte für Immobilienrecht GmbH (FN 559759a) 1010 Wien, Marc-Aurel-Straße 6/5 gebunden.
Die Kosten betragen 1,5% zzgl. 20% Ust und Barauslagen, sowie zzgl. der Notarkosten für die erforderlichen Unterschriftsbeglaubigungen.

Überzeugen Sie sich selbst von dieser Immobilie.

Gerne lassen wir Ihnen bei ernsthaftem Interesse – vor Kaufanbotlegung – weitere vertrauliche Unterlagen zu dieser Liegenschaft zukommen, welche nicht veröffentlicht werden dürfen.

Für Besichtigungen und nähere Informationen stehen wir Ihnen gerne zur Verfügung!

Frau Marie-Louise Eisenburger
national - Tel: 0676 605 9800 [tel:06766059800]
international - Tel.: +43 676 605 9800 [tel:+436766059800]
e-mail: eisenburger@lifestyle-properties.at

Wir weisen darauf hin, dass zwischen dem Vermittler und dem zu vermittelnden Dritten ein familiäres oder wirtschaftliches Naheverhältnis besteht.

Der Vermittler ist als Doppelmakler tätig.

 

 

Infrastruktur / Entfernungen

Gesundheit
Arzt <500m
Apotheke <500m
Klinik <500m
Krankenhaus <500m

Kinder & Schulen
Schule <500m
Kindergarten <500m
Universität <1.000m
Höhere Schule <1.000m

Nahversorgung
Supermarkt <500m
Bäckerei <500m
Einkaufszentrum <1.500m

Sonstige
Geldautomat <500m
Bank <500m
Post <500m
Polizei <500m

Verkehr
Bus <500m
U-Bahn <500m
Straßenbahn <500m
Bahnhof <500m
Autobahnanschluss <2.500m

Angaben Entfernung Luftlinie / Quelle: OpenStreetMap
Beschreibung weiterlesen

Lage und Verkehrsanbindung

Kutschkermarkt

Energieeffizienz

HWB:
33,5 kWh/(m²*a)
HWB Klasse:
B
fGEE:
0,77
fGEE Klasse:
A
Energieausweisart:
Energiebedarfs-ausweis
Gültig bis:
06.06.2035

Grundriss

Lageplan

1180 Wien | Wien 18., Währing

Lade...
Marie-Louise Eisenburger

Marie-Louise Eisenburger
Real Estate Agent

IM Lifestyle Properties GmbH

Lade...

Fotomix

Bild 1 Bild 2 Bild 3 Bild 4 Bild 5 Bild 6 Bild 7 Bild 8 Bild 9 Bild 10 Bild 11 Bild 12 Bild 13 Bild 14 Bild 15 Bild 16 Bild 17 Bild 18 Bild 19 Bild 20