NEU - Heller Wohntraum mit ruhigem Innenhofbalkon – moderne Innenausstattung, effiziente Luftwärmepumpe & perfekte öffentliche Anbindung

Wohnung zum Kauf in 1170 Wien - Kaufpreis: 322.000 € / Objektnummer: 294076
Ausstattung: Barrierefrei Rollstuhlgerecht Boden Fahrstuhl Wohnküche / offene Küche Bad Fußbodenheizung Balkon

Preisinformationen

Kaufpreis:
322.000 €
Vermittlungsprovision:
Ja
Provision:
3% des Kaufpreises zzgl. 20% USt.

Fakten

Objektnummer:
294076
Objekttyp:
Wohnung
Balkon:
1
Balkonfläche:
2,19 m²
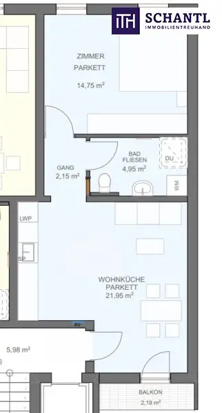
Wohnfläche:
43,8 m²
Zimmer:
2
Badezimmer:
1
Toilette:
1
Stockwerk:
3
Baujahr:
2024
Neubau:
Ja
Letzte Sanierung:
2025
Zustand:
Vollsaniert
Verfügbarkeit:
Verfügbar

Beschreibung

WOHNEN MIT CHARAKTER & KOMFORT – STILVOLL REVITALISIERTES ALTBAUHAUS

Willkommen in Ihrem neuen Zuhause!
Das gesamte Gebäude wird hochwertig revitalisiert und technisch auf den neuesten Stand gebracht. Im Jahr 2025 wurde das Dachgeschoss neu errichtet und erweitert.

Insgesamt entstehen 10 exklusive Wohneinheiten mit Wohnflächen zwischen ca. 36 m² und 82 m² mit attraktiven Außenflächen, die zusätzlichen Freiraum bieten.

Hochwertiger Eichenholzparkettboden sowie Fußbodenheizung in allen Räumen sorgen für ein behagliches Wohngefühl.

Jede Wohnung ist mit einer effizienten Luftwärmepumpe ausgestattet, die nachhaltiges und energieeffizientes Heizen ermöglicht. In den Dachgeschosswohnungen sorgen zusätzlich Klimaanlagen für angenehme Temperaturen an warmen Sommertagen. Elektrische Außenbeschattungen bieten zusätzlichen Komfort und Privatsphäre.

Das Haus verfügt über Kellerabteile und ein Personenlift wird errichtet, der einen barrierefreien Zugang zu allen Wohnungen ermöglicht.

HIGHLIGHTS

*
Fußbodenheizung für behaglichen Wohnkomfort

*
Nachhaltige Luftwärmepumpe – umweltfreundlich & effizient

*
Hochwertiger Eichenholzparkett für zeitlose Eleganz

*
Modernes Badezimmer mit Dusche

*
Hofseitiger Balkon 

 

_Aktuell werden 10 Wohnungen hochwertig und liebevoll saniert.
Hier finden Sie Wohnflächen von 36-82 m² + Außenflächen._

_Jetzt Besichtigungstermin vereinbaren – wir freuen uns auf Ihre Anfrage!_

 

Kaufpreis: 322.000,- €

Wohnfläche 43,80 m² + 2,19 m² Balkon

_Bei den Bildern handelt es sich teilweise um Visualisierungen um die Wohnung bezugsfertig darzustellen - wir weisen darauf hin , dass es hier zu kleinen Abweichungen kommen kann_

Unser Service für Sie: Wenn Sie sich für diese Immobilie entschieden haben, begleiten wir Sie gerne vom Kaufanbot weg inkl. Klärung von Sonderwünschen und der Vertragsunterzeichnung über die Wohnungsübergabe bis hin zu diversen Ummeldungen wie Strom und Gas. Entsprechende Formulare oder auch Meldezettel stellen wir Ihnen sehr gerne zur Verfügung.

Gerne unterstützen wir Sie auch bei der Finanzierung Ihres Traumobjekts und finden mit unseren langjährigen Partnern die besten Konditionen für Sie.

Vereinbaren Sie noch heute einen Termin, wir beraten Sie gerne!

www.schantl-ith.at

Wir weisen darauf hin, dass zwischen dem Vermittler und dem zu vermittelnden Dritten ein familiäres oder wirtschaftliches Naheverhältnis besteht.

Der Vermittler ist als Doppelmakler tätig.

Infrastruktur / Entfernungen

Gesundheit
Arzt <500m
Apotheke <500m
Klinik <500m
Krankenhaus <1.250m

Kinder & Schulen
Schule <500m
Kindergarten <250m
Universität <1.500m
Höhere Schule <1.000m

Nahversorgung
Supermarkt <500m
Bäckerei <250m
Einkaufszentrum <750m

Sonstige
Geldautomat <500m
Bank <500m
Post <500m
Polizei <500m

Verkehr
Bus <250m
U-Bahn <1.000m
Straßenbahn <250m
Bahnhof <1.250m
Autobahnanschluss <4.000m

Angaben Entfernung Luftlinie / Quelle: OpenStreetMap
Beschreibung weiterlesen

Lage und Verkehrsanbindung

Die Wohnung befindet sich in der Mayssengasse im 17. Wiener Gemeindebezirk Hernals, einer gefragten Wohngegend, die urbanes Flair mit hoher Lebensqualität verbindet.

Die Umgebung bietet eine ausgezeichnete Infrastruktur: Einkaufsmöglichkeiten für den täglichen Bedarf, gemütliche Cafés und Restaurants sind fußläufig erreichbar. Auch Schulen, Kindergärten und ärztliche Versorgung befinden sich in unmittelbarer Nähe.
Die öffentliche Anbindung ist hervorragend: Mit der Straßenbahnlinie 2 gelangt man in wenigen Minuten direkt ins Wiener Stadtzentrum. Zudem bestehen Anschlüsse an Buslinien sowie die Schnellbahnstation Hernals, was eine rasche Erreichbarkeit anderer Stadtteile garantiert.

Lorenz-Bayer-Park

Energieeffizienz

HWB:
66,3 kWh/(m²*a)
HWB Klasse:
C
fGEE:
0,57
fGEE Klasse:
A+
Energieausweisart:
Energiebedarfs-ausweis
Gültig bis:
01.04.2035

Grundriss

Lageplan

1170 Wien | Wien 17., Hernals

Lade...
Marlies Sprinzl

Marlies Sprinzl
Projektmanagement und Immobilienvermittlung

Schantl ITH Immobilientreuhand GmbH

Lade...

Fotomix

Bild 1 Bild 2 Bild 3 Bild 4 Bild 5 Bild 6 Bild 7 Bild 8