NEU - Helles, vielseitig nutzbares Geschäftslokal mit Straßenfront an der Neulerchenfelder Straße

Einzelhandel zum Kauf in 1160 Wien - Kaufpreis: 219.000 € / Objektnummer: 11478
Ausstattung: Barrierefrei

Preisinformationen

Kaufpreis:
219.000 €
Betriebskosten netto:
374,19 € / Monat
Vermittlungsprovision:
Ja
Provision:
3% des Kaufpreises zzgl. 20% USt.

Fakten

Objektnummer:
11478
Objekttyp:
Einzelhandel
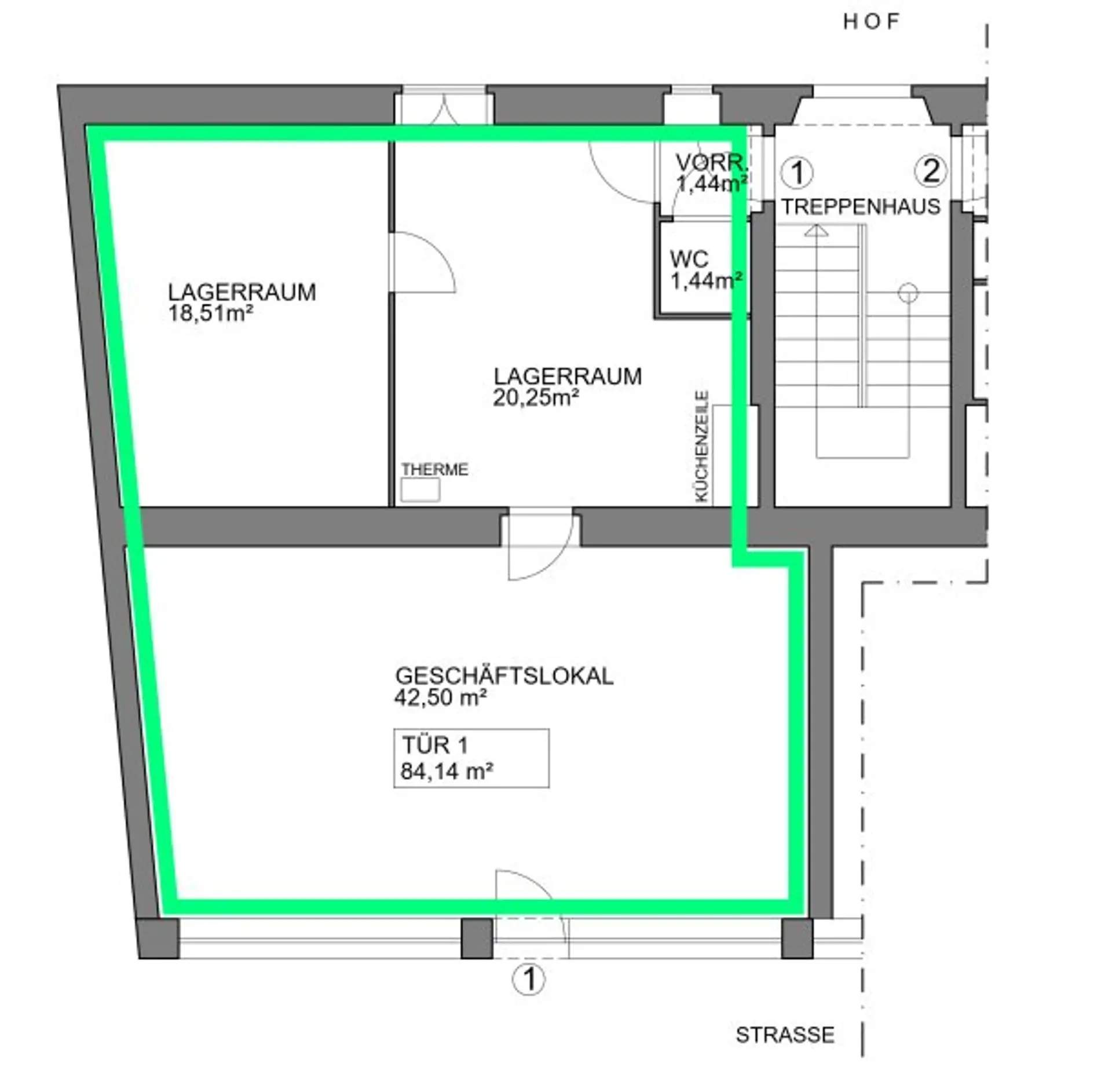
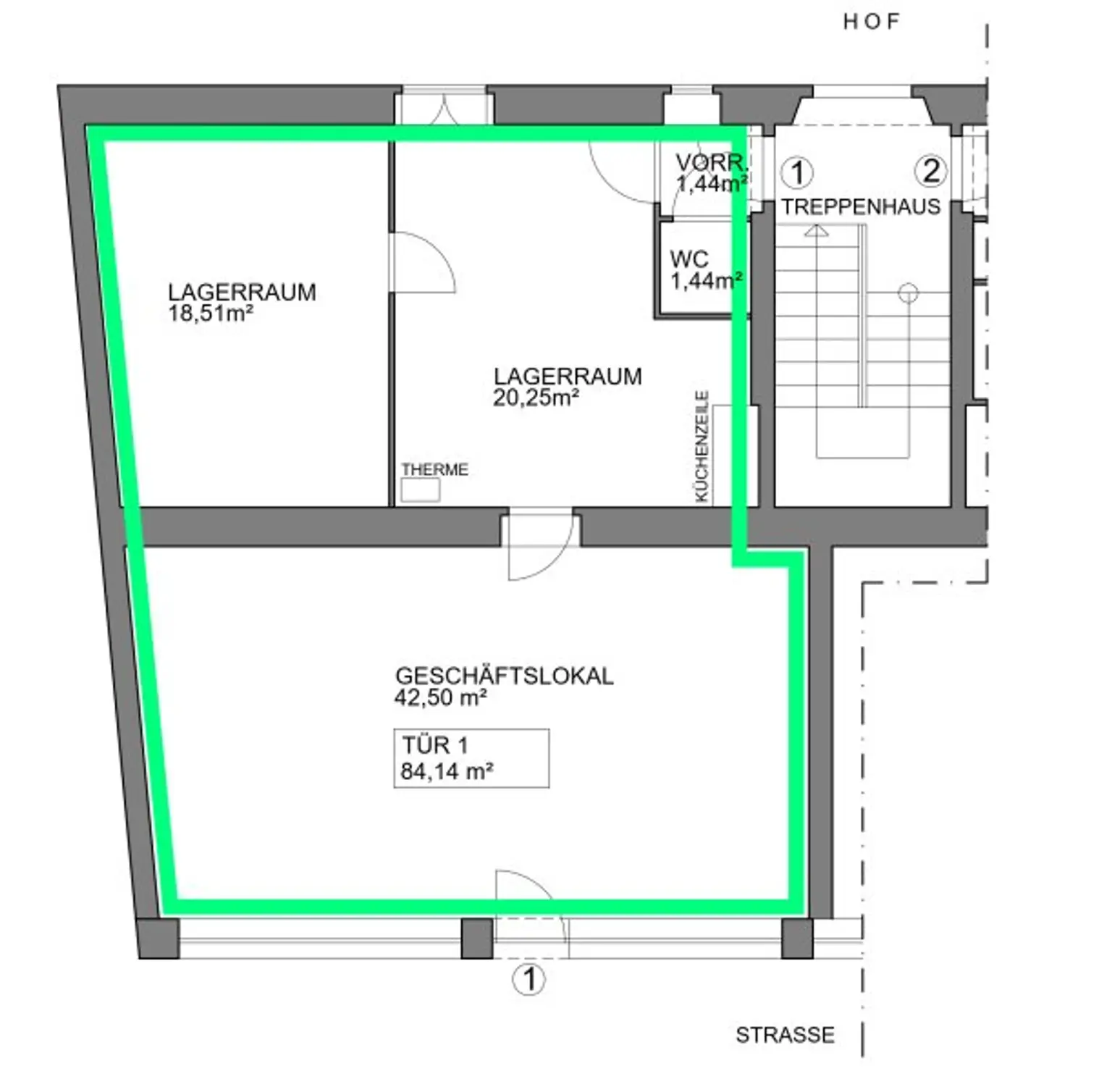
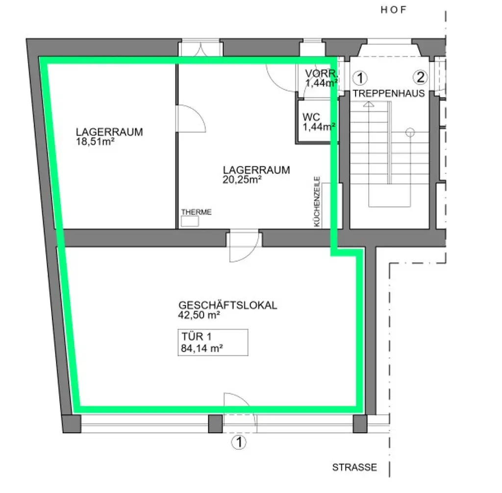
Nutzfläche:
84,14 m²
Gesamtfläche:
84,14 m²
Toilette:
1
Baujahr:
1956
Neubau:
Ja
Verfügbarkeit:
Verfügbar

Beschreibung

Das Geschäftslokal Top 1 befindet sich im Erdgeschoss und bietet einen effizienten Grundriss für diverse Nutzungsmöglichkeiten wie Studio, Praxis, Verkaufsfläche oder Büro. Hier ermöglicht die Lage im Erdgeschoß mit straßenseitiger Ausrichtung hohe Kundenfrequenz und gute Sichtbarkeit.

Adresse: Neulerchenfelder Straße 67, 1160 Wien
Fläche: ca. 84,17 m²

Facts:

*
helle Fläche mit straßenseitigem Eingang

*
Tee-Küche und Aufenthaltsbereich 

*
Separate Lagerbereich

*
Sehr gute Eignung für Dienstleister oder kreative Branchen

Lagebeschreibung – Neulerchenfelder Straße 67

Die Liegenschaft befindet sich in zentraler Lage des 16. Bezirks, nur wenige Gehminuten vom Yppenplatz, Brunnenmarkt und der Ottakringer Straße entfernt. Hohe Fußgängerfrequenz.  Die Anbindung ist ausgezeichnet: Straßenbahnlinien 2 befindet sich direkt vor dem Objekt. Linie 9 und 46 sowie die U6-Station Thaliastraße sind fußläufig erreichbar.

Warum diese Geschäftslokale ideal sind:

*
gute Lage

*
Aufstrebendes Viertel mit viel Entwicklungspotenzial

*
Flexible Nutzungsmöglichkeiten (Handel, Dienstleistung, Atelier etc.)

Noch nichts gefunden? Wir informieren Sie über geeignete Immobilienangebote noch vor allen anderen.
Legen Sie jetzt Ihren individuellen Suchagenten unter folgendem Link an. Wir schicken Ihnen passende Immobilien exklusiv vorab zu.
Suchagent anlegen [https://accenta-immobilien.service.immo/registrieren/de] - https://accenta-immobilien.service.immo/registrieren/de

Der Vermittler ist als Doppelmakler tätig.

Sie wollen auch Ihre Immobilien Verkaufen oder Vermieten?

Accenta Immobilien - Ihr Partner für Immobilienvermittlung
www.accenta-immo.at [https://www.accenta-immo.at/verkaufen]
01/997 12 93
 

Infrastruktur / Entfernungen

Gesundheit
Arzt <250m
Apotheke <250m
Klinik <500m
Krankenhaus <1.250m

Kinder & Schulen
Schule <250m
Kindergarten <250m
Universität <1.250m
Höhere Schule <1.250m

Nahversorgung
Supermarkt <250m
Bäckerei <250m
Einkaufszentrum <1.000m

Sonstige
Geldautomat <250m
Bank <250m
Post <250m
Polizei <500m

Verkehr
Bus <250m
U-Bahn <750m
Straßenbahn <250m
Bahnhof <750m
Autobahnanschluss <4.000m

Angaben Entfernung Luftlinie / Quelle: OpenStreetMap
Beschreibung weiterlesen

Lage und Verkehrsanbindung

Neulerchenfelder Straße

Yppenmarkt, Brunnenmarkt

Energieeffizienz

HWB:
29,5 kWh/(m²*a)
HWB Klasse:
B
fGEE:
1,41
fGEE Klasse:
C
Energieausweisart:
Energiebedarfs-ausweis

Grundriss

Lageplan

1160 Wien | Wien 16., Ottakring

Lade...
Martina Schütz

Martina Schütz
konzessionierte Immobilienmaklerin

Accenta Immobilien e.U.

Lade...

Fotomix

Bild 1 Bild 2 Bild 3 Bild 4 Bild 5