NEU - Hier setzen Sie Ihren Traum, in die Praxis um - JETZT ANFRAGEN

Büro zur Miete in 8020 Graz / Objektnummer: 1756707
Ausstattung: Barrierefrei Boden Klimaanlage

Preisinformationen

Gesamtmiete (exkl. USt.):
1.399,49 € / Monat
Betriebskosten netto:
252,42 € / Monat
Miete/m² netto:
12,50 €
Kaution:
3 Bruttomonatsmieten
Vermittlungsprovision:
Ja
Provision:
3 BMM

Fakten

Objektnummer:
1756707
Objekttyp:
Büro
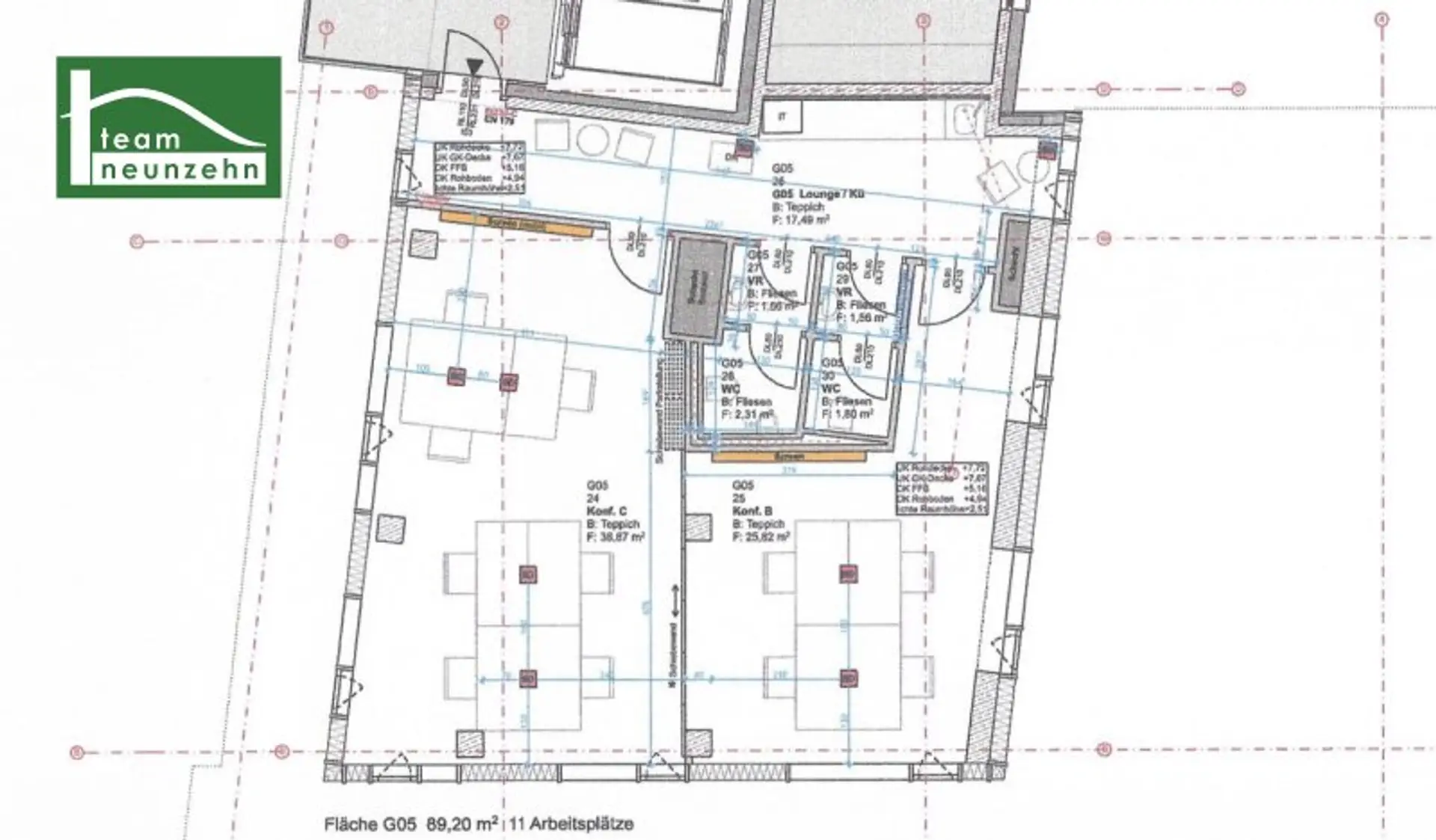
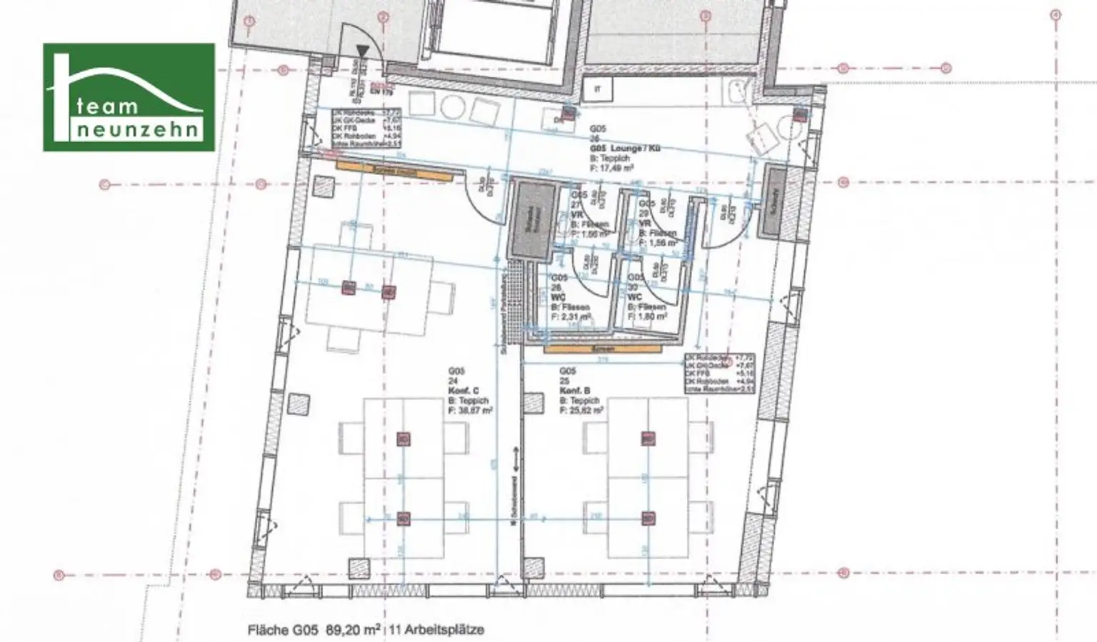
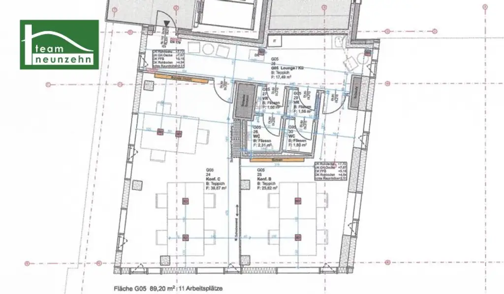
Nutzfläche:
91,63 m²
Bürofläche:
91,79 m²
Stockwerk:
1
Baujahr:
2019
Neubau:
Ja
Zustand:
Gepflegt
Verfügbarkeit:
Verfügbar

Beschreibung

HIER SETZEN SIE IHREN TRAUM, IN DIE PRAXIS UM!

In dieser fertig ausgebauten Gewerbefläche, in einer der aufstrebenden Bezirke von Graz,
können Sie Ihren Praxistraum wahr werden lassen.
Im 1.OG eines gemischten Wohnhauses, befindet sich diese hochwertig ausgestattete Gewerbefläche,
von rund 90m² mit Weitblick über die Reininghausgründe.

 

Konditionen:

> monatlicher netto Hauptmietzins: 12,50 € pro m²
> monatlicher netto Betriebskosten:  2,75 € pro m²

> Kaution:                                         -   3 Brutto Monatsmieten

> Vermittlungshonorar:                     -   3 Brutto Monatsmieten

_Wir weisen darauf hin, dass die inserierte Gesamtbelastung sich auf die beiden netto Positionen, Hauptmietzins und Betriebskosten, bezieht._

 

Ausstattungsmerkmale:

> motorisiertes Schließsystem, mit Zugangschip 
> Einbauküche samt E-Geräte
> Klimaanlage
> Sämtliche EDV-relevanten Vorrichtungen für ein Großraumbüro
> 2 separate WC-Anlagen
> PKW-Stellplätze ab 70€ brutto in der hauseigenen Tiefgarage 

 

Lage:

> zentrale Lage in den Reininghausgründen
> FH Joaneum - 350m
> Straßenbahnstation „Reininghausstraße“ (Linie 4) 2 Gehminuten
> Bushaltestation „Reininghausstraße“ (Linie 65, 65A und N2) 2 Gehminuten

 

Energieausweis:

Der HWB beträgt 27,90 kWh/m2a und entspricht somit der Klasse B.
Der fGEE beträgt 0,618 und entspricht somit der Klasse A+.

_Wir weisen darauf hin, dass sämtliche möblierte Bilder mittels einer KI generiert wurden._

KONTAKT

Für Fragen oder zur Vereinbarung eines Besichtigungstermins steht Ihnen
Frau Gloria Berger gerne zur Verfügung:

   📞 +43 676 852 243 548
   ✉️ Gloria.Berger@teamneunzehn.at

Wir weisen darauf hin, dass zwischen dem Vermittler und dem zu vermittelnden Dritten ein familiäres oder wirtschaftliches Naheverhältnis besteht.

Der Vermittler ist als Doppelmakler tätig.

"Leben braucht Raum" * T19-RE Real Estate GmbH & Co KG * www.teamneunzehn.at [https://www.teamneunzehn.at]

Doppelmakler

Wir werden als Immobilienmakler kraft bestehenden Geschäftsgebrauchs als Doppelmakler tätig und haben sohin beide Seiten des Vertrages (Verkäufer-Käufer, Vermieter-Mieter) zu unterstützen.

Wirtschaftliches Naheverhältnis

Es wird bekannt gegeben, dass folgendes wirtschaftliches Naheverhältnis zwischen der teamneunzehn-Gruppe und dem Verkäufer/der vermietenden Partei besteht: ständige und dauerhafte Beauftragung mit der Vermittlung des bestehenden Immobilienportfolios

Haftungserklärung zum Inserat

Irrtum und Änderungen vorbehalten! Sofern es sich bei Bildern um Visualisierungen handelt, können Abänderungen zur tatsächlichen Ausführung resultieren. Wir weisen ausdrücklich darauf hin, dass das auf Fotos oder Visualisierungen ersichtliche Mobiliar bzw. Inventar nicht Bestandteil des inserierten Preises ist.

 

 

Sie sind Anleger und bevorzugen den Erwerb einer Immobilie mit Vorsteuerabzug?

Die teamneunzehn-Gruppe ist besonders auf den Vertrieb von Neubauprojekten spezialisiert. Wir beraten unsere Bauträger/Abgeber bereits im Zuge der Planung der neu zu schaffenden Wohnhausanlagen und berücksichtigen stets die Wünsche/Vorstellungen sämtlicher Mietinteressenten, so dass geringe Leerstandsquoten gehalten und bestmögliche Renditen erzielt werden können. Die Option des Vorsteuerabzuges spielt unseren Anlegern zusätzlich in die Karten! Wir können Ihnen mit sofortiger Wirkung unverbindliche Vorschläge präsentieren, bitte wenden Sie sich an anlegerwohnung@teamneunzehn.at

Sorgenfrei vermieten – Rundum-Servicepakete für Anleger

Sie möchten nach Erwerb Ihrer Immobilie mit der Vermietung sowie den Mietabrechnungen und eventuellen Fragen während des Mietverhältnisses nicht beschäftigt sein? Wir bieten verschiedene und maßgeschneiderte Konzepte rund um unser Dienstleistungsprogramm »sorgenfrei vermieten«. Unsere Mitarbeiter freuen sich auf Ihre unverbindliche Anfrage unter sorgenfreivermieten@teamneunzehn.at

Finanzierungsservice – Ihre Wunschimmobilie optimal finanziert

Um Ihnen bei der Finanzierung Ihrer neuen Wohnung Zeit und Geld zu sparen, stehen Ihnen unsere Finanzierungsprofis mit Rat und Tat zur Seite. Wir führen für Sie unverbindlich und kostenlos einen unabhängigen Vergleich der unterschiedlichen Kreditkonditionen durch und verhelfen Ihnen zum optimalen Angebot. Wir werden sofort nach Ihrer unverbindlichen Kontaktaufnahme unter finanzierung@teamneunzehn.at aktiv.

Infrastruktur / Entfernungen

Gesundheit
Arzt 325m
Apotheke 750m
Klinik 150m
Krankenhaus 925m

Kinder & Schulen
Schule 475m
Kindergarten 100m
Universität 325m
Höhere Schule 375m

Nahversorgung
Supermarkt 300m
Bäckerei 400m
Einkaufszentrum 1.075m

Sonstige
Geldautomat 300m
Bank 300m
Post 300m
Polizei 375m

Verkehr
Bus 125m
Straßenbahn 125m
Autobahnanschluss 3.675m
Bahnhof 425m
Flughafen 9.000m

Angaben Entfernung Luftlinie / Quelle: OpenStreetMap
Beschreibung weiterlesen

Lage und Verkehrsanbindung

FH Joanneum, Straßenbahn-Linie 4, Bus-Linie 65, 65A, N2

FH Joanneum

Energieeffizienz

HWB:
27,9 kWh/(m²*a)
HWB Klasse:
B
fGEE:
0,62
fGEE Klasse:
A+
Energieausweisart:
Energiebedarfs-ausweis

Grundriss

Lageplan

8020 Graz | Graz (Stadt)

Lade...
Gloria Berger

Gloria Berger
Immobilienvermittlung Graz

teamneunzehn-Gruppe

Anrufen
Lade...

Fotomix

Bild 1 Bild 2 Bild 3 Bild 4 Bild 5 Bild 6 Bild 7 Bild 8 Bild 9 Bild 10 Bild 11 Bild 12 Bild 13