NEU - Hochwertige 3-Zimmer-Wohnung mit Balkon, Loggia und Tiefgarage | Nähe Kagraner Platz

Wohnung zur Miete in 1220 Wien - Gesamtmiete: 1.799,61 € / Objektnummer: 5221
Ausstattung: Barrierefrei Rollstuhlgerecht Boden Fahrstuhl Bad Gäste-WC Rollladen Garage Parkplatz Fahrradraum Abstellraum Fernwärme Fußbodenheizung Balkon Loggia

Preisinformationen

Gesamtmiete:
1.799,61 € / Monat
Betriebskosten netto:
140,17 € / Monat
Umsatzsteuer:
18,47 €
Garage Kosten brutto:
22,27 €
Provision:
Gemäß Erstauftraggeberprinzip bezahlt der Abgeber die Provision.

Fakten

Objektnummer:
5221
Objekttyp:
Wohnung
Balkon:
2
Loggia:
2
Balkonfläche:
13,17 m²
Wohnfläche:
100 m²
Loggia Fläche:
12,12 m²
Nutzfläche:
110,39 m²
Zimmer:
3
Badezimmer:
1
Toilette:
2
Stockwerk:
3
Baujahr:
2010
Neubau:
Ja
Zustand:
Neuwertig
Verfügbarkeit:
Verfügbar

Beschreibung

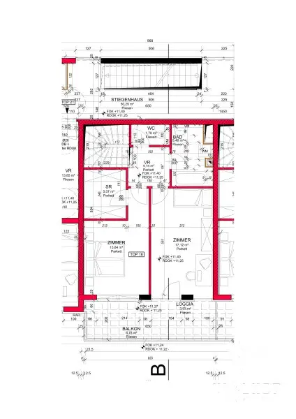
Zur Vermietung gelangt eine sehr gepflegte und hochwertig ausgestattete 3-Zimmer-Wohnung in einem im Jahr 2010 errichteten Neubau. Die Wohnung befindet sich im 3. Stock und überzeugt durch ihre durchdachte Raumaufteilung, ihre angenehme Ruhelage sowie ihre vollständig östliche Ausrichtung, die für helle Morgenstunden und ein freundliches Wohngefühl sorgt.

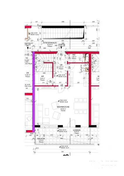
Die Wohnung verfügt über eine großzügige Wohnküche mit eingerichteter Küche, zwei gut geschnittene Schlafzimmer sowie zwei Außenflächen, die teilweise als Balkon und Loggia ausgeführt sind. Beide Freiflächen sind ebenso wie die gesamte Wohnung ostseitig orientiert.

Die Küche ist mit hochwertigen Geräten ausgestattet und fügt sich funktional wie optisch ideal in den Wohnbereich ein. Der Allgemeinzustand der Wohnung ist sehr gut, sodass sie sich perfekt für Mieter eignet, die ein gepflegtes Zuhause in moderner Wohnhausanlage suchen.

Ein besonderer Vorteil ist der im Mietpreis enthaltene Tiefgaragenstellplatz in der hauseigenen Garage – ein echter Mehrwert in dieser Lage.

Highlights auf einen Blick

*
3 Zimmer

*
große Wohnküche mit ausgestatteter Küche

*
2 Schlafzimmer

*
2 ostseitige Außenflächen (Balkon / Loggia)

*
sehr guter Zustand

*
Ruhelage

*
Gebäude aus dem Jahr 2010

*
Tiefgaragenstellplatz in der hauseigenen Garage inklusive

Kosten

*
Gesamtmiete inkl. Betriebskosten und USt.: € 1.799,61

*
Heizung: separate Verrechnung über ISTA (über die Hausverwaltung), derzeit ca. € 100,- monatlich

*
Kaution: 3 Bruttomonatsmieten (= € 5400,-)

 

Noch nichts gefunden? Wir informieren Sie über geeignete Immobilienangebote noch vor allen anderen.
Legen Sie jetzt Ihren individuellen Suchagenten unter folgendem Link an. Wir schicken Ihnen passende Immobilien exklusiv vorab zu.
Suchagent anlegen [https://wolke-7-immobilien.service.immo/registrieren/de] - https://wolke-7-immobilien.service.immo/registrieren/de

Der Immobilienmakler erklärt, dass er – entgegen dem in der Immobilienwirtschaft üblichen Geschäftsgebrauch des Doppelmaklers – einseitig nur für den Vermieter tätig ist.

Infrastruktur / Entfernungen

Gesundheit
Arzt <500m
Apotheke <500m
Klinik <2.000m
Krankenhaus <4.000m

Kinder & Schulen
Schule <500m
Kindergarten <500m
Universität <2.000m
Höhere Schule <1.000m

Nahversorgung
Supermarkt <500m
Bäckerei <500m
Einkaufszentrum <1.000m

Sonstige
Geldautomat <1.000m
Bank <1.000m
Post <1.000m
Polizei <1.000m

Verkehr
Bus <500m
U-Bahn <1.000m
Straßenbahn <1.000m
Bahnhof <1.000m
Autobahnanschluss <1.500m

Angaben Entfernung Luftlinie / Quelle: OpenStreetMap
Beschreibung weiterlesen

Lage und Verkehrsanbindung

Bertha-von-Suttner-Gasse

Kagraner Platz

Energieeffizienz

HWB:
41,8 kWh/(m²*a)
HWB Klasse:
B
fGEE:
0,75
fGEE Klasse:
A
Energieausweisart:
Energiebedarfs-ausweis
Gültig bis:
09.09.2030

Grundrisse

Lageplan

1220 Wien | Wien 22., Donaustadt

Lade...
Thomas Eder

Thomas Eder

Wolke 7 Immobilien GmbH & Co KG

Lade...

Fotomix

Bild 1 Bild 2 Bild 3 Bild 4 Bild 5 Bild 6 Bild 7 Bild 8 Bild 9 Bild 10 Bild 11 Bild 12 Bild 13 Bild 14 Bild 15 Bild 16 Bild 17 Bild 18 Bild 19 Bild 20 Bild 21 Bild 22 Bild 23 Bild 24 Bild 25