NEU - Hochwertige 3-Zimmer-Wohnung mit Tischlerküche, 160 m² Eigengarten, Terrasse und Garage in ruhiger, grüner Lage!

Wohnung zur Miete in 4421 Aschach an der Steyr - Gesamtmiete: 1.250,00 € / Objektnummer: 3209
Ausstattung: Möbliert Kabel/Satelliten-TV Garage Parkplatz Außenparkplatz Zentralheizung Terrasse Garten
Gartenansicht 1
Gartenansicht 2
Gartenansicht 3
Küche 1
Küche mit Blick Ausgang zur Terrasse/Garten
Essbereich
Wohnbereich
Zimmer 1
Badezimmer mit Blick zur Dusche
Badezimmer 2
separates WC
Zimmer 2
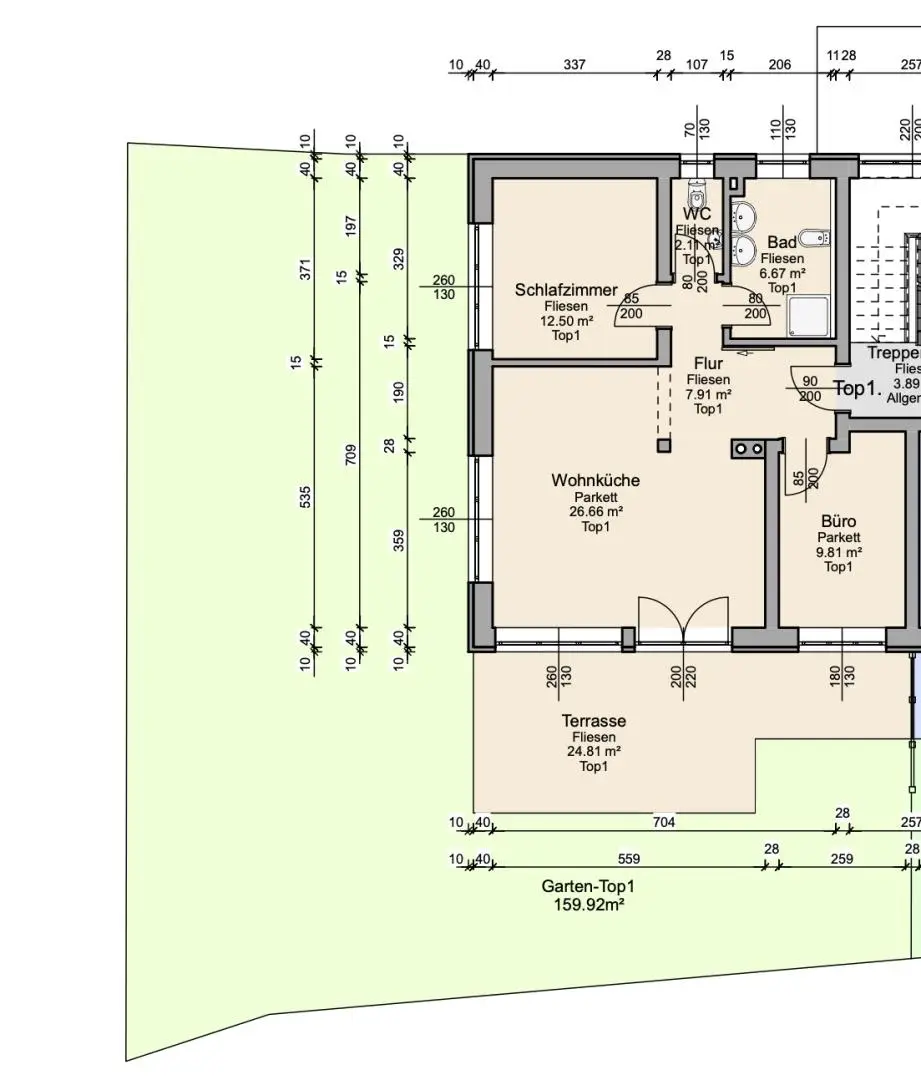
Grundrissplan
Außenansicht

Preisinformationen

Gesamtmiete:
1.250,00 € / Monat
Betriebskosten netto:
150,00 € / Monat
Umsatzsteuer:
30,00 €

Fakten

Objektnummer:
3209
Objekttyp:
Wohnung
Terrasse:
1
Wohnfläche:
65,66 m²
Gartenfläche:
159,92 m²
Zimmer:
3
Schlafzimmer:
2
Badezimmer:
1
Toilette:
1
Zustand:
Gepflegt
Verfügbarkeit:
Verfügbar

Beschreibung

Wer die Ruhe besonders schätzt, ist hier genau richtig!

In sonniger Ruhelage, umgeben von einem herrlichen Naturambiente, erwartet Sie dieses wunderschöne Wohnjuwel. Neben der praktischen Größe, dem durchdachten Raumkonzept und den ansprechenden Ausstattungsdetails wurde bei der Planung dieser Immobilie besonders viel Wert auf Ruhe und Privatsphäre gelegt.

Die Wohnung befindet sich im Erdgeschoss, umfasst ca. 65,66 m² und beinhaltet ein Vorzimmer/Garderobe, einen offenen Wohn-Küchen- und Essbereich, zwei Schlafzimmer, ein Badezimmer und ein separates WC.

Ein wahres Paradies im Freien erwartet Sie im Außenbereich dieser Wohnung. Der liebevoll angelegte Eigengarten mit etwa 159,92 m², ergänzt durch die angrenzende, großzügige Terrasse von 24,81 m², trägt maßgeblich zu einem höheren Wohnkomfort bei und schafft eine einladende Atmosphäre. Ob als Spielplatz für Kinder, für gesellige Grillabende im Sommer oder als Nutzgarten für frische Früchte, Gemüse und Blumen – hier haben Sie täglich die ideale Möglichkeit, dem Alltagsstress zu entfliehen und neue Energie zu tanken.

Ein absolutes Highlight ist die im Mietpreis inkludiert Tischlerküche mit Elektrogeräten – dies erspart Ihnen hohe Anschaffungskosten zu Beginn und ermöglicht Ihnen einen schnellen und stressfreien Einzug. Zudem können weitere Möbel und Einrichtungsgegenstände (Garderobe, Badezimmermöbel, Esstisch mit Stühlen, Couch) bei Bedarf kostenlos übernommen werden.

Besonders hervorzuheben ist noch die Lage im Erdgeschoss, die Ihnen einen Wohnraum bietet, der für alle Altersgruppen und Lebenssituationen geeignet ist. Diese durchdachte Gestaltung sorgt für Komfort und Flexibilität, sodass Ihr Zuhause mit Ihren Bedürfnissen mitwachsen kann.

Für eine entspannte Heimkehr ohne Parkplatzsuche ist ebenfalls gesorgt – im Mietpreis inkludiert ist eine private Garage und zusätzlich bietet Ihnen die Umgebung Parkmöglichkeiten für Familie und Freunde.

Zudem bietet Ihnen ein zugeordnetes Kellerabteil genügend Stauraum und eine gewisse Flexibilität im Alltag.

In der Nähe stehen Ihnen alle Annehmlichkeiten zur Verfügung, darunter öffentliche Verkehrsmittel, Nahversorger, Ärzte sowie Schulen und Kindergärten.

Darüber hinaus bieten abwechslungsreiche Spazier-, Lauf- und Radwege die Möglichkeit, die Natur direkt vor der Haustür zu erleben.

Nutzen Sie diese einmalige Gelegenheit und überzeugen Sie sich bei einer unverbindlichen Besichtigung selbst von diesem besonderen Angebot!
Angaben gemäß gesetzlichem Erfordernis:
Miete 1070
Betriebskosten inkl Heizkosten 150 zzgl 20% USt.
Umsatzsteuer 30
---------------------------------
Gesamtbetrag 1250
---------------------------------
Heizwärmebedarf: 46.0 kWh/(m²a)
Beschreibung weiterlesen

Energieeffizienz

HWB:
46 kWh/(m²*a)
Energieausweisart:
Energiebedarfs-ausweis

Dokumente

Benjamin Kozlica

Benjamin Kozlica

RE/MAX Alpha in Steyr

Lade...

Fotomix

Gartenansicht 1 Gartenansicht 2 Gartenansicht 3 Küche 1 Küche mit Blick Ausgang zur Terrasse/Garten Essbereich Wohnbereich Zimmer 1 Badezimmer mit Blick zur Dusche Badezimmer 2 separates WC Zimmer 2 Grundrissplan Außenansicht