NEU - Hochwertige Balkonwohnung in attraktiver Lage nahe zur U4

Wohnung zum Kauf in 1140 Wien - Kaufpreis: 306.500 € Reserviert / Objektnummer: 1939/214972 — Reserviert
Ausstattung: Rollstuhlgerecht Boden Fahrstuhl Bad Rollladen Kabel/Satelliten-TV Tiefgarage Parkplatz Fahrradraum Abstellraum Zentralheizung Fußbodenheizung Loggia WG geeignet
Visu_Gartenwohnung
Visu_Top16
Visu_Linzer_Straße2

Preisinformationen

Kaufpreis:
306.500 €
Kaufpreis/m²
5.722,55 €
Vermittlungsprovision:
Ja
Provision:
3% zzgl. USt.

Fakten

Objektnummer:
1939/214972<span class="text-primary-500">&mdash; Reserviert</span>
Objekttyp:
Wohnung
Loggia:
1
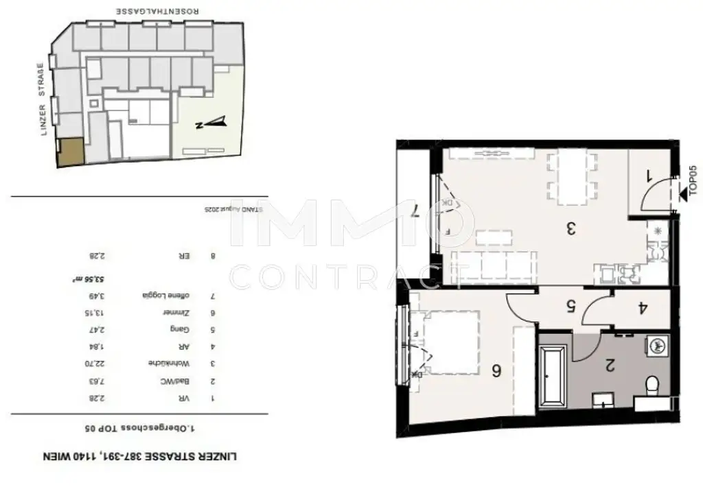
Wohnfläche:
50,07 m²
Loggia Fläche:
3,49 m²
Zimmer:
2
Baujahr:
2027
Neubau:
Ja
Zustand:
Erstbezug
Verfügbarkeit:
Reserviert

Beschreibung

Preiswerte & großzügige 2-Zimmer-Wohnung mit Balkon – Ihr neues Zuhause zum Wohlfühlen

Diese moderne 2-Zimmer-Wohnung überzeugt durch ihre großzügige Raumaufteilung, helle Atmosphäre und durchdachtes Wohnkonzept.

Offener und heller Wohn- und Essbereich, von hier aus öffnet sich der Zugang auf den schönen Balkon, der zum Entspannen und Genießen einlädt.

Das geräumige Schlafzimmer bietet ausreichend Platz für Ruhe und Erholung. Im Badezimmer können Sie noch selbst entscheiden – Wanne oder Dusche, ganz nach Ihrem persönlichen Wunsch. Ein Abstellraum sorgt für zusätzlichen Komfort.

Ein Kellerabteil im Eigentum ist im Kaufpreis bereits enthalten. Die Wohnung befindet sich im 1. Liftstock eines kleinen, feinen Gebäudes, das mit seinem persönlichen Charakter und angenehmer Nachbarschaft besticht.

Da die Wohnung vom Plan verkauft wird, haben Sie jetzt noch die Möglichkeit, individuelle Gestaltungswünsche einzubringen – und Ihrem neuen Zuhause Ihre ganz persönliche Note zu verleihen.

Erleben Sie, wie leistbares Wohnen und modernes Wohngefühl perfekt harmonieren – ideal für Paare, Singles oder als wertbeständige Anlage.

Wir weisen darauf hin, dass zwischen dem Vermittler und dem zu vermittelnden Dritten ein familiäres oder wirtschaftliches Naheverhältnis besteht.

Der Vermittler ist als Doppelmakler tätig.

Infrastruktur / Entfernungen

Gesundheit
Arzt <500m
Apotheke <500m
Klinik <2.000m
Krankenhaus <1.000m

Kinder & Schulen
Schule <500m
Kindergarten <500m
Universität <2.000m
Höhere Schule <4.500m

Nahversorgung
Supermarkt <500m
Bäckerei <500m
Einkaufszentrum <3.500m

Sonstige
Geldautomat <500m
Bank <500m
Post <1.500m
Polizei <500m

Verkehr
Bus <500m
Straßenbahn <500m
U-Bahn <500m
Bahnhof <500m
Autobahnanschluss <3.500m

Angaben Entfernung Luftlinie / Quelle: OpenStreetMap
Beschreibung weiterlesen

Lage und Verkehrsanbindung

Im grünen Bezirk Penzing vereint 387 WEST das Beste aus zwei Welten: urbanen Komfort und naturnahe Ruhe. Die Nähe zum Lainzer Tiergarten und Wienerwald bietet Erholung direkt vor der Haustüre, während die U4-Station Hütteldorf und die Straßenbahnlinie 49 eine schnelle Verbindung ins Stadtzentrum garantieren.
Geschäfte des täglichen Bedarfs, Schulen, Kindergärten und Cafés befinden sich in direkter Umgebung. Trotz der guten Anbindung bewahrt das Viertel seinen charmanten Vorstadtcharakter – ruhig, grün und lebensnah.
387 WEST steht damit für Wohnen mit hoher Lebensqualität: stadtnah, naturverbunden und komfortabel erreichbar.

Ferdinand-Wolf-Park

Energieeffizienz

HWB:
22,9 kWh/(m²*a)
HWB Klasse:
B
fGEE:
0,68
fGEE Klasse:
A+
Energieausweisart:
Energiebedarfs-ausweis
Gültig bis:
18.06.2033

Grundriss

Lageplan

1140 Wien | Wien 14., Penzing

Lade...
Julian Pelzmann

Julian Pelzmann
Immobilienfachberater

IMMOcontract Immobilien Vermittlung GmbH

Lade...

Fotomix

Bild 1 Bild 2 Bild 3 Visu_Gartenwohnung Visu_Top16 Visu_Linzer_Straße2 Bild 7