NEU - Hochwertiges Neubauprojekt im Zentrum von Wartberg ob der Aist mit nur 5 Wohneinheiten II BAUSTART ERFOLGT

Wohnung zum Kauf in 4224 Wartberg ob der Aist - Kaufpreis: 408.640 € / Objektnummer: 450
Ausstattung: Boden Bad Klimaanlage Zentralheizung Fußbodenheizung Loggia Terrasse Garten
aktueller Baufortschritt
Wohnungsplan Top 1
Plan vom EG
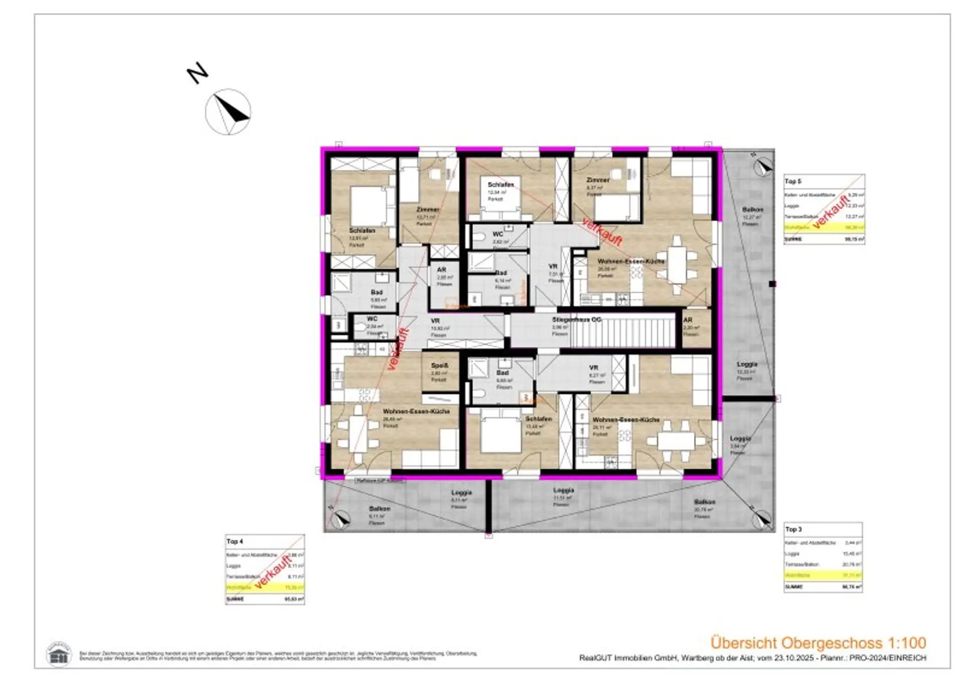
Plan vom OG

Preisinformationen

Kaufpreis:
408.640 €
Vermittlungsprovision:
Ja
Provision:
3% des Kaufpreises zzgl. 20% USt.

Fakten

Objektnummer:
450
Objekttyp:
Wohnung
Terrasse:
1
Loggia:
1
Keller Fläche:
3,75 m²
Wohnfläche:
78,79 m²
Loggia Fläche:
3,99 m²
Gartenfläche:
124,21 m²
Zimmer:
3,5
Badezimmer:
1
Toilette:
1
Baujahr:
2025
Neubau:
Ja
Zustand:
Neuwertig
Verfügbarkeit:
Verfügbar

Beschreibung

EIN WOHNPROJEKT FÜR ANSPRUCHSVOLLE – ZENTRAL, HOCHWERTIG UND ZUKUNFTSORIENTIERT

 

In Wartberg ob der Aist entsteht ab Herbst 2025 ein modernes Wohnhaus mit nur fünf  Wohneinheiten, das durch seine hochwertige Ausführung, durchdachte Planung und ausgezeichnete Lage überzeugt.
Errichtet wird das Projekt vom renommierten Bauunternehmen SINGER Bau GmbH aus Pregarten – einem verlässlichen Partner mit höchstem Qualitätsanspruch und langjähriger Erfahrung im Massivbau.

Das zweigeschossige Gebäude kombiniert zeitgemäßen Wohnkomfort mit architektonischer Klarheit und energetischer Effizienz. Jede Wohnung verfügt über großzügige Freiflächen – Terrassen, Loggien oder Balkone, die den Wohnraum erweitern und für ein helles, freundliches Ambiente sorgen.
Die beiden Erdgeschosswohnungen begeistern zusätzlich mit Eigengärten von ca. 120 m² bzw. 124 m² – perfekt für Gartenliebhaber oder Familien mit Kindern.

Im Inneren erwarten die Bewohner hochwertige Materialien und eine gehobene Ausstattung:
Edler Parkettboden, moderne Bäder mit Markenprodukten renommierter deutscher Hersteller sowie eine behagliche Fußbodenheizung (zentrale Luftwärmepumpe mit Kühlfunktion) schaffen ein komfortables Wohnklima.
Dezentrale Lüftungsgeräte und Kunststoff-Aluminium-Fenster mit 3-fach-Isolierverglasung sorgen für frische Luft und Energieeffizienz auf hohem Niveau.

Auch in puncto Technik ist das Projekt zukunftsweisend:
Eine Breitband-Internet-Vorbereitung (Liwest) mit Leerverrohrung in alle Aufenthaltsräume, Raffstores mit Funkfernbedienung, eine Leerverrohrung für E-Ladestationen (Wallbox) sowie eine Photovoltaikanlage der _Regios Energiegenossenschaft_ am Dach stehen für modernes, nachhaltiges Wohnen.

Alle Außenflächen verfügen über Beleuchtung, Steckdosen und – bei den Gartenwohnungen – frostsichere Wasseranschlüsse.
Jede Einheit erhält ein Kellerabteil, zudem können Carportplätze (€ 20.000.- pro Platz) und Freistellplätze (€ 6.000.- pro Platz) zusätzlich erworben werden.
Individuelle Sonderwünsche in Bezug auf Ausstattung und Ausführung können – sofern technisch realisierbar – gerne berücksichtigt werden (siehe Bau- und Ausstattungsbeschreibung, Seite 14).

 

AUSSTATTUNG & HIGHLIGHTS

*
Hochwertige Massivbauweise durch SINGER Bau GmbH aus Pregarten

*
Zentrale Lage im Ortskern von Wartberg ob der Aist

*
Nur 5 Wohneinheiten – ruhiges, privates Wohnumfeld

*
Großzügige Freiflächen: Terrassen, Loggien, Balkone, Eigengärten

*
Dezentrale Wohnraumlüftung für optimales Raumklima

*
Energieeffiziente Luftwärmepumpe mit Kühlfunktion

*
Niedrige Betriebs- und Heizkosten (kein Lift)

*
Breitbandinternet (Liwest) 

*
Raffstores mit Funkfernbedienung

*
Leerverrohrung für E-Ladestation (Wallbox)

*
Photovoltaikanlage am Dach (von der _Regios Energiegenossenschaft_)

*
Beleuchtung, Steckdosen und frostsichere Wasseranschlüsse im Außenbereich

 

FÜR ANLEGER

Auch für Kapitalanleger bietet dieses Projekt eine besonders interessante Möglichkeit zur sicheren Investition.
Gerne unterstützen wir Sie bei der Erst-Mietersuche für Ihre Wohnung.
Die Kosten für diesen Service sind bereits mit der Käuferprovision abgegolten.

 

WICHTIGER HINWEIS ZUR FINANZIERUNG

Sie sind sich nicht sicher, ob diese Wunschimmobilie für Sie finanzierbar ist – beispielsweise im Hinblick auf Eigenmittel, den Verkauf Ihrer bestehenden Immobilie oder eine mögliche Zwischenfinanzierung?

Wir prüfen für Sie völlig kostenfrei und unverbindlich die individuelle Finanzierbarkeit.
Als ausgebildete Bankkaufleute mit über 35 Jahren Erfahrung im Bereich Immobilienfinanzierungen und besten Kontakten zu regionalen sowie überregionalen Kreditinstituten unterstützen wir Sie gerne mit unserer Kompetenz und unserem Netzwerk.

 

BESCHREIBUNG GARTENWOHNUNG TOP 1:

WOHNEN-ESSEN-KOCHEN                  28,41 m² mit Ausgang zur Loggia u. Terrasse 

BAD                                                           6,22 m²

WC                                                            1,94 m²

VORRAUM/GARDEROBE                      13,22 m²

SCHLAFZIMMER 1                                 14,10 m² mit Ausgang zur Terrasse 

SCHLAFZIMMER 2                                  12,89 m² mit Ausgang zur Terrasse 

ABSTELLRAUM                                       2,01 m²

GESAMTE WOHNFLÄCHE       ca.       78,79 m²

LOGGIA                                      ca.         3,99 m²

TERRASSE                                ca.        50,57 m²

EIGENGARTEN                         ca.      124,21 m²

sowie:

1 KELLERABTEIL                      ca.         3,75 m²

Der Vermittler ist als Doppelmakler tätig.
Beschreibung weiterlesen

Lage und Verkehrsanbindung

Ein Zuhause mit Lebensqualität

Umgeben von sanften Hügeln, Wäldern und der malerischen Aist bietet Wartberg ob der Aist ein Wohnerlebnis, das Natur, Ruhe und moderne Infrastruktur in idealer Weise vereint. Die gute Lage zwischen Freistadt und der Landeshauptstadt Linz macht Wartberg zu einem besonders attraktiven Wohnort für all jene, die Wohlfühlen, kurze Wege und hohe Lebensqualität schätzen.

Zentrale Lage mit bester Infrastruktur

Die Marktgemeinde liegt auf rund 477 m Seehöhe im Herzen des Unteren Mühlviertels und bildet gemeinsam mit Pregarten und Hagenberg die aufstrebende Kultur- und Wirtschaftsregion PreHaWa.
Das Neubauprojekt entsteht im Zentrum der Gemeinde, in einer ruhigen, gewachsenen Wohnsiedlung, die von gepflegten Ein- und Zweifamilienhäusern geprägt ist.

Die Alltagsinfrastruktur befindet sich in unmittelbarer Nähe: Ärztezentrum, Volksschule, Kindergarten, Bank, Gemeindeamt, Kirche, Apotheke, Bäckerei, Supermarkt (Uni-Markt) sowie Sportanlagen und Bushaltestellen sind bequem fußläufig erreichbar.

Natur, Mobilität & Wirtschaftskraft

Nur etwa 1,6 km entfernt liegen der Bahnhof Pregarten sowie das idyllische Natur- und Naherholungsgebiet Feldaisttal, das mit seinen Spazier- und Radwegen zu Erholung und Freizeitaktivitäten im Grünen einlädt.

Wartberg ob der Aist ist über die B123 hervorragend an das überregionale Verkehrsnetz angebunden. Die A7 Mühlkreisautobahn, die S10 Mühlviertler Schnellstraße sowie die B124 und B125 sind in wenigen Minuten erreichbar und sorgen für eine schnelle Verbindung nach Linz, Freistadt und in das gesamte Mühlviertel.

Besonders erwähnenswert ist die Nähe zum international renommierten Softwarepark Hagenberg, einem Innovationszentrum für Forschung, Bildung und Technologie. Zahlreiche erfolgreiche Unternehmen, Studiengänge und Forschungseinrichtungen sind hier beheimatet – ein starkes Zeichen für die wirtschaftliche Dynamik und Zukunftsfähigkeit der Region.

Energieeffizienz

HWB:
40 kWh/(m²*a)
HWB Klasse:
B
fGEE:
0,69
Energieausweisart:
Energiebedarfs-ausweis
Gültig bis:
04.12.2034

Dokumente

Grundrisse

Lageplan

4224 Wartberg ob der Aist | Perg

Lade...
Bernhard Wolfsegger

Bernhard Wolfsegger
Immobilientreuhänder und Finanzierungsberater

marktwert Immobilien GmbH

Lade...

Fotomix

Bild 1 Bild 2 Bild 3 Bild 4 Bild 5 Bild 6 aktueller Baufortschritt