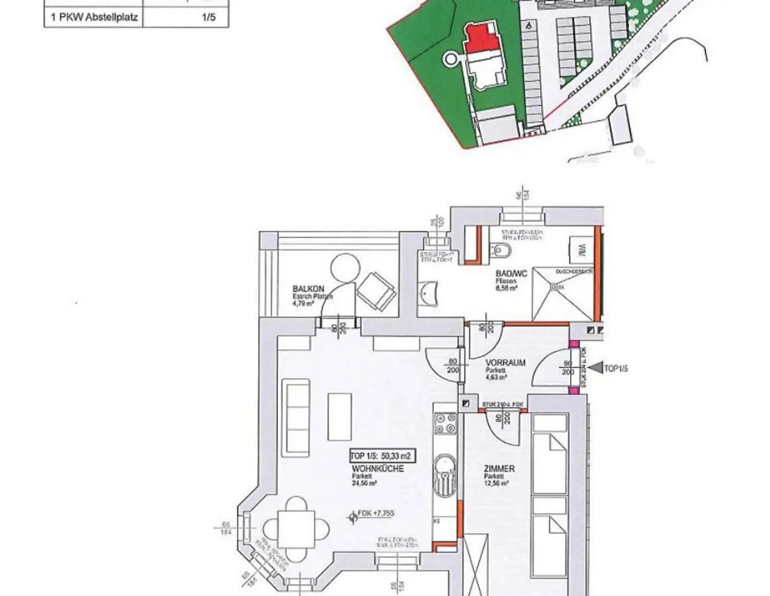
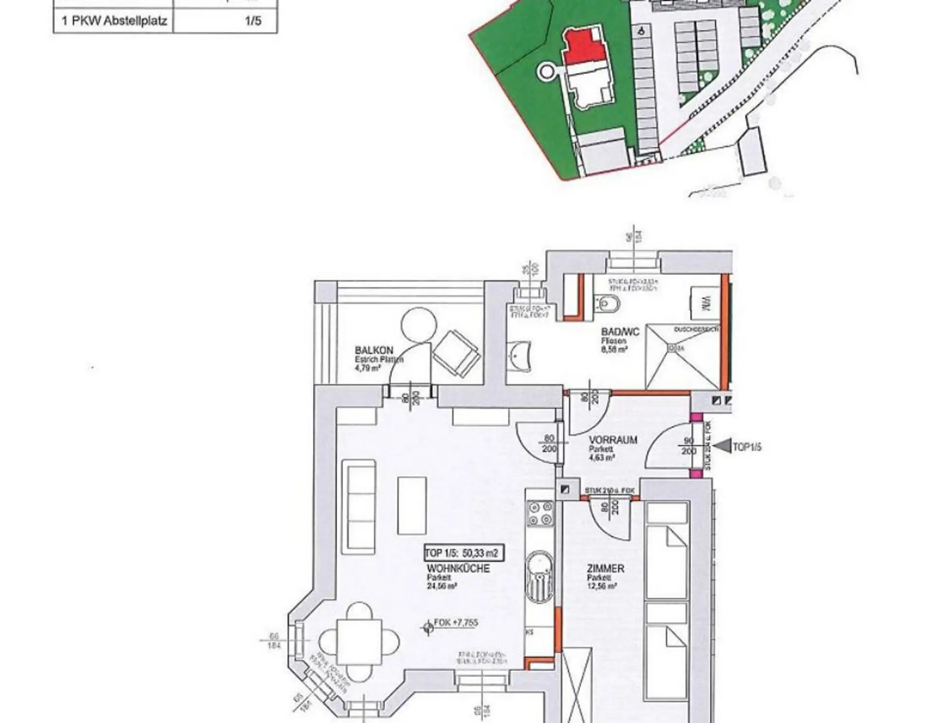
NEU - HOLLABRUNN XXIV/2 - Seminarvilla, freifinanzierte Mietwohnung, 2. OG Top 1/5, 1000/00011221/00001205

Wohnung zur Miete in 2020 Hollabrunn - Gesamtmiete: 642,41 €
Ausstattung: Außenparkplatz Balkon

Preisinformationen

Gesamtmiete:
642,41 € / Monat
Vermittlungsprovision:
Ja

Fakten

Objekttyp:
Wohnung
Balkon:
1
Nutzfläche:
50 m²
Zimmer:
2
Neubau:
Ja
Verfügbarkeit:
Verfügbar

Beschreibung

Zentral und dennoch ruhig wohnen oder arbeiten ist demnächst in der ehemaligen Seminarvilla möglich. Das denkmalgeschützte Gebäude aus 1910 wird behutsam adaptiert, an neueste Wohnstandards angepasst und bietet Platz fü…
Beschreibung weiterlesen

Alpenland, Gemeinnützige Bau-, Wohn- und Siedlungsgenossenschaft

Lade...

Fotomix

Bild 1 Bild 2 Bild 3 Bild 4