Hopfengasse: GARTENWOHNUNG mit 41,48m² Außenfläche!

Wohnung zur Miete in 1210 Wien - Gesamtmiete: 824,29 € / Objektnummer: 8203
Ausstattung: Fahrstuhl Zentralheizung Terrasse Garten
Garten und Terrasse
Garten und Terrasse
Wohnbereich
Küche
Schlafzimmer
Vorraum mit viel Platz für Garderobe
Bad
WC
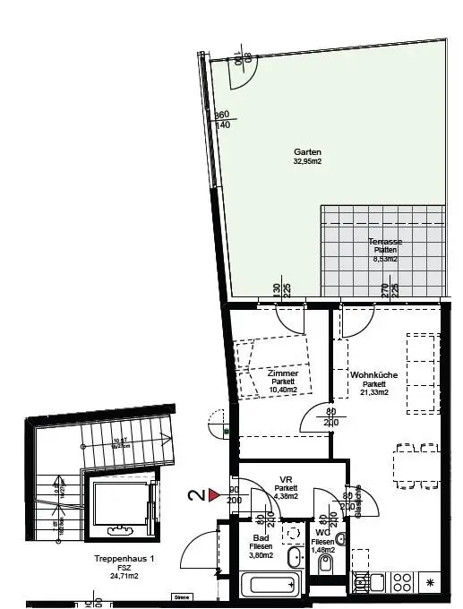
GRUNDRISS TOP 1-02
Lage im Haus
Lageplan mit Öffis
Außenansicht
Außenansicht
Fahrradraum
Garage
Garage
Garage
Kellerabteile
Kellerabteile
Waschküche
Außenansicht
IMMY Preisträger

Preisinformationen

Gesamtmiete:
824,29 € / Monat
Betriebskosten netto:
108,31 € / Monat
Umsatzsteuer:
74,94 €
Kaution:
2.500,00 €

Fakten

Objektnummer:
8203
Objekttyp:
Wohnung
Terrasse:
1
Keller Fläche:
2 m²
Wohnfläche:
41,39 m²
Gartenfläche:
32,95 m²
Zimmer:
2
Badezimmer:
1
Toilette:
1
Baujahr:
2015
Neubau:
Ja
Zustand:
Gepflegt
Verfügbarkeit:
Verfügbar

Beschreibung

Hopfengasse beim FAC-Platz! 2-Zimmer Neubauwohnung (41,39m²)!
Terrasse (8,53m²)!
Garten (32,95m²)!
Top-Ausstattung! Optimale Infrastruktur!!

In weniger als 5min erreichen Sie fußläufig den Bahnhof Jedlersdorf, von wo die S-Bahn Sie in nur 17min gemütlich nach WIEN MITTE bringt.
Lassen Sie uns gemeinsam Ihr neues Zuhause finden!

RAUMAUFTEILUNG IN STICHWORTEN
• Vorraum
• Wohnzimmer mit offener Küche
• Schlafzimmer
• Bad mit Badewanne mit Duschmöglichkeit, Waschtisch, Waschmaschinenanschluss und Handtuchheizkörper
• WC mit Waschbecken
• Garten + Terrasse
• Kellerabteil

HIGHLIGHTS AUF EINEN BLICK
• Garten + Terrasse
• Gaszentralheizung
• außenliegende Beschattung
• Sicherheitswohnungseingangstüren
• hochwertiger Parkettboden (Eiche)
• Markenküche mit hochwertigen Elektrogeräten (E-Herd, Cerankochfeld, Geschirrspüler, Kühl-Gefrier-Kombination, Dunstabzug und Spüle)
• hochwertige Ausstattung auch im Badezimmer / WC (Laufen, Grohe), Badwannen mit Glasduschwänden
• sehr gute Raumaufteilung
• effiziente Grundrisse
• zentrale Schließanlage
• Fahrrad- und Kinderwagenabstellraum
• großzügige Aufzüge
• sehr gute Energiekennzahlen
• optimale Infrastruktur
• GARAGENPLÄTZE DIREKT IM HAUS

UMGEBUNG UND INFRASTRUKTUR
• diverse Supermärkte in Gehnähe (Hofer, Billa, Interspar etc.)
• Trillerpark & Shopping Center Nord mit unzähligen Einkaufsmöglichkeiten zu Fuß erreichbar
• Freizeiteinrichtungen: Kino, Fitnessstudio, Fußball, Tennis etc.
• Naherholungsgebiet Donauinsel
• gute Erreichbarkeit in die Innenstadt

SEHR GUTE ÖFFENTLICHE VERKEHRSANBINDUNG
• S-Bahn: Jedlersdorf (5min)
• WIEN MITTE in 17min (S3)
• Autobuslinie: 36A, 36B
• Straßenbahnlinie: 26
• Regionalbus: 850
• U-Bahn: U6 Floridsdorf (ca. 12min mit Linie 26)

ERSTZAHLUNG
• 3 BMM Kaution
• erste Monatsmiete im Voraus

WEITERE MONATLICHE KOSTEN
• Wasser, Heizung... werden nach tatsächlichem Verbrauch abgerechnet
• Strom - wird direkt nach Verbrauch abgerechnet (Wien Energie bzw. Netznutzung Wiener Netze)
• ggf. TV/Internet, Haushaltsversicherung, o.Ä.

VERTRAGSBEDINGUNGEN
• Befristung: 5 Jahre
• Kündigungsverzicht: 12 Monate (mieterseitig)
• Kündigungsfrist: 3 Monate
• gefordertes Mindestnettoeinkommen (Haushalt): EUR 2100,-

BENÖTIGTE UNTERLAGEN FÜR ANMIETUNG
• Mietanbot (Vorlage erhalten Sie von uns)
• Selbstauskunft (Vorlage erhalten Sie von uns)
• Kopie Reisepass oder Personalausweis
• Kopie Bankomatkarte (nur IBAN relevant)
• Einkommensnachweis (letzte 3 Lohnzettel, Einkommenssteuerbescheid oder bei Berufswechsel unterzeichneter Dienstvertrag)
• Meldezettel
• Haushaltsrechnung (Vorlage erhalten Sie von uns)

IHRE MAKLERIN
Frau Kerstin Fried
Email: kerstin.fried@hubner-immobilien.com

Falls Sie Fragen haben oder einen Besichtigungstermin vereinbaren möchten, stehen wir Ihnen selbstverständlich sehr gerne zur Verfügung. Wir freuen uns auf Ihre Kontaktaufnahme!
Angaben gemäß gesetzlichem Erfordernis:
Miete 641,05 zzgl 10% USt.
Betriebskosten 108,31 zzgl 10% USt.
Umsatzsteuer 74,94
---------------------------------
Gesamtbetrag 824,3
---------------------------------
Heizwärmebedarf: 27.43 kWh/(m²a)
Klasse Heizwärmebedarf: B
Faktor Gesamtenergieeffizienz: 0.79
Klasse Faktor Gesamtenergieeffizienz: A
Beschreibung weiterlesen

Energieeffizienz

HWB:
27,4 kWh/(m²*a)
HWB Klasse:
B
fGEE:
0,79
fGEE Klasse:
A
Energieausweisart:
Energiebedarfs-ausweis
Kerstin Fried

Kerstin Fried

Hubner Immobilien GmbH

Anrufen
Lade...

Fotomix

Garten und Terrasse Garten und Terrasse Wohnbereich Küche Schlafzimmer Vorraum mit viel Platz für Garderobe Bad WC GRUNDRISS TOP 1-02 Lage im Haus Lageplan mit Öffis Außenansicht Außenansicht Fahrradraum Garage Garage Garage Kellerabteile Kellerabteile Waschküche Außenansicht IMMY Preisträger