NEU - Idyllisches Wohnglück: Charmante 3-Zimmer-Wohnung mit Balkon in ruhiger Hoflage

Wohnung zum Kauf in 1110 Wien - Kaufpreis: 359.000 € / Objektnummer: 247/22022
Ausstattung: Boden Fahrstuhl Abstellraum Balkon

Preisinformationen

Kaufpreis:
359.000 €
Kaufpreis/m²
4.756,86 €
Preisinfos:
GrESt 3,5% + Grundbucheintragung 1,1% des Gesamtkaufpreises / Vertragserrichtung 1,0% + Barauslagen, Beglaubigungs-, ggf. Treuhandkosten bei Finanzierung + USt. (WeiKes RA) / Provision 3% + USt. des Kaufpreises
Vermittlungsprovision:
Ja
Provision:
3%

Fakten

Objektnummer:
247/22022
Objekttyp:
Wohnung
Balkon:
1
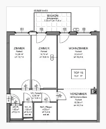
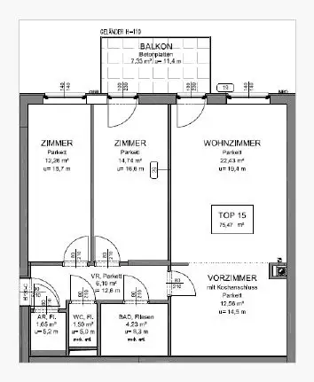
Wohnfläche:
75,47 m²
Zimmer:
3
Badezimmer:
1
Toilette:
1
Baujahr:
2015/Neubau
Neubau:
Ja
Verfügbarkeit:
Verfügbar

Beschreibung

Zum Verkauf steht diese besonders schöne, vorteilhafte Eigentumswohnung im 11. Bezirk in der Lorystraße. HIER GEHT ES ZUM EXKLUSIVEN 3D-RUNDGANG: https://my.matterport.com/show/?m=izvUyUyF2pb Die Wohnung mit ca. 75 m² Wohnfläche und ca. 7 m² Balkon (südwestseitig) befindet sich im 3. Obergeschoss (barrierefrei erreichbar) und umfasst einen Vorraum, eine Wohnküche, zwei Zimmer, einen Abstellraum, ein Badezimmer und eine separate Toilette. Highlights dieses perfekten Immobilieninvestments: - Fertigparkett mit Holzsockelleisten in Wohn- und Schlafzimmern - Fenster mit Isolierverglasung - Gas-Zentralheizung - Haus 2015 erbaut - Vollwärmeschutz-Fassade - Kellerabteil - Fahrrad- und Kinderwagen-Abstellraum - Garagenplätze optional verfügbar Die Wohnung ist infrastrukturell perfekt gelegen: - U-Bahn: U3 (Simmering) in 4 Gehminuten - Zahlreiche Einkaufsmöglichkeiten in unmittelbarer Nähe: Lidl, Billa, Spar, Hofer Der Kaufpreis für diese Wohlfühlwohnung beläuft sich auf Euro 359.000,-. Für weitere Informationen und einen Besichtigungstermin stehen wir Ihnen gerne zur Verfügung und freuen uns diesbezüglich über Ihre geschätzte Anfrage per Mail. Wir möchten darauf hinweisen, dass unsere Antwort möglicherweise in Ihrem Spamordner landen könnte. Bitte kontrollieren Sie diesen, wenn Sie keine Rückmeldung auf Ihre Anfrage erhalten haben. Tipp: Die gesamte Anlage wurde 2024 parifiziert und wir nun sukzessive abverkauft. Fragen Sie uns nach weiteren Objekten bzw. Paketangeboten!
Beschreibung weiterlesen

Lage und Verkehrsanbindung

U3 Simmering

Energieeffizienz

HWB:
29,1 kWh/(m²*a)
HWB Klasse:
B
fGEE:
0,89
fGEE Klasse:
B

Grundrisse

Bernhard Stachl

Bernhard Stachl

IMV Immobilienmakler

Virtuelle Tour

Lade...

Fotomix

Balkon II Balkon I Wohnküche Zimmer I Zimmer Küche Vorraum Badezimmer Zimmer II Vorraum I Ausblick Abstellraum Ausblick I Balkon Dollhouse-View Lory Eingang Lory Fassade Lory Fassade I Lory Fassade II Lory Fassade III Lory Fassade IV Lory Fassade V Lory Fassade VII Lory FassadeVI Lory Freifläche Lory Freifläche I Lory Freifläche II Lory Garage Lory Garage I Lory Garage II Lory Garage III Lory Innenhof Lory Innenhof I Lory Innenhof II Lory Innenhof III Lory Innenhof IV Lory Innenhof V Lory Keller Lory Keller I Lory Keller II Lory Stiegenaus I Lory Stiegenaus II Lory Stiegenhaus III