NEU - Ihr Büro im schönsten Haus am Steyrer Stadtplatz 267 m²

Büro zur Miete in 4400 Steyr / Objektnummer: 54
Ausstattung: Fahrstuhl Klimaanlage Terrasse
Büro im Stadtplatzhaus
Zugang über Berggasse
Großraumbüro_Ansicht 1
Mittelgroßes Büro
Einzelbüro rechts
Einzelbüro links
Besprechungsraum
Eingangstüre zum Büro
Vorraum
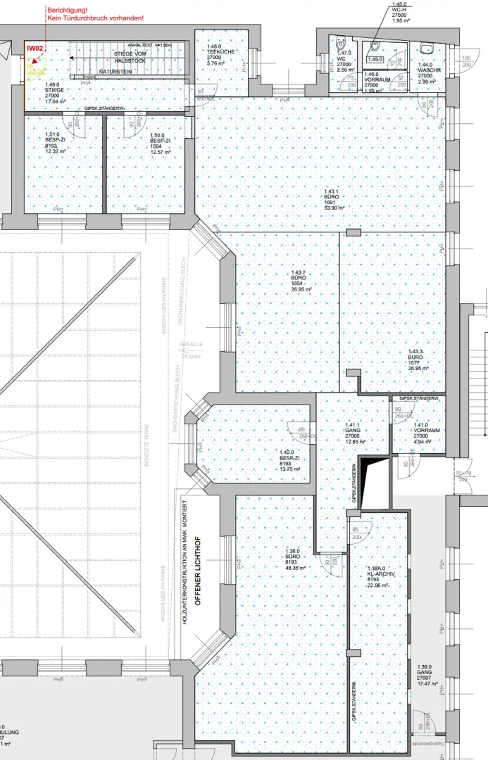
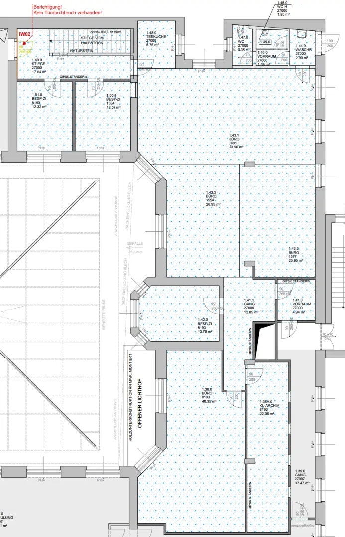
Plan_Büro

Preisinformationen

Kaution:
8.571,56 €
Provision:
8571.56

Fakten

Objektnummer:
54
Objekttyp:
Büro
Terrasse:
1
Nutzfläche:
267 m²
Bürofläche:
267 m²
Toilette:
2
Altbau:
Ja
Verfügbarkeit:
Verfügbar

Beschreibung

Ihr Büro im schönsten Haus am Steyrer Stadtplatz
Mitten im Steyrer Zentrum sind ab sofort 267 m² zum Mieten verfügbar!

Diese Immobilie überzeugt mit ihrer prestigeträchtige Lage!
Die Bürofläche ist über die Berggasse 35 zugänglich und befindet sich im ersten Obergeschoss des Sparkassen-Gebäudes. Mit dieser ansehnlichen Lage haben Sie bei der Wahl Ihres Bürostandortes schon sehr viel richtig gemacht!

Doch nicht nur die Lage überzeugt auf den ersten Blick! Auch innen hat diese Immobilie vieles zu bieten. Mit einer Raumhöhe von ca. 4,26 Metern und mit sehr hohen Fenstern wird den Räumlichkeiten eine erhabene Optik geboten.

Die Büros sind hell und verfügen einen Blick in den Innenhof. Ruhiges Arbeiten ohne Straßenlärm ist somit garantiert!

Es erwarten Sie:
Eine barrierefrei zugängliche Büroimmobilie mit
+ einem ca. 107 m² großen Großraumbüro,
+ einem ca. 48 m² großen Großraumbüro,
+ zwei Einzelbüros mit je ca. 12 m²,
+ einem Besprechungsraum mit ca. 13,75 m²,
+ zwei Toiletten,
+ einem Archivraum,
+ einem Vorraum und
+ einer großen Hinterhofterrasse.

Zugang zur Büroimmobilie:
Nur über die Berggasse. Der Zutritt ist barrierefrei über eine Rampe und mit einem Lift gegeben.


Ausstattungen Büroeinheiten
+ Deckenbeleuchtung
+ Teppichböden (Stromauslässe teilweise über Bodendosen)
+ Wände: teilw. massiv, teilweise Trockenbau, weiße Dispersion
+ Wärmeabgabe: Heizkörper
+ Klimaanlagen: Dezentrale Geräte in diversen Räumen (Instandsetzung erforderlich)

Es ist auch eine Abtrennung des Mietobjektes in kleinere Flächen möglich.



Preis:
Nettomietpreis € 6/m² zzgl. Betriebs- und Heizkostenpauschale, allgemeiner Strom, anteilige Gebäudeversicherung


Investitionen und Neuerungen sind möglich:
Die Immobilie verfügt derzeit keine Teeküche und alte Sanitärräumlichkeiten. Der Vermieter wäre bereit in diese Immobilie zu investieren und Neuerungen durchzuführen. Bitte beachten Sie, dass bei einer größeren Investition auch die Miete dementsprechend an den neuen Standard angepasst wird.


Parkmöglichkeiten:
Es kann ein Kolonnenabstellplatz (für 2 Autos hintereinander) dazugemietet werden.


Kaution:
3 Bruttomonatsmieten


Maklerprovision:
3 BMM zzgl. USt.


Beziehbar:
Ab sofort


Mietvertragsinformationen:
+ Befristung auf 3 Jahre oder länger

Gerne führe ich Sie im Rahmen einer Besichtigung durch die Liegenschaft.

Ich freue mich darauf, Sie auf dem Weg zu Ihrem Traumbüro begleiten zu dürfen!

Herzlichst,
Diana Hertl, MSc
Immobilientreuhänderin

DIANOR Estates GmbH
Leopold-Werndl-Straße 27, 4400 Steyr
0676/4422972, office@dianor.at
Beschreibung weiterlesen

Energieeffizienz

HWB Klasse:
F
fGEE:
3,19
fGEE Klasse:
E
Energieausweisart:
Energiebedarfs-ausweis

Lageplan

4400 Steyr | Steyr (Stadt)

Lade...
Diana Hertl

Diana Hertl

DIANOR Estates GmbH

Lade...

Fotomix

Büro im Stadtplatzhaus Zugang über Berggasse Großraumbüro_Ansicht 1 Mittelgroßes Büro Einzelbüro rechts Einzelbüro links Besprechungsraum Eingangstüre zum Büro Vorraum Plan_Büro