NEU - ++ Ihr neues Zuhause beim Belvedere: Traumhafter 3-Zimmer Erstbezug nach Sanierung ++

Wohnung zur Miete in 1040 Wien - Gesamtmiete: 1.650,00 € / Objektnummer: 8275
Ausstattung:

Preisinformationen

Gesamtmiete:
1.650,00 € / Monat
Betriebskosten netto:
250,00 € / Monat
Kaution:
3 Bruttomonatsmieten
Provision:
Gemäß Erstauftraggeberprinzip bezahlt der Abgeber die Provision.

Fakten

Objektnummer:
8275
Objekttyp:
Wohnung
Wohnfläche:
78 m²
Zimmer:
4
Badezimmer:
1
Toilette:
1
Stockwerk:
1
Baujahr:
1951
Neubau:
Ja
Letzte Sanierung:
2026
Zustand:
Vollsaniert
Verfügbarkeit:
Verfügbar

Beschreibung

Bereits beim ersten Betreten der Liegenschaft eröffnet sich ein besonderes Wohngefühl: Der eindrucksvolle, repräsentative Haupteingang, flankiert von markanten Löwenskulpturen, führt in einen liebevoll begrünten Innenhof, der Ruhe, Eleganz und ein Gefühl von Exklusivität vermittelt.

In genau diesem stilvollen Ambiente befindet sich diese frisch sanierte 3-Zimmer-Wohnung als Erstbezug: ein Zuhause, in einer der begehrtesten Lagen Wiens, das urbanes Leben mit Rückzug und Privatsphäre verbindet.

Nur wenige Schritte vom Schloss Belvedere und seinen weitläufigen Gartenanlagen entfernt, genießen Sie hier eine absolute Ruhelage mitten in der Stadt kombiniert mit perfekter Infrastruktur.

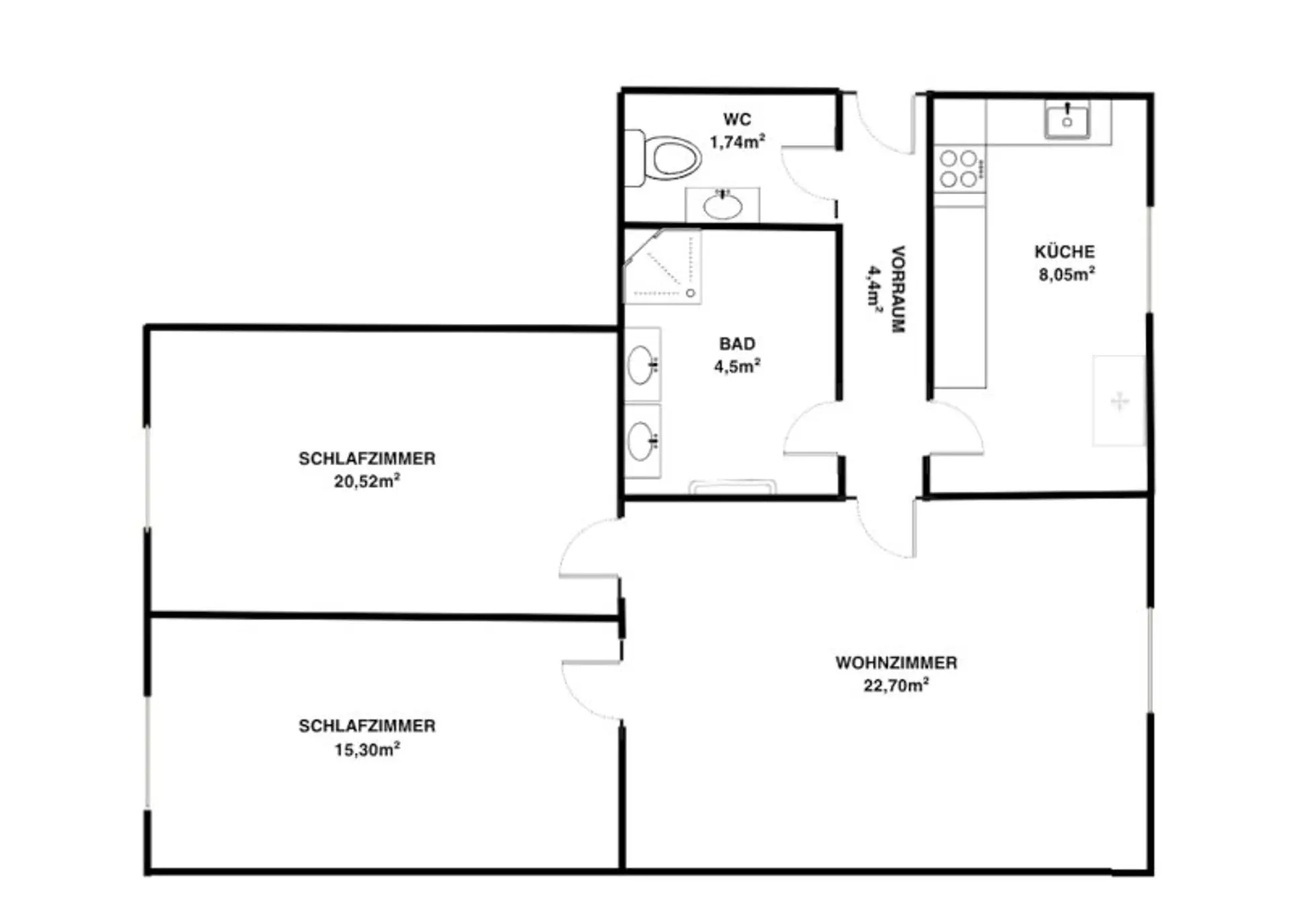
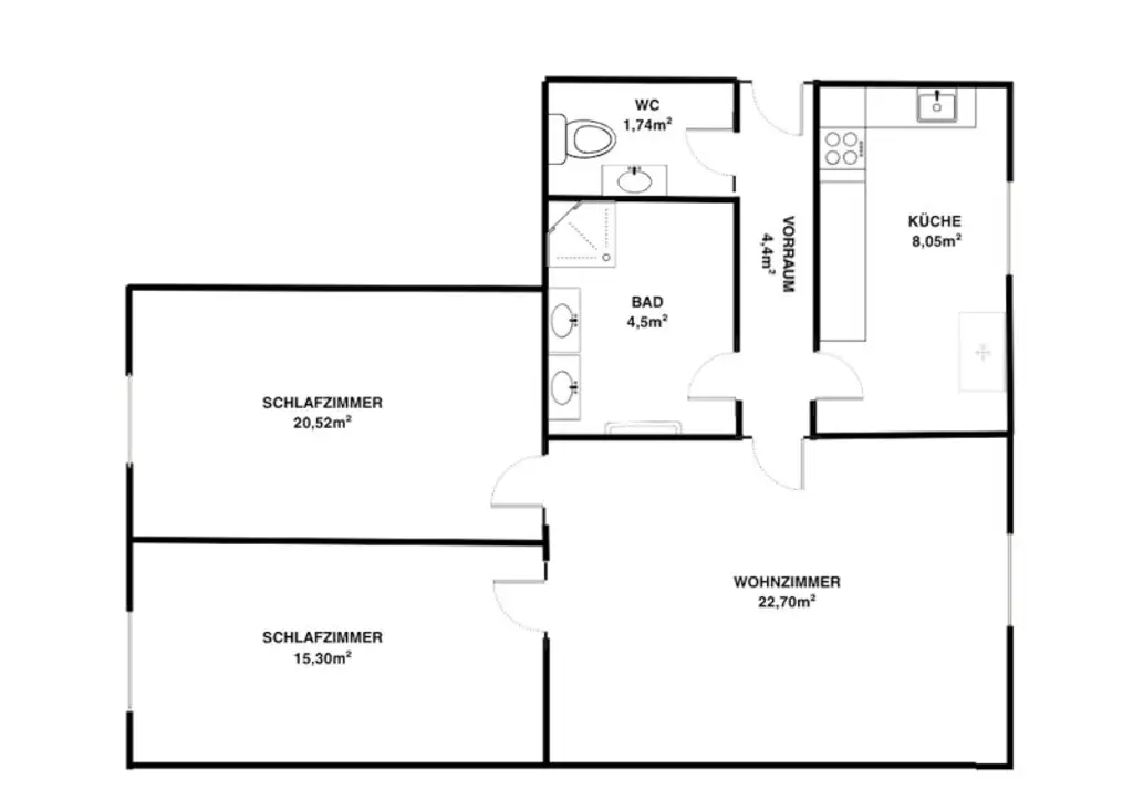
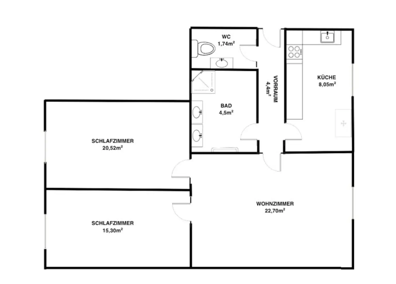
Die durchdachte Raumaufteilung mit separater Küche, großzügigem Wohnzimmer und zwei ruhig gelegenen Schlafzimmern macht diese Wohnung ideal für alle, die komfortabel und zentral wohnen möchten.

Raumaufteilung

*
Vorraum

*
Zimmer 1: Großzügiges Wohnzimmer 

*
Zimmer 2: Schlafzimmer (ruhig zum begrünten Innenhof gelegen)

*
Zimmer 3: Schlafzimmer (ruhig zum begrünten Innenhof gelegen)

*
Separate Küche mit Fenster 

*
Badezimmer

*
Separates WC

Küche

*
Separate Küche mit Fenster zum Lüften

*
Geschirrspüler

*
Induktionskochfeld & Backrohr

*
Großzügiger freistehender Kühlschrank

*
Waschmaschinen-Anschluss

Badezimmer

*
Badezimmer mit Walk-In Dusche

*
Doppelwaschbecken

*
Fußbodenheizung

*
Handtuchheizkörper

Weitere Info's:

*
Geheizt wird mit Infrarotpaneelen (im Wohnzimmer befindet sich zusätzlich ein Nachtspeicherofen)

*
Warmwasser über Vaillant Durchlauferhitzer

*
Großzügiges Kellerabteil mit eigenem Licht ist vorhanden

Lage & Infrastruktur: 

*
In nur wenigen Minuten in der Innenstadt

*
Schloss Belvedere mit Park Belvedere nur wenige Gehminuten entfernt

*
Straßenbahn Linie D (Station „Schloss Belvedere“) direkt vor der Tür

*
Hauptbahnhof Wien fußläufig erreichbar

*
S-Bahn „Quartier Belvedere“ ca. 400 m entfernt

Mietdetails

*
Verfügbar ab sofort

*
Befristung: 3 Jahre mit Verlängerungsoption

*
Kaution: 3 Bruttomonatsmieten

_Hinweis: Bei den ersten Abbildungen handelt es sich um KI-gestützte Visualisierungen, die eine mögliche Gestaltung darstellen und nicht den Ist-Zustand zeigen. _
 

Haben wir Ihr Interesse geweckt? Wir freuen uns, Ihnen diese traumhafte Wohnung in 1040 Wien persönlich zeigen zu dürfen – vereinbaren Sie jetzt einen unverbindlichen Besichtigungstermin.

Ich freue mich auf Ihre Anfrage!

 

Beste Grüße,

_Diana Müller_

Tel.: +43 664 44 99 377

E-Mail: mueller@grabner-immobilien.at

www.grabner-immobilien.at

Der Immobilienmakler erklärt, dass er – entgegen dem in der Immobilienwirtschaft üblichen Geschäftsgebrauch des Doppelmaklers – einseitig nur für den Vermieter tätig ist.

Infrastruktur / Entfernungen

Gesundheit
Arzt <500m
Apotheke <500m
Klinik <1.000m
Krankenhaus <1.500m

Kinder & Schulen
Schule <500m
Kindergarten <500m
Universität <1.000m
Höhere Schule <1.000m

Nahversorgung
Supermarkt <500m
Bäckerei <500m
Einkaufszentrum <1.000m

Sonstige
Geldautomat <500m
Bank <500m
Post <1.000m
Polizei <1.000m

Verkehr
Bus <500m
U-Bahn <1.000m
Straßenbahn <500m
Bahnhof <1.000m
Autobahnanschluss <2.500m

Angaben Entfernung Luftlinie / Quelle: OpenStreetMap
Beschreibung weiterlesen

Energieeffizienz

HWB:
62,3 kWh/(m²*a)
HWB Klasse:
D
fGEE:
1,25
fGEE Klasse:
C
Energieausweisart:
Energiebedarfs-ausweis
Gültig bis:
07.03.2032

Grundriss

Lageplan

1040 Wien | Wien 4., Wieden

Lade...
Diana Müller

Diana Müller
Immobilientreuhand

Grabner Immobilien

Lade...

Fotomix

Bild 1 Bild 2 Bild 3 Bild 4 Bild 5 Bild 6 Bild 7 Bild 8 Bild 9 Bild 10 Bild 11