NEU - IM HERZEN DER STADT - WG Wohnung mit Dachterrasse & Tiefgaragenplatz

Wohnung zum Kauf in 6020 Innsbruck - Kaufpreis: 750.000 € / Objektnummer: 7939/2300162228
Ausstattung: Fahrstuhl Bad Gäste-WC Tiefgarage Parkplatz Terrasse

Preisinformationen

Kaufpreis:
750.000 €
Vermittlungsprovision:
Ja
Provision:
3% des Kaufpreises zzgl. 20% USt.

Fakten

Objektnummer:
7939/2300162228
Objekttyp:
Wohnung
Terrasse:
1
Wohnfläche:
102 m²
Zimmer:
3
Badezimmer:
2
Toilette:
2
Verfügbarkeit:
Verfügbar

Beschreibung

Die gegenständliche Dachgeschoßwohnung wird Sie durch die durchdachte Raumaufteilung und gut besonnte Dachterrasse mit schöner Panorama Sicht auf Innsbruck begeistern.

Derzeit ist die Wohnung an eine WG vermietet, ein interessantes Details für Investoren - eine bestehende Rendite ist bereits gegeben.

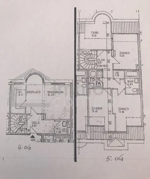
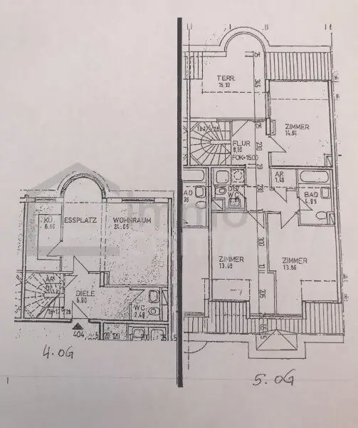
Raumaufteilung zu Ihrer Vorinformation.

4. Liftstock: Diele, WC, Küche, Essplatz - Zimmer (derzeit WG Zimmer)

5. Stock: Diele, Dusche mit WC, Badezimmer mit Wanne, 3 Zimmer (derzeit WG Zimmer), Abstellraum, Dachterrasse

Die Wohnung ist mit zwei praktischen WCs ausgestattet, was den Komfort für Sie und Ihre Gäste erheblich erhöht. Ein weiteres Highlight ist der Tiefgaragen Parkplatz, welcher Ihnen einen sicheren Stellplatz für Ihr Fahrzeug bietet.

Die Lage dieser Immobilie könnte nicht besser sein. Sie finden sich in einer hervorragenden Verkehrsanbindung wieder – Bus, Straßenbahn und Bahnhof sind nur wenige Minuten entfernt und ermöglichen Ihnen eine unkomplizierte Anbindung an die gesamte Region. So gelangen Sie bequem in die Innsbrucker Innenstadt oder zu den umliegenden Skigebieten und Wanderregionen.

In unmittelbarer Nähe finden Sie zahlreiche Einrichtungen, die den Alltag erleichtern. Ärzte, Apotheken, Kliniken und Krankenhäuser sind schnell erreichbar, sodass Sie stets bestens versorgt sind. Auch Bildungseinrichtungen wie Schulen, Kindergarten, Universität und Höhere Schulen befinden sich in der Nachbarschaft, was diese Wohnung besonders attraktiv für Familien macht.

Rechtlicher Hinweis.

Dieses freibleibende Angebot wird Ihnen von Haas & Urban Immobilien GmbH überreicht. Alle Angaben erfolgen auf Grund der Informationen und Unterlagen, welche uns vom Eigentümer oder/und Dritten übermittelt worden sind und sind ohne Gewähr.

Aufgrund der Nachweispflicht gegenüber dem Eigentümer ersuchen wir um Ihr Verständnis, dass nur Anfragen mit der Angabe der vollständigen Namen, Anschrift und Mailkontakt bearbeitet werden können.

Ihr Team von der IMMO-COMPANY - Eine gute Adresse für Ihre Zufriedenheit, ich freue mich auf Ihre Kontaktaufnahme und Ihr Vertrauen.

Karin Hernach, Ihr Immobilienexpertin Vorort, Region Tirol

 

Der Vermittler ist als Doppelmakler tätig.

Nutzen Sie die einmalige Gelegenheit, diese Immobilie zu besichtigen – sehen und erleben ist sehr viel eindrucksvoller!
Eine Besichtigung ist kostenfrei und unverbindlich, und gibt Ihnen einen unverfälschten Eindruck von der Immobilie.
Gerne unterstütze ich Sie auch bei der Finanzierung sowie beim Verkauf/Vermietung Ihrer Immobilie.

Infrastruktur / Entfernungen

Gesundheit
Arzt 500m
Apotheke 500m
Klinik 500m
Krankenhaus 1.000m

Kinder & Schulen
Schule 500m
Kindergarten 500m
Universität 500m
Höhere Schule 1.000m

Nahversorgung
Supermarkt 500m
Bäckerei 500m
Einkaufszentrum 1.000m

Sonstige
Bank 500m
Geldautomat 500m
Post 500m
Polizei 500m

Verkehr
Bus 500m
Straßenbahn 500m
Autobahnanschluss 1.500m
Bahnhof 500m
Flughafen 4.000m

Angaben Entfernung Luftlinie / Quelle: OpenStreetMap
Beschreibung weiterlesen

Grundriss

Karin Hernach

Karin Hernach
Gebietsdirektorin Tirol und Vorarlberg

Immo-Company Haas & Urban Immobilien GmbH

Lade...

Fotomix

Bild 1 Bild 2 Bild 3

Lageplan