NEU - IN MAUER: 2 GRUNDSTÜCKE - INSGESAMT 1.188 m²

Haus zum Kauf in 1230 Wien - Kaufpreis: 1.480.000 € / Objektnummer: 1609/46493
Ausstattung: Sauna Abstellraum
Uneinsehbares Traumgrundstück
Vorgarten
Bungalow Haupteingang
Ebene Lage
Pavillion
Private Atmosphäre
Gartenterrasse  | Blick auf den Bungalow
Gartenterrasse | Blick in den Garten
Gepflegter Altbaumbestand
Weitläufig
Bungalow mit Wintergarten
Garage
Garageneinfahrt
Hauseingang  und Stiegenabgang zum Keller
Wohnbereich
Wintergarten
Wohnbereich
Wintergarten
Hell und freundlich
Essecke im Wohnbereich
Küche
Küche
Entree
Flur
Bad mit Wanne und Dusche
Bad mit Fenster
Großes Bad
Schlafzimmer
Schlafzimmer
Zentral begehbar
Haus Strassenansicht
15020 - EG
15020 - KG

Preisinformationen

Kaufpreis:
1.480.000 €
Vermittlungsprovision:
Ja
Provision:
3% des Kaufpreises zzgl. 20% USt.

Fakten

Objektnummer:
1609/46493
Objekttyp:
Haus
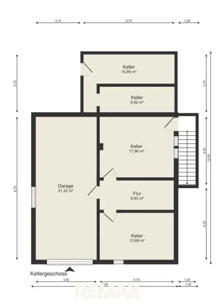
Keller Fläche:
90,51 m²
Wohnfläche:
97 m²
Grundstücksfläche:
1.188 m²
Zimmer:
2
Badezimmer:
1
Toilette:
1
Baujahr:
1972
Neubau:
Ja
Zustand:
Gepflegt
Verfügbarkeit:
Verfügbar

Beschreibung

Sonniges Grundstück in Toplage nahe Maurer Hauptplatz

Das Wichtigste auf einen Blick
- Grundstücksfläche: 1.188 m² - Aufteilung: 2 Grundstücksnummern – Teilung auf je ca. 594 m² möglich
- Bebauung/Widmung: Bauklasse I, 6,5 m, o gk, -
- Pro Grundstück sind je 198 m² verbaute Fläche möglich
- Bestandsgebäude: Bungalow mit ca. 97 m² Wohnfläche - voll unterkellert - Garage

Die ausführliche Beschreibung
Auf dem großzügigen und sonnigen Grundstück in der Binagasse in Mauer befindet sich ein gepflegter Bungalow mit ca. 97 m² Wohnfläche.

Der Grundriss umfasst:
- einen gemütlichen Wohnbereich mit westseitigem Wintergarten,
- ein Schlafzimmer,
- eine voll ausgestattete Küche,
- ein Badezimmer mit Wanne, Dusche und Fenster,
- sowie einen praktischen Abstellraum.

Der Bungalow wird mit Strom-Nachtspeicheröfen beheizt. Fenster und Fassadendämmung wurden bereits vor rund 15 Jahren erneuert, sodass ein solider Bauzustand gegeben ist.

Dank der Widmung bietet das Grundstück auch hervorragende Entwicklungsmöglichkeiten. Damit ist die Liegenschaft sowohl für Eigennutzer, die viel Grün und Ruhe schätzen, als auch für Bauträger hochinteressant.

Lage & Umgebung
Die Liegenschaft liegt in einer ruhigen Wohngegend von Mauer, unweit des beliebten Maurer Hauptplatzes. Hier finden sich charmante Heurige, Restaurants sowie sämtliche Nahversorger und Geschäfte des täglichen Bedarfs. Schulen, Kindergärten und medizinische Einrichtungen sind ebenfalls bequem erreichbar.

Öffentliche Anbindung
Buslinien: 58B, 63A, 56A, 58A, N60 – wenige Gehminuten entfernt
S-Bahn: S2 und S3 (Bahnhof Liesing) mit direkter Verbindung ins Stadtzentrum
U-Bahn: U6 – schnell erreichbar und direkte Anbindung zur Innenstadt
Straßenbahnlinie 60 Richtung Hietzing
Mit dem Auto sind sowohl die Südosttangente (A23) als auch die Südautobahn (A2) in wenigen Minuten erreichbar.

Fazit
Ein großzügiges Grundstück in bester Lage, das durch seine vielseitigen Nutzungsmöglichkeiten überzeugt – ob als charmantes Zuhause im bestehenden Bungalow oder als spannendes Entwicklungsprojekt für Bauträger

Ein Energieausweis ist in Arbeit.

Hinweis gemäß Energieausweisvorlagegesetz: Ein Energieausweis wurde vom Eigentümer bzw. Verkäufer, nach unserer Aufklärung über die generell geltende Vorlagepflicht, sowie Aufforderung zu seiner Erstellung noch nicht vorgelegt. Daher gilt zumindest eine dem Alter und der Art des Gebäudes entsprechende Gesamtenergieeffizienz als vereinbart. Wir übernehmen keinerlei Gewähr oder Haftung für die tatsächliche Energieeffizienz der angebotenen Immobilie.

Der Vermittler ist als Doppelmakler tätig.

Infrastruktur / Entfernungen

Gesundheit
Arzt <500m
Apotheke <750m
Klinik <1.750m
Krankenhaus <1.750m

Kinder & Schulen
Schule <250m
Kindergarten <750m
Universität <4.500m
Höhere Schule <5.500m

Nahversorgung
Supermarkt <750m
Bäckerei <1.000m
Einkaufszentrum <1.000m

Sonstige
Geldautomat <1.000m
Bank <1.000m
Post <1.000m
Polizei <1.250m

Verkehr
Bus <500m
U-Bahn <3.000m
Straßenbahn <750m
Bahnhof <1.000m
Autobahnanschluss <3.500m

Angaben Entfernung Luftlinie / Quelle: OpenStreetMap
Beschreibung weiterlesen

Lage und Verkehrsanbindung

Binagasse

Dokumente

Grundrisse

Lageplan

1230 Wien | Wien 23., Liesing

Lade...
Karin Prosenik-Resch

Karin Prosenik-Resch
Broker Owner

RE/MAX First - Prosenik-Resch Immobilien OG

Lade...

Fotomix

Uneinsehbares Traumgrundstück Vorgarten Bungalow Haupteingang Ebene Lage Pavillion Private Atmosphäre Gartenterrasse  | Blick auf den Bungalow Gartenterrasse | Blick in den Garten Gepflegter Altbaumbestand Weitläufig Bungalow mit Wintergarten Garage Garageneinfahrt Hauseingang  und Stiegenabgang zum Keller Wohnbereich Wintergarten Wohnbereich Wintergarten Hell und freundlich Essecke im Wohnbereich Küche Küche Entree Flur Bad mit Wanne und Dusche Bad mit Fenster Großes Bad Schlafzimmer Schlafzimmer Zentral begehbar Haus Strassenansicht