NEU - Innerstädtisches Entwicklungsobjekt mit Wohn- und Gastronomiepotenzial in Mattersburg

Haus zum Kauf in 7210 Mattersburg - Kaufpreis: 459.000 € / Objektnummer: 5063/1991
Ausstattung: Fahrstuhl
Straßenansicht (Entwurf)
Erdgeschoss (Entwurf)
1. Etage (Entwurf)
2. Etage (Entwurf)

Preisinformationen

Kaufpreis:
459.000 €
Vermittlungsprovision:
Ja
Provision:
3% des Kaufpreises zzgl. 20% USt.

Fakten

Objektnummer:
5063/1991
Objekttyp:
Haus
Keller Fläche:
16,42 m²
Wohnfläche:
240 m²
Nutzfläche:
480 m²
Grundstücksfläche:
225 m²
Altbau:
Ja
Zustand:
Erstbezug
Verfügbarkeit:
Verfügbar

Beschreibung

Gegenstand dieser Machbarkeitsstudie ist die Umstrukturierung eines Bestandsgebäudes zu einem hochwertigen Mixed-Use-Objekt mit klarer funktionaler Trennung von Wohnen und Gewerbe.

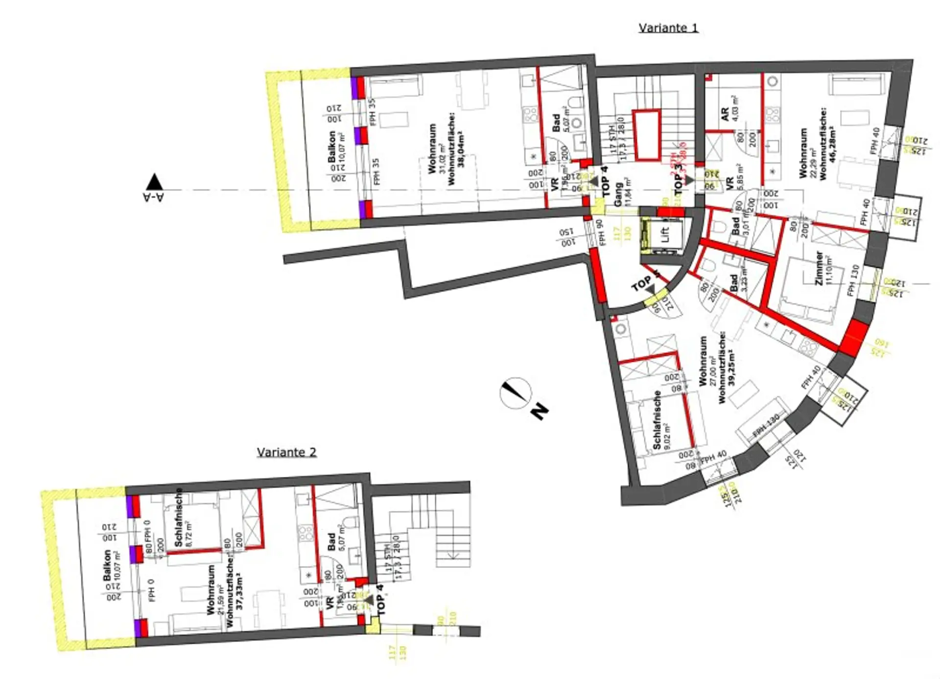
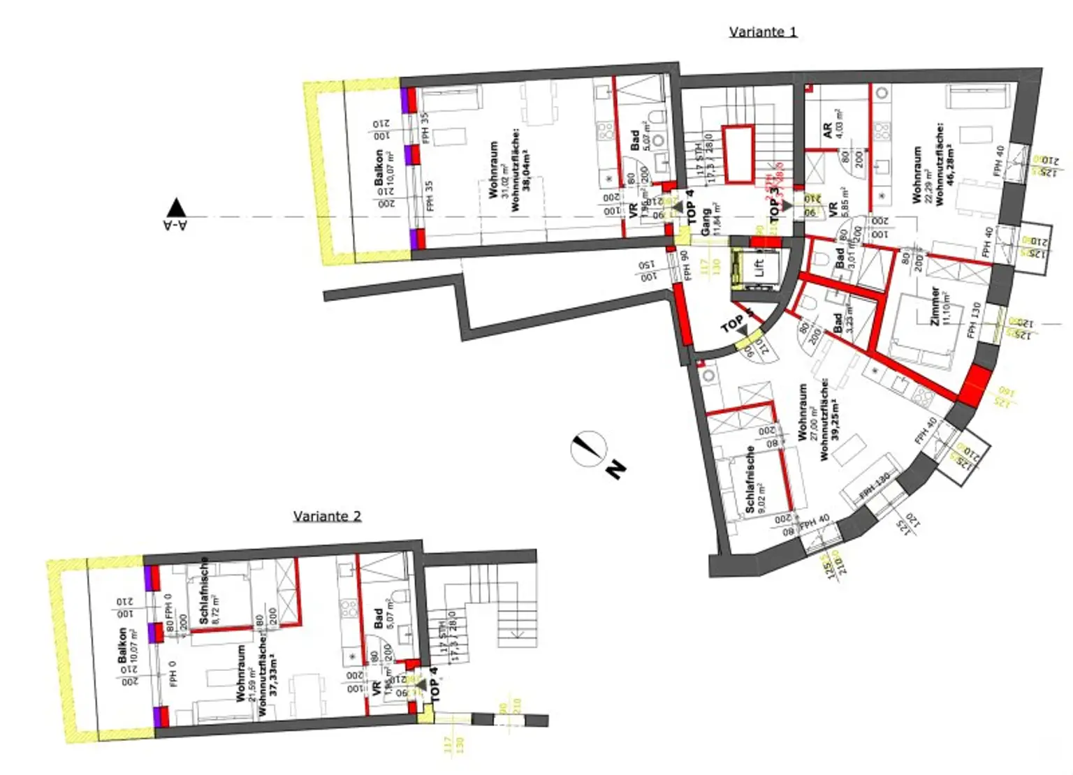
Geplant ist die Entwicklung von fünf kompakten Wohneinheiten in den Obergeschossen sowie einer weiterhin gewerblich genutzten Gastronomiefläche im Erdgeschoss. Die Wohnbereiche erhalten einen eigenständigen Zugang mit Lift und Treppe, wodurch eine vollständige Entkopplung der Nutzungen erreicht wird.

Im 1. Obergeschoss sind zwei Wohnungen, Kellersatzräume sowie eine gemeinschaftlich nutzbare Freifläche vorgesehen. Das 2. Obergeschoss bietet zwei weitere Einheiten sowie die Option eines zusätzlichen Wohnlofts mit flexibler Schlaflösung.

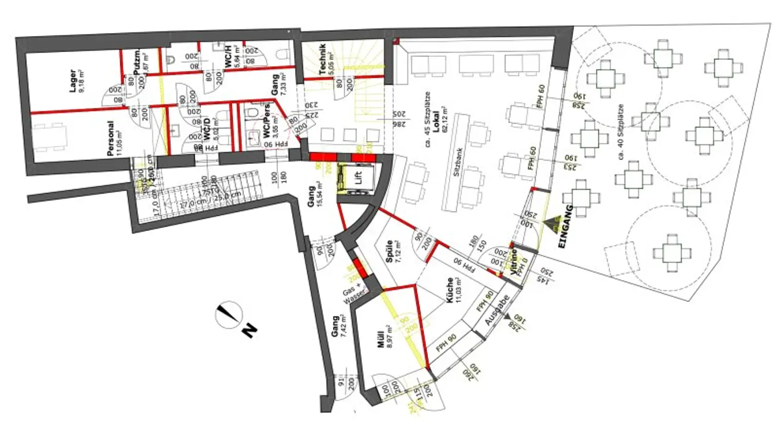
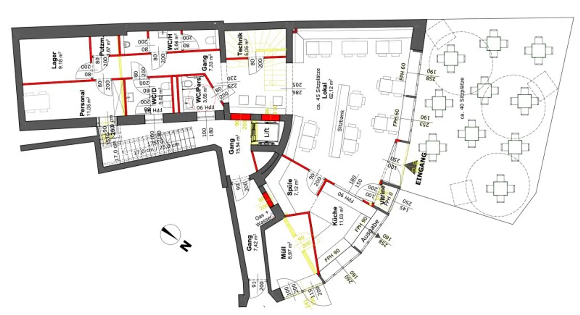
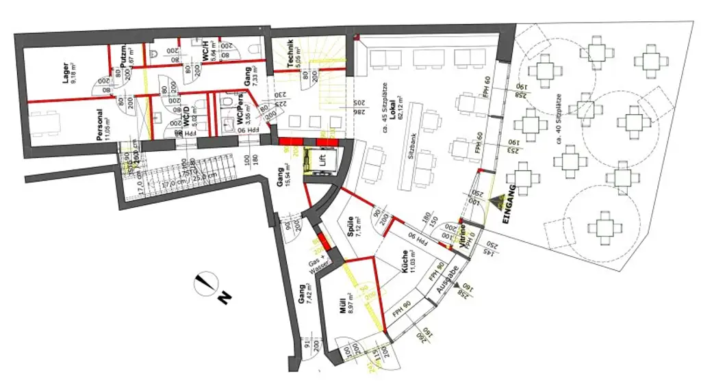
Die Gastronomiefläche ist variabel konzipiert und erlaubt sowohl ein Cafe-/Bar-Konzept mit Schauküche als auch eine klassische Lösung mit geschlossener Küche. In beiden Varianten sind ca. 40 Sitzplätze im Innenbereich sowie ein ebenso großer Gastgarten, der bereits von der Gemeinde genehmigt wurde, realisierbar. Take-away-Strukturen und Selbstbedienungssysteme ermöglichen einen wirtschaftlich effizienten Betrieb.

Infrastruktur / Entfernungen

Gesundheit
Arzt <2.000m
Apotheke <1.500m
Klinik <8.500m

Kinder & Schulen
Schule <1.000m
Kindergarten <500m
Universität <10.000m

Nahversorgung
Supermarkt <1.000m
Bäckerei <1.500m
Einkaufszentrum <9.500m

Sonstige
Bank <1.500m
Post <1.500m
Geldautomat <1.500m
Polizei <2.000m

Verkehr
Bus <500m
Autobahnanschluss <2.000m
Bahnhof <1.000m

Angaben Entfernung Luftlinie / Quelle: OpenStreetMap
Beschreibung weiterlesen

Lage und Verkehrsanbindung

Zentrale Innenstadtlage in Mattersburg mit hoher Fußgängerfrequenz. Die urbane Umgebung ermöglicht ein zukunftsorientiertes, autofreies Wohnkonzept – ein im Burgenland seltenes Marktsegment. Ergänzend stehen in unmittelbarer Nähe mietbare Stellplätze zur Verfügung.

Grundrisse

Lageplan

7210 Mattersburg | Mattersburg

Lade...
Wolfgang Mayer

Wolfgang Mayer
Dipl. IM

IMERO GmbH

Lade...