NEU - Invest-Wohnung mit Terrasse in einem sanierten Altbau im 19. Bezirk

Wohnung zum Kauf in 1190 Wien - Kaufpreis: 385.000 € / Objektnummer: 11134
Ausstattung: Boden Wohnküche / offene Küche Fahrradraum Abstellraum Fernwärme Zentralheizung Terrasse

Preisinformationen

Kaufpreis:
385.000 €
Betriebskosten netto:
177,18 € / Monat
Vermittlungsprovision:
Ja
Provision:
13.860,00 € inkl. 20% USt.

Fakten

Objektnummer:
11134
Objekttyp:
Wohnung
Terrasse:
1
Wohnfläche:
73,41 m²
Toilette:
1
Stockwerk:
4
Baujahr:
1900
Altbau:
Ja
Zustand:
Teilsaniert
Verfügbarkeit:
Verfügbar

Beschreibung

ZAHLEN UND FAKTEN

*  Invest-Wohnung mit Terrasse in einem sanierten Altbau im 19. Bezirk mit schönen Ausblick
* Derzeit unbefristet vermietet - HMZ - 906,75 (Netto)
* BK - 197,13
* freier Mietzins -  Der Aufbau  wurde im Jahr 2006  gemacht
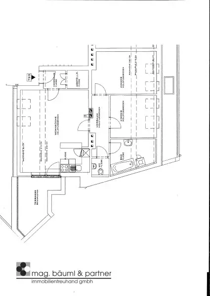
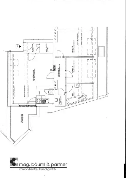
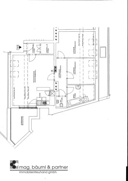
* Wohnfläche: 73,41  m²
* Vorraum,  Wohnzimmer mit Küche, 2 Schlafzimmer, 1 Badezimmer, 1 WC, Abstellraum. 
* Zentralheizung  ist Fernwärme 
* Neue Parkettböden 
* Individuell gut geplante Wohnküche eingerichtet mit allen Geräten
* großes Badezimmer mit einer Badewanne
* im Haus gibt es einen  neuen  Aufzug und ein Kinderwagen-/Fahrradabstellraum
* renovierter Keller
* letzte Sanierung der Wohnung war in 2024
* Generalsanierung des Hauses war im Jahr 2006

LAGE: 

Währinger Park in der Nähe. Öffentliche Verkehrsanbindung - Wien Spittelau Bahnhof, U6-Nussdorfer Straße, Straßenbahnlinien 38 und 37, Buslinien lOA, 35A, 37A, 40A und S-Bahn

 

KAUFPREIS: € 385.000,- (VB)

Der Vermittler ist als Doppelmakler tätig.

Infrastruktur / Entfernungen

Gesundheit
Arzt <500m
Apotheke <500m
Klinik <500m
Krankenhaus <1.000m

Kinder & Schulen
Schule <500m
Kindergarten <500m
Universität <500m
Höhere Schule <500m

Nahversorgung
Supermarkt <500m
Bäckerei <500m
Einkaufszentrum <2.500m

Sonstige
Geldautomat <500m
Bank <500m
Post <1.000m
Polizei <1.000m

Verkehr
Bus <500m
U-Bahn <500m
Straßenbahn <500m
Bahnhof <1.000m
Autobahnanschluss <1.500m

Angaben Entfernung Luftlinie / Quelle: OpenStreetMap
Beschreibung weiterlesen

Lage und Verkehrsanbindung

Währinger Park, Wien Spittelau Bahnhof, U6-Nussdorfer StraBe, Busstelle 35A, 37A, 40A, N35, Strassenbahnstelle 38 und 37

Energieeffizienz

HWB:
24 kWh/(m²*a)
HWB Klasse:
A
fGEE:
1,36
fGEE Klasse:
C
Energieausweisart:
Energiebedarfs-ausweis

Grundriss

Lageplan

1190 Wien | Wien 19., Döbling

Lade...
Nataliia Enzminger

Nataliia Enzminger
ImmobilienmaklerIn

Mag. Bäuml & Partner Immobilientreuhand GmbH

Lade...

Fotomix

Bild 1 Bild 2 Bild 3 Bild 4 Bild 5 Bild 6 Bild 7