NEU - Investieren auf Eigengrund nahe U1 Kagran - Der Beste Platz im Viertel - An der Schanze 25

Wohnung zum Kauf in 1210 Wien - Kaufpreis: 385.000 € / Objektnummer: 1718/418359
Ausstattung: Boden Fahrstuhl Wohnküche / offene Küche Bad Kabel/Satelliten-TV Klimaanlage Tiefgarage Parkplatz Fahrradraum Abstellraum Zentralheizung Balkon

Preisinformationen

Kaufpreis:
385.000 €
Vermittlungsprovision:
Ja
Provision:
Provision bezahlt der Abgeber.

Fakten

Objektnummer:
1718/418359
Objekttyp:
Wohnung
Balkon:
1
Balkonfläche:
7,26 m²
Keller Fläche:
1,42 m²
Wohnfläche:
64,96 m²
Nutzfläche:
72,22 m²
Gesamtfläche:
72,22 m²
Zimmer:
2
Badezimmer:
1
Toilette:
1
Stockwerk:
2
Baujahr:
2026
Neubau:
Ja
Zustand:
Erstbezug
Verfügbarkeit:
Verfügbar

Beschreibung

Wohntraum im Herzen des Donaufeldes – An der Schanze 25 – Kaufen auf Eigengrund - PROVISIONSFREI

 

Inmitten des Donaufeldes entsteht eine Oase der Ruhe mit in Summe 212 exklusiven Wohnungen, welche sich auf vier Gebäudekörper aufteilen. Die Wohnhausanlage liegt in einem autoreduzierten Gebiet nur unweit der Alten Donau und dem Donauzentrum.

Die Wohnungsgrößen in unserem Neubauprojekt variieren von 39 Quadratmetern bis hin zu geräumigen 120 Quadratmetern. Dabei sind Wohnungen mit 2 bis 4 Zimmern verfügbar, um Ihnen genügend Raum für individuelle Gestaltungsmöglichkeiten zu bieten.

Die Wohnungen verfügen über hochwertige Ausstattungen wie Fußbodenheizung mittels Bauteilaktivierung inklusive Temperierungsmöglichkeit, Außenbeschattung und moderne Materialien. Alle Wohneinheiten verfügen über Freiflächen wie Balkone, Terrassen oder Loggien.

Im Umfeld entsteht in den nächsten Jahren ein neues Stadtquartier was sowohl die Infrastruktur als auch die Wohnqualität maßgeblich prägt. Durch die Nähe zur U1 Kagran erreichen Sie die Innenstadt nach nur wenigen Haltestopps mit der U1. Auch die UNO City liegt nur 1 U-Bahn Station entfernt.

Der Baustart des Projektes ist bereits erfolgt und die Fertigstellung ist mit Herbst 2026 geplant.

 

Die Highlights nochmals kurz für Sie zusammengefasst:

 

* Provisionsfrei
* Eigengrund – Seltenheitscharakter!
* Fußbodenheizung durch Bauteilaktivierung - Raumtemperierung im Sommer!
* Ausgezeichnete Infrastruktur durch Nähe zum Donauzentrum
* Nahe der oberen Alten Donau
* Stellplätze in hauseigener Tiefgarage

 

Ausstattungsstandard

 

Die Ausstattung der Wohnungen zeichnen sich durch qualitativ hochwertige Materialien aus:

 

* Fussbodenheizung mittels Fernwärme sowie Baukernaktivierung
* Echtholzböden
* Keramische Fließen in den Nassräumen
* Aussenbeschattung mittels gurtbetriebenen Raffstores (Bedienung mittels Elektroantrieb auf Kundenwunsch)
* Lift
* Kellerabteil
* Fahrradraum & Kinderwagenabstellmöglichkeit
* E-Ladestationen für die Garagenplätze auf Kundenwunsch möglich

 

Folgende öffentliche Verkehrsmittel stehen somit zur Verfügung

* U1 Kagran
* Straßenbahnlinien 25 & 26
* Buslinien 22A, 26A, 27A, 93A, 94A

 

 

Energieausweis

 

Der Heizwärmebedarf beträgt bei Bauteil A 23,20 kWh/m²a, welcher der Klasse B entspricht

Der Heizwärmebedarf beträgt bei Bauteil B 22,4 kWh/m²a, welcher der Klasse B entspricht

Der Heizwärmebedarf beträgt bei Bauteil D 21,90 kWh/m²a, welcher der Klasse B entspricht.

 

Für Fragen bzw. Besichtigungen steht Ihnen Herr Julian Kukacka sehr gerne unter 0664 444 5770 zur Verfügung.

 

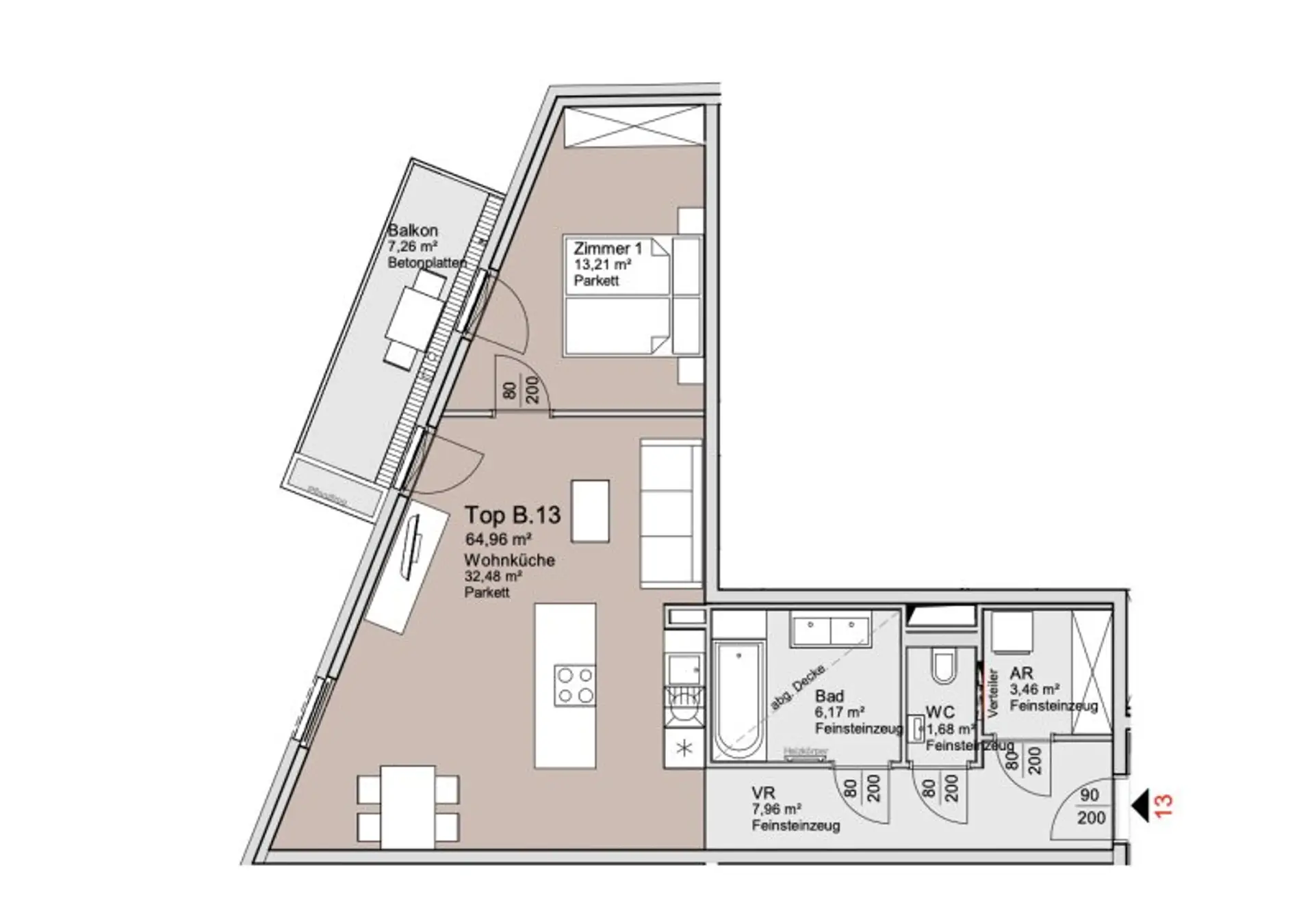
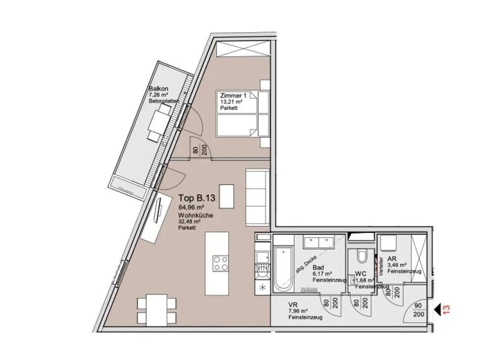
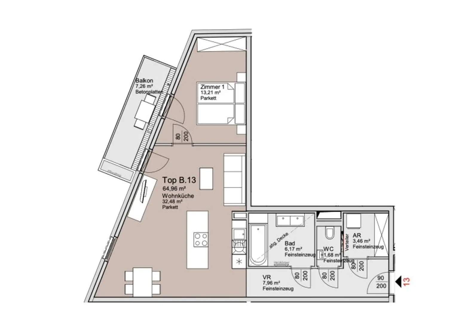
WOHNUNG TOP 13:

Die 2-ZIMMER WOHNUNG mit CA. 64,96 M² WOHNFLÄCHE und CA. 7,26 M² BALKON liegt im 2. LIFTSTOCK und gliedert sich in folgende tolle Raumaufteilung:

* Wohnküche ca. 32,48 m² - mit Zugang zur Loggia
* Schlafzimmer ca. 13,21 m² - mit Zugang zur Loggia 
* Vorraum ca. 7,96 m²
* Badezimmer ca. 6,17 m²
* separate Toilette ca. 1,68 m²
* Abstellraum ca. 3,46 m²

 

KAUFPREIS WOHNUNG:

Der Kaufpreis beträgt 420.000,- €.

Der Kaufpreis für Anleger beträgt 385.000,- € ZZGL. 20% UST.
 

KAUFPREIS PKW-GARAGENPLATZ:

Der Kaufpreis beträgt 40.000,- €.

Der Kaufpreis für Anleger beträgt 36.000,- € ZZGL. 20% UST.

 

INFRASTRUKTUR:

In Gehweite der idyllischen Lage befindet sich die Donau, das Donauzentrum mit knapp 300 Shops, die U1 Station Kagran und die Vienna Internation School. Ebenfalls in wenigen Minuten erreichen Sie diverse Supermärkte und diverse andere Geschäfte für den täglichen Bedarf. Die Autobahnanschlussstelle ist ebenfalls in Kürze erreichbar.
 

VERKEHRSANBINDUNG:

* Buslinie 27A
* U1 Kagran
* Direkt am Entwicklungsgebiet An der Schanze wird eine neue Straßenbahnlinie vorbeiführen

 

Energieausweis

Der Heizwärmebedarf beträgt bei Bauteil A 23,20 kWh/m²a, welcher der Klasse B entspricht

Der Heizwärmebedarf beträgt bei Bauteil B 22,4 kWh/m²a, welcher der Klasse B entspricht

Der Heizwärmebedarf beträgt bei Bauteil D 21,90 kWh/m²a, welcher der Klasse B entspricht.

 

FÜR FRAGEN BZW. BESICHTIGUNGEN STEHT IHNEN HERR JULIAN KUKACKA SEHR GERNE UNTER 0664 444 5770 ZUR VERFÜGUNG.

Wir weisen darauf hin, dass zwischen dem Vermittler und dem zu vermittelnden Dritten ein familiäres oder wirtschaftliches Naheverhältnis besteht.

Der Vermittler ist als Doppelmakler tätig.

Infrastruktur / Entfernungen

Gesundheit
Arzt 750m
Apotheke 750m
Klinik 2.250m
Krankenhaus 2.500m

Kinder & Schulen
Schule 500m
Kindergarten 500m
Universität 1.000m
Höhere Schule 1.500m

Nahversorgung
Supermarkt 500m
Bäckerei 1.000m
Einkaufszentrum 1.000m

Sonstige
Geldautomat 1.000m
Bank 1.000m
Post 1.500m
Polizei 750m

Verkehr
Bus 500m
U-Bahn 1.000m
Straßenbahn 500m
Bahnhof 1.000m
Autobahnanschluss 2.000m

Angaben Entfernung Luftlinie / Quelle: OpenStreetMap
Beschreibung weiterlesen

Lage und Verkehrsanbindung

An der Schanze, U1 Kagran Donauzentrum, Obere Alte Donau, Donaufeld

Donauzentrum

Energieeffizienz

HWB:
22,4 kWh/(m²*a)
HWB Klasse:
B
fGEE:
0,8
fGEE Klasse:
B
Energieausweisart:
Energiebedarfs-ausweis

Grundriss

Lageplan

1210 Wien | Wien 21., Floridsdorf

Lade...
Julian Kukacka

Julian Kukacka

RIMMO Prime Vermittlungs GmbH

Anrufen
Lade...

Fotomix

Bild 1 Bild 2 Bild 3 Bild 4 Bild 5 Bild 6 Bild 7 Bild 8