NEU - Investment oder Eigennutzung - sonnige 2-Zimmer-Balkonwohnung ERSTBEZUG!

Wohnung zum Kauf in 1220 Wien - Kaufpreis: 299.900 € / Objektnummer: 247/21904
Ausstattung: Boden Fahrstuhl Fußbodenheizung Balkon
Balkon
Hausansicht
Wohnraum I
Schlafzimmer I
Wohnraum
Vorraum
Innenhof I
Badezimmer
Innenhof VI
Eingangsbereich I
Schlafzimmer
Wohnraum II
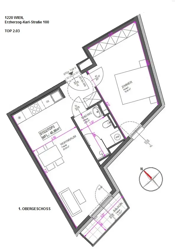
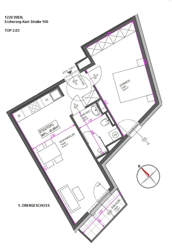
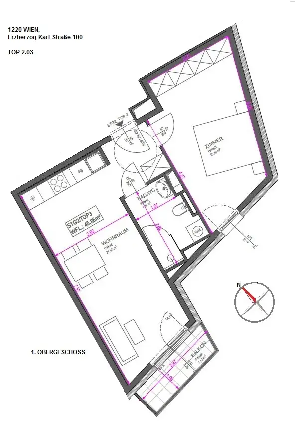
Top 2.03 Plan
Lageplan

Preisinformationen

Kaufpreis:
299.900 €
Kaufpreis/m²
6.324,34 €
Preisinfos:
GrESt 3,5% + Grundbucheintragung 1,1% des Gesamtkaufpreises /Vertragserrichtung 1,5% + Barauslagen, Beglaubigungs-, ggf. Treuhandkosten bei Finanzierung +USt. (Mag. Teodora Aurora Vrancean, M.P.S. / Provision 3% +USt. d…
Vermittlungsprovision:
Ja
Provision:
3%

Fakten

Objektnummer:
247/21904
Objekttyp:
Wohnung
Balkon:
1
Wohnfläche:
45,86 m²
Zimmer:
2
Badezimmer:
1
Toilette:
1
Baujahr:
2020/Neubau
Neubau:
Ja
Verfügbarkeit:
Verfügbar

Beschreibung

Diese moderne 2-Zimmer-Wohnung mit Balkon in der Erzherzog-Karl-Straße ist ein attraktives Investment in den lebenswerten 22. Bezirk. Die Wohnung (ca. 46 m²) befindet sich im 1. Obergeschoss eines modernen Neubaus aus dem Jahr 2020. Sie besticht mit dem herrlichen ca. 3 m² großen Balkon. Die begehrte Lage sichert hervorragende Perspektiven für eine nachhaltige Wertsteigerung. Die Ausstattungs-Highlights: - Kunststoff-Alu-Fenster mit 3-fach-Isolierverglasung - Innentüren aus Holz und einbruchshemmende Wohnungseingangstüren - Parkettböden in Eiche Landhausdiele CHALE 190 - Feinsteinzeug-Fliesen im Format 30 × 60 cm - Sanitärmöbel von LAUFEN und Armaturen von GROHE - Digitale Videogegensprechanlage - Elektrische, außenliegende Raffstores an allen Fenstern - Wasser- und Stromanschlüsse auf allen Balkonen und Terrassen - Hochwertige Steinbeläge auf sämtlichen Außenflächen - Luftwärmepumpe mit Fußbodenheizung - Kinderwagen- und Fahrradabstellraum - Großzügige Tiefgarage mit E-Ladevorbereitung - Aufzug in alle Stockwerke - Klimaanlage im 2. Dachgeschoss installiert, im 1. Dachgeschoss vorbereitet - Modernes Wohnkonzept für höchste Ansprüche an Komfort, Design und Nachhaltigkeit - Attraktive Freiflächen mit Blick auf Teich und Parkanlage Die Lage-Highlights: - Buslinien 26A und 94A (3 Gehminuten) - Straßenbahnlinie 25 (4 Gehminuten) - Bahnhof Erzherzog-Karl-Straße (5 Gehminuten) - Supermarkt (2 Gehminuten) - Otto-Affenzeller-Park (3 Gehminuten) - Lagerwiese Rehlacke / An der unteren Alten Donau (5 Minuten mit dem Rad) - Zahlreiche Gastronomieangebote Der Kaufpreis für diese in ausgezeichneter Lage und Infrastruktur befindliche Eigentumswohnung beträgt Euro 299.900,-. Kaufpreis Garagenplatz (optional): EUR 32.000,- Anlegerfreundliche Netto-Variante mit USt-Überrechnung möglich! Vereinbaren Sie noch heute einen Besichtigungstermin und lassen Sie sich von dieser besonderen Immobilie verzaubern. Diesbezüglich freuen wir uns über Ihre geschätzte Anfrage per Mail. Tipp: Die gesamte Anlage wird gerade parifiziert und abverkauft. Fragen Sie uns nach weiteren Objekten bzw. Paketangeboten! Wir möchten darauf hinweisen, dass unsere Antwort möglicherweise in Ihrem Spamordner landen könnte. Bitte kontrollieren Sie diesen, wenn Sie keine Rückmeldung auf Ihre Anfrage erhalten haben. Wir freuen uns auf Ihre Anfrage und einen gemeinsamen Besichtigungstermin! .
Beschreibung weiterlesen

Lage und Verkehrsanbindung

Froschteichpark, Polgarstraße

Energieeffizienz

HWB:
27,8 kWh/(m²*a)
HWB Klasse:
B
fGEE:
0,77
fGEE Klasse:
A

Grundrisse

Melanie Eiblthauer

Melanie Eiblthauer

IMV Immobilienmakler

Lade...

Fotomix

Balkon Hausansicht Wohnraum I Schlafzimmer I Wohnraum Vorraum Innenhof I Badezimmer Innenhof VI Eingangsbereich I Schlafzimmer Wohnraum II