NEU - Investmentchance in Hönigsberg: Zinshaus mit 6 Wohnungen mit TOP Rendite

Haus zum Kauf in 8682 Mürzzuschlag-Hönigsberg - Kaufpreis: 300.000 € / Objektnummer: 3812/326
Ausstattung: Möbliert Carport Parkplatz Außenparkplatz Fahrradraum Abstellraum Zentralheizung WG geeignet
1 Außen-2
2 Außen Hinterseite + Carport
3 Schlafz-2
4 Zimmer-2
5 Küche-2
6 Vorraum-2
7 Bad-2
8 Schalfz-2
9 Küche-2
10 Bad-2
11 Vorraum
12 Stiegenhaus
13 Stiegenhaus
14 Dachboden
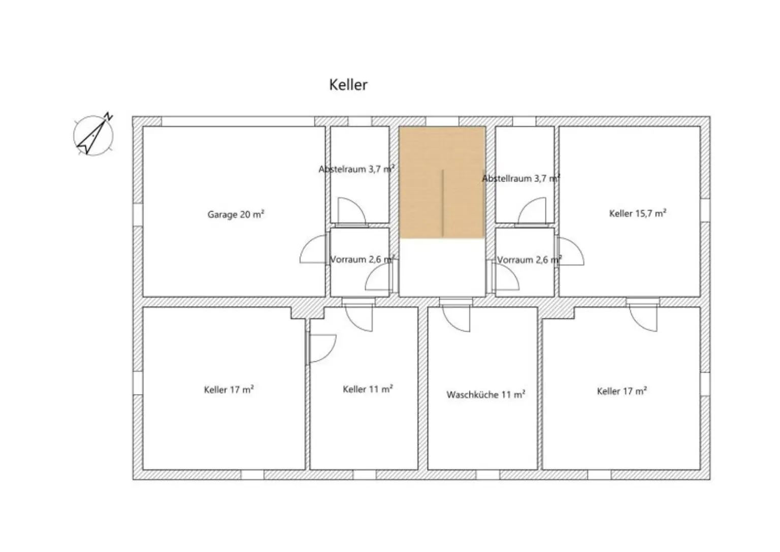
15 Keller
16 Waschraum
17 Strom.
18 Heizung
19 Heizung
326 Flächenwidmungsplan
326 Hochwasserrisikozone
326 Kataster
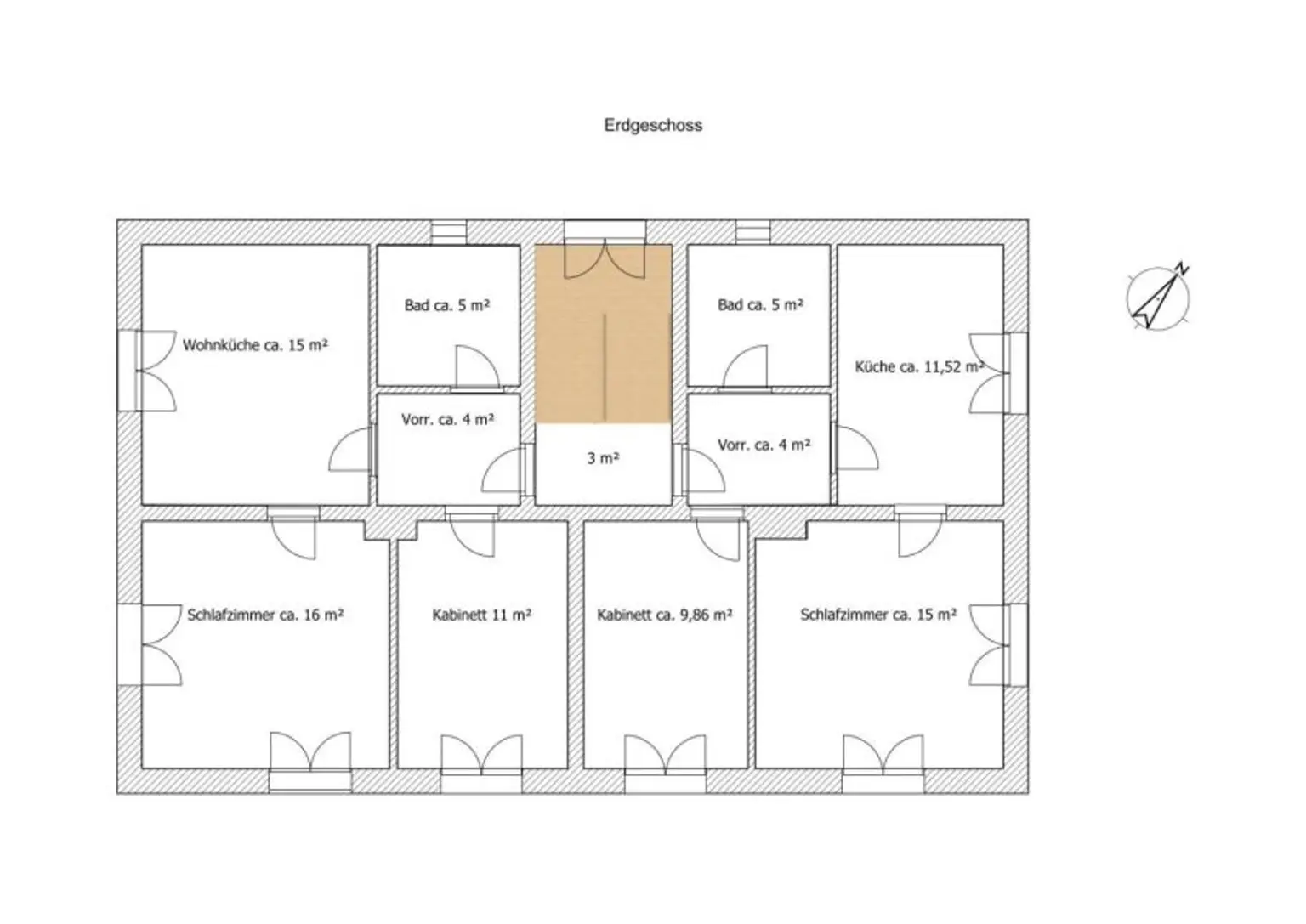
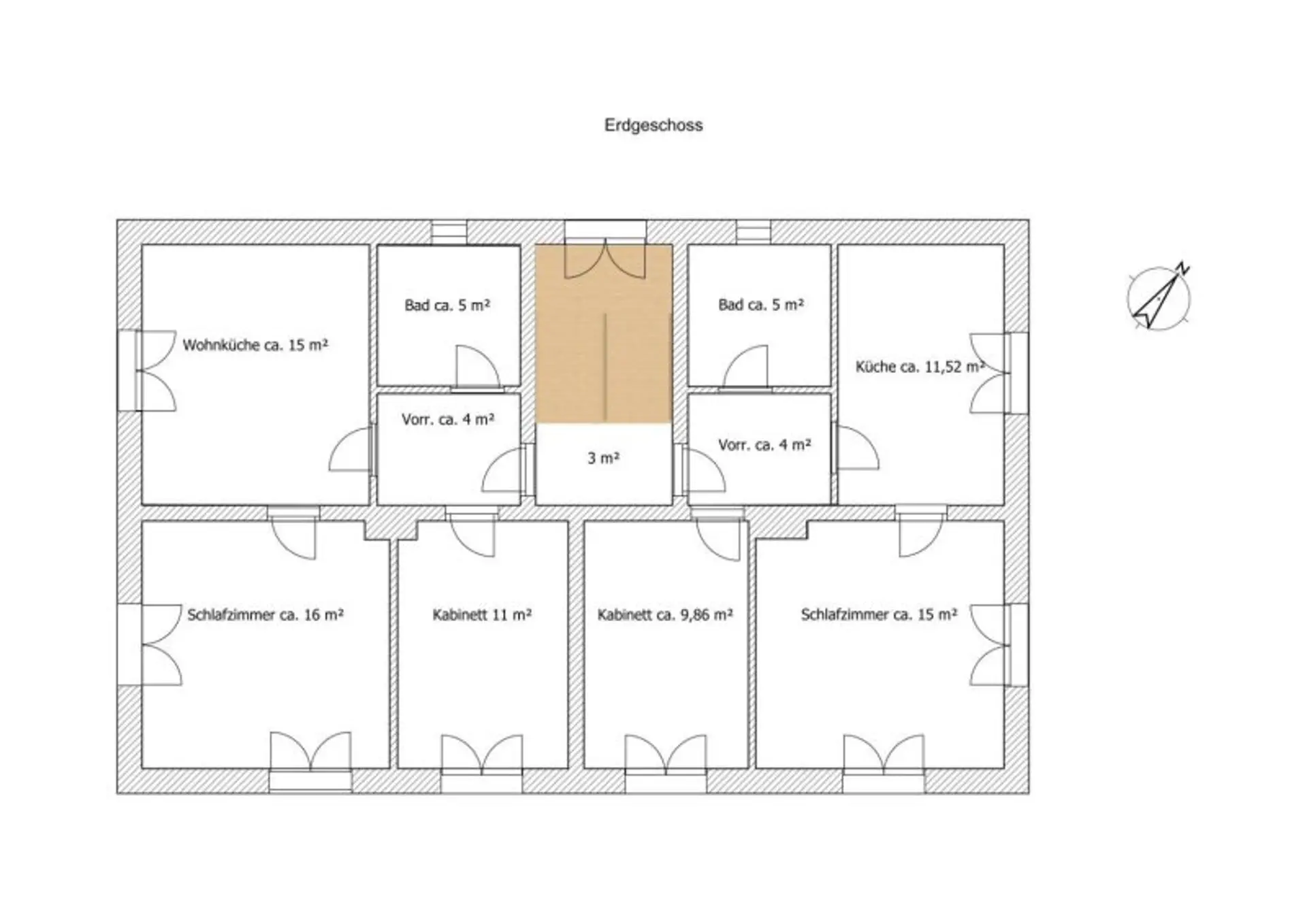
326 EG
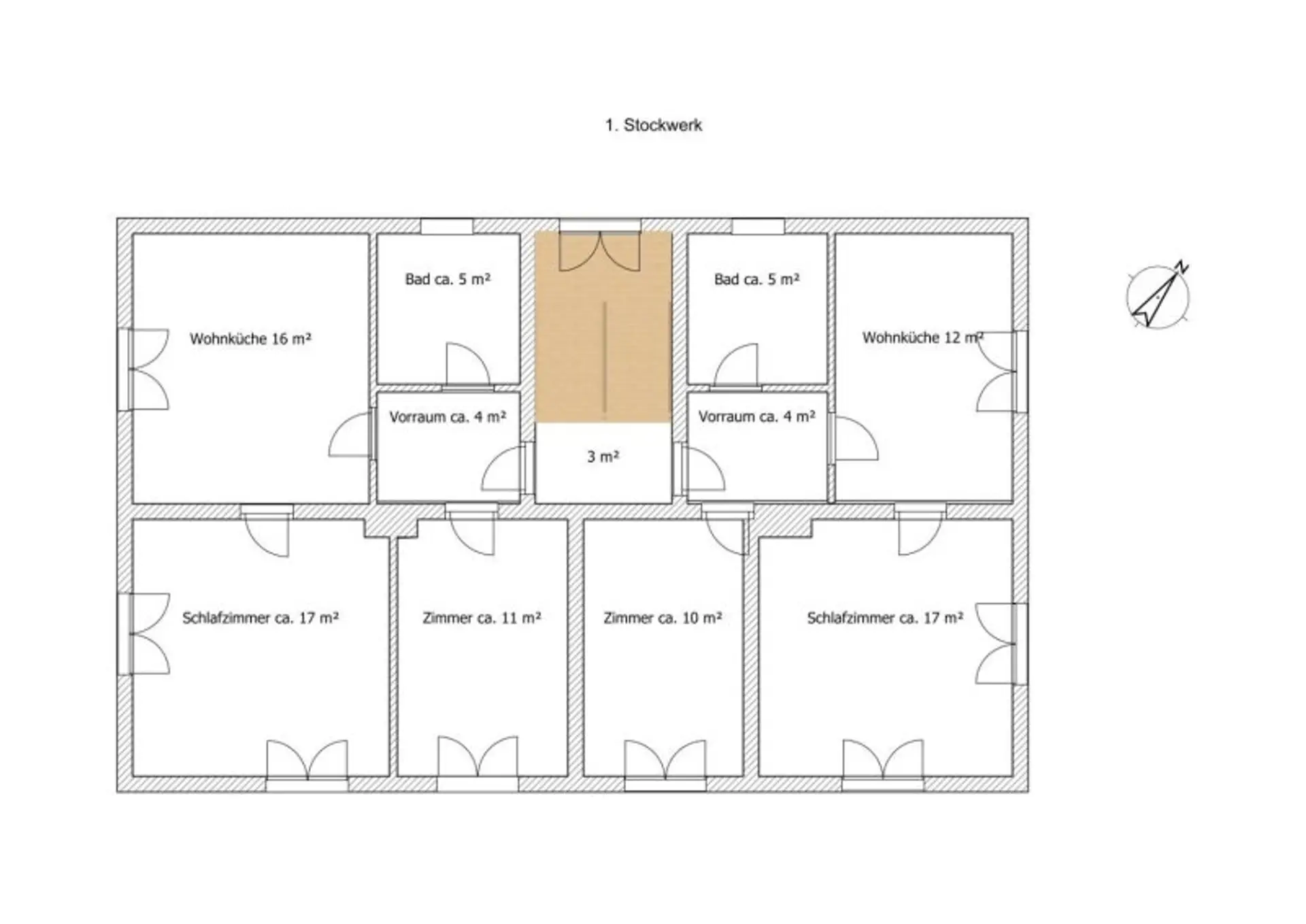
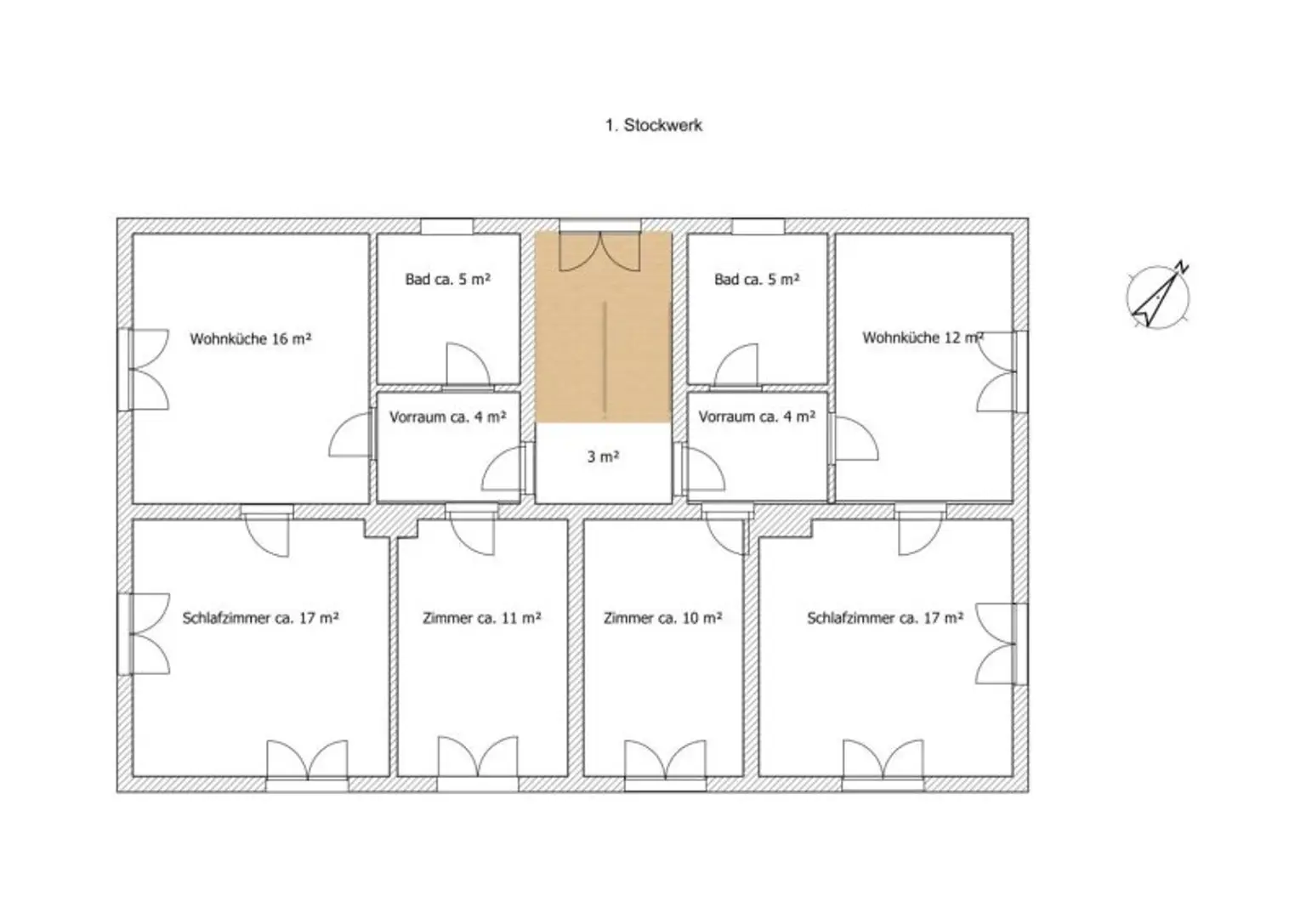
326 1 OG
326 Keller
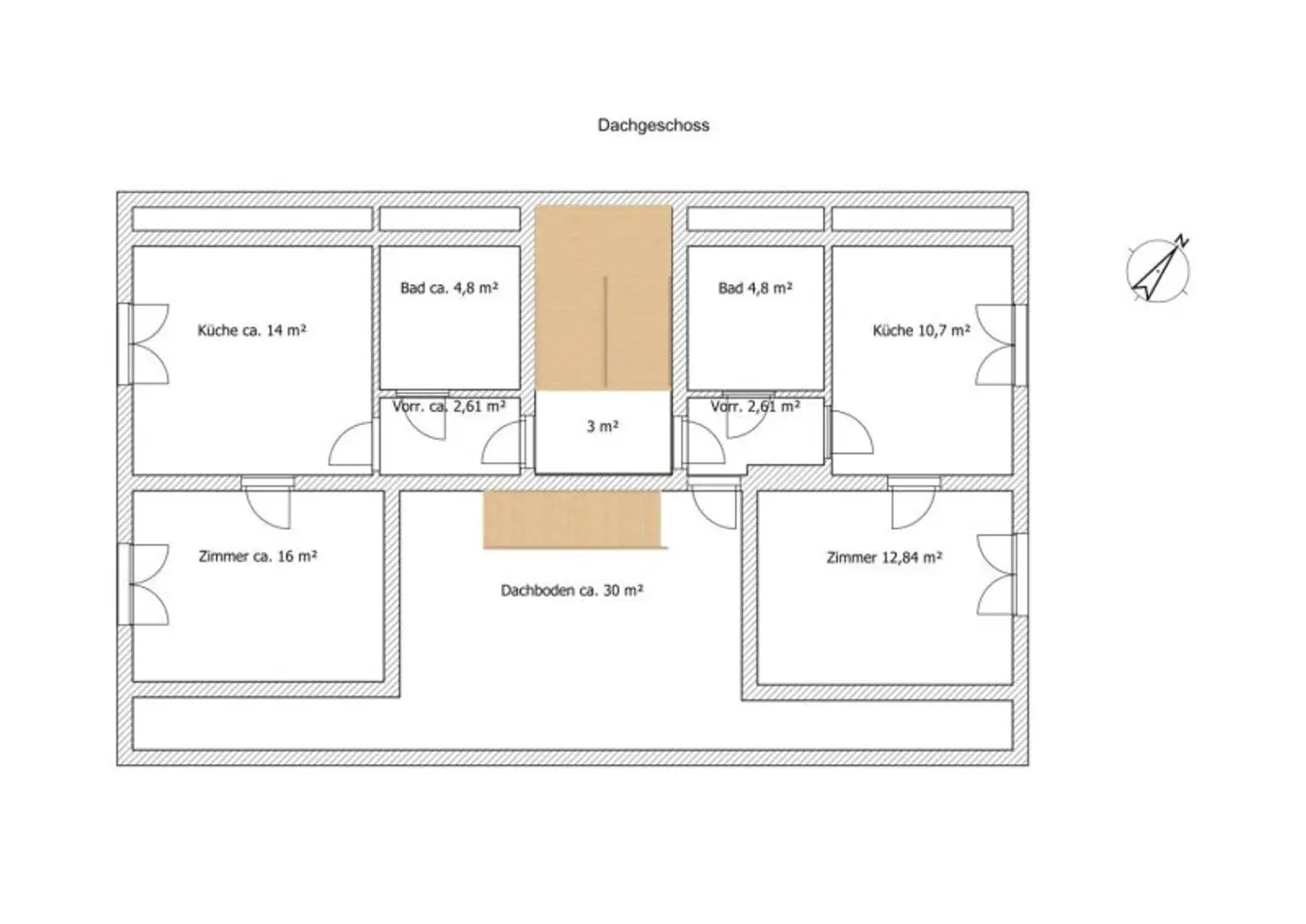
326 Dachgeschoss

Preisinformationen

Kaufpreis:
300.000 €
Betriebskosten netto:
193,07 € / Monat
Heizkosten netto:
151,70 €
Vermittlungsprovision:
Ja
Provision:
3% des Kaufpreises zzgl. 20% USt.

Fakten

Objektnummer:
3812/326
Objekttyp:
Haus
Keller Fläche:
100 m²
Wohnfläche:
270 m²
Grundstücksfläche:
1.002 m²
Zimmer:
10
Badezimmer:
6
Toilette:
6
Stockwerk:
-1
Baujahr:
1963
Neubau:
Ja
Zustand:
Teilsaniert
Verfügbarkeit:
Verfügbar

Beschreibung

🏠 Attraktives Zinshaus in Hönigsberg – 6 Wohnungen mit stabiler Bruttorendite
Top-Investment in gefragter Wohnlage – gepflegtes Zinshaus mit 6 Einheiten, Gemeinschaftsgarten & hoher Mietnachfrage
Dieses gepflegte Zinshaus in der beliebten Marktgemeinde Hönigsberg (Bezirk Bruck-Mürzzuschlag) bietet eine einzigartige Investitionschance für Anleger, die Wert auf Sicherheit, Substanz und attraktive Rendite legen.
Mit 6 sehr gut vermietbaren Wohneinheiten, einem laufenden Mietertrag und einer Bruttorendite von rund 8 % überzeugt dieses Objekt sowohl wirtschaftlich als auch baulich auf ganzer Linie.
Das Gebäude wurde 1963 errichtet.
In den vergangenen zehn Jahren wurden die Kunststofffenster erneuert und eine moderne Pelletsheizung installiert.
Die Liegenschaft präsentiert sich in einem guten Zustand mit geringen Aufbereitungsarbeiten, sofort vermietbar und sichert stabile Mieterträge.
____________________
🏡 Objektdetails
• Baujahr: 1963
• Grundstücksgröße: 1.002 m²
• Wohnfläche gesamt: ca. 270 m²
• Anzahl der Wohnungen: 6
• Heizung: Moderne Pelletsheizung – effizient & umweltfreundlich
• Parkplätze: 6 Kfz-Stellplätze
• Gemeinschaftsgarten: ja – rundum eingezäunt
• Zustand: in Ordnung
• Kaufpreis: € 300.000, -
• Bruttorendite: ca. 8 %
____________________
💰 Mieterträge & Betriebskosten
Das Zinshaus ist aktuell Teil-vermietet (2 bestehende Mietverhältnisse bis längstens Ende Dezember 2026)
Beispiel Wohnung im Erdgeschoss:
• Wohnfläche: ca. 52 m²
• Befristeter Mietvertrag seit: 01.01.2024 (bis Ende Dezember 2026)
• Miete inkl. Betriebskosten: € 495 / Monat

Monatliche Eigentümerkosten
• Betriebskosten: € 193,10
• Heizkosten: € 151,67
• Versicherung: € 67,26

Das attraktive Verhältnis von Mieteinnahmen zu Kaufpreis ergeben eine konstante, renditestarke Anlage mit Entwicklungspotenzial.
____________________
🌟 Highlights & Besonderheiten
✅ Stabile Bruttorendite von ca. 8 %
✅ 6 vermietbare, helle Wohneinheiten
✅ Sehr gute regionale Mietnachfrage
✅ Energieeffiziente Pelletsheizung
✅ Kunststofffenster (neueren Datums)
✅ Großer, rundum eingezäunter Gemeinschaftsgarten
✅ 4 Carport Stellplätze, 2 Außenstellplätze
✅ Ebenes, sonniges Grundstück in ruhiger Wohnlage
✅ Hohe Lebensqualität & hervorragende Infrastruktur
✅ Ideales Anlageobjekt für langfristig orientierte Investoren
____________________
📍 Lagebeschreibung
Die Immobilie liegt in einer ruhigen Wohnstraße von Hönigsberg, einer charmanten Marktgemeinde im Mürztal, die durch ihre Kombination aus ländlicher Ruhe und urbaner Erreichbarkeit überzeugt.
Der Ort bietet beste Nahversorgung, gute Verkehrsanbindungen und eine intakte soziale Infrastruktur, was ihn zu einem beliebten Wohnstandort in der Region macht.
Infrastruktur im Überblick
Infrastrukturpunkt Entfernung / Erreichbarkeit
Bahnhof Langenwang ca. 3–4 km (5–10 Min. Auto / 15 Min. Fußweg)
Supermarkt ca. 1,5–2 km (3–5 Min. Auto / 15–20 Min. zu Fuß)
Post & Bank im Ortszentrum, 3–5 Min. Fahrzeit
Kindergarten & Volksschule direkt im Ort, fußläufig erreichbar
Ärzte & Apotheken in der Marktgemeinde vorhanden
Autobahnanschluss S6 (Semmering-Schnellstraße) wenige Minuten zur Anschlussstelle
Bruck an der Mur ca. 30–40 Min. mit Zug/Bus
Graz ca. 45–60 Min. Fahrzeit (Auto oder Bahn)
Lagecharakteristik
• Ruhige Wohnlage mit gewachsener Nachbarschaft
• Fußläufige Nahversorgung & ÖPNV-Anbindung
• Gute Erreichbarkeit über die S6 Semmering-Schnellstraße
• Hohe Wohn- und Lebensqualität im steirischen Mürztal
• Zahlreiche Freizeit- und Erholungsmöglichkeiten in der Umgebung (Wandern, Vereine, Veranstaltungen)
____________________
📈 Investitionsvorteile auf einen Blick
• Hohe Mietnachfrage in der Region – ideale Bedingungen für Vermieter
• Attraktive Rendite mit laufenden Einnahmen
• Niedrige Instandhaltungskosten
• Wertsteigerungspotenzial durch solide Lage und moderne Heiztechnik
• Geringes Risiko – vollständig vermietet und nachhaltig bewirtschaftbar
____________________
🧾 Fazit
Dieses Zinshaus in Langenwang vereint solide Bauqualität, gute Vermietbarkeit und eine nachhaltige Rendite in einer nachgefragten Lage des Mürztals.
Dank des Zustandes, der der guten Vermietbarkeit und der energieeffizienten Pelletsheizung bietet das Objekt ein sicheres, inflationsgeschütztes Investment – ideal für Anleger, die auf langfristige Stabilität und attraktiven Ertrag setzen.
💼 Ein Investment mit Zukunft, Sicherheit und Substanz – jetzt zugreifen und die Renditechance sichern!
 

Der Vermittler ist als Doppelmakler tätig.

Infrastruktur / Entfernungen

Gesundheit
Arzt <500m
Apotheke <2.500m
Krankenhaus <3.500m

Kinder & Schulen
Schule <2.000m
Kindergarten <2.500m

Nahversorgung
Supermarkt <1.000m
Bäckerei <2.500m
Einkaufszentrum <2.000m

Sonstige
Bank <500m
Geldautomat <500m
Post <500m
Polizei <2.500m

Verkehr
Bus <500m
Autobahnanschluss <1.500m
Bahnhof <1.000m

Angaben Entfernung Luftlinie / Quelle: OpenStreetMap
Beschreibung weiterlesen

Lage und Verkehrsanbindung

Hönigsberg

Energieeffizienz

HWB:
266,5 kWh/(m²*a)
HWB Klasse:
G
fGEE:
2,64
fGEE Klasse:
E
Energieausweisart:
Energiebedarfs-ausweis

Lageplan

8682 Mürzzuschlag-Hönigsberg | Bruck-Mürzzuschlag

Lade...
Günter Harrer

Günter Harrer

RE/MAX Smart

Lade...

Fotomix

1 Außen-2 2 Außen Hinterseite + Carport 3 Schlafz-2 4 Zimmer-2 5 Küche-2 6 Vorraum-2 7 Bad-2 8 Schalfz-2 9 Küche-2 10 Bad-2 11 Vorraum 12 Stiegenhaus 13 Stiegenhaus 14 Dachboden 15 Keller 16 Waschraum 17 Strom. 18 Heizung 19 Heizung 326 Flächenwidmungsplan 326 Hochwasserrisikozone 326 Kataster 326 EG 326 1 OG 326 Keller 326 Dachgeschoss