NEU - Jetzt anmieten - Geschäftslokal in ansprechender Lage!

Einzelhandel zur Miete in 1150 Wien / Objektnummer: 6653/851
Ausstattung: Boden Bad Etagenheizung
Verkaufsraum
Eingangsbereich
Verkaufsraum
Verkaufsraum
Büroraum
Büroraum
Lager
Lager
Badezimmer
Eingang Stiegenhaus
Anschlüsse Küche
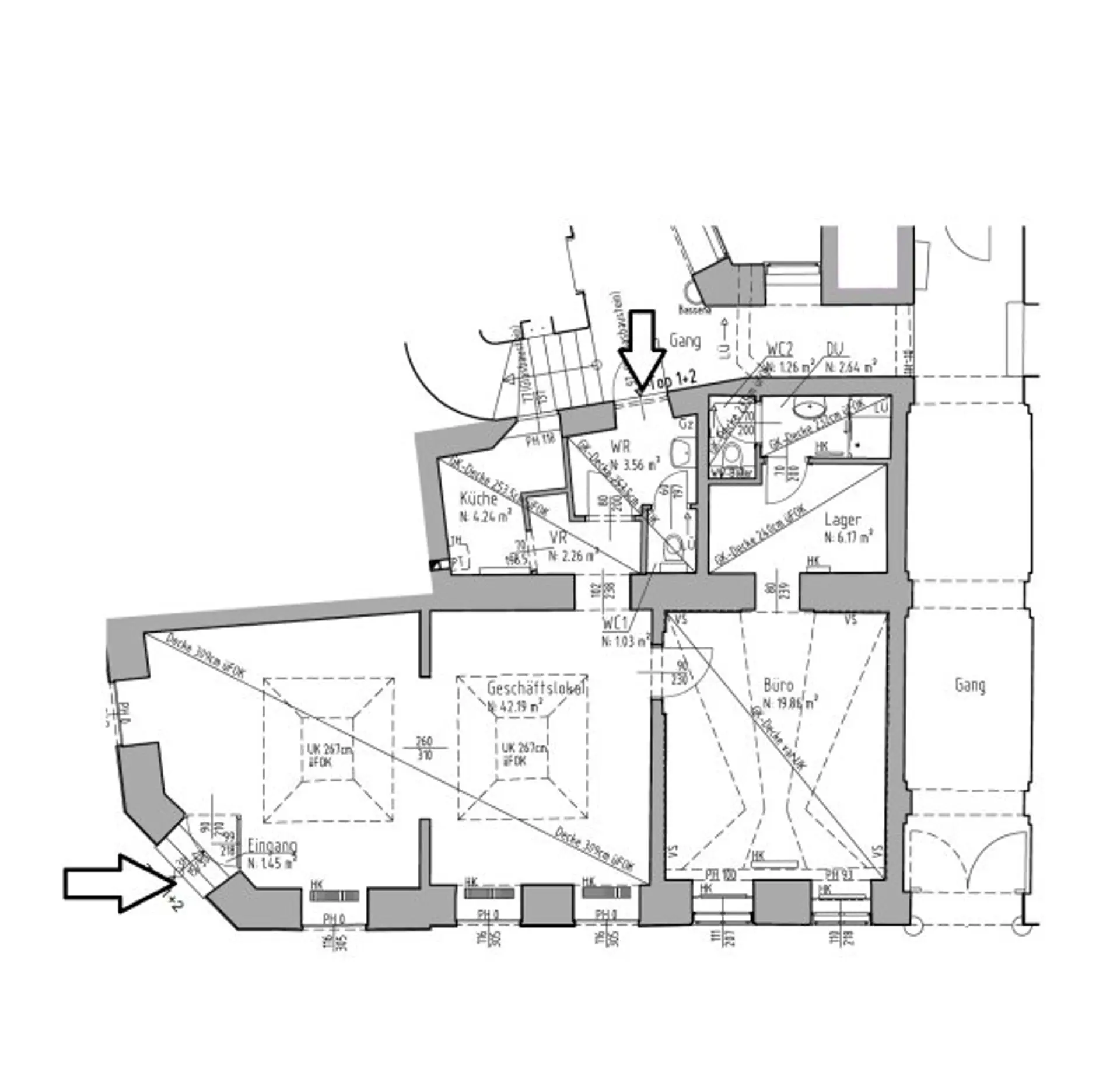
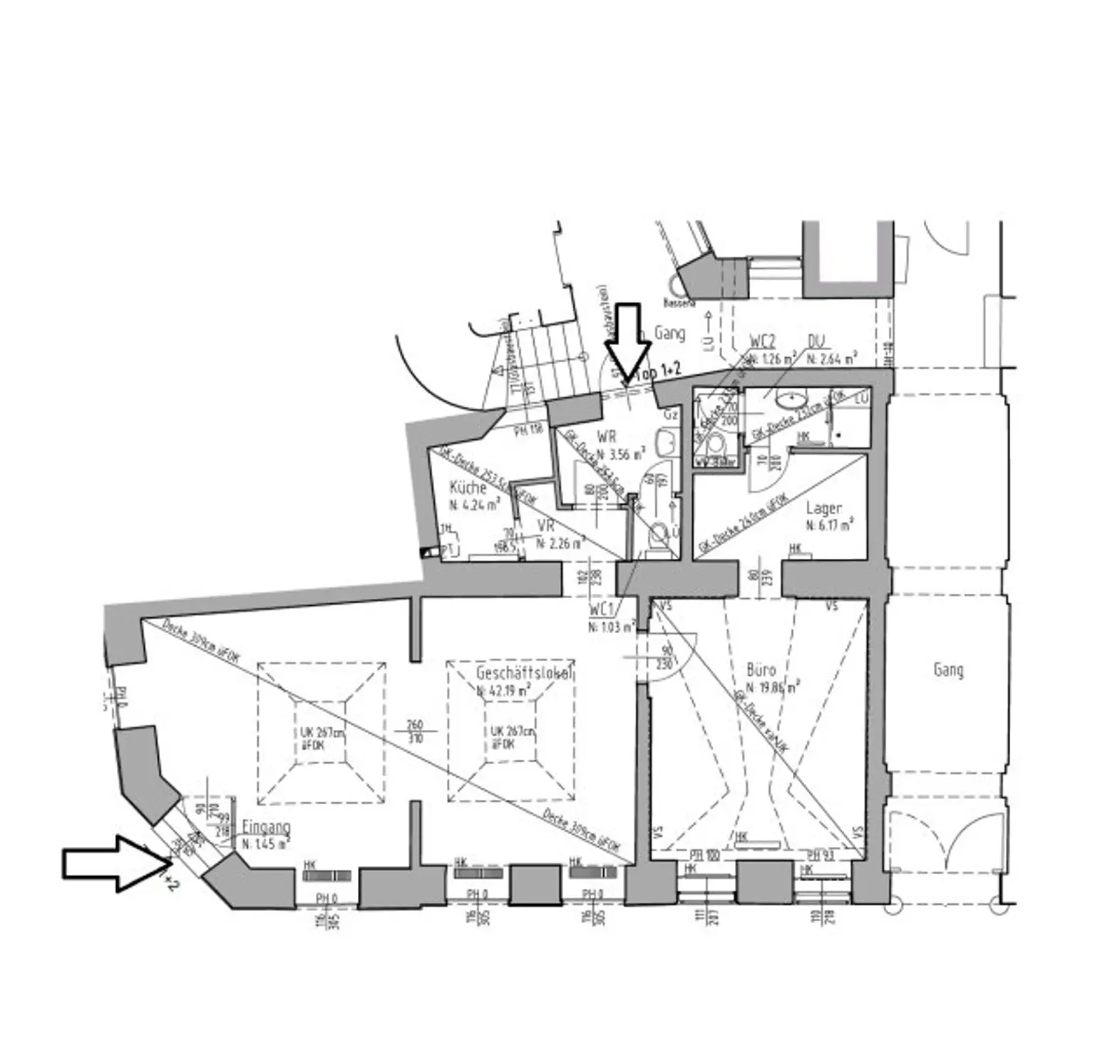
Grundriss

Preisinformationen

Gesamtmiete (exkl. USt.):
1.220,00 € / Monat
Betriebskosten netto:
207,14 € / Monat
Umsatzsteuer:
244,00 €
Kaution:
3 Bruttomonatsmieten
Vermittlungsprovision:
Ja
Provision:
4.392,00 € inkl. 20% USt.

Fakten

Objektnummer:
6653/851
Objekttyp:
Einzelhandel
Nutzfläche:
84,36 m²
Zimmer:
2,5
Badezimmer:
1
Toilette:
2
Altbau:
Ja
Zustand:
Gepflegt
Verfügbarkeit:
Verfügbar

Beschreibung

Zur Vermietung gelangt ein ca. 84 m² großes Geschäftslokal in attraktiver Lage der Geibelgasse, unweit der äußeren Mariahilfer Straße in Wien.
Herzstück der Einheit ist der ca. 43 m² große, lichtdurchflutete Verkaufsraum, der über einen direkten Straßenzugang verfügt und sich ideal für repräsentative Geschäftszwecke eignet. Ergänzt wird dieser Bereich durch ein ca. 20 m² großes Büro sowie ein praktisches Lager mit ca. 6 m². Zusätzlich steht ein Badezimmer mit Dusche und Toilette zur Verfügung. Ein weiterer Zugang über das Stiegenhaus führt in einen Vorraum, in dem sich eine weitere separate Toilette sowie Anschlüsse für eine Teeküche befinden.
Dieses Geschäftslokal überzeugt durch seine funktionale Raumaufteilung, die zentrale Lage sowie vielseitige Nutzungsmöglichkeiten.

Verwirklichen Sie Ihren Traum vom eigenen Geschäftslokal in einer ansprechenden Lage!

Aufteilung:
- Vorraum
- Kaffeeküche
- separate Toilette
- Verkaufsraum
- Büroraum
- Lager
- Badezimmer mit Dusche und Toilette
 

Wir weisen darauf hin, dass zwischen dem Vermittler und dem zu vermittelnden Dritten ein familiäres oder wirtschaftliches Naheverhältnis besteht.

Der Vermittler ist als Doppelmakler tätig.

Infrastruktur / Entfernungen

Gesundheit
Arzt <500m
Apotheke <500m
Klinik <500m
Krankenhaus <1.500m

Kinder & Schulen
Schule <500m
Kindergarten <500m
Universität <500m
Höhere Schule <1.500m

Nahversorgung
Supermarkt <500m
Bäckerei <500m
Einkaufszentrum <1.000m

Sonstige
Geldautomat <500m
Bank <500m
Post <500m
Polizei <500m

Verkehr
Bus <500m
U-Bahn <500m
Straßenbahn <500m
Bahnhof <500m
Autobahnanschluss <4.000m

Angaben Entfernung Luftlinie / Quelle: OpenStreetMap
Beschreibung weiterlesen

Lage und Verkehrsanbindung

Äußere Mariahilfer Straße

Energieeffizienz

HWB:
140,8 kWh/(m²*a)
HWB Klasse:
E
fGEE:
2,35
fGEE Klasse:
D
Energieausweisart:
Energiebedarfs-ausweis
Gültig bis:
05.04.2030

Grundriss

Lageplan

1150 Wien | Wien 15., Rudolfsheim-Fünfhaus

Lade...
Laurenz Schnitzer

Laurenz Schnitzer
Geschäftsführender Gesellschafter

CONFIDO Immobilien GmbH

Lade...

Fotomix

Verkaufsraum Eingangsbereich Verkaufsraum Verkaufsraum Büroraum Büroraum Lager Lager Badezimmer Eingang Stiegenhaus Anschlüsse Küche