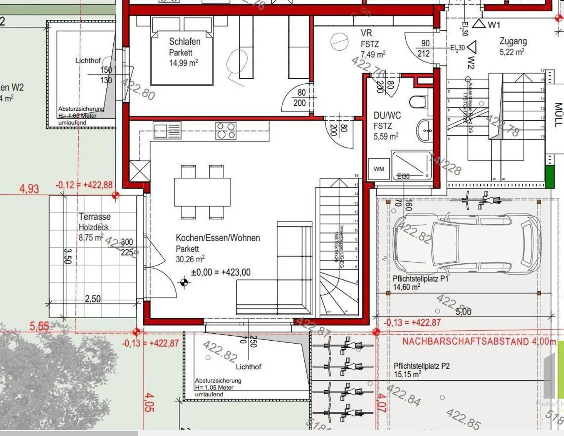
NEU - Josefiau: 4 Zimmer Gartenwohnung mit Carportplatz

Wohnung zur Miete in 5020 Salzburg - Gesamtmiete: 2.300,00 €
Ausstattung: Außenparkplatz Terrasse

Preisinformationen

Gesamtmiete:
2.300,00 € / Monat
Vermittlungsprovision:
Ja

Fakten

Objekttyp:
Wohnung
Terrasse:
1
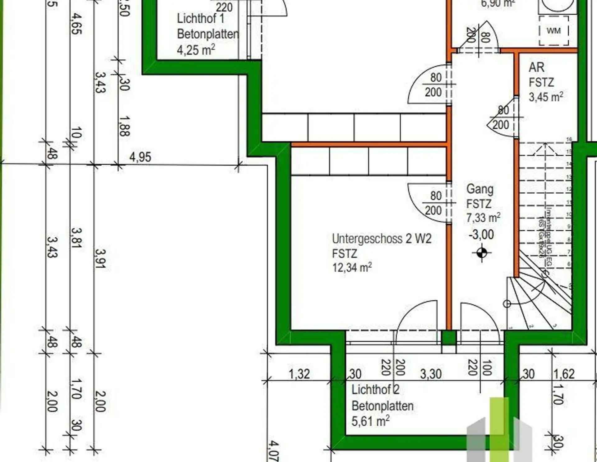
Nutzfläche:
104 m²
Zimmer:
4
Neubau:
Ja
Verfügbarkeit:
Verfügbar

Beschreibung

Hier kommt eine wunderschöne 4-Zimmer Maisonette-Gartenwohnung in der Rottmayrgasse zur Vermietung. Die Wohnung befindet sich in einem kleinen Mehrparteienhaus mit nur 4 Einheiten in der Josefiau. Die Gartenwohnung wur…

Poetsch Immobilien GmbH

Lade...

Fotomix

Bild 1 Bild 2 Bild 3 Bild 4