NEU - Karmeliterhof - Neubauwohntraum beim Rathausplatz

Wohnung zur Miete in 3100 St. Pölten - Gesamtmiete: 1.235,93 € / Objektnummer: 1759303
Ausstattung: Boden Fahrstuhl Bad Tiefgarage Parkplatz Fahrradraum Abstellraum Fußbodenheizung Terrasse WG geeignet

Preisinformationen

Gesamtmiete:
1.235,93 € / Monat
Betriebskosten netto:
233,46 € / Monat
Umsatzsteuer:
112,36 €
Kaution:
3 Bruttomonatsmieten
Provision:
Gemäß Erstauftraggeberprinzip bezahlt der Abgeber die Provision.

Fakten

Objektnummer:
1759303
Objekttyp:
Wohnung
Terrasse:
1
Wohnfläche:
78,08 m²
Nutzfläche:
89,81 m²
Gesamtfläche:
89,81 m²
Zimmer:
3
Badezimmer:
1
Toilette:
1
Stockwerk:
3
Baujahr:
2021
Neubau:
Ja
Zustand:
Neuwertig
Verfügbarkeit:
Verfügbar

Beschreibung

Der Karmeliterhof: Ihr neues Zuhause im Herzen der Landeshauptstadt

 

Das Projekt „Karmeliterhof“ besteht aus 185 hochwertigen Wohnungen, 285 Tiefgaragenplätze sowie großzügigen Allgemeinflächen in begehrter Innenstadtlage. Auf 6 Bauteile verteilt finden sich Wohneinheiten für Singles oder Paare ab 42 m² bis Wohnungen für Familien mit bis zu 119 m².

Alle Wohnungen verfügen über gut durchdachte und moderne Grundrisse und sind meist mit Freiflächen wie Balkon, Loggia, Terrasse oder Garten ausgestattet. Die Dachgeschoßwohnungen des Projekts bieten Ihnen einen wunderbaren Blick über die historische Altstadt. Durch eine hochwertige Ausstattung inkl. Küche sind die Wohnungen besonders exklusiv.

Diese modernen Neubauwohnungen können PROVISIONSFREI auf 5 Jahre befristet gemietet werden.

 

Das Projekt kann mit folgenden Attributen punkten:

Bei der Realisierung des Neubaus wurde großer Wert auf eine hochwertige Ausstattung sowie langlebige Materialien gelegt:

-) top moderne Neubauwohnung

-) Wärmeerzeugung mittels Fernwärme

-) Fußbodenheizung

-) Hochwertige 3-Scheiben-Isolierverglasung

-) Eichenparkettboden

-) Außenbeschattung

-) Keramischer Fliesenbelag (großformatige Fliesen)

-) Sicherheitseingangstüre

-) voll ausgestattete Küche inkludiert

-) Personenlift

-) hauseigene Tiefgarage

-) ausgezeichnete Lage und hervorragende Infrastruktur

 

Ausstattungsstandard:

Bei der Errichtung der Liegenschaft wurde großer Wert auf eine moderne Ausstattung gelegt.

Boden & Fliesen:

In den Zimmern wurde ein Eichenparkettboden mit Fußbodenheizung verlegt. Der Sanitärbereich (Badezimmer & Toilette) ist mit Fliesen aus Qualitätskeramik (ca. 30x60 cm) versehen.

Fenster & Heizungsart:

Bei den Fenstern handelt es sich um 3-Scheiben-Isolierverglasung (für ein effizientes Heizen). Beheizt wird mittels Fernwärme über die Fußbodenheizung. Die monatlichen Kosten für Heizung, Warmwasser und Strom richten sich nach dem tatsächlichen Verbrauch, fallen jedoch auf Grund der modernen Bauweise verhältnismäßig sehr gering aus.

Küche:

Die moderne Küche wurde in hellen Farben gehalten und verfügt über sämtliche Geräte - von einem Kühlschrank mit Gefrierfächern, über einen Herd, einen Backofen sowie einer Spüle bis hin zu einem Geschirrspüler, ist alles vorhanden.

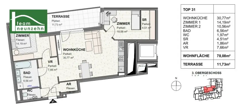
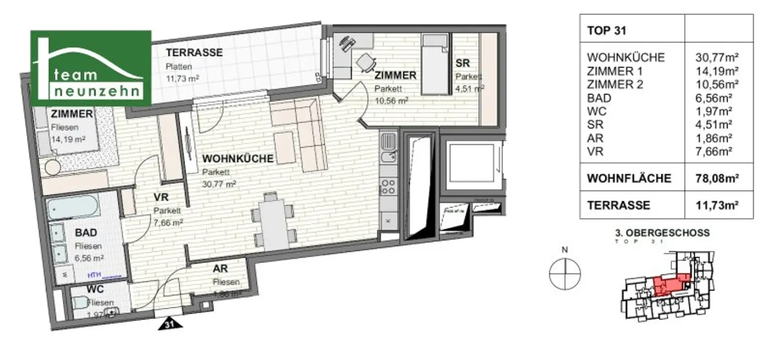
Bauteil 1 - Top 31

Verfügbar ab 01.03.2026

Die Wohnung befindet sich im dritten Liftstock und hat folgende Raumaufteilung:

* Vorraum: 7,66 m²
* Wohnküche: 30,77 m²
* Zimmer 1: 14,19 m²
* Zimmer 2: 10,56 m²
* Schrankraum: 4,51 m²
* Bad: 6,56 m²
* WC: 1,97 m²
* Abstellraum: 1,86 m²
* Terrasse: 11,73 m² 

Bitte beachten Sie, dass es sich hier um eine Nachmietersuche handelt. Die Wohnung ist also derzeit noch bewohnt.

 

Kosten:

Der Mietpreis beläuft sich auf 1.235,93 €.

Kaution: 3 Bruttomonatsmieten

Mietvertragserrichtungsgebühr: € 349,00 inkl. USt.

Provisionsfrei!

Ein Stellplatz kann bei Bedarf für 90,00€ pro Monat angemietet werden.

 

Infrastruktur:

Die ausgezeichnete Innenstadt-Lage, direkt in einer ruhigen Nebengasse beim historischen Zentrum, bietet Ihnen unzählige Freizeitgestaltungsmöglichkeiten in der unmittelbaren Umgebung.

Dank der hauseigenen Tiefgarage, der hervorragenden öffentlichen Verkehrsanbindung und der benachbarten Fußgängerzone lässt die Infrastruktur keine Wünsche offen.

In der direkten Umgebung befindet sich die Fußgängerzone mit ihren unzähligen Geschäften, netten Lokalen, Bildungseinrichtungen, Ärzten und Gesundheitseinrichtungen sowie zahlreichen Möglichkeiten die Freizeit zu verbringen.

 

Energieausweis

Bauteil 2

Der Heizwärmebedarf beträgt 29,10 kWh/m²a, welcher der Klasse B entspricht.

 

Für Fragen und zur Vereinbarungen von Besichtigungen steht Ihnen Frau Katharina Kurek sehr gerne unter 0676 852243512 zur Verfügung.

Wir weisen darauf hin, dass zwischen dem Vermittler und dem zu vermittelnden Dritten ein familiäres oder wirtschaftliches Naheverhältnis besteht.

Der Immobilienmakler erklärt, dass er – entgegen dem in der Immobilienwirtschaft üblichen Geschäftsgebrauch des Doppelmaklers – einseitig nur für den Vermieter tätig ist.

"Leben braucht Raum" * T19-RE Real Estate GmbH & Co KG * www.teamneunzehn.at [https://www.teamneunzehn.at]

Doppelmakler

Wir werden als Immobilienmakler kraft bestehenden Geschäftsgebrauchs als Doppelmakler tätig und haben sohin beide Seiten des Vertrages (Verkäufer-Käufer, Vermieter-Mieter) zu unterstützen.

Wirtschaftliches Naheverhältnis

Es wird bekannt gegeben, dass folgendes wirtschaftliches Naheverhältnis zwischen der teamneunzehn-Gruppe und dem Verkäufer/der vermietenden Partei besteht: ständige und dauerhafte Beauftragung mit der Vermittlung des bestehenden Immobilienportfolios

Haftungserklärung zum Inserat

Irrtum und Änderungen vorbehalten! Sofern es sich bei Bildern um Visualisierungen handelt, können Abänderungen zur tatsächlichen Ausführung resultieren. Wir weisen ausdrücklich darauf hin, dass das auf Fotos oder Visualisierungen ersichtliche Mobiliar bzw. Inventar nicht Bestandteil des inserierten Preises ist.

 

 

Infrastruktur / Entfernungen

Gesundheit
Arzt <275m
Apotheke <300m
Klinik <1.000m
Krankenhaus <1.300m

Kinder & Schulen
Schule <175m
Kindergarten <100m
Universität <1.300m
Höhere Schule <525m

Nahversorgung
Supermarkt <175m
Bäckerei <275m
Einkaufszentrum <350m

Sonstige
Bank <150m
Geldautomat <150m
Polizei <150m
Post <350m

Verkehr
Bus <125m
Bahnhof <600m
Autobahnanschluss <2.650m
Flughafen <5.500m

Angaben Entfernung Luftlinie / Quelle: OpenStreetMap
Beschreibung weiterlesen

Lage und Verkehrsanbindung

Nähe Fußgängerzone, Rathausplatz, Domplatz (Wochenmarkt), Hauptbahnhof, Cinema Paradiso, aquacity, City Promenade Shoppingcenter

Fußgängerzone, Rathausplatz, Domplatz (Wochenmarkt), Hauptbahnhof, Cinema Paradiso, aquacity, City Promenade Shoppingcenter

Energieeffizienz

HWB:
29,1 kWh/(m²*a)
HWB Klasse:
B
fGEE:
0,98
fGEE Klasse:
B
Energieausweisart:
Energiebedarfs-ausweis

Grundriss

Lageplan

3100 St. Pölten | Sankt Pölten (Stadt)

Lade...
Katharina Kurek

Katharina Kurek
Immobilienvermittlung

teamneunzehn-Gruppe

Lade...

Fotomix

Bild 1 Bild 2 Bild 3 Bild 4 Bild 5 Bild 6 Bild 7 Bild 8 Bild 9 Bild 10 Bild 11 Bild 12 Bild 13 Bild 14 Bild 15 Bild 16 Bild 17 Bild 18