NEU - KEINE Provision!! 2 Zimmer Wohnung im Rohzustand zu kaufen, selbst fertig zu stellen!! BH14_3

Wohnung zum Kauf in 8020 Graz - Kaufpreis: 86.000 € / Objektnummer: O2100167010
Ausstattung: Wohnküche / offene Küche Bad Zentralheizung
20251202_092626561_iOS
20251202_092647575_iOS
20251202_092641969_iOS
20251202_092633469_iOS
20251202_092618692_iOS
20251202_092616816_iOS
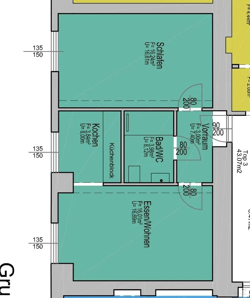
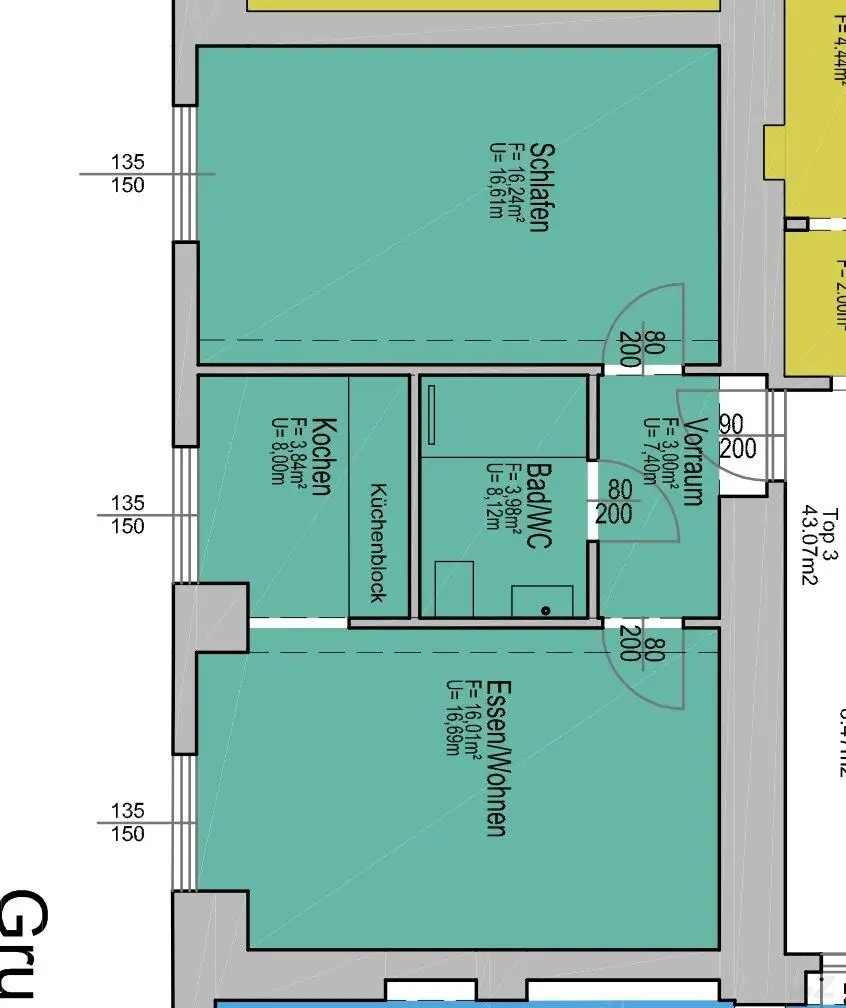
Grundriss Top 3

Preisinformationen

Kaufpreis:
86.000 €
Preisinfos:
Verhandlungsbasis
Provision:
provisionsfrei EUR inkl. 20% MwSt.

Fakten

Objektnummer:
O2100167010
Objekttyp:
Wohnung
Wohnfläche:
43,07 m²
Gesamtfläche:
43,07 m²
Zimmer:
2
Badezimmer:
1
Baujahr:
1964
Neubau:
Ja
Zustand:
Rohbau
Verfügbarkeit:
Verfügbar

Beschreibung

Sie sanieren Wohnungen oder wollten schon immer eine nach Ihren Vorstellungen herrichten???
=> Dann sind Sie hier richtig!!!!!!

Wir verkaufen eine Einheit in interessanter Lage (Bahnhofnähe). Dies ist im "Rohbau" ähnlichen Zustand und kann nach Ihren Vorstellungen fertiggestaltet werden. 
Vorraum, Bad inkl. WC, Küchenraum und 2 Zimmer finden Platz in der idealen Anlegerwohnung. (Die Musterbilder dienen als Vorlage wie es aussehen kann und stellen nicht den aktuellen Zustand dar.)

Ebenso sind Kurzzeitvermietung sowie Gewerbliche Nutzung möglich im Haus. Die Einheiten unterliegen dem Teilanwendungsgebiet des MRG und es ist bspw. kein Befristungsabschlag zu berücksichtigen.
Beschreibung weiterlesen

Energieeffizienz

Endenergiebedarf:
99,1 kWh/(m²*a)
HWB:
99,1 kWh/(m²*a)
HWB Klasse:
C
fGEE:
1,97
fGEE Klasse:
D
Energieausweisart:
Energiebedarfs-ausweis

Grundriss

Patrick Großschädl

Patrick Großschädl

Papst Immobilien GmbH

Lade...

Fotomix

20251202_092626561_iOS 20251202_092647575_iOS 20251202_092641969_iOS 20251202_092633469_iOS 20251202_092618692_iOS 20251202_092616816_iOS