NEU - Kinderbetreuungg / Gym / Tanzstudio / Büro / Shop etc. - Geschäftslokal // Erstbezug!!

Gastgewerbe zur Miete in 1170 Wien / Objektnummer: 7328
Ausstattung: Boden Gäste-WC Klimaanlage Fußbodenheizung

Preisinformationen

Gesamtmiete (exkl. USt.):
1.573,38 € / Monat
Betriebskosten netto:
215,88 € / Monat
Umsatzsteuer:
314,68 €
Kaution:
9.100,00 €

Fakten

Objektnummer:
7328
Objekttyp:
Gastgewerbe
Nutzfläche:
103,62 m²
Lagerfläche:
40,3 m²
Toilette:
1
Baujahr:
2025
Neubau:
Ja
Zustand:
Erstbezug
Verfügbarkeit:
Verfügbar

Beschreibung

Zur unbefristeten Vermietung steht ein ebenerdiges Geschäftslokal in attraktiver Lage auf der Hernalser Hauptstraße.

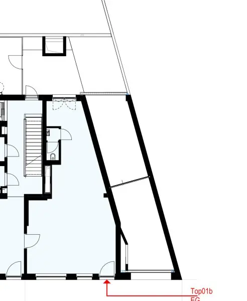
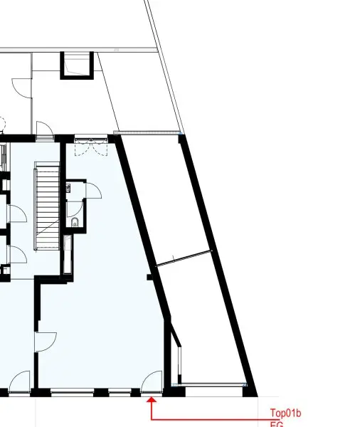
Die Liegenschaft verfügt über eine Geschäftsfläche von 63,32 m² sowie ein Lager im Kellergeschoss mit 40,30 m². Eine großzügige Portalverglasung mit Sonnenschutzglas sorgt für optimale Sichtbarkeit und Belichtung.

Das Objekt bietet einen flexiblen Grundriss und diverse potentielle Nutzungsmöglichkeiten, sowie einen Sanitärraum gemäß beiliegendem Plan. Als Bodenbelag wurden hochwertige Marazzi-Fliesen verlegt. Beheizt wird das Lokal mittels Fußbodenheizung, die Kühlung erfolgt über Fan Coils. Ein Teeküchenanschluss ist vorhanden.

Die Wärme- und Kältekosten werden direkt über die Firma TECHEM verrechnet.

Die derzeitigen monatlichen Akontobeträge pro m² Nutzfläche (brutto) betragen:

*
Betriebskosten Heizung: EUR 1,20/m²

*
Betriebskosten Warmwasser: EUR 0,25/m²

*
Betriebskosten Kaltwasser: EUR 0,30/m²

 

Diverse Nutzungsmöglichkeiten!

* Büro
* Fitness / Gym
* Tanzstudio / Yogaraum
* Kindertagesstätte
* Shop
* Friseur
* Massage / Physio etc.

Weitere Detailunterlagen stellen wir auf Anfrage gerne zur Verfügung.

Infrastruktur / Entfernungen

Gesundheit
Arzt <500m
Apotheke <500m
Klinik <500m
Krankenhaus <1.500m

Kinder & Schulen
Schule <500m
Kindergarten <500m
Universität <2.000m
Höhere Schule <1.500m

Nahversorgung
Supermarkt <500m
Bäckerei <500m
Einkaufszentrum <1.000m

Sonstige
Geldautomat <500m
Bank <500m
Post <500m
Polizei <1.000m

Verkehr
Bus <500m
U-Bahn <1.000m
Straßenbahn <500m
Bahnhof <1.000m
Autobahnanschluss <4.000m

Angaben Entfernung Luftlinie / Quelle: OpenStreetMap
Beschreibung weiterlesen

Lage und Verkehrsanbindung

Gesundheit

Arzt

Energieeffizienz

HWB:
20,5 kWh/(m²*a)
HWB Klasse:
A
fGEE:
0,73
fGEE Klasse:
A
Energieausweisart:
Energiebedarfs-ausweis

Grundriss

Lageplan

1170 Wien | Wien 17., Hernals

Lade...
Sabrina Ritter

Sabrina Ritter
Wohnimmobilien Miete

Spiegelfeld Immobilien GmbH

Lade...

Fotomix

Bild 1 Bild 2 Bild 3 Bild 4 Bild 5 Bild 6 Bild 7 Bild 8 Bild 9 Bild 10 Bild 11