NEU - Klein, aber oho!

Wohnung zum Kauf in 1100 Wien - Kaufpreis: 98.000 € / Objektnummer: 1130
Ausstattung:

Preisinformationen

Kaufpreis:
98.000 €
Betriebskosten netto:
86,80 € / Monat
Heizkosten netto:
29,68 €
Vermittlungsprovision:
Ja
Provision:
3% des Kaufpreises zzgl. 20% USt.

Fakten

Objektnummer:
1130
Objekttyp:
Wohnung
Wohnfläche:
32 m²
Zimmer:
1
Badezimmer:
1
Toilette:
1
Stockwerk:
3
Baujahr:
1961
Neubau:
Ja
Verfügbarkeit:
Verfügbar

Beschreibung

Sehr geehrte Interessentin, sehr geehrter Interessent,

zum Verkauf gelangt eine Garconniére in guter Wohnlage von Wien-Meidling.

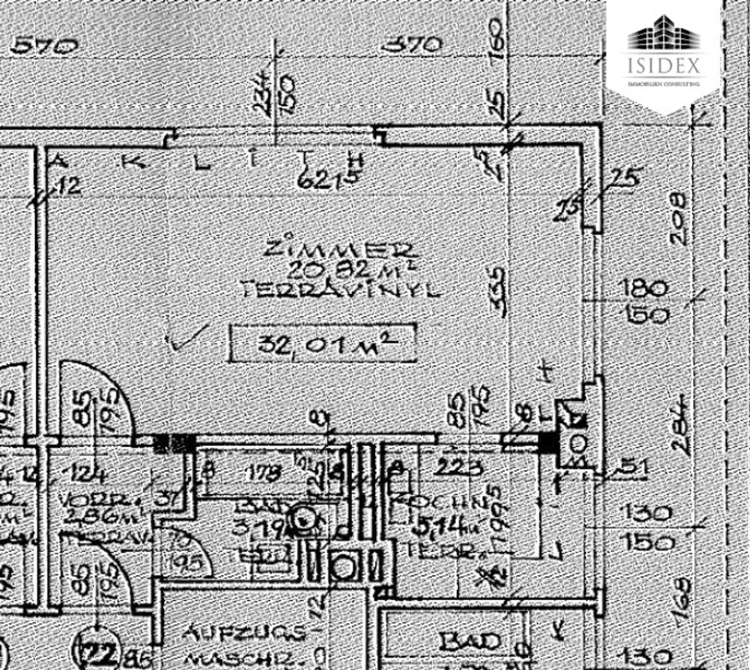
Die Wohnung, welche sich im Dachgeschoss eines im Jahr 1961 errichteten Wohngebäudes befindet, verfügt über ca. 32 m² und teilen sich in Wohn- und Schlafraum, Kochnische, Vorraum sowie Bad/WC auf.

Eine zeitgemäße Wandlung des Objektes in ein modernes Schmuckstück liegt auf Grund der Ausstattung nahe, kann aber natürlich auch im IST-Zustand bewohnt bzw. genutzt werden.

 

Ausführliche Informationen und entsprechende Unterlagen werden Ihnen gerne übermittelt. Für dies und zwecks Vereinbarung eines Besichtigungstermines kontaktieren Sie bitte Herrn Felix Kunej ausschließlich schriftlich unter kunej@isidex.at oder Sie verwenden das jeweilige Anfrageformular.

In Entsprechung des FAGG (Fern- und Auswärtsgeschäfte-Gesetz) und des VRUG (Verbraucherrechte-Richtlinie-Umsetzungsgesetz) ist es uns leider nur mehr möglich Termine nach Erhalt einer schriftlichen Anfrage mit vollständigen Kontaktangaben (Name, Adresse, Telefon, Email) zu vereinbaren, Unterlagen zu übermitteln und zu diesem Objekt Auskunft zu erteilen.

Der Vermittler ist als Doppelmakler tätig.
Beschreibung weiterlesen

Lage und Verkehrsanbindung

Wien Meidling, Nähe Schönbrunn
Öffentilche Verkehrsanbindungen: Buslinie 9A in fußläufiger Entfernung, U4 (Station Schönbrunn)

Schönbrunn

Energieeffizienz

HWB:
163,19 kWh/(m²*a)
HWB Klasse:
E
fGEE:
2,73
fGEE Klasse:
E
Energieausweisart:
Energiebedarfs-ausweis
Gültig bis:
03.12.2029

Grundriss

Felix Kunej

Felix Kunej
Staatl. Konz. Immobilienmakler

ISIDEX GmbH

Lade...

Fotomix

Bild 1 Bild 2 Bild 3 Bild 4

Lageplan