NEU - Klein, zentral, leistbar - 23 m² zum attraktiven Einstiegspreis – U3 vor der Tür

Wohnung zum Kauf in 1030 Wien - Kaufpreis: 120.000 € / Objektnummer: 16181
Ausstattung: Fahrstuhl

Preisinformationen

Kaufpreis:
120.000 €
Kaufpreis/m²
5.228,76 €
Betriebskosten netto:
54,55 € / Monat
Vermittlungsprovision:
Ja
Provision:
3% des Kaufpreises zzgl. 20% USt.

Fakten

Objektnummer:
16181
Objekttyp:
Wohnung
Wohnfläche:
22,95 m²
Zimmer:
1
Badezimmer:
1
Toilette:
1
Baujahr:
1905
Altbau:
Ja
Zustand:
Gepflegt
Verfügbarkeit:
Verfügbar

Beschreibung

KLEIN, ZENTRAL, LEISTBAR

23 M² ZUM ATTRAKTIVEN EINSTIEGSPREIS – U3 VOR DER TÜR

 

Zum Verkauf gelangt eine ca. 23 m² große Eigentumseinheit in hervorragender Lage des 3. Bezirks – nur wenige Schritte von der U3 Station Schlachthausgasse entfernt.

Die kompakte Fläche bietet vielfältige Nutzungsmöglichkeiten: Ob als Tiny-Apartment für Minimalisten, citynaher Zweitwohnsitz, Mikro-Büro oder kleine Praxis – hier eröffnen sich interessante Perspektiven für Eigennutzer wie auch Anleger.

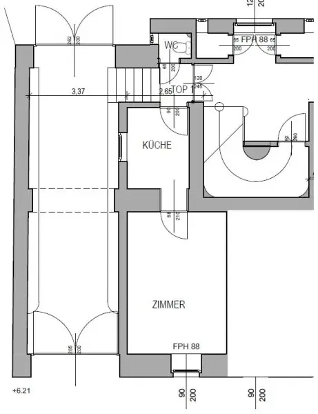
Beim Betreten der Einheit gelangt man in einen Raum mit integrierter Küchenzeile und Duschmöglichkeit (ca. 6,23m²) und danach erreicht man das auf die Markhofgasse ausgerichtete Zimmer (ca. 16,72m²). Das WC befindet sich separat am Gang direkt gegenüber der Wohnung und ist ausschließlich dieser Einheit zugeordnet.

Die Wohnung befindet sich in sanierungsbedürftigem Zustand und bietet damit die ideale Grundlage für individuelle Gestaltung und Wertsteigerung.

Highlights:

*
U3 Schlachthausgasse in unmittelbarer Nähe

*
Zentrale und hervorragend angebundene Lage

*
Kompakte, effizient nutzbare Fläche

*
Exklusiv zugeordnetes WC

*
Attraktiver Kaufpreis von EUR 120.000

*
Interessant für Eigennutzer oder Anleger 

Eine seltene Gelegenheit für alle, die Potenzial erkennen und eine zentrale Lage schätzen.

 

Es werden teilweise noch Fenster mit Dreifachverglasung und Brandschutztüren eingebaut, die Gangfenster werden entfernt und durch Oberlichten ersetzt. 

 

Weiteren Stauraum bietet das der Wohnung zugeordnete Kellerabteil!

 

AUFZUG: der Lift wird gerade im Zuge des Dachgeschoßausbaus im Innenhof auf Kosten des Entwicklers errichtet. Für die Wohnungseigentümer sind zukünftig nur die laufenden monatlichen Kosten zu tragen.

 

MIETRECHTLICHER HINWEIS

Aufgrund der vorliegenden Informationen (Objekt des Wohnhauswiederaufbaufonds – WWAF, bereits vollständig mit RBG 1971 vor 31.12.1982 getilgt) ist davon auszugehen, dass die Wohnung dem freien Mietzins unterliegt. Eine endgültige rechtliche Bestätigung kann jedoch erst nach Prüfung durch die Schlichtungsstelle erfolgen. Damit bietet die Wohnung attraktives Vermietungspotenzial bei flexibler Mietzinsgestaltung.

 

Lage:

Das Objekt befindet sich in der Markhofgasse, im 3. Wiener Gemeindebezirk. Zahlreiche Geschäfte des täglichen Bedarfs befinden sich in Fußnähe und selbiges gilt für zahlreiche Restaurants und Cafés. So bietet sich zusammen mit der hervorragenden öffentlichen Verkehrsanbindung eine erstklassige Infrastruktur. 

 

Öffentliche Verkehrsmittel

* Buslinien: 77A, 80A, N71
* U-Bahnlinie: U3 Schlachthausgasse & Kardinal-Nagl-Platz
* Straßenbahnlinien: 18 und 71 

 

_Nebenkosten: _

Grundbucheintragung: 1,1% d.KP. 

Grunderwerbssteuer: 3,5% d.KP.

Maklerprovision: 3% d.KP. + 20% USt. 

Kaufvertragshonorar: 1,2% des Kaufpreises zzgl. Barauslagen und USt. | Die Errichtung und Durchführung des Kaufvertrages erfolgt durch die Kanzlei Tiefenthaler Gnesda Rechtsanwälte GmbH.

 

Bei ernsthaftem Interesse stellen wir Ihnen selbstverständlich gerne weitere Unterlagen zur Verfügung, darunter beispielsweise:

*
Grundbuchsauszug

*
Wohnungseigentumsvertrag

*
Nutzwertgutachten

*
Protokolle von Eigentümerversammlungen (sofern vorhanden) u. v. m.

 

Unser Rundum-Service für Sie:
Sollten Sie sich für diese Immobilie entscheiden, begleiten wir Sie kompetent durch den gesamten Kaufprozess – beginnend beim Kaufanbot über die Abstimmung individueller Wünsche und die Vertragsunterzeichnung bis hin zur Übergabe der Immobilie. Auch bei organisatorischen Schritten wie der Ummeldung von Strom, Gas oder Fernwärme stehen wir Ihnen unterstützend zur Seite. Selbstverständlich stellen wir Ihnen dafür alle notwendigen Formulare und Unterlagen bereit.

Darüber hinaus helfen wir Ihnen gerne bei der Finanzierung Ihrer Wunschimmobilie und erarbeiten gemeinsam mit unseren erfahrenen Finanzierungspartnern optimale Lösungen zu attraktiven Konditionen.

 

Sie möchten Ihre Immobilie verkaufen?
Dann sind Sie bei uns bestens aufgehoben! Wir bieten Ihnen eine unverbindliche und kostenfreie Erstberatung inklusive fundierter Bewertung Ihrer Immobilie sowie einer transparenten Darstellung aller relevanten Faktoren.

 

_Maklervereinbarung: _Wir ersuchen um Verständnis, dass wir bei Anfragen zur Objektadresse, bzw. Besichtigungstermin  aufgrund neuer gesetzlicher Bestimmungen Unterlagen erst dann zusenden können, wenn Sie vorab bestätigen, dass Sie unser sofortiges Tätigwerden wünschen und über Ihre Rücktrittsrechte aufgeklärt wurden. Sie bekommen nach Ihrer schriftlichen Anfrage mit vollständiger Angabe des Namens, Anschrift und Telefonnummer ein Email, in dem Sie diese Punkte bestätigen müssen.

_Haftungsausschluss:  _Wir weisen darauf hin, dass sämtliche Daten im vorliegenden Angebot sowie die von unserem Büro an Sie weitergegebenen Auskünfte, vom Eigentümer der Immobilie zur Verfügung gestellt wurden. Ebenso sind Informationen von Dritten (z.B. behördliche Informationen) eingeholt worden, auch für diese können wir unsererseits keinerlei Haftung für deren uneingeschränkte Richtigkeit übernehmen.

Wir weisen darauf hin, dass zwischen dem Vermittler und dem zu vermittelnden Dritten ein familiäres oder wirtschaftliches Naheverhältnis besteht.

Der Vermittler ist als Doppelmakler tätig.

Infrastruktur / Entfernungen

Gesundheit
Arzt <500m
Apotheke <500m
Klinik <500m
Krankenhaus <1.000m

Kinder & Schulen
Schule <500m
Kindergarten <500m
Universität <1.000m
Höhere Schule <1.000m

Nahversorgung
Supermarkt <500m
Bäckerei <500m
Einkaufszentrum <1.000m

Sonstige
Geldautomat <500m
Bank <500m
Post <500m
Polizei <500m

Verkehr
Bus <500m
U-Bahn <500m
Straßenbahn <500m
Bahnhof <500m
Autobahnanschluss <500m

Angaben Entfernung Luftlinie / Quelle: OpenStreetMap
Beschreibung weiterlesen

Lage und Verkehrsanbindung

U3 Schlachthausgasse

Energieeffizienz

HWB:
128,84 kWh/(m²*a)
HWB Klasse:
D
fGEE:
2,29
fGEE Klasse:
D
Energieausweisart:
Energiebedarfs-ausweis
Gültig bis:
28.10.2032

Dokumente

Grundriss

Lageplan

1030 Wien | Wien 3., Landstraße

Lade...
Anita Ochsenhofer

Anita Ochsenhofer
Immobilienberaterin

Moritz Immobilien

Lade...

Fotomix

Bild 1 Bild 2 Bild 3 Bild 4 Bild 5 Bild 6 Bild 7 Bild 8 Bild 9 Bild 10 Bild 11 Bild 12 Bild 13 Bild 14 Bild 15 Bild 16 Bild 17 Bild 18 Bild 19 Bild 20 Bild 21 Bild 22 Bild 23 Bild 24