NEU - Kleingartenidylle mit Weinbergblick – nettes Sommerhäuschen mit Potenzial für Neubau!

Haus zum Kauf in 1190 Wien - Kaufpreis: 199.000 € / Objektnummer: 3141/3156
Ausstattung: Bad Möbliert Kabel/Satelliten-TV Terrasse
Garten
Aussicht
Aussicht
Garten
Garten
Haus_Außenansicht
Wohnraum
Wohnraum
Essbereich
Dachgeschoss
Badezimmer
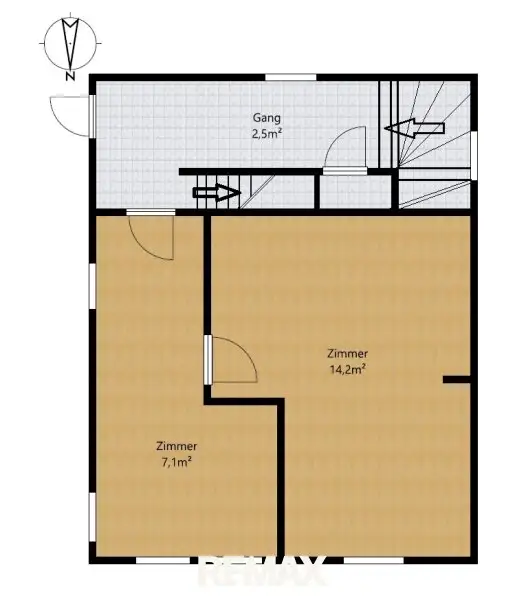
Erdgeschoss Grundriss
Kellergeschoss Grundriss
Dachgeschoss Grundriss
Lageplan

Preisinformationen

Kaufpreis:
199.000 €
Vermittlungsprovision:
Ja
Provision:
3% des Kaufpreises zzgl. 20% USt.

Fakten

Objektnummer:
3141/3156
Objekttyp:
Haus
Terrasse:
2
Wohnfläche:
60 m²
Grundstücksfläche:
286 m²
Zimmer:
3
Badezimmer:
1
Toilette:
1
Baujahr:
1930
Zustand:
Sanierungsbedürftig
Verfügbarkeit:
Verfügbar

Beschreibung

In einer der schönsten Gegenden von Döbling in Neustift am Walde im Kleingartenverein Sommerhaide befindet sich dieses Pachtgrundstück mit Kleingartenhaus.

Hier kommen Sie zum Objektvideo: https://youtu.be/BaC7hTKTW3Q

Das rechteckige Grundstück mit einer Länge von ca. 29m und einer durchschnittlichen Breite von ca. 10m verfügt über eine direkte Zufahrt und liegt in einer sehr gepflegten Kleingartensiedlung.
Das Grundstück bietet eine traumhafte unverbaubare Fernsicht auf die gegenüberliegenden Weinberge von Neustift und die Ausläufer des Wienerwalds. Auf dem Grundstück steht ein Kleingartenhaus von ca. 1930 mit ca. 60m² Wohnfläche verteilt auf 3 Ebenen, bestehend aus einem Wohnraum, einem separaten Essbereich einer Küche, einem Bad mit Dusche und WC und auf der oberen Ebene einem Schlafraum mit herrlichem Ausblick. Für eine ganzjährige Nutzung kommt das Haus kaum in Frage, ebenfalls sind Ausbau und Erweiterungen am Bestand nicht sinnvoll zu realisieren, womit bei ganzjährigem Nutzungswunsch eher nur ein Neubau in Frage kommt.

Das Grundstück ist an das öffentliche Strom- Wasser und Kanalnetz angeschlossen, Gas befindet sich an der Grundstücksgrenze.

Die Widmung des Grundstücks (Eklw, Erholungsgebiet-Kleingartengebiet für ganzjähriges Wohnen) sieht bei einem Neubau eine bebaubare Fläche von 50m² über 2 Ebenen mit einer max. Bauhöhe von 5,5m vor, zusätzlich kann ein Keller von ca. 80m² errichtet werden. Aufgrund der Hanglage ist dieser zu einem großen Teil optimal als zusätzlicher Wohnraum nutzbar. Somit können Sie Ihren Traum vom Eigenheim mit ausreichend Wohnfläche verwirklichen.

Das Grundstück verzaubert durch die wunderbare Grün-/Ruhelage, trotzdem sind Sie mit den in wenigen Minuten fußläufig erreichbaren Buslinien 41A und 35A sehr gut an den öffentlichen Verkehr angebunden. Das Ortszentrum von Neustift mit diversen Einkaufsmöglichkeiten ist ebenfalls in der unmittelbaren Umgebung genauso wie Kindergärten, Volksschule oder die Amerikanische Schule. Die Weinberge, der angrenzende Wienerwald und der Pötzleinsdorfer Schlosspark laden zur Entspannung im Freien ein, egal ob beim Wandern, Radfahren, Laufen etc. Weiters bieten Ihnen die zahlreichen Neustifter-Heurigenbeste Bedingungen, um gemütliche Zeit mit Freunden zu verbringen.

Top Features:
- traumhafte Aussichtslage in Döblinger Bestlage
- ganzjähriges Wohnen möglich
- direkte Zufahrt möglich
- Bebauung: 80m² Keller und 2 Geschosse mit jeweils 50m² möglich

Hard Facts:
- Pachtgrund, jährliche Pacht dzt. €1.212,90
- Grundstücksgröße ca. 286m²
- Wohnfläche ca.60 m²
- Zimmer 3
- Küche
- Bad mit Dusche und WC
- Terrasse

Alle Angaben beruhen auf Informationen des Eigentümers und sind ohne Gewähr.

Doppelmaklertätigkeit:
Wir informieren Sie darüber, dass wir bei diesem Objekt eine Doppelmaklertätigkeit ausüben (§ 5 Abs. 3 MaklerG).

Haben Sie schon eine Finanzierung?
Wenn nicht, stellen wir gerne einen Kontakt zu einem Finanzierungsberater her. Wir arbeiten mit den beiden größten Anbietern am Markt zusammen, die durch Ihr breites Portfolio an Partnerbanken oftmals die besten Konditionen für Sie herausholen können!

Nebenkosten:
3,5% Grunderwerbsteuer; 1,1% Grundbucheintrag; ca. 1-3% Notar für Vertragserrichtung; 3% Vermittlungsprovision zuzügl. Ust.,
ggf. Finanzierungskosten und Gebühren der Bank oder des Kreditinstitutes.

 

Infrastruktur / Entfernungen

Gesundheit
Arzt <1.000m
Apotheke <500m
Klinik <2.500m
Krankenhaus <2.500m

Kinder & Schulen
Schule <500m
Kindergarten <500m
Universität <3.000m
Höhere Schule <3.000m

Nahversorgung
Supermarkt <500m
Bäckerei <1.000m
Einkaufszentrum <3.500m

Sonstige
Geldautomat <2.000m
Bank <2.000m
Post <500m
Polizei <2.500m

Verkehr
Bus <500m
U-Bahn <3.500m
Straßenbahn <1.500m
Bahnhof <3.000m
Autobahnanschluss <5.000m

Angaben Entfernung Luftlinie / Quelle: OpenStreetMap
Beschreibung weiterlesen

Lage und Verkehrsanbindung

Neustift am Walde

Grundrisse

Lageplan

1190 Wien | Wien 19., Döbling

Lade...
Benjamin Waldmann

Benjamin Waldmann

RE/MAX Emotion

Virtuelle Tour

Lade...

Fotomix

Garten Aussicht Aussicht Garten Garten Haus_Außenansicht Wohnraum Wohnraum Essbereich Dachgeschoss Bild 11 Badezimmer