NEU - Klimatisiert: Schöne 4-Zimmer-Wohnung mit Terrasse in 1050 Wien

Wohnung zur Miete in 1050 Wien - Gesamtmiete: 2.099,00 € / Objektnummer: 25953
Ausstattung: Barrierefrei Boden Fahrstuhl Wohnküche / offene Küche Bad Klimaanlage Fahrradraum Abstellraum Zentralheizung Fußbodenheizung Terrasse

Preisinformationen

Gesamtmiete:
2.099,00 € / Monat
Betriebskosten netto:
195,60 € / Monat
Umsatzsteuer:
190,82 €
Kaution:
3 Bruttomonatsmieten
Provision:
Gemäß Erstauftraggeberprinzip bezahlt der Abgeber die Provision.

Fakten

Objektnummer:
25953
Objekttyp:
Wohnung
Terrasse:
1
Nutzfläche:
97,8 m²
Zimmer:
4
Badezimmer:
1
Toilette:
1
Stockwerk:
4
Baujahr:
2017
Neubau:
Ja
Zustand:
Gepflegt
Verfügbarkeit:
Verfügbar

Beschreibung

DIE WOHNUNG WIRD AKTUELL NOCH BEWOHNT. BESICHTIGUNGEN SIND IN ABSPRACHE MIT DEN MIETERIN MÖGLICH. 

HIGHLIGHTS DER WOHNUNG

*
Großzügige Wohnküche mit über 33 m²

*
Südwest-Terrasse mit Innenhofausrichtung

*
Außenjalousien an allen Fenstern

*
Fußbodenheizung (Fernwärme)

*
Hochwertige Küche & modernes Bad

*
Abstellraum, separates WC & Badewanne

*
Kellerabteil & Fahrradraum im Haus

*
Klimaanlage

-------------

DIE WOHNUNG

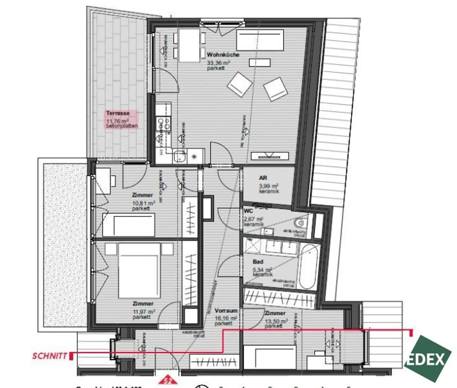
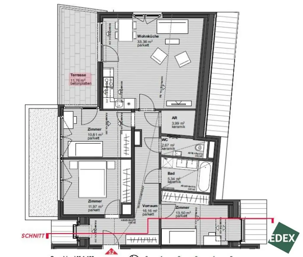
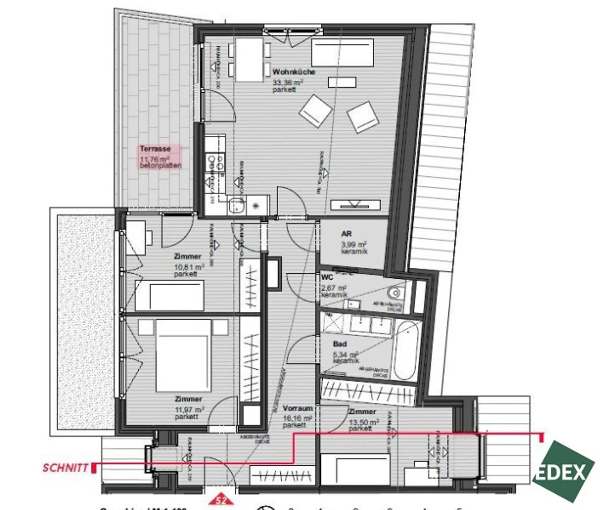
Diese stilvoll ausgestattete und lichtdurchflutete 4-Zimmer-Wohnung befindet sich in einem modernen Neubau in der Sankt-Johann-Gasse 8–10, mitten im beliebten 5. Wiener Gemeindebezirk. Die Wohnung liegt im 4. Obergeschoß (mit Lift) und bietet auf rund 98 m² Wohnfläche ein großzügiges, gut gegliedertes Raumangebot – ideal für Familien, Paare oder Homeoffice.

Das Herzstück der Wohnung ist die offene Wohnküche mit ca. 33 m², die über eine moderne Einbauküche mit hochwertigen Geräten verfügt. Von hier aus gelangt man direkt auf die Südwest-Terrasse mit ca. 11,8 m², die in den ruhigen Innenhof ausgerichtet ist – perfekt für entspannte Stunden im Freien.

Drei separat begehbare Zimmer bieten vielseitige Nutzungsmöglichkeiten als Schlaf-, Kinder-, Gäste- oder Arbeitszimmer. Das stilvolle Badezimmer ist mit Badewanne, Waschbecken und Waschmaschinenanschluss ausgestattet. Zusätzlich gibt es ein separates WC mit Handwaschbecken sowie einen praktischen Abstellraum.

Ein geräumiger Vorraum mit Garderobennische rundet das Angebot ab.

In der hauseigenen Tiefgarage kann ein Stellplatz um EUR 130,00 brutto/Monat angemietet werden.

-------------

AUSSTATTUNG

*
Fußbodenheizung (Fernwärme)

*
Außenjalousien an allen Fenstern

*
Hochwertiger Parkettboden

*
Moderne Einbauküche mit Geräten

*
Badezimmer mit Badewanne & Waschmaschinenanschluss

*
Separates WC mit Handwaschbecken

*
Abstellraum innerhalb der Wohnung

*
Südwest-Terrasse (ca. 11,8 m²)

*
Kellerabteil

*
Fahrradabstellraum im Haus

-------------

LAGE

Die Sankt-Johann-Gasse liegt ruhig und gleichzeitig zentral im 5. Wiener Gemeindebezirk (Margareten). In der direkten Umgebung befinden sich zahlreiche Einkaufsmöglichkeiten, Cafés, Restaurants und Parks. Die nahegelegene Reinprechtsdorfer Straße wird derzeit städtebaulich aufgewertet und gewinnt laufend an Attraktivität. Die Innenstadt ist in wenigen Minuten mit dem Fahrrad oder öffentlichen Verkehrsmitteln erreichbar.

-------------

ÖFFENTLICHE VERKEHRSANBINDUNG

*
U-Bahn: U4 Pilgramgasse

*
Buslinien: 12A, 14A, 59A

*
Schnelle Radwege Richtung Zentrum

 

*Für die Vertragserrichtung werden dem Mieter einmal EUR 240,- Brutto verrechnet.

Der Immobilienmakler erklärt, dass er – entgegen dem in der Immobilienwirtschaft üblichen Geschäftsgebrauch des Doppelmaklers – einseitig nur für den Vermieter tätig ist.

Infrastruktur / Entfernungen

Gesundheit
Arzt <500m
Apotheke <500m
Klinik <500m
Krankenhaus <1.000m

Kinder & Schulen
Schule <500m
Kindergarten <500m
Universität <1.000m
Höhere Schule <1.000m

Nahversorgung
Supermarkt <500m
Bäckerei <500m
Einkaufszentrum <1.500m

Sonstige
Geldautomat <500m
Bank <500m
Post <500m
Polizei <1.000m

Verkehr
Bus <500m
U-Bahn <500m
Straßenbahn <500m
Bahnhof <500m
Autobahnanschluss <4.000m

Angaben Entfernung Luftlinie / Quelle: OpenStreetMap
Beschreibung weiterlesen

Lage und Verkehrsanbindung

Schönbrunner Straße

Wienzeile, U4 Margaretengürtel

Energieeffizienz

HWB:
28,97 kWh/(m²*a)
HWB Klasse:
B
fGEE:
0,86
fGEE Klasse:
B
Energieausweisart:
Energiebedarfs-ausweis
Gültig bis:
23.08.2033

Grundriss

Lageplan

1050 Wien | Wien 5., Margareten

Lade...
David Schober, MSc

David Schober, MSc
Team Lead Vermietung/Consultant

EDEX Immobilien GmbH

Lade...

Fotomix

Bild 1 Bild 2 Bild 3 Bild 4 Bild 5 Bild 6 Bild 7 Bild 8 Bild 9 Bild 10 Bild 11 Bild 12 Bild 13 Bild 14 Bild 15 Bild 16 Bild 17 Bild 18 Bild 19 Bild 20 Bild 21 Bild 22 Bild 23 Bild 24