NEU - Klimatisierte Büro-/Praxisräume in Graz - nahe der KF-UNI: Heinrichstraße 47a

Immobilie zur Miete in 8010 Graz / Objektnummer: 1939/123233
Ausstattung: Boden Teeküche Zentralheizung
P8040049
P1040609
P1040617
P1040619
P1040624
P1040610
P1040612
P1040623
P1040616
P1040613
_446499

Preisinformationen

Gesamtmiete (exkl. USt.):
1.182,75 € / Monat
Betriebskosten netto:
286,75 € / Monat
Heizkosten netto:
198,40 €
Umsatzsteuer:
236,55 €
Miete/m² netto:
8,40 €
Kaution:
3 Bruttomonatsmieten
Vermittlungsprovision:
Ja
Provision:
3 Bruttomonatsmieten zzgl. 20% USt.

Fakten

Objektnummer:
1939/123233
Bürofläche:
128 m²
Zimmer:
4
Toilette:
1
Altbau:
Ja
Verfügbarkeit:
Verfügbar

Beschreibung

Entdecken Sie Ihre neue Büro- oder Praxisfläche im Herzen von Graz, der charmanten Landeshauptstadt der Steiermark. Diese attraktive Immobilie bietet Ihnen nicht nur eine exzellente Lage, sondern auch den perfekten Raum, um Ihre beruflichen Träume zu verwirklichen.

Mit einer großzügigen Fläche von vier hellen und freundlichen Zimmern, die sich ideal für Büros oder Praxen eignen, schaffen Sie eine einladende Atmosphäre für Ihre Kunden und Mitarbeiter. Der Parkettboden verleiht den Räumen eine elegante Note und sorgt auch für ein angenehmes Raumklima. Die Zentralheizung garantiert zudem eine behagliche Wärme im Winter, die Klimaanlage eine Kühle im Sommer.

Die Lage dieser Immobilie ist mit der hervorragenden Verkehrsanbindung ein Highlight.

Die attraktiven Mietkosten bieten Ihnen ein hervorragendes Preis-Leistungs-Verhältnis für eine so zentrale und gut ausgestattete Immobilie in Graz. Nutzen Sie diese Chance, um Ihren beruflichen Erfolg im pulsierenden Herzen der Steiermark zu starten oder weiter auszubauen.

Zögern Sie nicht und vereinbaren Sie noch heute einen Besichtigungstermin. Lassen Sie sich von der Vielseitigkeit und dem Potenzial dieser Immobilie überzeugen und setzen Sie den ersten Schritt in Ihre erfolgreiche Zukunft!

Wir weisen darauf hin, dass zwischen dem Vermittler und dem zu vermittelnden Dritten ein familiäres oder wirtschaftliches Naheverhältnis besteht.

Der Vermittler ist als Doppelmakler tätig.

Infrastruktur / Entfernungen

Gesundheit
Arzt <25m
Apotheke <475m
Klinik <525m
Krankenhaus <750m

Kinder & Schulen
Schule <700m
Kindergarten <125m
Universität <150m
Höhere Schule <1.150m

Nahversorgung
Supermarkt <400m
Bäckerei <50m
Einkaufszentrum <1.500m

Sonstige
Geldautomat <25m
Bank <25m
Post <375m
Polizei <800m

Verkehr
Bus <100m
Straßenbahn <625m
Autobahnanschluss <5.600m
Bahnhof <1.125m

Angaben Entfernung Luftlinie / Quelle: OpenStreetMap
Beschreibung weiterlesen

Lage und Verkehrsanbindung

Diese Büro- bzw. Praxisimmobilie in 8010 Graz bietet eine ideale Lage für vielseitige Nutzung. Die Universität, eine Bank sowie Gastronomie und Bäckerei liegt nur einen Katzensprung entfernt. Öffentliche Verkehrsanbindungen sorgen für optimale Erreichbarkeit und hohe Frequentierung. Ein perfekter Standort für Ihre Vorhaben!

Energieeffizienz

HWB:
84,7 kWh/(m²*a)
HWB Klasse:
C
fGEE:
0,99
fGEE Klasse:
B
Energieausweisart:
Energiebedarfs-ausweis
Gültig bis:
13.10.2031

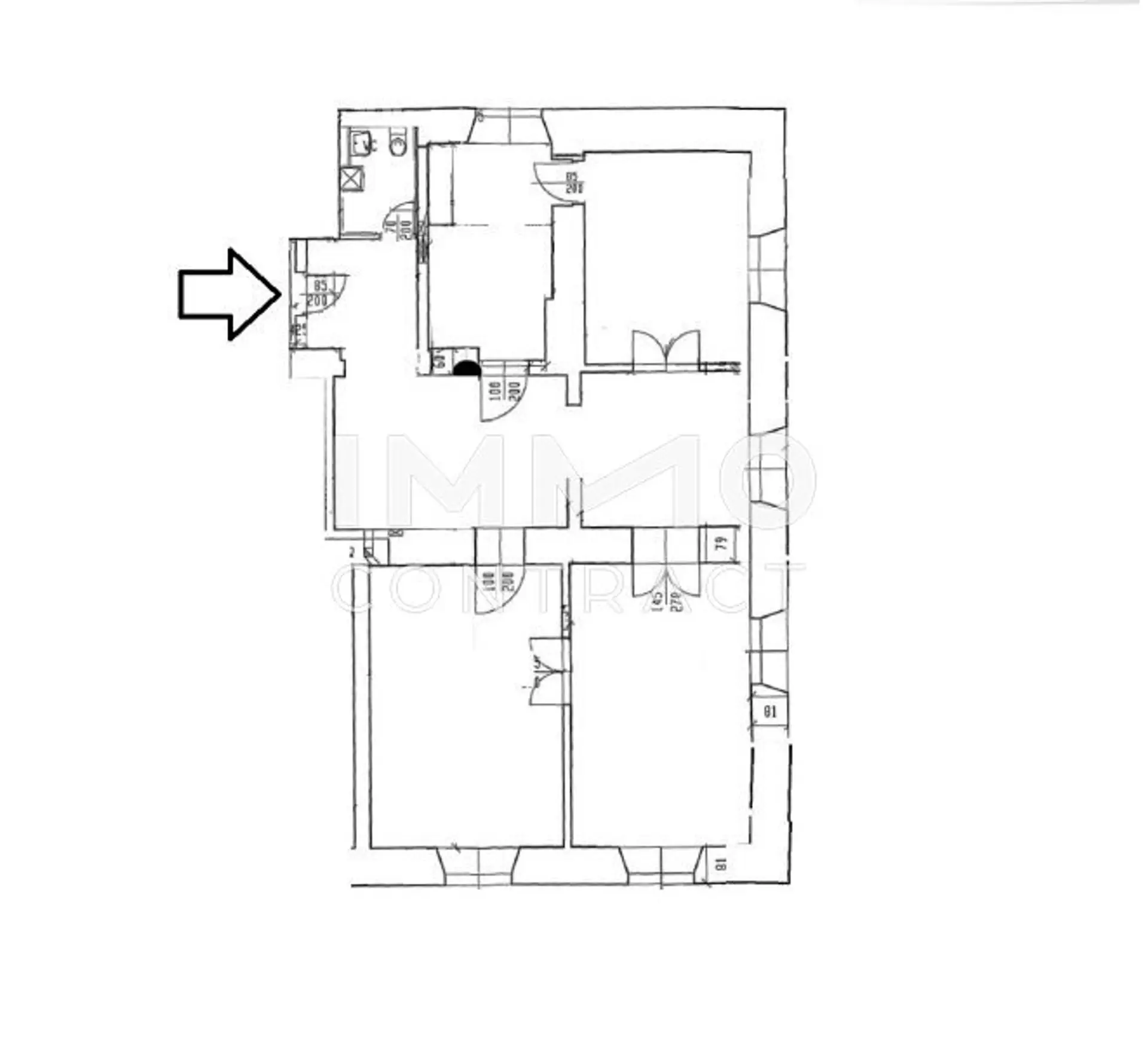
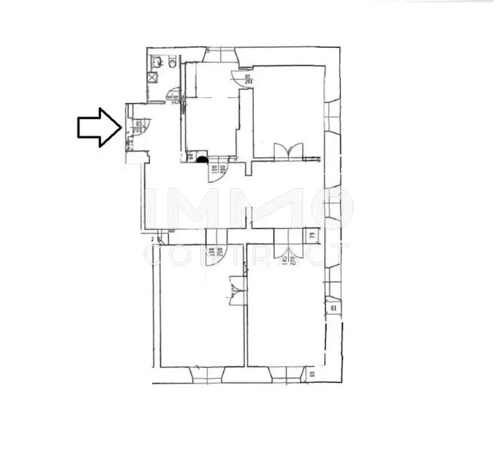
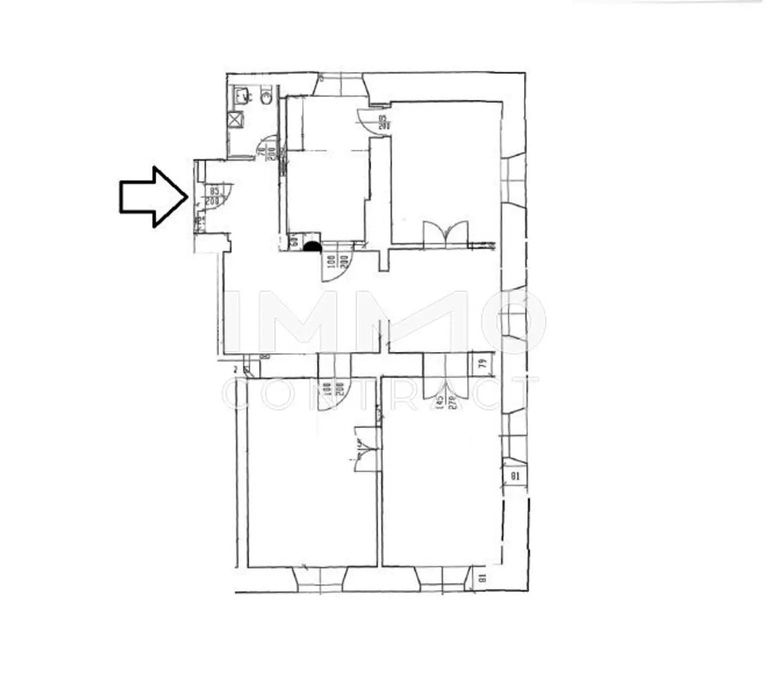
Grundriss

Lageplan

8010 Graz | Graz (Stadt)

Lade...
Jan Sarkantyu

Jan Sarkantyu
Regionalmanager

IMMOcontract Immobilien Vermittlung GmbH

Lade...

Fotomix

P8040049 P1040609 P1040617 P1040619 P1040624 P1040610 P1040612 P1040623 P1040616 P1040613