NEU - Klimatisierte Dachgeschosswohnung mit 2 Terrassen | nahe Neubaugasse (U3)

Wohnung zur Miete in 1070 Wien - Gesamtmiete: 1.950,01 € / Objektnummer: 930
Ausstattung: Boden Fahrstuhl Wohnküche / offene Küche Bad Kabel/Satelliten-TV Klimaanlage Abstellraum Etagenheizung Terrasse

Preisinformationen

Gesamtmiete:
1.950,01 € / Monat
Betriebskosten netto:
217,55 € / Monat
Umsatzsteuer:
177,28 €
Kaution:
3 Bruttomonatsmieten
Provision:
Gemäß Erstauftraggeberprinzip bezahlt der Abgeber die Provision.

Fakten

Objektnummer:
930
Objekttyp:
Wohnung
Terrasse:
2
Wohnfläche:
90 m²
Nutzfläche:
121 m²
Zimmer:
2
Badezimmer:
1
Toilette:
1
Stockwerk:
6
Altbau:
Ja
Zustand:
Neuwertig
Verfügbarkeit:
Verfügbar

Beschreibung

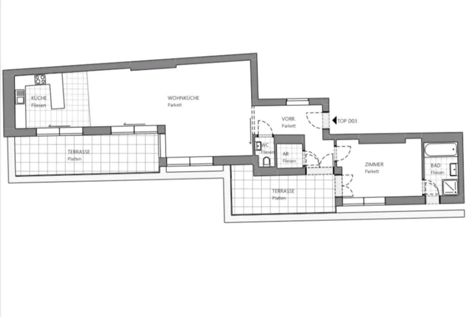
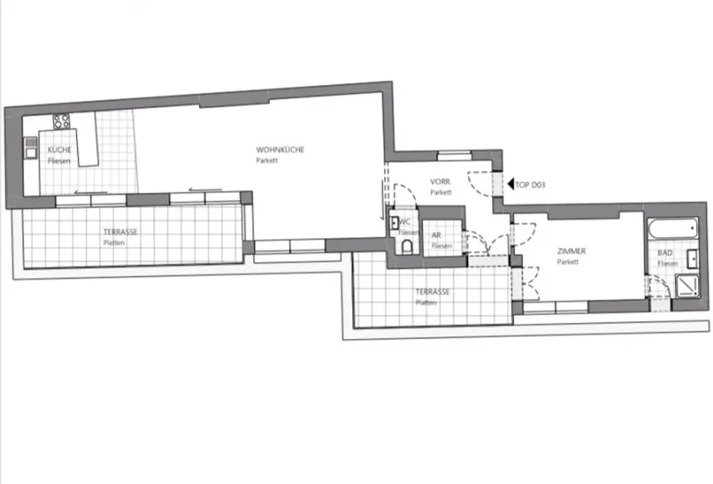
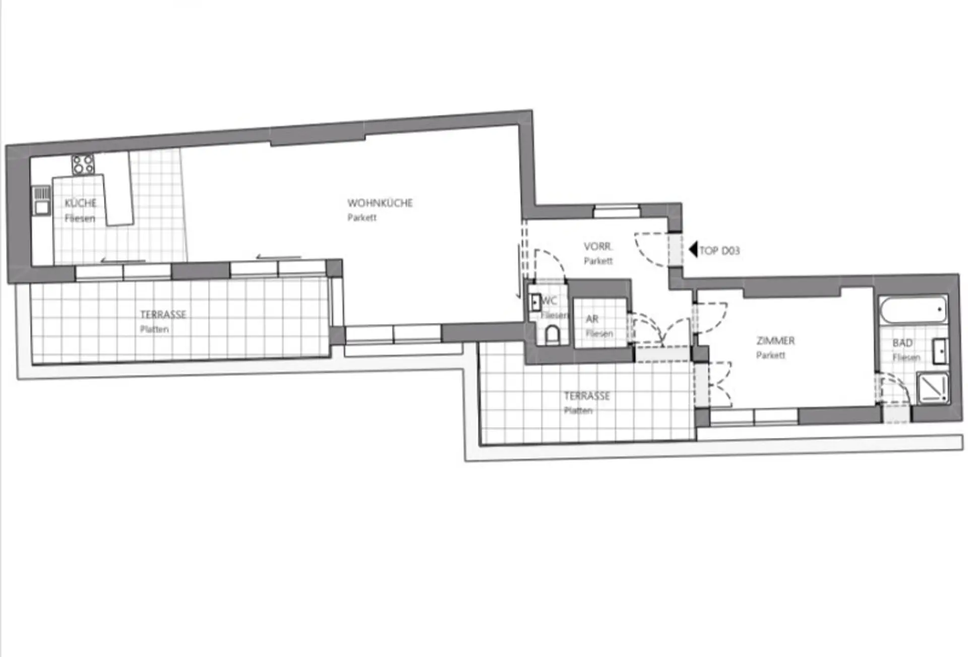
großzügige DG-Wohnung mit zwei hofseitigen Terrassen auf Wohnebene.

+ Nutzfläche: 87qm 
+ süd-westseitige Ausrichtung (!)

Der Grundriss umfasst:

+ Vorzimmer mit Ausgang zu Terrasse 1
+ Wohn-/Esszimmer mit großzügiger, öffenbarer Verglasung (Terrasse 2; Kochen und Wohnen mit Blick über die Dächer Wiens!)
+ amerikanische Küche Wohnküche; vollausgestattet
+ Schlafzimmer 
+ Bad (Wanne, Dusche, Handtuchtrockner, elektrische Fußbodenheizung)
+ separate Toilette mit Handwaschbecken
+ Abstellraum mit Waschmaschinenanschluss

+ Gasetagenheizung (HWB 96,1, Klasse D )
 

Die Terrassen verfügen beide über Wasseranschlüsse und Elektrosteckdosen.
Die Flächenaufstellung (Größe der einzelnen Räume) bitten wir dem Plan zu entnehmen.
 

Highlights:

+ Sicherheitseingangstüre

+ Klimaanlagen

+ Sonnenschutz an allen Fenstern und Terrassentüren (Jalousien)

+ sehr helle Wohnräume

+ großflächige Fenster

+ Dielenparkett

+ sehr gepflegtes Haus

+ repräsentative, ruhige Lage

 

Verkehr:
U3 Neubaugasse bzw. Zieglergasse

Vertrag & Kosten:
Mietvertrag auf 5 Jahre
Bruttomiete inkl. BK & USt.: € 1.950,-
Gas & Strom sind nicht im Mietpreis inkludiert (Etagenheizung).
Kaution: 3 Bruttomonatsmieten

 

Wir sind jederzeit gerne für Sie erreichbar, auch an Wochenenden und Feiertagen!

-------------

 

E N G L I S H

Top Located Penthouse-Apartment with 1 Bedroom, 2 Terraces

location : near Mariahilfer Straße - Neubaugasse

details:

+ living space: 87qm

+ 1 bedroom

+ bright living room with open plan kitchen and terrace

+ bathroom (washbasin, shower, tub, towel dryer, electrical floor heating)

+ anteroom

+ storeroom with possibility to connect a washing machine

+ separate restroom

 

Highlights:

+ air condition (!)
+ security entrance door
+ bright rooms (large windows!)

+ venetians everywhere
+ beautiful parquet
+ neat house
+ representative location

 

Infrastructure:

Step out the house and You find litteraly everthing You need very close.

Closest subway-stations are U3-Neubaugasse and U3-Zieglergasse.

Contract & Costs:
monthly rent: € 1.950,- (heating and warmwater are extra)
deposit: 3x monthly rent
 

We cordially invite You to visit the apartment and get further details.
You reach us on weekends & hollidays aswell.

Wir weisen darauf hin, dass zwischen dem Vermittler und dem zu vermittelnden Dritten ein familiäres oder wirtschaftliches Naheverhältnis besteht.

Der Immobilienmakler erklärt, dass er – entgegen dem in der Immobilienwirtschaft üblichen Geschäftsgebrauch des Doppelmaklers – einseitig nur für den Vermieter tätig ist.
Beschreibung weiterlesen

Lage und Verkehrsanbindung

Mariahilfer Strasse / Neubaugasse (U3)

Mariahilfer Str. / Neubaugasse

Energieeffizienz

HWB:
96,1 kWh/(m²*a)
HWB Klasse:
D
Energieausweisart:
Energiebedarfs-ausweis
Gültig bis:
29.07.2035

Dokumente

Grundriss

Lageplan

1070 Wien | Wien 7., Neubau

Lade...
Evelyne Rauscher

Evelyne Rauscher
Geschäftsführung

Olymp Realitäten GmbH

Anrufen
Lade...

Fotomix

Bild 1 Bild 2 Bild 3 Bild 4 Bild 5 Bild 6 Bild 7 Bild 8 Bild 9 Bild 10 Bild 11 Bild 12 Bild 13 Bild 14 Bild 15