NEU - Klimatisierter Erstbezug - Hochwertige 2 Zimmer Balkonwohnung - Nähe Augarten

Wohnung zur Miete in 1200 Wien - Gesamtmiete: 1.249,00 € / Objektnummer: 247/21988
Ausstattung: Boden Fahrstuhl Balkon
Wohnzimmer
Wohnzimmer II
Wohnzimmer III
Terrasse
Schlafzimmer
Schlafzimmer I
Bad I
Vorraum I
Terrasse I
Ausblick
Ausblick Terrasse
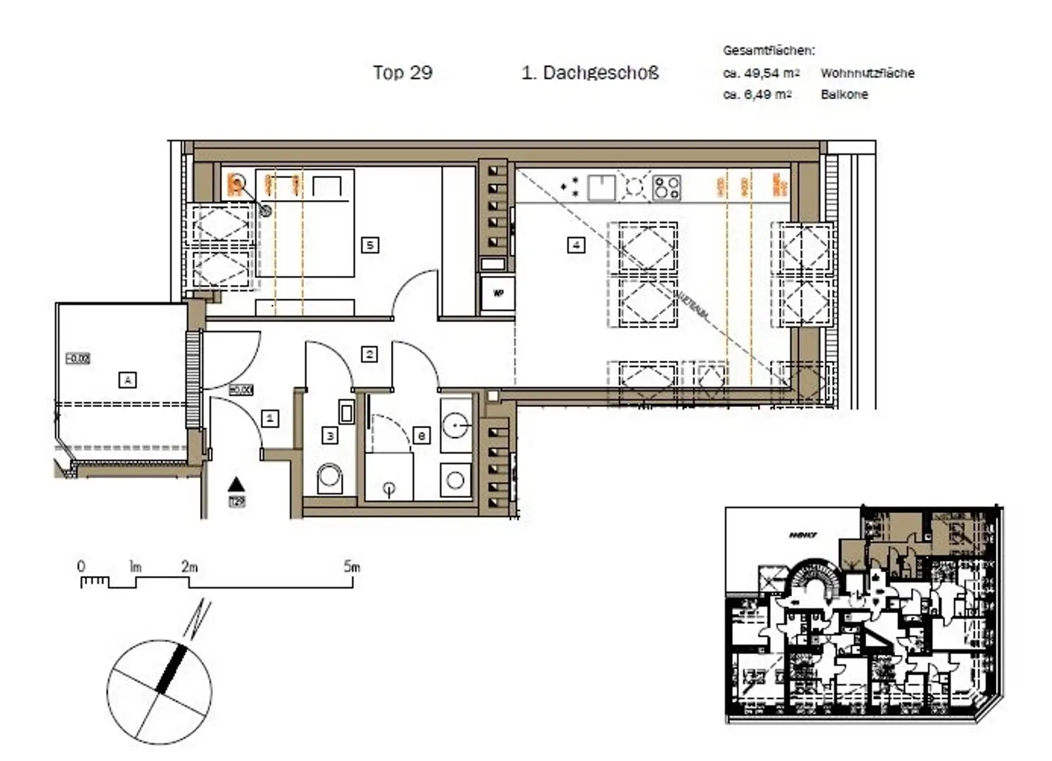
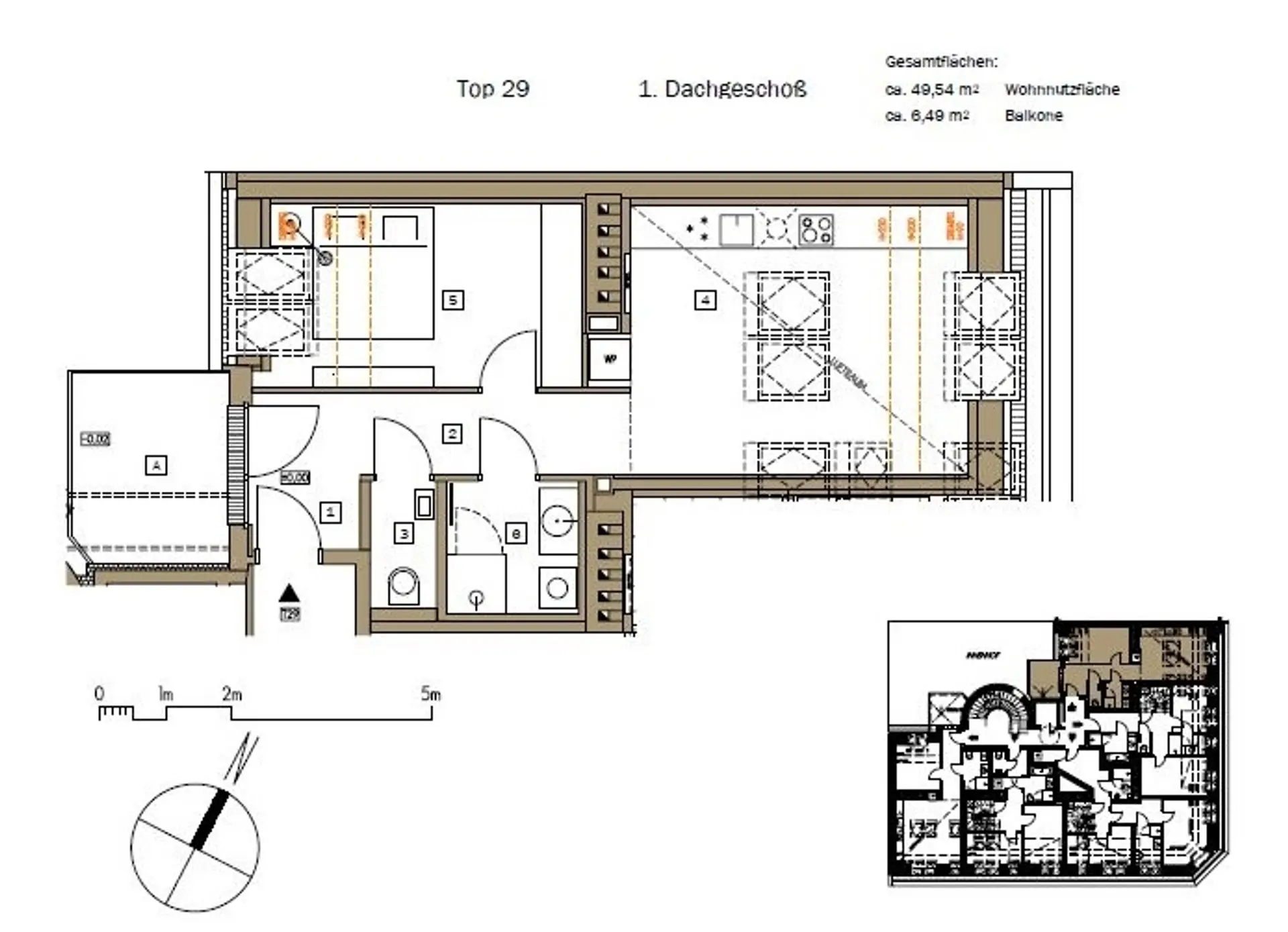
Plan
Lageplan

Preisinformationen

Gesamtmiete:
1.249,00 € / Monat
Nettomiete:
1.001,69 € / Monat
Betriebskosten netto:
133,76 € / Monat
Umsatzsteuer:
113,55 €
Preisinfos:
Abwicklung und Durchführung Mietvertrag: € 375,-
Kaution:
3.750,00 €

Fakten

Objektnummer:
247/21988
Objekttyp:
Wohnung
Balkon:
1
Wohnfläche:
50 m²
Zimmer:
2
Badezimmer:
1
Toilette:
1
Baujahr:
1953/DG Zubau
Verfügbarkeit:
Verfügbar

Beschreibung

Unweit des Augartens befindet sich Ihr neues Zuhause mit hochwertiger Ausstattung! Das Dachgeschoß des sanierten und gepflegten Altbaus wurde vor kurzem ausgebaut. Die hier entstandenen 2 und 3 Zimmer Wohnungen verfügen alle über Freiflächen in Form von Balkonen oder Terrassen und sind mit Klimaanlage und Wärmepumpen ausgestattet. Die Wohnung: Diese helle und moderne Balkonwohnung mit 2 Zimmern und einer Nutzfläche von ca 50 m² zzgl 6,5 m² Balkon steht als Erstbezug für Sie zur Anmietung bereit. Im Dachgeschoß erwartet Sie die Immobilie mit einer hochwertigen Ausstattung und einer durchdachten Raumaufteilung. Verfügbar ist dieser schöne Erstbezug ab sofort. Die Highlights: - Parkettböden - Isolierglasfenster - Fußbodenheizung mittels Wärmepumpe - Klimaanlage - Außenliegende Jalousien (elektrisch) - Aufzug - Fernseh und- und Internetanschlüsse (A1 und Magenta) - Kellerabteil zu jeder Wohnung zugeordnet. Die Infrastruktur: Die U-Bahnstation (U4) Friedensbrücke sowie die Autobuslinie 5A und die Straßenbahnlinie 31 (Gaußplatz) sind nur wenige Gehminuten entfernt. Sämtliche Geschäfte des täglichen Bedarfs sowie Cafe´s und Restaurants befinden sich in unmittelbarer Nähe. Der Augarten sowie der Donaukanal, welche sich direkt vor der Haustüre befinden, runden das Angebot perfekt ab. Die Kosten: Der monatliche Gesamtmietzins dieser Wohnung beläuft sich auf Euro 1.249,- inklusive Betriebskosten, Lift und Umsatzsteuer. Die Heiz- und Warmwasserversorgung erfolgt mittels Wärmepumpe und ist im Mietpreis nicht inkludiert. Wir möchten darauf hinweisen, dass unsere Antwort möglicherweise in Ihrem Spamordner landen könnte. Per Telefon werden keine Termine vergeben! Wir bitten Sie, ausschließlich das Kontaktformular der Immobilienplattformen für Anfragen zu nutzen. Nach Erhalt unserer E-Mail antworten Sie bitte auf dieses E-Mail mit Ihrem Besichtigungswunsch. Wir freuen uns auf Ihre Anfrage und einen gemeinsamen Besichtigungstermin!
Beschreibung weiterlesen

Lage und Verkehrsanbindung

Augarten

Energieeffizienz

HWB:
34,9 kWh/(m²*a)
HWB Klasse:
B
fGEE:
0,75
fGEE Klasse:
A

Grundrisse

Vivienne Spicak

Vivienne Spicak

IMV Immobilienmakler

Lade...

Fotomix

Wohnzimmer Wohnzimmer II Wohnzimmer III Terrasse Schlafzimmer Schlafzimmer I Bad I Vorraum I Terrasse I Ausblick Ausblick Terrasse