NEU - Kompakte 1-Zimmer Wohnung mit All-inclusive Miete in Top-Lage - JETZT ANFRAGEN!

Wohnung zur Miete in 1220 Wien - Gesamtmiete: 702,32 € / Objektnummer: 1761089
Ausstattung: Boden Fahrstuhl Wohnküche / offene Küche Bad Rollladen Tiefgarage Parkplatz Fahrradraum Abstellraum Fernwärme Zentralheizung Fußbodenheizung

Preisinformationen

Gesamtmiete:
702,32 € / Monat
Umsatzsteuer:
63,85 €
Kaution:
3 Bruttomonatsmieten
Provision:
Gemäß Erstauftraggeberprinzip bezahlt der Abgeber die Provision.

Fakten

Objektnummer:
1761089
Objekttyp:
Wohnung
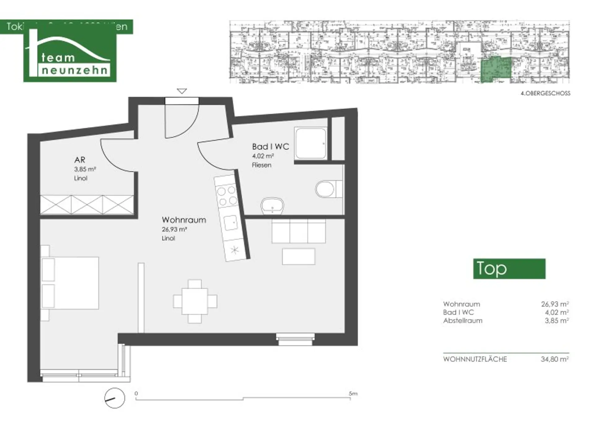
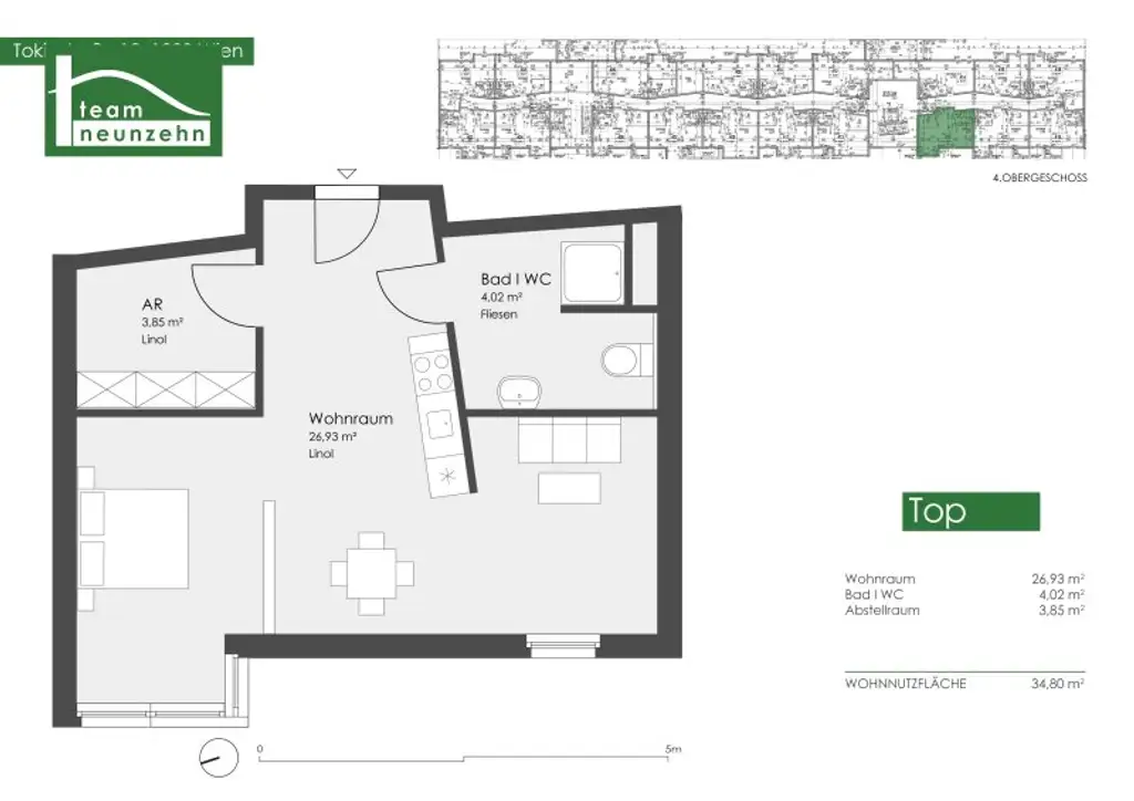
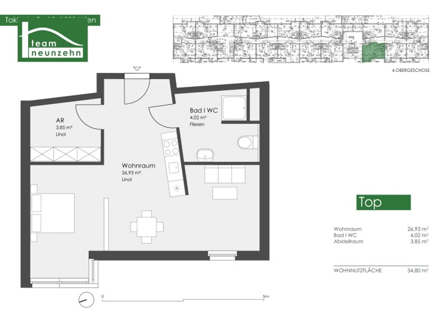
Wohnfläche:
34,8 m²
Nutzfläche:
34,8 m²
Gesamtfläche:
34,8 m²
Zimmer:
1
Badezimmer:
1
Toilette:
1
Stockwerk:
4
Neubau:
Ja
Zustand:
Neuwertig
Verfügbarkeit:
Verfügbar

Beschreibung

In der Tokiostraße 12 erwartet Sie ein stilvolles Wohnhaus mit durchdacht gestalteten Apartments, die höchsten Wohnkomfort auf kompaktem Raum bieten.Ob für Studierende, Berufseinsteiger oder Singles – hier verbinden sich funktionales Design und exzellente Lage zu einem attraktiven Wohnkonzept.

Die öffentliche Anbindung ist hervorragend: Die U1-Station Kagran, die Straßenbahnlinie 25 sowie das Westfield Donau Zentrum erreichen Sie bequem zu Fuß. Damit wohnen Sie urban und dennoch entspannt, mit allen wichtigen Einrichtungen direkt in Reichweite.

Zur Auswahl stehen Wohnflächen von ca. 24 bis 50 m², die mit zahlreichen Annehmlichkeiten überzeugen:

*
eine hochwertig ausgestattete Küche inklusive Kühlschrank, Kochfeld und Stauraum

*
ein praktischer Abstellbereich mit integriertem Kleiderschrank – ideal als Garderobe oder zusätzlicher Stauraum

*
ein möblierter Essplatz für sofortigen Wohnkomfort

*
freundliche, lichtdurchflutete Räume mit effizientem Grundriss

Zusätzlich profitieren die Bewohner von gemeinschaftlich nutzbaren Einrichtungen wie einer Waschküche und einem Fahrradraum, die den Alltag noch bequemer machen.

 

Die Highlights für Sie zusammengefasst:

*
Warmmiete inkl. Strom, Heizung, Warmwasser, Betriebskosten & USt.

*
Keine Provision

*
Hochwertige Einbauküche

*
3 Minuten zur U1 Kagran – in ca. 10 Minuten am Stephansplatz

*
Einkaufszentrum, Gastronomie, Freizeitangebote in unmittelbarer Nähe

*
Ruhige Seitengasse mit hervorragender öffentlicher Anbindung

 

Ausstattungsstandard:

*
Wohn- und Schlafbereiche mit hochwertigem Laminat- oder Vinylboden

*
Moderne Optik durch weiße Fliesen in Bad und WC

*
Zeitgemäße, gepflegte Sanitärausstattung

*
Innenliegende Jalousien für mehr Privatsphäre

*
Komfortabler Aufzug für einen barrierearmen Zugang zu allen Wohnungen

*
Gemeinschaftliche Abstellräume als praktischer Stauraum

*
Eigener Fahrrad- und Kinderwagenraum

*
Waschküche zur Mitbenutzung für alle Bewohner

Wohnung Top 415

Die 1-Zimmer-Wohnung überzeugt durch eine großzügige und funktionale Raumaufteilung. Der helle, weitläufige Wohnraum bietet viel Platz zum Wohnen, Schlafen und Arbeiten und lässt sich flexibel gestalten. Ergänzt wird die Wohnung durch ein praktisches Bad mit WC. Ein separater Abstellraum sorgt für wertvollen zusätzlichen Stauraum und trägt zu einer aufgeräumten Wohnatmosphäre bei. Die Wohnung eignet sich ideal für Singles oder Pendler, die komfortables Wohnen mit durchdachter Flächennutzung schätzen.

 

Wir weisen höflichst darauf hin, dass es sich bei den Fotos anbei um Musterfotos handelt. Die Wohnung wird gleich oder gleichwertig übergeben.

Einige Bilder des Inserats wurden zum Zweck der besseren Visualisierung digital mit KI möbliert. Die Wohnung wird unmöbliert übergeben.

 

Kostenübersicht:

monatliche Miete: 702,32 Euro (inkl. Strom, Heizung, Warmwasser, Betriebskosten & Umsatzsteuer)

Kaution: 3 Bruttomonatsmieten

Einmalige Mietvertragserrichtungsgebühr: 349,00 € inkl. USt.

PROVISIONSFREI

 

Infrastruktur:

Die Wohnlage überzeugt durch eine erstklassige Infrastruktur und vielfältige Möglichkeiten für den Alltag wie auch die Freizeit. Der nur wenige Schritte entfernte Kirschblütenpark lädt zu entspannten Spaziergängen und erholsamen Momenten im Grünen ein. Mit den öffentlichen Verkehrsmitteln erreichen Sie das Stadtzentrum, den Stephansplatz, in rund 20 Minuten. Für Autofahrer ist die Anbindung optimal: die Donauuferautobahn A23 ist in weniger als 5 Minuten erreichbar.

In der direkten Umgebung stehen Ihnen zahlreiche Einkaufsmöglichkeiten zur Verfügung. Neben einem BILLA in unmittelbarer Nähe finden Sie entlang der Donaufelderstraße eine große Auswahl an Geschäften. Bekannte Einzelhändler wie SPAR, Hofer, DM oder BILLA Plus sind ebenso schnell erreichbar. Auch Tankstellen, Apotheken und Trafiken befinden sich in der Nähe. Abgerundet wird das Angebot durch eine Vielzahl an Restaurants, in denen Sie kulinarische Spezialitäten genießen können.

 

Energieausweis:

Der Heizwärmebedarf beträgt 40,60 kWh/m²a, welcher der Klasse B entspricht.

Der fGEE beträgt 1,05 und entspricht somit sogar der Klasse C.

 

Für Fragen bzw. Besichtigungen steht Ihnen Herr Stefan Djukic sehr gerne unter 0664 536 84 47 oder via E-Mail unter Djukic@teamneunzehn.at zur Verfügung.

 

Wir weisen darauf hin, dass zwischen dem Vermittler und dem zu vermittelnden Dritten ein familiäres oder wirtschaftliches Naheverhältnis besteht.

Der Immobilienmakler erklärt, dass er – entgegen dem in der Immobilienwirtschaft üblichen Geschäftsgebrauch des Doppelmaklers – einseitig nur für den Vermieter tätig ist.

"Leben braucht Raum" * T19-RE Real Estate GmbH & Co KG * www.teamneunzehn.at [https://www.teamneunzehn.at]

Doppelmakler

Wir werden als Immobilienmakler kraft bestehenden Geschäftsgebrauchs als Doppelmakler tätig und haben sohin beide Seiten des Vertrages (Verkäufer-Käufer, Vermieter-Mieter) zu unterstützen.

Wirtschaftliches Naheverhältnis

Es wird bekannt gegeben, dass folgendes wirtschaftliches Naheverhältnis zwischen der teamneunzehn-Gruppe und dem Verkäufer/der vermietenden Partei besteht: ständige und dauerhafte Beauftragung mit der Vermittlung des bestehenden Immobilienportfolios

Haftungserklärung zum Inserat

Irrtum und Änderungen vorbehalten! Sofern es sich bei Bildern um Visualisierungen handelt, können Abänderungen zur tatsächlichen Ausführung resultieren. Wir weisen ausdrücklich darauf hin, dass das auf Fotos oder Visualisierungen ersichtliche Mobiliar bzw. Inventar nicht Bestandteil des inserierten Preises ist.

 

 

Infrastruktur / Entfernungen

Gesundheit
Arzt <250m
Apotheke <250m
Klinik <2.500m
Krankenhaus <2.650m

Kinder & Schulen
Schule <350m
Kindergarten <100m
Universität <625m
Höhere Schule <900m

Nahversorgung
Supermarkt <225m
Bäckerei <675m
Einkaufszentrum <825m

Sonstige
Geldautomat <800m
Bank <800m
Post <1.050m
Polizei <775m

Verkehr
Bus <175m
U-Bahn <600m
Straßenbahn <175m
Bahnhof <700m
Autobahnanschluss <2.300m

Angaben Entfernung Luftlinie / Quelle: OpenStreetMap
Beschreibung weiterlesen

Lage und Verkehrsanbindung

Alte Donau, Donauzentrum, Kirschblütenpark.

Alte Donau, Donauzentrum, Kirschblütenpark

Energieeffizienz

HWB:
40,6 kWh/(m²*a)
HWB Klasse:
B
fGEE:
1,05
fGEE Klasse:
C
Energieausweisart:
Energiebedarfs-ausweis

Grundriss

Lageplan

1220 Wien | Wien 22., Donaustadt

Lade...
Stefan Djukic

Stefan Djukic
Immobilienvermittlung

teamneunzehn-Gruppe

Lade...

Fotomix

Bild 1 Bild 2 Bild 3 Bild 4 Bild 5 Bild 6 Bild 7 Bild 8 Bild 9 Bild 10 Bild 11 Bild 12 Bild 13 Bild 14