NEU - LAGEJUWEL IN DER LAUDONGASSE - MIT GARAGENPLATZ!

Wohnung zum Kauf in 1080 Wien - Kaufpreis: 406.000 € / Objektnummer: 247/21979
Ausstattung: Fahrstuhl Balkon
Wohnraum I
Balkon
Wohnraum
Wohnraum II
Küche
Küche I
Ausblick
Schlafzimmer
Vorraum
Badezimmer
Hausansicht I
Hausansicht
Eingangsbereich
Eingangsbereich I
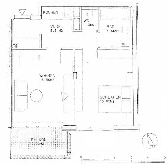
Plan
Lageplan

Preisinformationen

Kaufpreis:
406.000 €
Kaufpreis/m²
8.627,28 €
Preisinfos:
GrESt 3,5% + Grundbucheintragung 1,1% des Gesamtkaufpreises / Vertragserrichtung 1% + Barauslagen, Beglaubigungs-, ggf. Treuhandkosten bei Finanzierung + USt. / (Dr. Alexander Grohmann, 1030 Wien) Provision 3% + USt. d…
Vermittlungsprovision:
Ja
Provision:
3%

Fakten

Objektnummer:
247/21979
Objekttyp:
Wohnung
Balkon:
1
Wohnfläche:
47,06 m²
Zimmer:
2
Badezimmer:
1
Toilette:
1
Baujahr:
-/Neubau
Neubau:
Ja
Verfügbarkeit:
Verfügbar

Beschreibung

Sie sind auf der Suche nach einer ruhig gelegenen Eigentumswohnung - in zentraler Lage des 8. Bezirks? Dann werden Sie hier fündig. Die Wohnung ist noch bis Ende August vermietet. Deshalb handelt es sich bei den Bildern um Archivfotos. Die ca. 47 m² große Wohnung liegt im 5. Obergeschoss eines gepflegten Neubaus und gliedert sich in einen Vorraum mit offener Kochnische, einen Wohnraum mit Zugang auf den in den ruhigen Innenhof ausgerichteten Balkon, ein Schlafzimmer, ein Badezimmer und eine separate Toilette. Die Highlights: - tolle Raumaufteilung - ca. 5 m² großer Balkon mit Blick in den grünen Innenhof - Badezimmer mit Badewanne und Waschmaschinenanschluss - Aufzug vorhanden (Objekt barrierefrei erreichbar) - zusätzlicher Stauraum im Keller - Zentralheizung (Gas) - optimale öffentliche Anbindungen (U6, Buslinie 13A, Straßenbahnlinie 2, 5 und 33) - Einkaufsmöglichkeiten in der Nähe Der Kaufpreis für diese in ausgezeichneter Lage und Infrastruktur befindliche Eigentumswohnung beträgt Euro 376.000,-. Untrennbarer Teil des Wohnungseigentumsobjekts ist Garagenplatz Nr. 15, welcher um Euro 30.000,- angeboten wird. Somit beträgt der Gesamtkaufpreis der Wohnung inkl. Garagenplatz Euro 406.000,-. Vereinbaren Sie noch heute einen Besichtigungstermin und lassen Sie sich von dieser besonderen Immobilie verzaubern. Diesbezüglich freuen wir uns über Ihre geschätzte Anfrage per Mail. Wir möchten darauf hinweisen, dass unsere Antwort möglicherweise in Ihrem Spamordner landen könnte.
Beschreibung weiterlesen

Lage und Verkehrsanbindung

Florianigasse, U6 Josefstädter Straße

Energieeffizienz

HWB:
39,4 kWh/(m²*a)
HWB Klasse:
B
fGEE:
1,13
fGEE Klasse:
C

Grundrisse

Bernhard Stachl

Bernhard Stachl

IMV Immobilienmakler

Lade...

Fotomix

Wohnraum I Balkon Wohnraum Wohnraum II Küche Küche I Ausblick Schlafzimmer Vorraum Badezimmer Hausansicht I Hausansicht Eingangsbereich Eingangsbereich I