Lagerfläche in Brunn am Gebirge ab Sofort Beziehbar | Generalsanierte Gewerbeimmobilie

Lager zur Miete in 2345 Brunn am Gebirge
Ausstattung:

Preisinformationen

Vermittlungsprovision:
Ja

Fakten

Objekttyp:
Lager
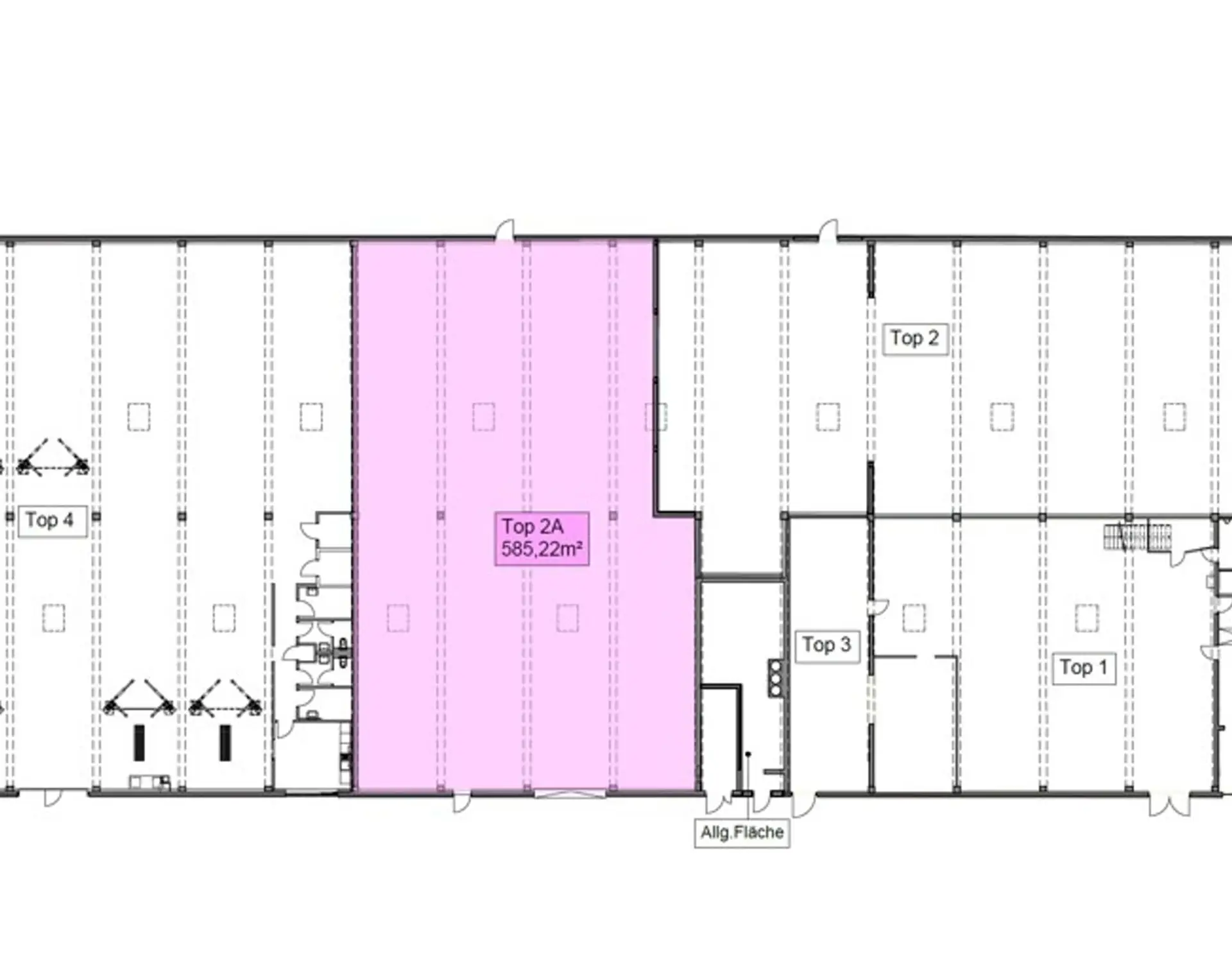
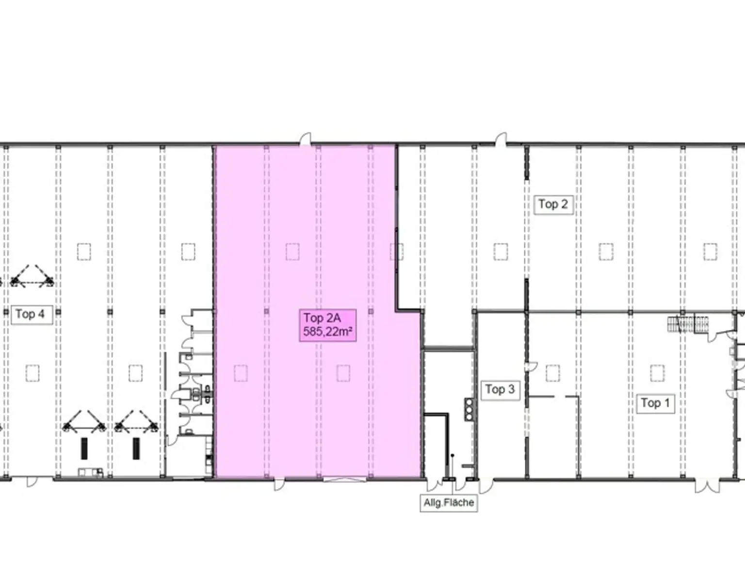
Nutzfläche:
585 m²
Grundstücksfläche:
585 m²
Neubau:
Ja
Verfügbarkeit:
Verfügbar

Beschreibung

Zur Vermietung steht eine separat anmietbare Einheit mit einer Lagerfläche von rund 585 m² in 2345 Brunn am Gebirge. Das Flächenlayout ermöglicht eine flexible Nutzung. Ein großes, ebenerdiges Einfahrtstor gewährleistet…
Beschreibung weiterlesen
Lade...

Fotomix

Bild 1 Bild 2 Bild 3 Bild 4 Bild 5 Bild 6