NEU - LANGENROHR III/1, "Betreutes Wohnen (BV)" - geförderte Mietwohnung, 1. OG Top 1.11, 1000/00011991/00001111

Wohnung zur Miete in 3442 Langenrohr - Gesamtmiete: 703,24 €
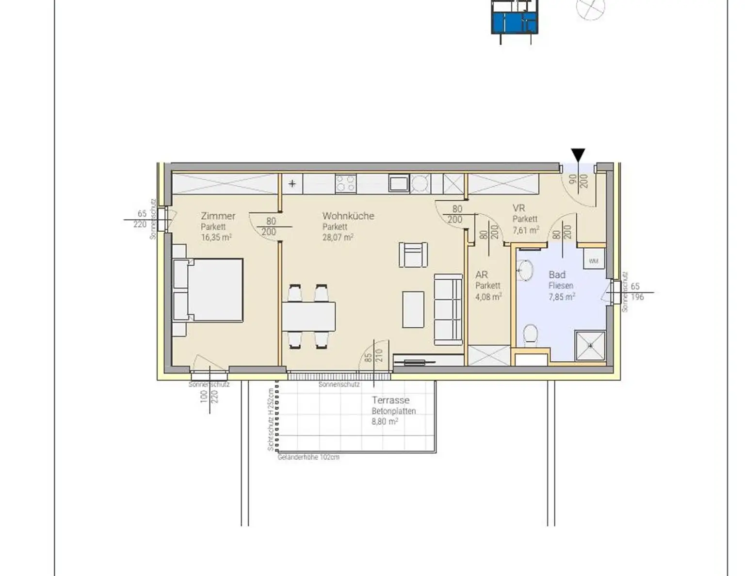
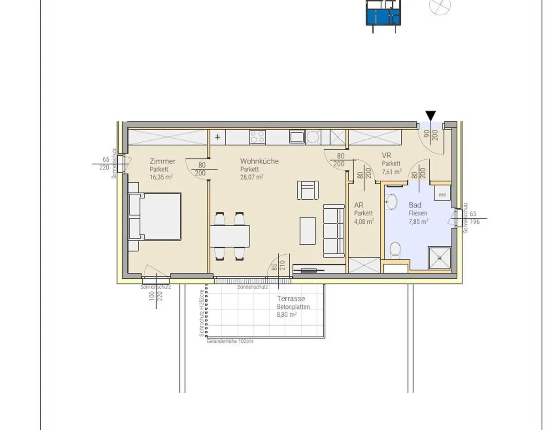
Ausstattung: Außenparkplatz Terrasse

Preisinformationen

Gesamtmiete:
703,24 € / Monat
Vermittlungsprovision:
Ja

Fakten

Objekttyp:
Wohnung
Terrasse:
1
Nutzfläche:
63 m²
Zimmer:
2
Neubau:
Ja
Verfügbarkeit:
Verfügbar

Beschreibung

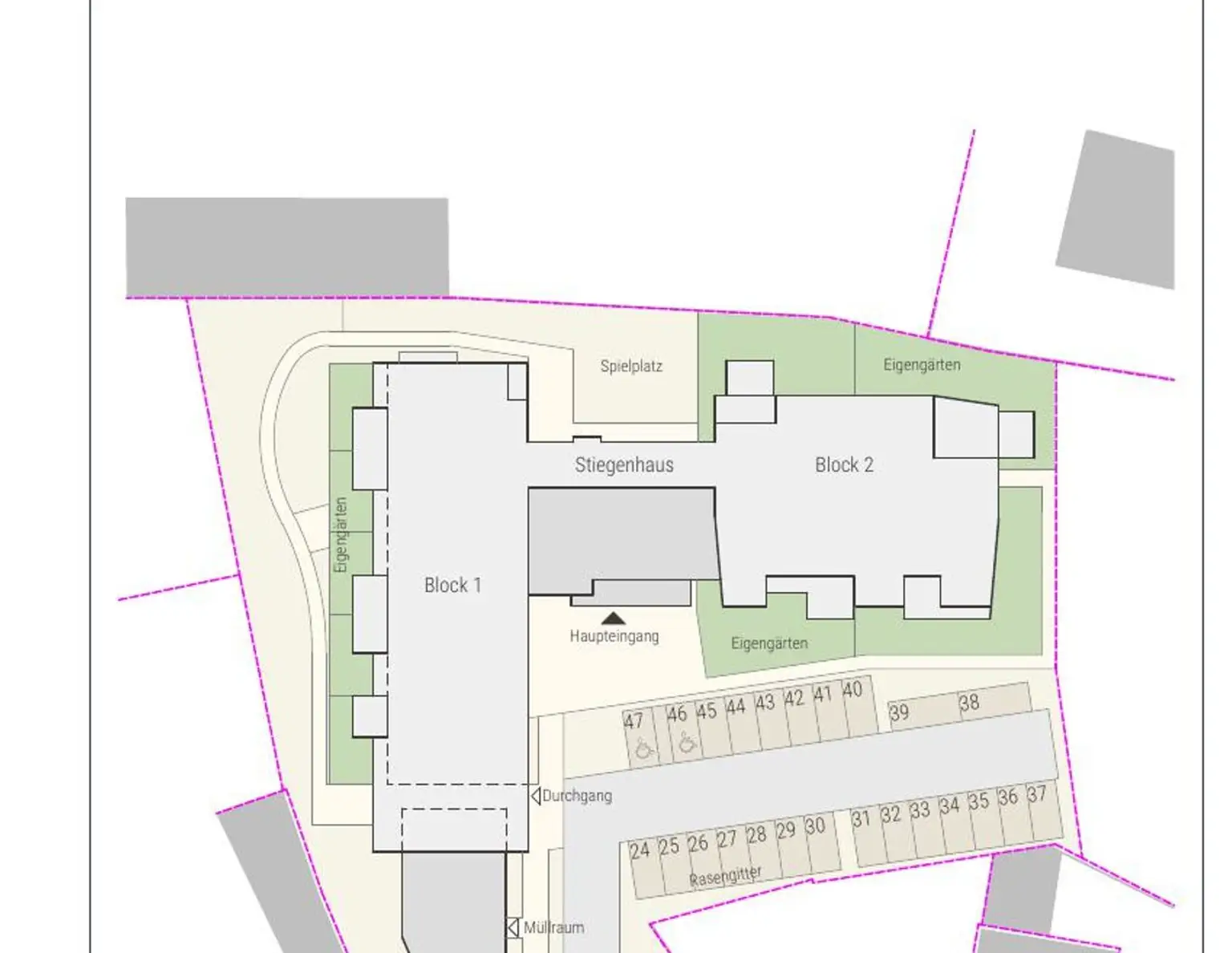
LANGENROHR, GENERATIONENÜBERGREIFENDES WOHNEN IM TULLNERFELD.  Diese Wohnanlage mit 29 geförderten Wohnungen zeichnet sich durch seinen Wohnungsmix aus. 17 Wohnungen sind für "Begleitetes Wohnen" ausgerichtet, 12 Wohnun…
Beschreibung weiterlesen

Alpenland, Gemeinnützige Bau-, Wohn- und Siedlungsgenossenschaft

Lade...

Fotomix

Bild 1 Bild 2 Bild 3 Bild 4