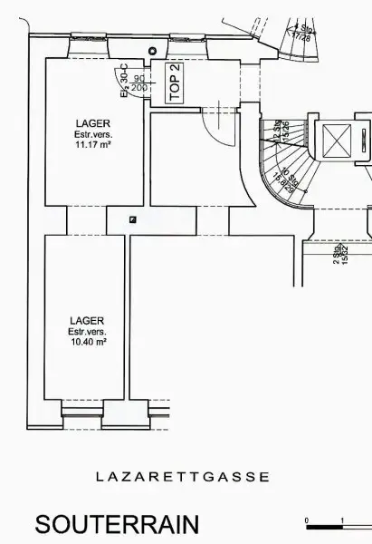
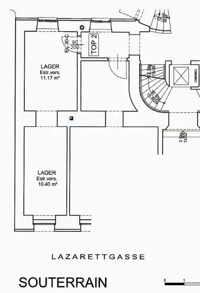
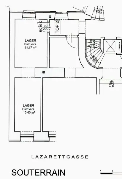
NEU - LAZARETTGASSE, AKH-Nähe, 21,57 m2 Lagerfläche im Souterrain, Steckdosen, Heizung

Sonstige zur Miete in 1090 Wien - Gesamtmiete: 157,75 € / Objektnummer: 2348
Ausstattung: Fahrstuhl Fahrradraum

Preisinformationen

Gesamtmiete:
157,75 € / Monat
Gesamtmiete (exkl. USt.):
131,46 € / Monat
Betriebskosten netto:
47,45 € / Monat
Umsatzsteuer:
26,29 €
Kaution:
3 Bruttomonatsmieten
Vermittlungsprovision:
Ja
Provision:
3 Bruttomonatsmieten zzgl. 20% USt.

Fakten

Objektnummer:
2348
Objekttyp:
Sonstige
Lagerfläche:
21,57 m²
Stockwerk:
-1
Altbau:
Ja
Zustand:
Gepflegt
Verfügbarkeit:
Verfügbar

Beschreibung

IN DER LAZARETTGASSE ZWISCHEN AKH UND MED-UNI-WIEN GELANGT DIESE 21,57 M2 LAGERFLÄCHE IM SOUTERRAIN ZUR BEFRISTETEN VERMIETUNG!

VERSPERRBARER EINGANG, LAGERFLÄCHE MIT FENSTER UND STECKDOSEN, HEIZUNG

ANFRAGEN BITTE AUSSCHLIESSLICH VIA MAIL STELLEN! DANKE

LAGE

LAZARETTGASSE -  NADLERGASSE MIT PERFEKTER INFRASTRUKTUR DES 9. BEZIRKS (SPITALGASSE - ALSER STRASSE - NADLERGASSE - SENSENGASSE -MARIANNENGASSE); DAS AKH-WIEN, DAS GOLDENE KREUZ PRIVATSPITAL UND ST. ANNA-KINDERSPITAL; PERFEKTE VERKEHRSVERBINDUNGEN WIE U6-STATION ALSER STRASSE SOWIE DIE LINIEN 5, 33, 43, 44, 37, 38, 40 + 41 SIND IN UNMITTELBARER NÄHE

SONSTIGES

GESAMTMIETE € 157,75 INKLUSIVE BETRIEBSKOSTEN-20 % MWST.,

3 BMM KAUTION: € 480,00 PER ÜBERWEISUNG;
GEBÜHR FÜR ERRICHTUNG UND DURCHFÜHRUNG DES MIETVERTRAGES: € 180,00 INKL. 20 % MWST (HV IMV GMBH),
FINANZAMTSGEBÜHR: EINMALIG - € 94,65
3 BMM VERMITTLUNGSPROVISION = € 473,25 INKLUSIVE 20 % MWST.
AUF 5 JAHRE BEFRISTETE HAUPTMIETE

ANBINDUNG ÖFFENTLICHER VERKEHR

DIE U6-STATION ALSER STRASSE SOWIE DIE LINIEN 5, 33, 43, 44, 37, 38, 40 + 41 SIND IN UNMITTELBARER NÄHE

ANFRAGEN BITTE AUSSCHLIESSLICH VIA MAIL STELLEN! DANKE

ANSPRECHPARTNER: MARTIN ROS
E-MAIL: MARTIN.ROS@ROS-REAL.AT 

Infrastruktur / Entfernungen

Gesundheit
Arzt <500m
Apotheke <500m
Klinik <500m
Krankenhaus <250m

Kinder & Schulen
Schule <250m
Kindergarten <250m
Universität <250m
Höhere Schule <500m

Nahversorgung
Supermarkt <250m
Bäckerei <500m
Einkaufszentrum <1.500m

Sonstige
Geldautomat <500m
Bank <500m
Post <500m
Polizei <500m

Verkehr
Bus <250m
U-Bahn <500m
Straßenbahn <250m
Bahnhof <750m
Autobahnanschluss <2.750m

Angaben Entfernung Luftlinie / Quelle: OpenStreetMap
Beschreibung weiterlesen

Lage und Verkehrsanbindung

LAZARETTGASSE - NADLERGASSE mit perfekter Infrastruktur des 9. Bezirks (Spitalgasse - Alser Straße - Nadlergasse - Sensengasse -Mariannengasse); das AKH-Wien, das Goldene Kreuz Privatspital und St. Anna-Kinderspital; perfekte Verkehrsverbindungen wie U6-Station Alser Straße sowie die Linien 5, 33, 43, 44, 37, 38, 40 + 41 sind in unmittelbarer Nähe

Spitalgasse, AKH-Wien, Alser Straße, Nadlergasse, Sensengasse, das Goldene Kreuz Privatspital, St. Anna-Kinderspital

Energieeffizienz

HWB:
265 kWh/(m²*a)
fGEE:
3,75
Energieausweisart:
Energiebedarfs-ausweis

Grundriss

Lageplan

1090 Wien | Wien 9., Alsergrund

Lade...
Martin Ros

Martin Ros
Geschäftsführer

ROS REALITÄTEN OG

Lade...

Fotomix

Bild 1 Bild 2 Bild 3 Bild 4 Bild 5 Bild 6 Bild 7 Bild 8 Bild 9