NEU - LEO 131 - Zentral begehbare 3-Zimmer Wohnung mit Sportplatz-Blick und Anbindung nach Floridsdorf, nahe Siemens und Grünflächen!

Wohnung zur Miete in 1210 Wien - Gesamtmiete: 1.249,00 € / Objektnummer: 1706979
Ausstattung: Boden Fahrstuhl Bad Tiefgarage Parkplatz Fahrradraum Abstellraum Zentralheizung Balkon Loggia

Preisinformationen

Gesamtmiete:
1.249,00 € / Monat
Umsatzsteuer:
113,55 €
Kaution:
3 Bruttomonatsmieten
Provision:
Provision bezahlt der Abgeber.

Fakten

Objektnummer:
1706979
Objekttyp:
Wohnung
Balkon:
1
Loggia:
1
Balkonfläche:
3,41 m²
Wohnfläche:
69,99 m²
Loggia Fläche:
3,51 m²
Nutzfläche:
76,91 m²
Gesamtfläche:
76,91 m²
Zimmer:
3
Badezimmer:
1
Toilette:
1
Stockwerk:
3
Neubau:
Ja
Zustand:
Neuwertig
Verfügbarkeit:
Verfügbar

Beschreibung

LEO 131 - hochwertige Neubauwohnungen mit Anbindung zu U6, S-Bahn und U1 in Leopoldau mit inkludierter Küche

Erst 2021 wurde dieses moderne Wohngebäude im auffallenden Gelb entlang der Leopoldauer Straße mit einer tollen Kombination aus guter Infrastruktur vor Ort, rascher Anbindung an die U6, U1 und S-Bahn und hochwertiger Ausstattung fertiggestellt.

Das Gebäude befindet sich an der Ecke der Leopoldauer Straße und Heinrich-von-Buol-Gasse. Im freundlichen Gelb designt ist dieses vielen, die an der Stelle schon einmal vorbeigekommen sind, ein Begriff und sticht aus der Masse der überwiegend gräulichen oder weiß gehaltenen Neubauten deutlich heraus.

Die Wohnungsgrößen reichen von kompakten 33m² 1-Zimmer Wohnungen bis hin zu luftigen, 83m² großen 4-Zimmer Wohnungen und decken auch dazwischen praktisch jeden Wunsch ab. Dazu gibt es einige Gartenwohnungen, Wohnungen mit besonders großen Dachterrassen, tollem Weitblick und vielem mehr.

In dem Wohngebäude wurden auch umfangreiche Allgemeinbereiche eingeplant. So gibt es für zusätzlichen Stauraum Kellerabteile, Fahrradraum, Kinderwagenraum und einen Paketraum. Im begrünten Innenhof befindet sich ein freundlicher kleiner Kinderspielplatz mit beschatteter Sandkiste. Im Erdgeschoss gibt es auch eine gemeinschaftliche Waschküche. In der hauseigenen Tiefgarage stehen Ihnen Garagenplätze zur optionalen Anmietung zur Verfügung.

Verfügbarkeit & Befristung

Die Wohnungen können großteils ab sofort angemietet werden, vereinzelte Wohnungen sind auch erst zu einem späteren Zeitpunkt verfügbar.

Die Befristung beläuft sich auf 5 Jahre.

 

Ausstattungsstandard

Die modernen Neubauwohnungen sind zeitgemäß und hochwertig ausgestattet.

Das zeigt sich unter anderem durch:

* Inkludierte Küche mit Elektrogeräten (großer Kühlschrank, separater Gefrierer, Geschirrspüler, Backofen, Kochfeld, Dunstabzug, Spüle und Stauraum)
* Eichenholzparkettboden
* Video-Gegensprechanlage
* Gaszentralheizung (Energieeffizienz-Klasse A!)
* Großer Spiegel im Bad bereits verbaut
* Außenrollläden

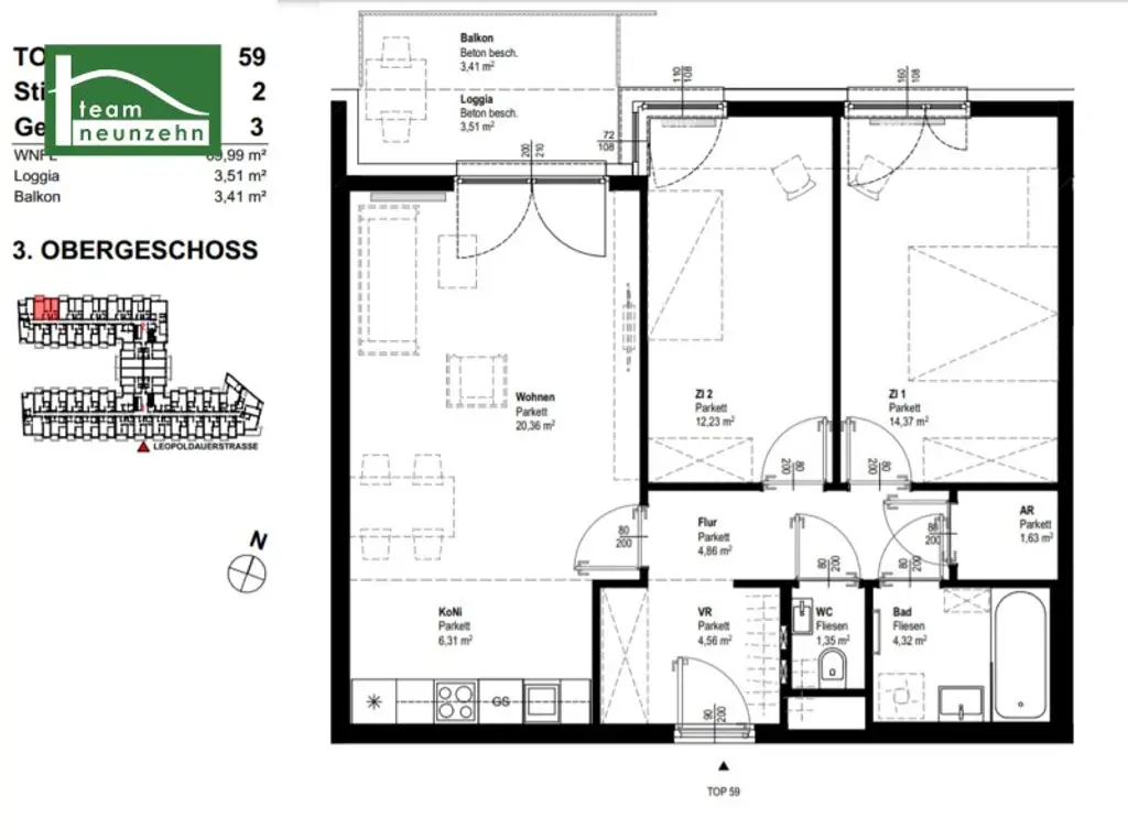
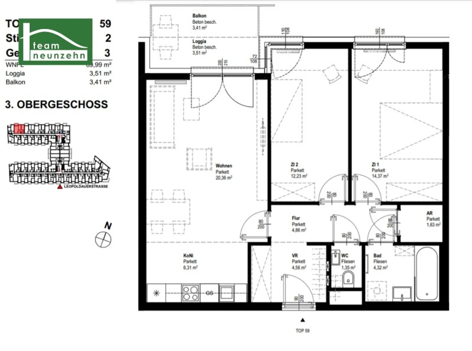
Wohnung Top 59 Stiege 2:

Die 3-Zimmer-Wohnung mit ca. 70 m² Wohnfläche sowie mit ca. 3 m² Loggia und einem ca. 3 m² Balkon befindet sich im 3. Obergeschoss und orientiert sich Richtung Nord-Westen.

Über den Vorraum erreichen Sie bequem die Wohnküche, die beiden Schlafzimmer, Abstellraum, Badezimmer und das WC. Über den Wohnbereich gelangen Sie mit direktem Zugang auf die Loggia und auf den Balkon. Die Raumaufteilung der Wohnung gliedert sich wie folgt:

* Vorraum ca. 4,56 m²
* Bad mit Badewanne, Handwaschbecken u. WMA ca. 4,32 m²
* Wohnküche mit Zugang zur Loggia/zum Balkon ca. 26,67 m²
* Schlafzimmer 1 ca. 14,37 m²
* Schlafzimmer 2 ca. 12,23 m²
* separate Toilette ca. 1,35 m²
* Abstellraum ca. 1,63 m²

 

Mietpreis: 

Der Mietpreis beläuft sich auf € 1.249,- inkl. Betriebskosten und USt. 

Kaution: 3 Bruttomonatsmieten. 

Provisionsfrei

 

Bei Bedarf besteht auch die Möglichkeit einen Stellplatz in der hauseigenen Tiefgarage anzumieten.

Der Mietpreis für den PKW-Stellplatz beläuft sich auf 125 Euro (inkl. BK und Ust.).

Einmalige Mietvertragserrichtungsgebühr - Stellplatz: 199,00 Euro (inkl. 20% USt.)

 

Infrastruktur:

Gelegen entlang der Leopoldauer Straße, gegenüber des Porsche Wien Nord und nahe des Siemensstraße Bahnhofs befinden wir uns im Bezirksteil Leopoldau. Die Lage punktet durch die gute Anbindung an die Öffis durch den praktisch vor der Gebäudetür haltenden Bus 28a/29a, welcher Sie in nur 4 Stationen zur U6 und S-Bahn Station Floridsdorf oder in 3 Stationen zum Siemensstraße Bahnhof. Auch die U1 Station Leopoldau ist mit diesem rasch erreicht, Fahrtzeit inkl. Gehzeit betragen nur rund 15 Minuten. In der direkten Umgebung der Wohnanlage befinden sich dazu 3 Parks und Grünanlagen, unter anderem eine große Hundezone, aber auch ein Spielplatz und ein einladender Park.

Infrastruktur im Detail

* Öffis: Buslinie 28a/29a in 2 Gehminuten. 4 Busstationen zu U6 und S-Bahn Floridsdorf, 3 Stationen zum Siemensstraße Bahnhof, 12 Stationen zur U1 Leopoldau
* Nahversorger: LIDL in 7 Gehminuten, EUROSPAR in 10 Gehminuten, HOFER in 11 Gehminuten
* Naherholung: Friessneggpark in 5 Gehminuten, Spielplatz Krebsgasse in 8 Gehminuten, Hundezone Teresa-Tauscher-Park in 10 Gehminuten, Alte Donau bei La Creperie in 18 Minuten mit Bus und Fußweg
* Shopping- und Entertainment: DONAUZENTRUM in 20 Minuten mit dem Bus, CITY GATE in 20 Minuten mit dem Bus, Floridsdorf in 4 Busstationen
* Bildung: Kindergarten Töllergasse in 4 Gehminuten, Städtischer Kindergarten Leopoldine-Padaurek-Straße in 7 Gehminuten, Volksschule Mengergasse in 2 Busstationen, Mittelschule Kinzerplatz in 18 Minuten inkl. Bus und Gehzeit, VetMed in 18 Minuten inkl. Bus und Gehzeit

 

Energieausweis:

Der Heizwärmebedarf beträgt 21,23 kWh/m²a, welcher der Klasse A entspricht.

 

Gerne steht Ihnen Christoph Kolar bei weiteren Fragen oder Wunsch nach einer Besichtigung über das Anfrage-Feld, via E-Mail unter kolar@teamneunzehn.at oder telefonisch unter +43676 852 243 541 [tel:+43676852243541] zur Verfügung.

 

Wir weisen darauf hin, dass zwischen dem Vermittler und dem zu vermittelnden Dritten ein familiäres oder wirtschaftliches Naheverhältnis besteht.

"Leben braucht Raum" * T19-RE Real Estate GmbH & Co KG * www.teamneunzehn.at [https://www.teamneunzehn.at]

Doppelmakler

Wir werden als Immobilienmakler kraft bestehenden Geschäftsgebrauchs als Doppelmakler tätig und haben sohin beide Seiten des Vertrages (Verkäufer-Käufer, Vermieter-Mieter) zu unterstützen.

Wirtschaftliches Naheverhältnis

Es wird bekannt gegeben, dass folgendes wirtschaftliches Naheverhältnis zwischen der teamneunzehn-Gruppe und dem Verkäufer/der vermietenden Partei besteht: ständige und dauerhafte Beauftragung mit der Vermittlung des bestehenden Immobilienportfolios

Haftungserklärung zum Inserat

Irrtum und Änderungen vorbehalten! Sofern es sich bei Bildern um Visualisierungen handelt, können Abänderungen zur tatsächlichen Ausführung resultieren. Wir weisen ausdrücklich darauf hin, dass das auf Fotos oder Visualisierungen ersichtliche Mobiliar bzw. Inventar nicht Bestandteil des inserierten Preises ist.

 

 

Infrastruktur / Entfernungen

Gesundheit
Arzt <725m
Apotheke <1.025m
Klinik <1.375m
Krankenhaus <1.350m

Kinder & Schulen
Schule <1.050m
Kindergarten <200m
Universität <1.025m
Höhere Schule <2.000m

Nahversorgung
Supermarkt <400m
Bäckerei <725m
Einkaufszentrum <1.775m

Sonstige
Geldautomat <1.375m
Bank <1.475m
Post <1.225m
Polizei <1.025m

Verkehr
Bus <125m
U-Bahn <1.550m
Straßenbahn <1.025m
Bahnhof <975m
Autobahnanschluss <2.050m

Angaben Entfernung Luftlinie / Quelle: OpenStreetMap
Beschreibung weiterlesen

Lage und Verkehrsanbindung

Porsche Wien Nord, Ferdinand-Platzer-Gasse, Teresa-Tauscher-Park, Wien Siemensstraße Bahnhof, Heinrich-von-Buol-Gasse, KSV Siemens Großfeld

Bahnhof Wien Brünner Straße, Siemensstraße, Teresa-Tauscher-Park

Energieeffizienz

HWB:
21,23 kWh/(m²*a)
HWB Klasse:
A
fGEE:
0,78
fGEE Klasse:
A
Energieausweisart:
Energiebedarfs-ausweis

Grundriss

Lageplan

1210 Wien | Wien 21., Floridsdorf

Lade...
Christoph Kolar

Christoph Kolar
Immobilienvermittlung

teamneunzehn-Gruppe

Lade...

Fotomix

Bild 1 Bild 2 Bild 3 Bild 4 Bild 5 Bild 6 Bild 7 Bild 8 Bild 9 Bild 10 Bild 11 Bild 12 Bild 13 Bild 14 Bild 15 Bild 16 Bild 17 Bild 18 Bild 19