LEO LIVING! ERSTBEZUG! NEUBAU! WÄRMEPUMPE! ELEKTRISCHE BESCHATTUNG! NÄHE U6!

Wohnung zum Kauf in 1230 Wien - Kaufpreis: 229.000 € / Objektnummer: 1718/1748547
Ausstattung: Barrierefrei Rollstuhlgerecht Boden Fahrstuhl Wohnküche / offene Küche Bad Tiefgarage Parkplatz Fußbodenheizung Terrasse WG geeignet

Preisinformationen

Kaufpreis:
229.000 €
Vermittlungsprovision:
Ja
Provision:
3% des Kaufpreises zzgl. 20% USt.

Fakten

Objektnummer:
1718/1748547
Objekttyp:
Wohnung
Terrasse:
1
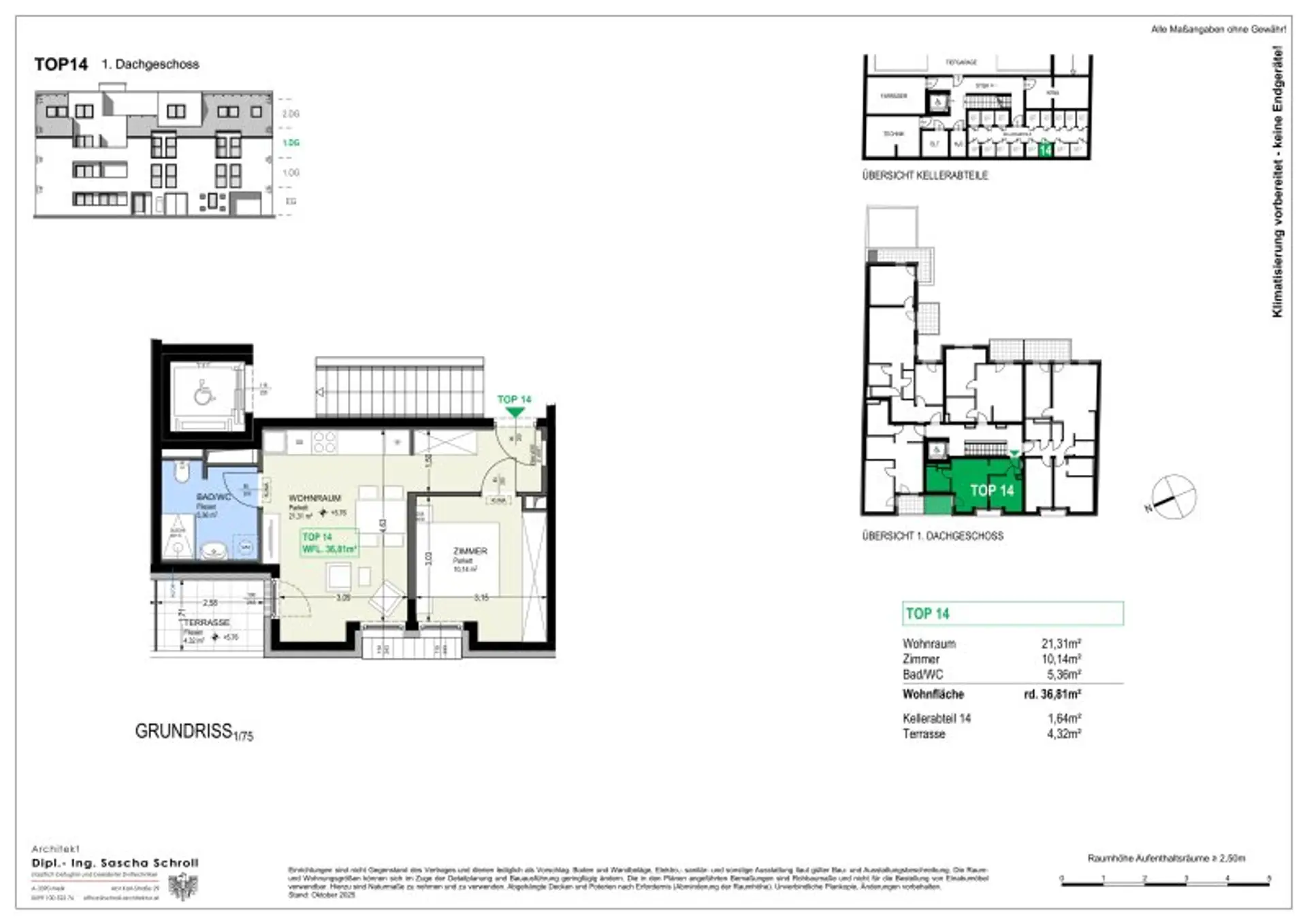
Wohnfläche:
36,81 m²
Nutzfläche:
41,13 m²
Gesamtfläche:
41,13 m²
Zimmer:
2
Badezimmer:
1
Toilette:
1
Stockwerk:
2
Baujahr:
2026
Neubau:
Ja
Zustand:
Erstbezug
Verfügbarkeit:
Verfügbar
Verfügbar ab:
sofort

Beschreibung

LEO LIVING! ERSTBEZUG! NEUBAU! WÄRMEPUMPE! ELEKTRISCHE BESCHATTUNG! NÄHE U6! 

Sonnige Neubauwohnung Nähe U6 Perfektastrasse!

 

Tauchen Sie ein in die exklusive Welt dieses herausragenden Projekts im begehrten 23. Bezirk! Hier wird Wohnen zu einem einzigartigen Erlebnis. Die besondere Lage dieses Neubaus setzt neue Maßstäbe für urbanes Wohnen und bietet nicht nur ein Zuhause, sondern auch eine perfekte Anbindung an die Stadt. Entdecken Sie Ihren Wohntraum inmitten dieser exklusiven Wohnoase!

Profitieren Sie von einer ausgezeichneten öffentlichen Verkehrsanbindung und der Nähe zur Shopping City Süd!

Entdecken Sie diese exklusiven Wohnungen, die mit einer Größe von ca. 39m² bis 124m² und 2-4 Zimmern individuellen Raum für jeden Lebensstil bieten. Die Freiflächen in Form von Balkonen, Loggien, Gärten und Terrassen sorgen für zusätzlichen Wohnkomfort. Stressfreies Parken ist dank hauseigenen PKW-Abstellplätzen in der Tiefgarage garantiert.

 

Highlights:

* Erstbezugs-Neubau: Gestalten Sie Ihr Zuhause nach Ihren persönlichen Vorstellungen!
* Hochwertige Ausstattung: Genießen Sie modernen Komfort und Stil in jedem Detail, dank einer sorgfältig ausgewählten, hochwertigen Innenausstattung.
* Ausgezeichnete Lage: Profitieren Sie von einer erstklassigen Lage und einer tollen U-Bahn Anbindung. Hier vereinen sich urbanes Leben und naturnahe Erholung.
* Freiflächen: Erholen Sie sich auf Ihren eigenen Freiflächen – sei es auf dem Balkon, der Loggia, im Garten oder auf der Terrasse.
* PKW-Abstellplätze in der Tiefgarage: Sichern Sie sich bequemes und sicheres Parken in der Tiefgarage, für stressfreien Zugang zu Ihrem neuen Zuhause.

 

Ausstattungsstandard:

* Modernster Standard mit Vollwärmeschutzfassade für geringe Heizkosten
* Aufzug für bequemen Zugang zu allen Etagen
* 3-fach isolierverglaste Fenster für eine optimale Wärmedämmung
* Fußbodenheizung für angenehmes Raumklima
* Elektrische Außenraffstores für Licht- und Sonnenmanagement
* Echtholzböden und hochwertige Sanitäreinrichtung für zeitgemäßen Wohnkomfort

 

 

Raumaufteilung:

Die Wohnung verfügt über eine Wohnfläche von knapp 37m², einer Loggia mit knapp 4m² und gliedert sich in folgende tolle Raumaufteilung.

 

* Vorraum 
* Wohnküche mit Zugang zur Loggia
* Schlafzimmer 
* Badezimmer mit bodenebener Dusche, Waschbecken, WC und WM-Anschluss
* Terrasse

 

 

Lage

Im "grünsten" Teil des 23. Bezirks befindet sich dieses interessante Bauprojekt. Die in wenigen Minuten mit dem Auto oder Badner Bahn erreichbare SCS Shopping City Süd bietet alle Möglichkeiten.  Lokale, alle Geschäfte des täglichen Bedarfs, Banken liegen hier quasi ums die Ecke.

Die U6 Stadtion in der Perfekta Strasse ist in 5 Minuten erreichbar. Am südlichen Stadtrand Wiens, in ruhiger Lage entstehen die modernen Eigentumswohnungen. Schnellbahnlinien R, Rex, EC, EN, S1, S2, S3, S4, am Bahnhof Liesing oder die Autobuslinie 61A direkt vor dem Haus. Die Straßenbahnlinie Badner Bahn ist ebenfalls in der Nähe.

Der Kindergarten, die Volksschule und das nächste Gymnasium befinden sich ebenfalls und der nahen Umgebung.

 

Weitere Merkmale

* Energieausweis: 40,20 kWh/m2a,  Energieklasse B
* Heizung: Luft-, Wasserwärmepumpe
* Kellerabteil: Ja 
* Das Objekt ist ab sofort beziehbar. 

 

Kaufpreis

Der Kaufpreis für Eigennutzer beläuft sich auf € 229.000,-. Der Kaufpreis für Anleger beläuft sich auf € 208.390,- zzgl. 20% USt.

Der Kaufpreis für einen Garagenplatz für Eigennutzer beläuft sich auf € 25.000,-. Der Kaufpreis für Anleger beläuft sich auf € 22.750,- zzgl. 20% USt.

Provision: 3% des Kaufpreises zzgl. 20% USt

 

Energieausweis

Der Heizwärmebedarf beträgt 40,20 kWh/m²a, welcher der Klasse B entspricht.

 

Für Fragen bzw. Besichtigungen steht Ihnen Herr Kucharik sehr gerne unter +43 664 18 14 655 oder unter kevin.matyas@prime-immobilien.at jederzeit zur Verfügung.

Wir weisen darauf hin, dass zwischen dem Vermittler und dem zu vermittelnden Dritten ein familiäres oder wirtschaftliches Naheverhältnis besteht.

Der Vermittler ist als Doppelmakler tätig.

Infrastruktur / Entfernungen

Gesundheit
Arzt <1.000m
Apotheke <500m
Klinik <2.500m
Krankenhaus <3.000m

Kinder & Schulen
Schule <500m
Kindergarten <500m
Universität <6.000m
Höhere Schule <5.500m

Nahversorgung
Supermarkt <500m
Bäckerei <1.000m
Einkaufszentrum <1.000m

Sonstige
Geldautomat <1.000m
Bank <1.000m
Post <1.000m
Polizei <1.000m

Verkehr
Bus <500m
U-Bahn <1.000m
Straßenbahn <4.000m
Bahnhof <500m
Autobahnanschluss <1.000m

Angaben Entfernung Luftlinie / Quelle: OpenStreetMap
Beschreibung weiterlesen

Lage und Verkehrsanbindung

U6 Perfektastrasse, Ketzergasse

Energieeffizienz

HWB:
40,5 kWh/(m²*a)
HWB Klasse:
B
fGEE:
0,69
fGEE Klasse:
A+
Energieausweisart:
Energiebedarfs-ausweis
Gültig bis:
29.06.2031

Grundriss

Lageplan

1230 Wien | Wien 23., Liesing

Lade...
Kevin Matyas

Kevin Matyas

RIMMO Prime Vermittlungs GmbH

Lade...

Fotomix

Bild 1 Bild 2 Bild 3 Bild 4 Bild 5 Bild 6 Bild 7 Bild 8 Bild 9 Bild 10 Bild 11 Bild 12 Bild 13