NEU - Lerchenfelder Straße: Toprenoviertes 106m² Geschäftslokal zu mieten - 1080 Wien

Einzelhandel zur Miete in 1080 Wien / Objektnummer: 7735
Ausstattung: Boden Kabel/Satelliten-TV Abstellraum Etagenheizung

Preisinformationen

Gesamtmiete (exkl. USt.):
2.221,00 € / Monat
Betriebskosten netto:
312,46 € / Monat
Umsatzsteuer:
444,00 €
Miete/m² netto:
18,00 €
Kaution:
8.000,00 €
Vermittlungsprovision:
Ja
Provision:
7.995,60 € inkl. 20% USt.

Fakten

Objektnummer:
7735
Objekttyp:
Einzelhandel
Nutzfläche:
106 m²
Zimmer:
3
Toilette:
2
Baujahr:
1870
Altbau:
Ja
Letzte Sanierung:
2026
Zustand:
Neuwertig
Verfügbarkeit:
Verfügbar

Beschreibung

Wunderschönes 106m² Geschäfts- oder Bürolokal in Frequenzlage zu mieten!

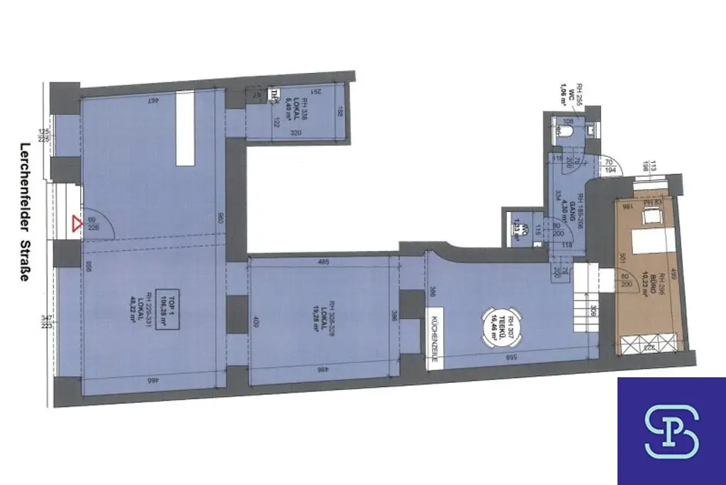
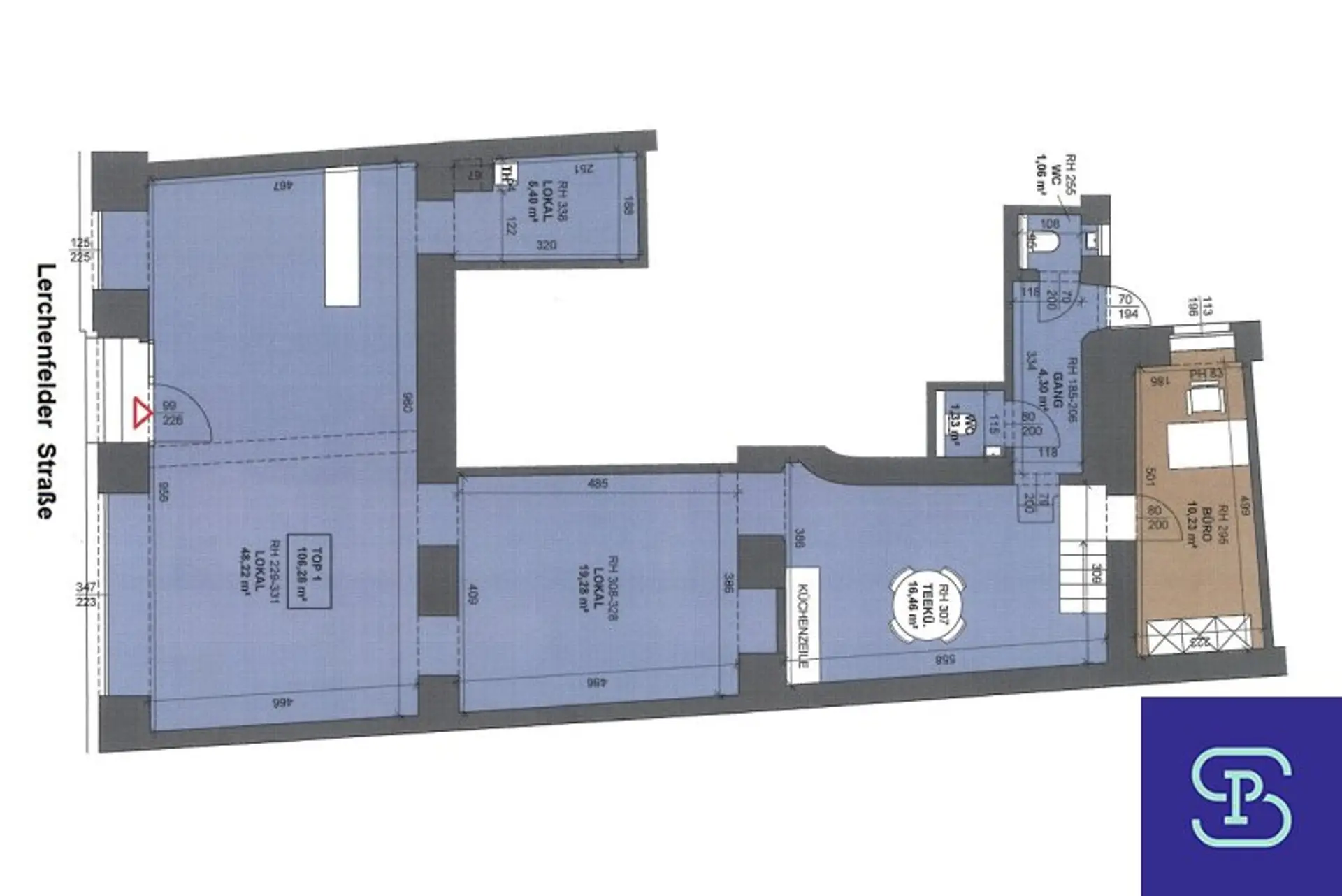
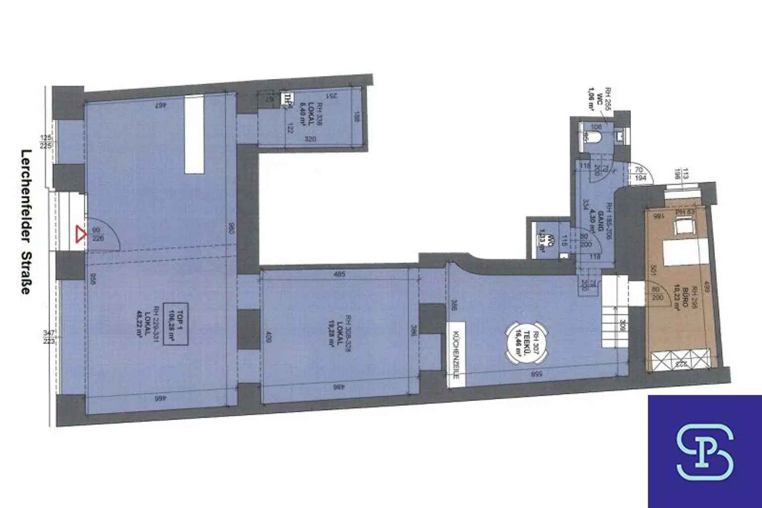
Dieses hochwertig renovierte Geschäftslokal mit großzügigen Fensterflächen und Straßenzugang befindet sich in der Lerchenfelder Straße, knapp oberhalb der Stolzenthalergasse. Das Mietobjekt hat eine Nutzfläche von 106m² und besteht aus einem großen Verkaufsraum mit großer Auslagenfront, 2 weiteren Räumen, geräumiger Küche und 2 getrennten Toiletten,.   

Ausstattung: Renoviertes Portallokal mit Gasetagenheizung, Einbauküche mit Geräten, Fliesen- und Parkettböden, 2 getrennte WC,. 

Die Vermietung erfolgt branchenfrei, jedoch KEINE Gastronomie/Imbiss mit warmer Küche! Bitte geben Sie bei Ihrer Anfrage unbedingt die geplante Nutzung/Branche an!

Das Mietobjekt wird ab sofort in befristeter Hauptmiete (7 Jahre+) vergeben.
Gesamtmiete inkl. Bk und 20% USt. € 2.665,-
(HMZ netto € 1.907,54 + Bk € 312,46 + 20% USt. € 464,- + Manip. € 1,-)
Kaution € 8.000,-
Vermittlungshonorar 3MM (€ 6.663,- zuzügl. 20% USt.) 

KONTAKT: Anfragen bitte nur per Email-Anfragefunktion! Keine telefonische Terminvergabe!

Besuchen Sie für unsere weiteren Angebote bitte auch unsere Homepage: www.sitarz.at [http://www.sitarz.at] 

_Der Mieter zahlt im Erfolgsfall an die Firma Sitarz & Partner Immobilien GmbH eine Maklerprovision in Höhe von 1 Nettomonatsmiete zzgl. 20% USt. bei einer Befristung von weniger als 2 Jahren, bzw. 2 Nettomonatsmieten zzgl. 20% USt. bei einer Befristung von mehr als 2 Jahren, jedoch nicht mehr als 3 Jahren. Bei einer Befristung über 3 Jahren sowie bei unbefristeten Verträgen sind 3 Nettomonatsmieten zzgl. 20% USt. fällig. Die Provision errechnet sich aus der im Mietvertrag vereinbarten Nettomiete inkl. Betriebskosten. Ausdrücklich vereinbart wird dieser Provisionsanspruch in gleicher Höhe auch für die in § 15 MaklerG vorgesehenen Fälle (Unterlassung eines notwendigen Rechtsaktes wider Treu und Glauben, Abschluss eines zweckgleichen Geschäftes, Abschluss mit einem Dritten aufgrund der Weitergabe der Abschlussmöglichkeit, Ausübung eines Vorkaufs-, Wiederkaufs- oder Eintrittsrechtes). Falls Ihnen dieses Objekt bereits als verkauf- oder vermietbar bekannt ist, ersuchen wir innerhalb von 3 Werktagen um Ihre schriftliche Nachricht, ansonsten gilt die Provisionsregelung als vereinbart. Bei den Größen und Ertragsangaben handelt es sich um die von Abgeber/in (Eigentümer/in bzw. Hausverwaltung) zur Verfügung gestellten Informationen. Die Angaben wurden von uns kontrolliert, eine Gewähr für die Richtigkeit, Vollständigkeit und Letztstand müssen wir allerdings ausschließen. Es wird darauf hingewiesen, dass zwischen dem Abgeber und dem Immobilienmakler ein wirtschaftliches bzw. familiäres Nahverhältnis besteht und der Immobilienmakler auch für diesen tätig ist (Doppelmakler)._

Wir weisen darauf hin, dass zwischen dem Vermittler und dem zu vermittelnden Dritten ein familiäres oder wirtschaftliches Naheverhältnis besteht.

Der Vermittler ist als Doppelmakler tätig.

Infrastruktur / Entfernungen

Gesundheit
Arzt <500m
Apotheke <500m
Klinik <500m
Krankenhaus <1.000m

Kinder & Schulen
Schule <500m
Kindergarten <500m
Universität <1.000m
Höhere Schule <500m

Nahversorgung
Supermarkt <500m
Bäckerei <500m
Einkaufszentrum <1.000m

Sonstige
Geldautomat <500m
Bank <500m
Post <500m
Polizei <500m

Verkehr
Bus <500m
U-Bahn <500m
Straßenbahn <500m
Bahnhof <500m
Autobahnanschluss <4.000m

Angaben Entfernung Luftlinie / Quelle: OpenStreetMap
Beschreibung weiterlesen

Lage und Verkehrsanbindung

Lerchenfelder Straße

Stolzenthalergasse

Energieeffizienz

HWB:
167,7 kWh/(m²*a)
HWB Klasse:
E
fGEE:
2,58
fGEE Klasse:
E
Energieausweisart:
Energiebedarfs-ausweis
Gültig bis:
21.06.2033

Grundriss

Lageplan

1080 Wien | Wien 8., Josefstadt

Lade...
Anna Sitarz

Anna Sitarz

Sitarz & Partner Immobilien GmbH

Lade...

Fotomix

Bild 1 Bild 2 Bild 3 Bild 4 Bild 5 Bild 6 Bild 7 Bild 8 Bild 9 Bild 10 Bild 11 Bild 12 Bild 13 Bild 14