NEU - 💕 LIEBE AUF DEN ERSTEN BLICK - HINREISSENDE ALTBAUWOHNUNG FÜR DURCHSTARTER:INNEN

Wohnung zum Kauf in 1190 Wien - Kaufpreis: 248.000 € / Objektnummer: 19715
Ausstattung: Boden Wohnküche / offene Küche Bad Etagenheizung

Preisinformationen

Kaufpreis:
248.000 €
Betriebskosten netto:
71,69 € / Monat
Vermittlungsprovision:
Ja
Provision:
3% des Kaufpreises zzgl. 20% USt.

Fakten

Objektnummer:
19715
Objekttyp:
Wohnung
Keller Fläche:
2 m²
Wohnfläche:
37,43 m²
Zimmer:
1,5
Badezimmer:
1
Toilette:
1
Stockwerk:
1
Baujahr:
1908
Altbau:
Ja
Letzte Sanierung:
2026
Zustand:
Vollsaniert
Verfügbarkeit:
Verfügbar

Beschreibung

EIN ALTBAU ZUM VERLIEBEN UND DER PERFEKTE START INS LEBEN

Wunderschön saniert, perfekt angebunden und grandios geschnitten - diese Wohnung sorgt für Schmetterlinge im Bauch!

_Hinweis:_ zur Inspiration und besseren Veranschaulichung wurden einige Fotos mittels KI virtuell eingerichtet. 

Im ersten Stock (ohne Lift) eines prachtvollen klassischen Altbaus aus der Jahrhundertwende mit verziertem Entrée und gegliederter Fassade befindet sich diese hinreißende, frisch sanierte Wohnung, die man einfach mögen muss! Vollkommen hofseitig und somit eine perfekte Oase zum Runterkommen vom oft stressigen Alltag, mit hohen Räumen und viel Licht lädt sie dazu ein, sich hier, gleich ums Eck vom 9. Bezirk, ein gemütliches Nest zu bauen. Die Wohnung zeigt, was Altbau kann - eine Nische hier, ein Bogen da und alles, nur nicht 08/15.

WOHNUNG
Mit knapp 38m² ist sie nicht die größte, aber so charmant, dass das zur Nebensache wird, sobald man sie betritt. Ein erstes kleines Vorzimmer - Windfang genannt - bietet sich als Garderobe an. Der folgende Vorraum lässt sich gut als Stauraum nutzen. Von hier kommt man auch gleich ins komfortable Badezimmer in elegant hellen Farbtönen mit Dusche, WC und Waschmaschinenanschluss. Gerade aus geht es weiter in die großzügige, helle Wohnküche, die Anschlüsse sind bereits vorbereitet. Besonders hübsch ist der runde Bogen im Durchgang, welcher als Element noch einmal bei der kuscheligen Schlafnische aufgegriffen wird. Die großen Kunststofffenster gehen in einen Innenhof, der teilweise begrünt ist und sehr ruhig ist. In der Nische könnte man ein Hochbett unterbringen, der Raum ist hoch genug und es sind bereits Spots in der Decke eingelassen. Bei der Sanierung wurde höchstes Augenmerk auf die Erhaltung des originalen Altbaucharakters gelegt, ein neuer Fischgrät-Parkett verlegt und passende Innentüren verbaut. Elektrik, Heizung und Sanitärinstallationen wurden vollständig erneuert. 

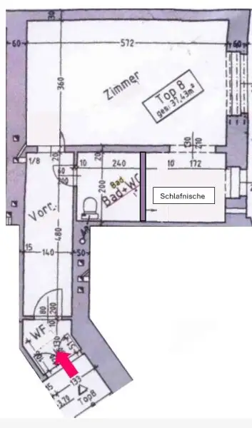
RAUMAUFTEILUNG
Die Wohnfläche mit 37,43m² ist folgendermaßen aufgeteilt:

* Kleines Vorzimmer ("Windfang"), ca. 1,88m²
* Vorraum, ca. 6,72m²
* Wohnzimmer mit Küchenanschlüssen, ca. 20,59m²
* Schlafnische, ca. 4,50m²
* Bad mit Dusche, WC, Waschtisch und Waschmaschinenanschluss ca. 3,74m²

Ein Kellerabteil ist zugeordnet.

LAGE
Da kommt man selbst als erfahrene Maklerin ins Schwärmen - die noble Postleitzahl 1190 am Wohnsitz und doch nur einmal ums Eck bis zu den nächsten U-Bahn-Stationen U6 Nußdorf oder U4 Heiligenstadt, wahlweise geht es auch mit dem 37er ins Döblinger Bad oder dem 38er in nur 6 Stationen zur Hauptuni am Schottenring. Zwei Häuser weiter befindet sich ein großer Eurospar, im Nachbarhaus ein Fitnessstudio, das beste Sushi der Stadt direkt gegenüber und wer sich zu den Nachtschwärmer:innen zählt, dem ist der nahegelegene "Stadl" oder die legendäre Cocktailbar "The Sign" in der Liechtensteinstraße sicher ein Begriff. Kleiner Geheimtipp, hier kann man 7 Tage die Woche einkehren und ab und zu gibt's auch "Music Bingo", sollte man sich nicht entgehen lassen. Für den Morgen danach hält die "Auge Gottes Apotheke" die passende Medizin bereit. 

KOSTEN
Die monatlichen Betriebskosten betragen inklusive Reparaturrücklage (= EUR 42,30) und USt. günstige EUR 121,16 (exklusive Strom und Gas).

VERKAUF
Der Kaufpreis dieser bestechend charmanten und generalsanierten Altbauwohnung beläuft sich auf EUR 248.000,-. Die Vermittlungsprovision im Erfolgsfall beträgt 3% zzgl. USt des Kaufpreises.

Die Errichtung des Kaufvertrags ist an das Notariat Mag. Markus Prandtstetten, 1030 Wien, gebunden.

ENERGIEAUSWEIS
Gültig bis 25.10.2029, HWB D 124kWh/m²a, fGEE D 2,39

Ich freue mich auf Ihre Anfrage! Bitte schicken Sie diese direkt über das Kontaktformular mit Ihren vollständigen Kontaktdaten!

 

Wir weisen darauf hin, dass zwischen dem Vermittler und dem zu vermittelnden Dritten ein familiäres oder wirtschaftliches Naheverhältnis besteht.

Der Vermittler ist als Doppelmakler tätig.
Beschreibung weiterlesen

Lage und Verkehrsanbindung

U6 Nußdorf, Währinger Park, Schegargasse

Energieeffizienz

HWB:
124 kWh/(m²*a)
HWB Klasse:
D
fGEE:
2,39
fGEE Klasse:
D
Energieausweisart:
Energiebedarfs-ausweis
Gültig bis:
25.10.2029

Grundriss

Lageplan

1190 Wien | Wien 19., Döbling

Lade...
Alexandra Hartl

Alexandra Hartl
Schwerpunkt: klassische Wiener ALTBAUWOHNUNGEN

IMMO AGENCY GmbH

Lade...

Fotomix

Bild 1 Bild 2 Bild 3 Bild 4 Bild 5 Bild 6 Bild 7 Bild 8 Bild 9 Bild 10 Bild 11 Bild 12 Bild 13 Bild 14 Bild 15 Bild 16 Bild 17 Bild 18