NEU - LIECHTENSTEINSTRASSE, 109 m2 Geschäftslokal mit Schaufenster, Büro - Praxis - Kanzlei - Atelier, straßenseitig, teilsaniert

Einzelhandel zur Miete in 1090 Wien / Objektnummer: 2424
Ausstattung: Boden Kabel/Satelliten-TV Fahrradraum Zentralheizung

Preisinformationen

Gesamtmiete (exkl. USt.):
1.690,00 € / Monat
Betriebskosten netto:
207,10 € / Monat
Umsatzsteuer:
338,00 €
Kaution:
6.084,00 €
Vermittlungsprovision:
Ja
Provision:
3 Bruttomonatsmieten zzgl. 20% USt.

Fakten

Objektnummer:
2424
Objekttyp:
Einzelhandel
Nutzfläche:
109 m²
Zimmer:
2
Toilette:
2
Altbau:
Ja
Letzte Sanierung:
2026
Verfügbarkeit:
Verfügbar

Beschreibung

IN DER LIECHTENSTEINSTRASSE GELANGT DIESE STRASSENSEITIGE CA. 109 M2 GESCHÄFTSFLÄCHE  ZUR BEFRISTETEN VERMIETUNG!

DAS GESCHÄFTSLOKAL WIRD NOCH VOM EIGENTÜMER SANIERT: ZENTRALHEIZUNG (FERNWÄRME), ELEKTRO- UND SANITÄREINRICHTUNGEN, BÖDEN, TEILWEISE DIE FENSTER ERNEUERT, ETC.

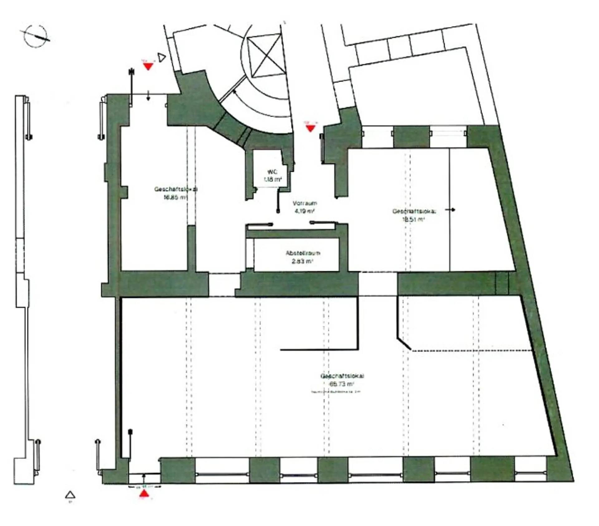
STRASSENSEITIGER EINGANG, 3 VERKAUFS- UND BÜRORÄUME, SCHAUFENSTER, 2 SEPARATE WC´S, ZENTRALHEIZUNG, 2 EINGANG ÜBER DEN HOFBEREICH

+ SCHAUFENSTERFLÄCHEN
+ 2 SEPARATES WC
+ ABSTELLRAUM
+ FLIESENBÖDEN
+ STROM- UND WASSERANSCHLÜSSE VORHANDEN
+ TELEKABELFERNSEHANSCHLUSS, INTERNETANSCHLUSS IM HAUS
+ HAUSZENTRALHEIZUNG (FERNWÄRME)
+ HWB 255 KWH/M2A

LAGE

LIECHTENSTEINSTRASSE MIT PERFEKTER INFRASTRUKTUR DES 9. BEZIRKS (NUSSDORFER STRASSE – AUGASSE – ALTHANSTRASSE - VEREINSSTIEGE - JULIUS TANDLER-PLATZ) UND SEHR GUTEN VERKEHRSANBINDUNGEN WIE DIE U6-STATION NUSSDORFER STRASSE, DIE LINIEN D, 1, 5, 33, 37, 38, 35A, 37A, 40A, N38 SOWIE DER FRANZ-JOSEFS-BAHNHOF MIT EZ, R + REX, DIE S-BAHN-STATIONEN S40 + S45 SIND IN UNMITTELBARER NÄHE

SONSTIGES

GESAMTMIETE: € 2.028,00 INKLUSIVE BETRIEBSKOSTEN.-20 % MWST.
HEIZUNG (FERNWÄRME) UND STROM WERDEN VOM ANBIETER ZUSÄTZLICH ZUR VORSCHREIBUNG GEBRACHT

KAUTION: € 6.084,00 PER ÜBERWEISUNG,
3 BMM VERMITTLUNGSPROVISION: € 6.084,00 INKL. 20 % MWST.
VERGEBÜHRUNG BEIM FINANZAMT VON CA. € 2.433,60
AUF 10 JAHRE BEFRISTETE HAUPTMIETE, ABLÖSEFREI, BEZUG NACH TEILSANIERUNG

DAS GESCHÄFTSLOKAL WIRD NOCH VOM EIGENTÜMER SANIERT: ZENTRALHEIZUNG (FERNWÄRME), ELEKTRO- UND SANITÄREINRICHTUNGEN, BÖDEN, TEILWEISE DIE FENSTER ERNEUERT, ETC.

ANBINDUNG ÖFFENTLICHER VERKEHR

U6-STATION NUSSDORFER STRASSE, DIE LINIEN D, 1, 5, 33, 37, 38, 35A, 37A, 40A, N38 SOWIE DER FRANZ-JOSEFS-BAHNHOF MIT EZ, R + REX, DIE S-BAHN-STATIONEN S40 + S45 SIND IN UNMITTELBARER NÄHE

ANSPRECHPARTNER: MARTIN ROS
MOB.-TEL. +43-664-200 20 27
E-MAIL: MARTIN.ROS@ROS-REAL.AT 

Infrastruktur / Entfernungen

Gesundheit
Arzt <250m
Apotheke <250m
Klinik <250m
Krankenhaus <1.000m

Kinder & Schulen
Schule <250m
Kindergarten <500m
Universität <500m
Höhere Schule <500m

Nahversorgung
Supermarkt <250m
Bäckerei <250m
Einkaufszentrum <2.000m

Sonstige
Geldautomat <500m
Bank <500m
Post <500m
Polizei <250m

Verkehr
Bus <250m
U-Bahn <750m
Straßenbahn <250m
Bahnhof <500m
Autobahnanschluss <1.750m

Angaben Entfernung Luftlinie / Quelle: OpenStreetMap
Beschreibung weiterlesen

Lage und Verkehrsanbindung

LIECHTENSTEINSTRASSE mit perfekter Infrastruktur des 9. Bezirks (Nussdorfer Straße, Augasse, Althanstraße, Vereinsstiege, Julius-Tandler-Platz) und sehr guten Verkehrsanbindungen wie die U6-Station Nußdorfer Straße, die Linien D, 1, 5, 33, 37, 38, 35A, 37A, 40A, N38 sowie der Franz-Josefs-Bahnhof mit EZ, R + REX, die S-Bahn-Stationen S40 + S45 sind in unmittelbarer Nähe

Nussdorfer Straße, Augasse, Althanstraße, Vereinsstiege, Julius-Tandler-Platz

Energieeffizienz

HWB:
255 kWh/(m²*a)
HWB Klasse:
E
fGEE:
3,55
Energieausweisart:
Energiebedarfs-ausweis

Grundriss

Lageplan

1090 Wien | Wien 9., Alsergrund

Lade...
Martin Ros

Martin Ros
Geschäftsführer

ROS REALITÄTEN OG

Lade...

Fotomix

Bild 1 Bild 2 Bild 3 Bild 4 Bild 5 Bild 6 Bild 7 Bild 8 Bild 9 Bild 10 Bild 11 Bild 12 Bild 13 Bild 14 Bild 15 Bild 16 Bild 17 Bild 18 Bild 19 Bild 20