NEU - Luxuriös möblierte Citywohnung in Top-Lage, mitten im 7. Bezirk

Wohnung zur Miete in 1070 Wien - Gesamtmiete: 1.950,00 € / Objektnummer: 8229
Ausstattung: Möbliert

Preisinformationen

Gesamtmiete:
1.950,00 € / Monat
Kaution:
3 Bruttomonatsmieten
Provision:
Gemäß Erstauftraggeberprinzip bezahlt der Abgeber die Provision.

Fakten

Objektnummer:
8229
Objekttyp:
Wohnung
Wohnfläche:
37,5 m²
Zimmer:
2
Badezimmer:
1
Toilette:
1
Stockwerk:
3
Neubau:
Ja
Letzte Sanierung:
2026
Verfügbarkeit:
Verfügbar

Beschreibung

​​​​​​Stilvoll wohnen. Sofort einziehen.

++ ERSTBEZUG nach Renovierung++

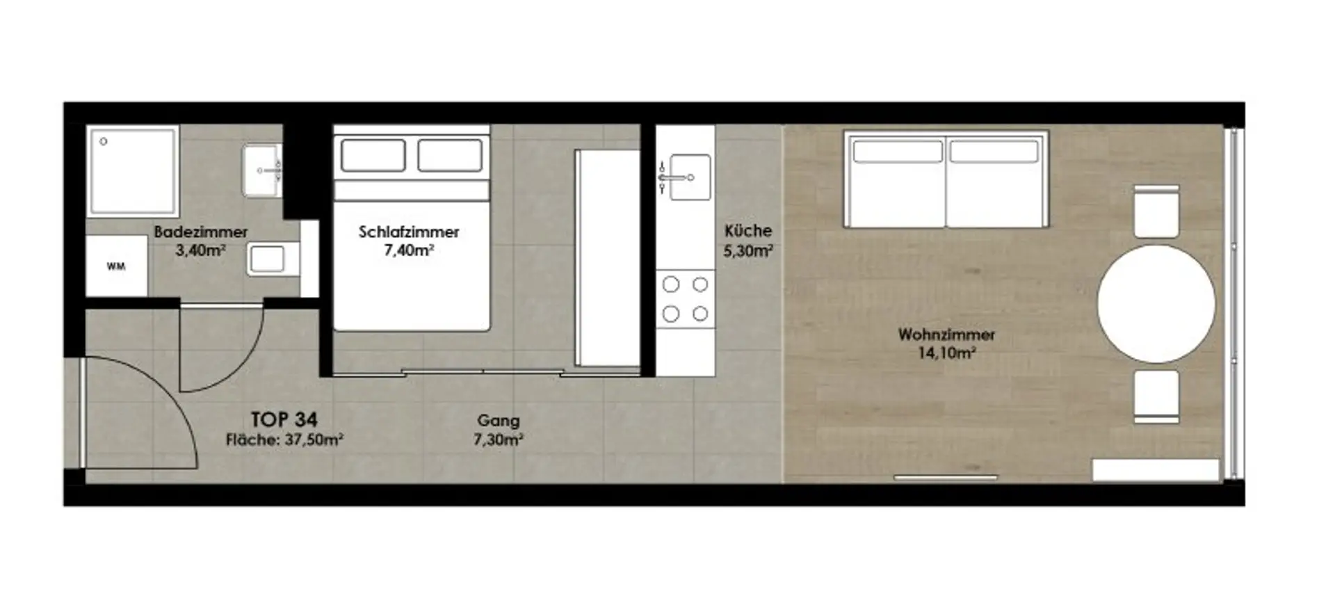
Diese geschmackvoll und hochwertig möblierte Citywohnung im 7. Bezirk verbindet modernes Design mit urbanem Komfort und ist daher ideal für alle, die einen großartigen Stil und eine hervorragende Lage mitten in Wien genießen möchten. Auf ca. 37,5 m² erwartet Sie ein durchdachter Grundriss mit separatem Schlafzimmer, einem Wohn-/Essbereich mit offener Küche sowie einem modern gestalteten Bad.

Hochwertige Parkettböden, neuwertige Fenster mit elektrischen Außenrollos und die klare Linienführung schaffen ein ruhiges, modernes Wohngefühl. Die Wohnung wird voll möbliert übergeben (siehe Abbildungen: Couch, Beistelltisch, Tisch, Sessel, Teppich, Sideboard, Fernseher, Bett, Kleiderschrank, Waschmaschine, Trockner, Kaffeemaschine und Geschirr). 

Einziehen, ankommen, wohlfühlen.

Details zur Wohnung:

* Betriebskosten inkl. Heizung: € 246,- (in der Gesamtmiete von € 1.950,-) inkludiert.
* Heizung: Zentralheizung
* Adresse: Großartige Lage im 7. Bezirk
* Stockwerk: 3. Stock mit Lift
* Wohnfläche: 37,50 m²
* Raumaufteilung: Vorraum, 1 Schlafzimmer, Wohn-/Essbereich mit offener Küche
* Badezimmer: Dusche, WC, Waschmaschine und Trockner
* Böden: Parkett
* Fenster: Neuwertige "Schüco" Fenster mit hochwertiger "Schlotterer" Außenrollo (elektrisch)

Dank der Top-Lage im 1070 Wien mit hervorragender öffentlicher Anbindung liegt alles, was das Stadtleben ausmacht, direkt vor Ihrer Tür.

* Ubahn U6 - Station Burggasse/ Stadthalle: ca.10 Gehminuten
* Bus 48A – Station Neustiftgasse/Kaiserstraße: ca. 5 Gehminuten
* Straßenbahn 49 - Station Westbahnstraße/ Kaiserstraße: ca. 5 Gehminuten

Haben wir Ihr Interesse geweckt? Dann lassen Sie sich von dieser modernen Stadtwohnung begeistern und vereinbaren Sie noch heute einen unverbindlichen Besichtigungstermin.
 

📩 Ich freue mich auf Ihre Anfrage!

 

Beste Grüße,

_Diana Müller_

Tel.: +43 664 44 99 377

E-Mail: mueller@grabner-immobilien.at

www.grabner-immobilien.at

Hinweis gemäß Energieausweisvorlagegesetz: Ein Energieausweis wurde vom Eigentümer bzw. Verkäufer, nach unserer Aufklärung über die generell geltende Vorlagepflicht, sowie Aufforderung zu seiner Erstellung noch nicht vorgelegt. Daher gilt zumindest eine dem Alter und der Art des Gebäudes entsprechende Gesamtenergieeffizienz als vereinbart. Wir übernehmen keinerlei Gewähr oder Haftung für die tatsächliche Energieeffizienz der angebotenen Immobilie.

Der Immobilienmakler erklärt, dass er – entgegen dem in der Immobilienwirtschaft üblichen Geschäftsgebrauch des Doppelmaklers – einseitig nur für den Vermieter tätig ist.

Infrastruktur / Entfernungen

Gesundheit
Arzt <500m
Apotheke <500m
Klinik <500m
Krankenhaus <1.500m

Kinder & Schulen
Schule <500m
Kindergarten <500m
Universität <1.000m
Höhere Schule <500m

Nahversorgung
Supermarkt <500m
Bäckerei <500m
Einkaufszentrum <500m

Sonstige
Geldautomat <500m
Bank <500m
Post <1.000m
Polizei <500m

Verkehr
Bus <500m
U-Bahn <500m
Straßenbahn <500m
Bahnhof <500m
Autobahnanschluss <4.500m

Angaben Entfernung Luftlinie / Quelle: OpenStreetMap
Beschreibung weiterlesen

Grundriss

Lageplan

1070 Wien | Wien 7., Neubau

Lade...
Diana Müller

Diana Müller
Immobilientreuhand

Grabner Immobilien

Lade...

Fotomix

Bild 1 Bild 2 Bild 3 Bild 4 Bild 5 Bild 6 Bild 7 Bild 8 Bild 9 Bild 10 Bild 11 Bild 12 Bild 13 Bild 14 Bild 15